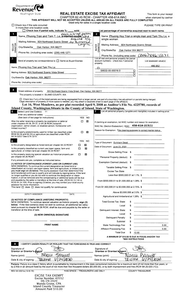
Property
Account |
| Property ID: | 70808 | Abbreviated Legal Description: | 25 - E/2 NW SW NW TGW SUB EZ |
| Geographic ID: | R23036-362-0490 | Agent Code: | |
| Type: | Real | | |
| Tax Area: | 712 - APPRAISER-S Whid Schl Dist, outside Langley, improved, greater than 1 acre | Land Use Code | 11 |
| Open Space: | N | DFL | N |
| Historic Property: | N | Remodel Property: | N |
| Multi-Family Redevelopment: | N | | |
| Township: | 30 | Section: | 36 |
| Range: | R2 |
Location |
| Address: | 2045 LONE ROCK LN FREELAND, WA 98249 | Mapsco: | |
| Neighborhood: | Cycle 3 | Map ID: | 447 |
| Neighborhood CD: | 3 |
Owner |
| Name: | JOHNSON, GARY | Owner ID: | 90937 |
| Mailing Address: | PAT JOHNSON 2045 LONE ROCK LN FREELAND, WA 98249 | % Ownership: | 100.0000000000% |
| | | Exemptions: | |
Taxes and Assessment Details
Values
| (+) Improvement Homesite Value: | + | $0 | |
| (+) Improvement Non-Homesite Value: | + | $546,442 | |
| (+) Land Homesite Value: | + | $0 | |
| (+) Land Non-Homesite Value: | + | $370,000 | |
| (+) Curr Use (HS): | + | $0 | $0 |
| (+) Curr Use (NHS): | + | $0 | $0 |
| | | -------------------------- | |
| (=) Market Value: | = | $916,442 | |
| (–) Productivity Loss: | – | $0 | |
| | | -------------------------- | |
| (=) Subtotal: | = | $916,442 | |
| (+) Senior Appraised Value: | + | $0 | |
| (+) Non-Senior Appraised Value: | + | $916,442 | |
| | | -------------------------- | |
| (=) Total Appraised Value: | = | $916,442 | |
| (–) Senior Exemption Loss: | – | $0 | |
| (–) Exemption Loss: | – | $0 | |
| | | -------------------------- | |
| (=) Taxable Value: | = | $916,442 | |
Taxing Jurisdiction
| Owner: | JOHNSON, GARY | | |
| % Ownership: | 100.0000000000% | | |
| Total Value: | $916,442 | | |
| Tax Area: | 712 - APPRAISER-S Whid Schl Dist, outside Langley, improved, greater than 1 acre |
| CF | Conservation Futures | 0.0316035091 | $916,442 | $916,442 | $28.96 | | |
| FIRE3 | Fire & Rescue Dist #3 S Whidbey GEN | 1.2004855531 | $916,442 | $916,442 | $1,100.18 | | |
| HOBOND | Hospital BOND | 0.1910887512 | $916,442 | $916,442 | $175.12 | | |
| HOGEN | Hospital GEN | 0.3902502903 | $916,442 | $916,442 | $357.64 | | |
| CE | County Current Expense | 0.3708482477 | $916,442 | $916,442 | $339.86 | | |
| CR | County Roads | 0.4584763726 | $916,442 | $916,442 | $420.17 | | |
| ISLANDEMS | Hospital GEN (EMS) | 0.5000000000 | $916,442 | $916,442 | $458.22 | | |
| LIB | Library Sno-Isle GEN | 0.3153421757 | $916,442 | $916,442 | $288.99 | | |
| PORTWHID | Port of S Whidbey GEN | 0.1094540357 | $916,442 | $916,442 | $100.31 | | |
| SCH206BOND | School 206 BOND | 0.3161759235 | $916,442 | $916,442 | $289.76 | | |
| SCH206MO | School 206 Enrichment | 0.4547169547 | $916,442 | $916,442 | $416.72 | | |
| ST | State School | 1.3035497053 | $916,442 | $916,442 | $1,194.63 | | |
| ST2 | State School Part 2 | 0.8169543533 | $916,442 | $916,442 | $748.69 | | |
| SWHIDPRBD | P & R S Whidbey BOND | 0.0152817568 | $916,442 | $916,442 | $14.00 | | |
| SWHIDPRBD2 | P & R S Whidbey BOND2 | 0.0138911264 | $916,442 | $916,442 | $12.73 | | |
| SWHIDPRMT | P & R S Whidbey GEN | 0.2053334452 | $916,442 | $916,442 | $188.18 | | |
| | Total Tax Rate: | 6.6934522006 | | | | | |
| | | | | Taxes w/Current Exemptions: | $6,134.16 | | |
| | | | | Taxes w/o Exemptions: | $6,134.16 | | |
Improvement / Building
| Improvement #1: | RESIDENTIAL | State Code: | Y | 2749.0 sqft | Value: | $546,442 |
| Bathrooms: | 2.5 | Bedrooms: | 3 | | Ceiling: | DRYWALL PAINTED | Exterior Wall/Cover: | CEMENT FIBER | | Floor Covering: | VINYL TILE | Floor Structure: | WOOD W/SUBFLOOR | | Foundation: | CONCRETE | Heating: | RADIANT FLOOR | | Interior Finish: | DRYWALL PAINT | Plumbing Fixture Cnt: | 15 | | Roof Slope: | 8" IN 12" | Roof Structure/Cover: | CJ ASPHALT |
|
| | Type | Description | Class CD | Sub Class CD | Year Built | Area |
| | BAS | BASE/MAIN FLOOR | 4 | 0 | 2006 | 2003.0 |
| | OP1 | OPEN PORCH SLAB | 4 | 0 | 2006 | 232.0 |
| | AGR | ATTACHED GARAGE | 4 | 0 | 2006 | 1008.0 |
| | UPS | UPPER STORY | 4 | 0 | 2006 | 746.0 |
| | OWP | OPEN WOOD PORCH W/STEPS | 4 | 0 | 2006 | 32.0 |
| | OWP | OPEN WOOD PORCH W/STEPS | 4 | 0 | 2006 | 848.0 |
| | OWC | OPEN WOOD PORCH W/STEPS/ROOF/C | 4 | 0 | 2006 | 84.0 |
Sketch
Property Image
Land
| 1 | 32 | AC (03.01-09.99) | 5.0000 | 0.00 | 0.00 | 0.00 | 1.00 | $370,000 | $0 |
Roll Value History
| 2026 | N/A | N/A | N/A | N/A | N/A |
| 2025 | $546,442 | $370,000 | $0 | $916,442 | $916,442 |
| 2024 | $553,166 | $350,000 | $0 | $903,166 | $903,166 |
| 2023 | $559,891 | $330,000 | $0 | $889,891 | $889,891 |
| 2022 | $513,060 | $280,000 | $0 | $793,060 | $793,060 |
| 2021 | $451,426 | $230,000 | $0 | $681,426 | $681,426 |
| 2020 | $439,876 | $190,000 | $0 | $629,876 | $629,876 |
| 2019 | $340,856 | $230,000 | $0 | $570,856 | $570,856 |
| 2018 | $341,834 | $210,000 | $0 | $551,834 | $551,834 |
| 2017 | $343,787 | $180,000 | $0 | $523,787 | $523,787 |
| 2016 | $347,693 | $135,000 | $0 | $482,693 | $482,693 |
| 2015 | $351,600 | $135,000 | $0 | $486,600 | $486,600 |
| 2014 | $355,505 | $135,000 | $0 | $490,505 | $490,505 |
| 2013 | $382,723 | $135,000 | $0 | $517,723 | $517,723 |
| 2012 | $386,749 | $135,000 | $0 | $521,749 | $521,749 |
| 2011 | $390,772 | $135,000 | $0 | $525,772 | $525,772 |
| 2010 | $404,676 | $135,000 | $0 | $539,676 | $539,676 |
| 2009 | $421,508 | $195,000 | $0 | $616,508 | $616,508 |
| 2008 | $480,238 | $225,995 | $0 | $706,233 | $706,233 |
| 2007 | $428,685 | $154,440 | $0 | $583,125 | $583,125 |
Deed and Sales History
| 1 | 05/17/2005 | WD | Warranty Deed | MAGPATOC, ABRAHAM I | JOOHNSON, GARY | | | $90,000.00 | 52343 | 4135441 |
| 2 | 08/01/1985 | REC | Real Estate Contract | MAGPATOC, ABRAHAM I | MAGPATOC, ABRAHAM I | | | $19,500.00 | 52224 | 85008701 |
| 3 | 08/01/1985 | REC | Real Estate Contract | MAGPATOC, ABRAHAM I | MAGPATOC, ABRAHAM I | | | $19,500.00 | 52224 | 85008701 |
| 4 | 08/01/1985 | REC | Real Estate Contract | ROSEWATER, FREDERICK H | MAGPATOC, ABRAHAM I | | | $19,500.00 | 52224 | 85008701 |
| 5 | 07/01/1980 | EXECUTORD | Executor Deed | ROSEWATER, FREDERICK H | ROSEWATER, FREDERICK H | | | $16,500.00 | 2630 | 372110 |
| 6 | 07/01/1980 | EXECUTORD | Executor Deed | SWEENEY, MICHAEL F | ROSEWATER, FREDERICK H | | | $16,500.00 | 2630 | 372110 |
| 7 | 01/01/1900 | OTHER | Other - Misc. Documents | Unknown | SWEENEY, MICHAEL F | | | $0.00 | 0 | 0 |
Payout Agreement
| No payout information available.. |