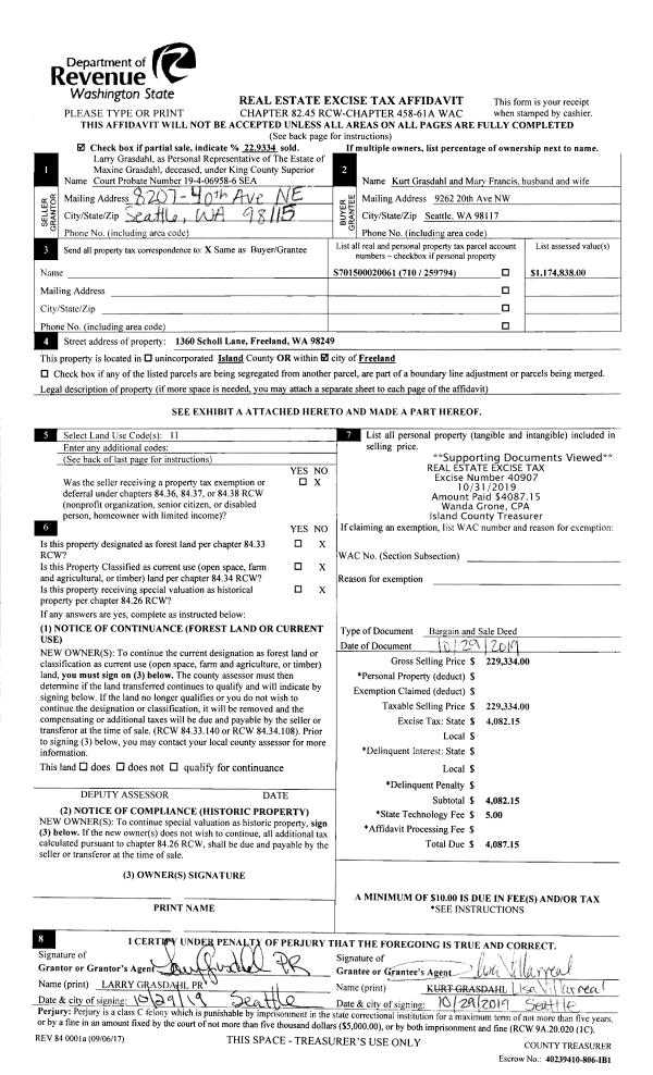
Property
Account |
| Property ID: | 708755 | Abbreviated Legal Description: | WHISP FIRS LOT 7 BLK 3 FR 03006-0 |
| Geographic ID: | S8430-00-03007-0 | Agent Code: | |
| Type: | Real | | |
| Tax Area: | 760 - APPRAISER-S Whid Schl Dist, Special District, improved & less than 1 acre | Land Use Code | 11 |
| Open Space: | N | DFL | N |
| Historic Property: | N | Remodel Property: | N |
| Multi-Family Redevelopment: | N | | |
| Township: | | Section: | |
| Range: | |
Location |
| Address: | 1804 WATKINS RD FREELAND, WA 98249 | Mapsco: | |
| Neighborhood: | Cycle 3 | Map ID: | 315 |
| Neighborhood CD: | 3 |
Owner |
| Name: | VOELPEL, JACOB | Owner ID: | 312847 |
| Mailing Address: | ANNA VOELPEL 1804 WATKINS RD FREELAND, WA 98249 | % Ownership: | 100.0000000000% |
| | | Exemptions: | |
Taxes and Assessment Details
Values
| (+) Improvement Homesite Value: | + | $0 | |
| (+) Improvement Non-Homesite Value: | + | $468,650 | |
| (+) Land Homesite Value: | + | $0 | |
| (+) Land Non-Homesite Value: | + | $250,000 | |
| (+) Curr Use (HS): | + | $0 | $0 |
| (+) Curr Use (NHS): | + | $0 | $0 |
| | | -------------------------- | |
| (=) Market Value: | = | $718,650 | |
| (–) Productivity Loss: | – | $0 | |
| | | -------------------------- | |
| (=) Subtotal: | = | $718,650 | |
| (+) Senior Appraised Value: | + | $0 | |
| (+) Non-Senior Appraised Value: | + | $718,650 | |
| | | -------------------------- | |
| (=) Total Appraised Value: | = | $718,650 | |
| (–) Senior Exemption Loss: | – | $0 | |
| (–) Exemption Loss: | – | $0 | |
| | | -------------------------- | |
| (=) Taxable Value: | = | $718,650 | |
Taxing Jurisdiction
| Owner: | VOELPEL, JACOB | | |
| % Ownership: | 100.0000000000% | | |
| Total Value: | $718,650 | | |
| Tax Area: | 760 - APPRAISER-S Whid Schl Dist, Special District, improved & less than 1 acre |
| CF | Conservation Futures | 0.0316035091 | $718,650 | $718,650 | $22.71 | | |
| FIRE3 | Fire & Rescue Dist #3 S Whidbey GEN | 1.2004855531 | $718,650 | $718,650 | $862.73 | | |
| HOBOND | Hospital BOND | 0.1910887512 | $718,650 | $718,650 | $137.33 | | |
| HOGEN | Hospital GEN | 0.3902502903 | $718,650 | $718,650 | $280.45 | | |
| CE | County Current Expense | 0.3708482477 | $718,650 | $718,650 | $266.51 | | |
| CR | County Roads | 0.4584763726 | $718,650 | $718,650 | $329.48 | | |
| ISLANDEMS | Hospital GEN (EMS) | 0.5000000000 | $718,650 | $718,650 | $359.33 | | |
| LIB | Library Sno-Isle GEN | 0.3153421757 | $718,650 | $718,650 | $226.62 | | |
| PORTWHID | Port of S Whidbey GEN | 0.1094540357 | $718,650 | $718,650 | $78.66 | | |
| SCH206BOND | School 206 BOND | 0.3161759235 | $718,650 | $718,650 | $227.22 | | |
| SCH206MO | School 206 Enrichment | 0.4547169547 | $718,650 | $718,650 | $326.78 | | |
| ST | State School | 1.3035497053 | $718,650 | $718,650 | $936.80 | | |
| ST2 | State School Part 2 | 0.8169543533 | $718,650 | $718,650 | $587.10 | | |
| SWHIDPRBD | P & R S Whidbey BOND | 0.0152817568 | $718,650 | $718,650 | $10.98 | | |
| SWHIDPRBD2 | P & R S Whidbey BOND2 | 0.0138911264 | $718,650 | $718,650 | $9.98 | | |
| SWHIDPRMT | P & R S Whidbey GEN | 0.2053334452 | $718,650 | $718,650 | $147.56 | | |
| | Total Tax Rate: | 6.6934522006 | | | | | |
| | | | | Taxes w/Current Exemptions: | $4,810.24 | | |
| | | | | Taxes w/o Exemptions: | $4,810.24 | | |
Improvement / Building
| Improvement #1: | RESIDENTIAL | State Code: | Y | 2554.0 sqft | Value: | $468,650 |
| Bathrooms: | 2.5 | Bedrooms: | 3 | | Ceiling: | DRYWALL PAINTED | Exterior Wall/Cover: | CEMENT FIBER | | Floor Covering: | HARDWOOD/CARP 60-40 | Floor Structure: | WOOD W/SUBFLOOR | | Foundation: | CONCRETE | Heating: | WALL HEAT ELECTRIC | | Interior Finish: | DRYWALL PAINT | Plumbing Fixture Cnt: | 16 | | Roof Slope: | 8" IN 12" | Roof Structure/Cover: | CJ ASPHALT |
|
| | Type | Description | Class CD | Sub Class CD | Year Built | Area |
| | BAS | BASE/MAIN FLOOR | 4 | 0 | 2007 | 1495.0 |
| | BIG | BUILT IN GARAGE | 4 | 0 | 2007 | 483.0 |
| | UPH | HALF STORY | 4 | 0 | 2007 | 1059.0 |
| | OWP | OPEN WOOD PORCH W/STEPS | 4 | 0 | 2007 | 200.2 |
| | OWC | OPEN WOOD PORCH W/STEPS/ROOF/C | 4 | 0 | 2007 | 81.0 |
Sketch
| No sketches available for this property. |
Property Image
Land
| 1 | 13 | SQ (06001-08000) | 0.1700 | 7405.20 | 0.00 | 0.00 | 1.00 | $250,000 | $0 |
Roll Value History
| 2026 | N/A | N/A | N/A | N/A | N/A |
| 2025 | $468,650 | $250,000 | $0 | $718,650 | $718,650 |
| 2024 | $492,536 | $230,000 | $0 | $722,536 | $722,536 |
| 2023 | $498,247 | $200,000 | $0 | $698,247 | $698,247 |
| 2022 | $456,363 | $210,000 | $0 | $666,363 | $666,363 |
| 2021 | $401,328 | $140,000 | $0 | $541,328 | $541,328 |
| 2020 | $389,626 | $115,000 | $0 | $504,626 | $504,626 |
| 2019 | $288,396 | $170,000 | $0 | $458,396 | $458,396 |
| 2018 | $289,214 | $130,000 | $0 | $419,214 | $419,214 |
| 2017 | $290,845 | $120,000 | $0 | $410,845 | $410,845 |
| 2016 | $294,113 | $90,000 | $0 | $384,113 | $384,113 |
| 2015 | $297,378 | $85,000 | $0 | $382,378 | $382,378 |
| 2014 | $300,647 | $70,000 | $0 | $370,647 | $370,647 |
| 2013 | $328,963 | $52,000 | $0 | $380,963 | $380,963 |
| 2012 | $332,456 | $53,550 | $0 | $386,006 | $386,006 |
| 2011 | $335,946 | $63,000 | $0 | $398,946 | $398,946 |
| 2010 | $349,961 | $63,000 | $0 | $412,961 | $412,961 |
| 2009 | $364,467 | $89,661 | $0 | $454,128 | $454,128 |
| 2008 | $365,068 | $89,661 | $0 | $454,729 | $454,729 |
| 2007 | $365,130 | $89,661 | $0 | $454,791 | $454,791 |
Deed and Sales History
| 1 | 06/18/2024 | WD | Warranty Deed | MONTGOMERIE, IAN FRASER | VOELPEL, JACOB | | | $695,000.00 | 60397 | 4573734 |
| 2 | 05/07/2015 | WD | Warranty Deed | RODDEN, PATRICK T | MONTGOMERIE, IAN FRASER | | | $355,000.00 | 19521 | 4378276 |
| 3 | 10/21/2009 | WD | Warranty Deed | CULTUS BAY INC, | RODDEN, PATRICK T | | | $299,000.00 | 92580 | 4262391 |
| 4 | 04/09/2005 | ESTSEPPROP | Establish Separate Property | CULTUS BAY INC, | CULTUS BAY INC, | | | $11.00 | 51927 | 4133162 |
| 5 | 11/30/2004 | WD | Warranty Deed | NDDS, LLC, | CULTUS BAY INC, | | | $5,498.00 | 45711 | 4120085 |
| 6 | 11/05/2004 | 5 | DNU - Marriage License/Name Change | WATKINS, H J | NDDS, LLC, | | | $0.00 | 45260 | 4117543 |
| 7 | 07/01/1995 | OTHER | Other - Misc. Documents | WATKINS, H J | WATKINS, H J | | | $0.00 | 66538 | 0 |
| 8 | 02/01/1995 | QCD | Quit Claim Deed | Unknown | WATKINS, H J | | | $0.00 | 50747 | 95003459 |
Payout Agreement
| No payout information available.. |