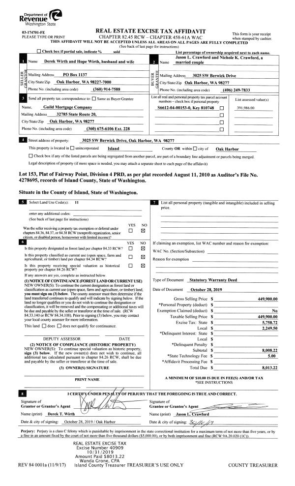
Property
Account |
| Property ID: | 708764 | Abbreviated Legal Description: | WHISP FIRS LOT 8 BLK 3 FR 03006-0 |
| Geographic ID: | S8430-00-03008-0 | Agent Code: | |
| Type: | Real | | |
| Tax Area: | 760 - APPRAISER-S Whid Schl Dist, Special District, improved & less than 1 acre | Land Use Code | 11 |
| Open Space: | N | DFL | N |
| Historic Property: | N | Remodel Property: | N |
| Multi-Family Redevelopment: | N | | |
| Township: | | Section: | |
| Range: | |
Location |
| Address: | 1810 WATKINS RD FREELAND, WA 98249 | Mapsco: | |
| Neighborhood: | Cycle 3 | Map ID: | 315 |
| Neighborhood CD: | 3 |
Owner |
| Name: | RICKETTS, BRIAN | Owner ID: | 295719 |
| Mailing Address: | KELLY RICKETTS 1810 WATKINS RD FREELAND, WA 98249 | % Ownership: | 100.0000000000% |
| | | Exemptions: | |
Taxes and Assessment Details
Values
| (+) Improvement Homesite Value: | + | $0 | |
| (+) Improvement Non-Homesite Value: | + | $454,721 | |
| (+) Land Homesite Value: | + | $0 | |
| (+) Land Non-Homesite Value: | + | $250,000 | |
| (+) Curr Use (HS): | + | $0 | $0 |
| (+) Curr Use (NHS): | + | $0 | $0 |
| | | -------------------------- | |
| (=) Market Value: | = | $704,721 | |
| (–) Productivity Loss: | – | $0 | |
| | | -------------------------- | |
| (=) Subtotal: | = | $704,721 | |
| (+) Senior Appraised Value: | + | $0 | |
| (+) Non-Senior Appraised Value: | + | $704,721 | |
| | | -------------------------- | |
| (=) Total Appraised Value: | = | $704,721 | |
| (–) Senior Exemption Loss: | – | $0 | |
| (–) Exemption Loss: | – | $0 | |
| | | -------------------------- | |
| (=) Taxable Value: | = | $704,721 | |
Taxing Jurisdiction
| Owner: | RICKETTS, BRIAN | | |
| % Ownership: | 100.0000000000% | | |
| Total Value: | $704,721 | | |
| Tax Area: | 760 - APPRAISER-S Whid Schl Dist, Special District, improved & less than 1 acre |
| CF | Conservation Futures | 0.0316035091 | $704,721 | $704,721 | $22.27 | | |
| FIRE3 | Fire & Rescue Dist #3 S Whidbey GEN | 1.2004855531 | $704,721 | $704,721 | $846.01 | | |
| HOBOND | Hospital BOND | 0.1910887512 | $704,721 | $704,721 | $134.66 | | |
| HOGEN | Hospital GEN | 0.3902502903 | $704,721 | $704,721 | $275.02 | | |
| CE | County Current Expense | 0.3708482477 | $704,721 | $704,721 | $261.34 | | |
| CR | County Roads | 0.4584763726 | $704,721 | $704,721 | $323.10 | | |
| ISLANDEMS | Hospital GEN (EMS) | 0.5000000000 | $704,721 | $704,721 | $352.36 | | |
| LIB | Library Sno-Isle GEN | 0.3153421757 | $704,721 | $704,721 | $222.23 | | |
| PORTWHID | Port of S Whidbey GEN | 0.1094540357 | $704,721 | $704,721 | $77.13 | | |
| SCH206BOND | School 206 BOND | 0.3161759235 | $704,721 | $704,721 | $222.82 | | |
| SCH206MO | School 206 Enrichment | 0.4547169547 | $704,721 | $704,721 | $320.45 | | |
| ST | State School | 1.3035497053 | $704,721 | $704,721 | $918.64 | | |
| ST2 | State School Part 2 | 0.8169543533 | $704,721 | $704,721 | $575.72 | | |
| SWHIDPRBD | P & R S Whidbey BOND | 0.0152817568 | $704,721 | $704,721 | $10.77 | | |
| SWHIDPRBD2 | P & R S Whidbey BOND2 | 0.0138911264 | $704,721 | $704,721 | $9.79 | | |
| SWHIDPRMT | P & R S Whidbey GEN | 0.2053334452 | $704,721 | $704,721 | $144.70 | | |
| | Total Tax Rate: | 6.6934522006 | | | | | |
| | | | | Taxes w/Current Exemptions: | $4,717.01 | | |
| | | | | Taxes w/o Exemptions: | $4,717.01 | | |
Improvement / Building
| Improvement #1: | RESIDENTIAL | State Code: | Y | 2462.5 sqft | Value: | $454,721 |
| Bathrooms: | 2.5 | Bedrooms: | 3 | | Ceiling: | DRYWALL PAINTED | Exterior Wall/Cover: | CEMENT FIBER | | Floor Covering: | HARDWOOD/CARP 60-40 | Floor Structure: | WOOD W/SUBFLOOR | | Foundation: | CONCRETE | Heating: | WALL HEAT ELECTRIC | | Interior Finish: | DRYWALL PAINT | Plumbing Fixture Cnt: | 15 | | Roof Slope: | 8" IN 12" | Roof Structure/Cover: | CJ ASPHALT |
|
| | Type | Description | Class CD | Sub Class CD | Year Built | Area |
| | BAS | BASE/MAIN FLOOR | 4 | 0 | 2006 | 1351.5 |
| | BIG | BUILT IN GARAGE | 4 | 0 | 2006 | 468.0 |
| | UPS | UPPER STORY | 4 | 0 | 2006 | 1111.0 |
| | OWP | OPEN WOOD PORCH W/STEPS | 4 | 0 | 2006 | 527.5 |
| | OWC | OPEN WOOD PORCH W/STEPS/ROOF/C | 4 | 0 | 2006 | 130.9 |
Sketch
Property Image
Land
| 1 | 13 | SQ (06001-08000) | 0.1700 | 7405.20 | 0.00 | 0.00 | 1.00 | $250,000 | $0 |
Roll Value History
| 2026 | N/A | N/A | N/A | N/A | N/A |
| 2025 | $454,721 | $250,000 | $0 | $704,721 | $704,721 |
| 2024 | $460,249 | $230,000 | $0 | $690,249 | $690,249 |
| 2023 | $465,778 | $200,000 | $0 | $665,778 | $665,778 |
| 2022 | $426,785 | $210,000 | $0 | $636,785 | $636,785 |
| 2021 | $375,472 | $140,000 | $0 | $515,472 | $515,472 |
| 2020 | $365,496 | $115,000 | $0 | $480,496 | $480,496 |
| 2019 | $256,914 | $170,000 | $0 | $426,914 | $426,914 |
| 2018 | $257,642 | $130,000 | $0 | $387,642 | $387,642 |
| 2017 | $258,917 | $120,000 | $0 | $378,917 | $378,917 |
| 2016 | $261,825 | $90,000 | $0 | $351,825 | $351,825 |
| 2015 | $264,734 | $85,000 | $0 | $349,734 | $349,734 |
| 2014 | $267,644 | $70,000 | $0 | $337,644 | $337,644 |
| 2013 | $282,166 | $52,000 | $0 | $334,166 | $334,166 |
| 2012 | $285,129 | $53,550 | $0 | $338,679 | $338,679 |
| 2011 | $288,090 | $63,000 | $0 | $351,090 | $351,090 |
| 2010 | $297,149 | $63,000 | $0 | $360,149 | $360,149 |
| 2009 | $309,370 | $89,661 | $0 | $399,031 | $399,031 |
| 2008 | $309,861 | $89,661 | $0 | $399,522 | $399,522 |
| 2007 | $313,279 | $89,661 | $0 | $402,940 | $402,940 |
Deed and Sales History
| 1 | 08/17/2020 | WD | Warranty Deed | FEE, FRANK E | RICKETTS, BRIAN | | | $486,000.00 | 44332 | 4494367 |
| 2 | 10/17/2013 | WD | Warranty Deed | VAUGHAN, MICHELLE L | FEE, FRANK E | | | $323,000.00 | 13140 | 4349942 |
| 3 | 11/16/2009 | WD | Warranty Deed | SHEN, JOSEPH | VAUGHN, MICHELLE L | | | $280,000.00 | 92819 | 4263861 |
| 4 | 04/05/2006 | WD | Warranty Deed | CULTUS BAY INC, | SHEN, JOSEPH | | | $79,000.00 | 61831 | 4168781 |
| 5 | 04/09/2005 | ESTSEPPROP | Establish Separate Property | CULTUS BAY INC, | CULTUS BAY INC, | | | $11.00 | 51927 | 4133162 |
| 6 | 11/30/2004 | WD | Warranty Deed | NDDS, LLC, | CULTUS BAY INC, | | | $5,498.00 | 45711 | 4120085 |
| 7 | 11/05/2004 | 5 | DNU - Marriage License/Name Change | WATKINS, H J | NDDS, LLC, | | | $0.00 | 45260 | 4117543 |
| 8 | 07/01/1995 | OTHER | Other - Misc. Documents | WATKINS, H J | WATKINS, H J | | | $0.00 | 66538 | 0 |
| 9 | 02/01/1995 | QCD | Quit Claim Deed | Unknown | WATKINS, H J | | | $0.00 | 50747 | 95003459 |
Payout Agreement
| No payout information available.. |