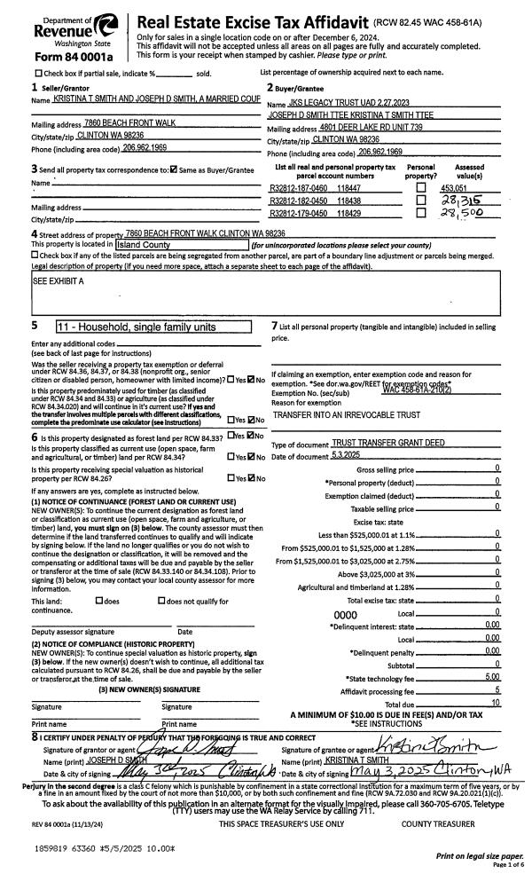
Property
Account |
| Property ID: | 708773 | Abbreviated Legal Description: | WHISP FIRS LOT 15 BLK 3 FR 03014-0 |
| Geographic ID: | S8430-00-03015-0 | Agent Code: | |
| Type: | Real | | |
| Tax Area: | 769 - APPRAISER-S Whid Schl Dist, Special District, vacant & 50 acres or less | Land Use Code | 99 |
| Open Space: | N | DFL | N |
| Historic Property: | N | Remodel Property: | N |
| Multi-Family Redevelopment: | N | | |
| Township: | | Section: | |
| Range: | |
Location |
| Address: | | Mapsco: | |
| Neighborhood: | Cycle 3 | Map ID: | 316 |
| Neighborhood CD: | 3 |
Owner |
| Name: | ROBINSON, RY | Owner ID: | 313903 |
| Mailing Address: | KRISTINA ROBINSON 1819 TWIN OAKS LN FREELAND, WA 98249 | % Ownership: | 100.0000000000% |
| | | Exemptions: | |
Taxes and Assessment Details
Values
| (+) Improvement Homesite Value: | + | $0 | |
| (+) Improvement Non-Homesite Value: | + | $0 | |
| (+) Land Homesite Value: | + | $0 | |
| (+) Land Non-Homesite Value: | + | $90,000 | |
| (+) Curr Use (HS): | + | $0 | $0 |
| (+) Curr Use (NHS): | + | $0 | $0 |
| | | -------------------------- | |
| (=) Market Value: | = | $90,000 | |
| (–) Productivity Loss: | – | $0 | |
| | | -------------------------- | |
| (=) Subtotal: | = | $90,000 | |
| (+) Senior Appraised Value: | + | $0 | |
| (+) Non-Senior Appraised Value: | + | $90,000 | |
| | | -------------------------- | |
| (=) Total Appraised Value: | = | $90,000 | |
| (–) Senior Exemption Loss: | – | $0 | |
| (–) Exemption Loss: | – | $0 | |
| | | -------------------------- | |
| (=) Taxable Value: | = | $90,000 | |
Taxing Jurisdiction
| Owner: | ROBINSON, RY | | |
| % Ownership: | 100.0000000000% | | |
| Total Value: | $90,000 | | |
| Tax Area: | 769 - APPRAISER-S Whid Schl Dist, Special District, vacant & 50 acres or less |
| CF | Conservation Futures | 0.0316035091 | $90,000 | $90,000 | $2.84 | | |
| HOBOND | Hospital BOND | 0.1910887512 | $90,000 | $90,000 | $17.20 | | |
| HOGEN | Hospital GEN | 0.3902502903 | $90,000 | $90,000 | $35.12 | | |
| CE | County Current Expense | 0.3708482477 | $90,000 | $90,000 | $33.38 | | |
| CR | County Roads | 0.4584763726 | $90,000 | $90,000 | $41.26 | | |
| ISLANDEMS | Hospital GEN (EMS) | 0.5000000000 | $90,000 | $90,000 | $45.00 | | |
| LIB | Library Sno-Isle GEN | 0.3153421757 | $90,000 | $90,000 | $28.38 | | |
| PORTWHID | Port of S Whidbey GEN | 0.1094540357 | $90,000 | $90,000 | $9.85 | | |
| SCH206BOND | School 206 BOND | 0.3161759235 | $90,000 | $90,000 | $28.46 | | |
| SCH206MO | School 206 Enrichment | 0.4547169547 | $90,000 | $90,000 | $40.92 | | |
| ST | State School | 1.3035497053 | $90,000 | $90,000 | $117.32 | | |
| ST2 | State School Part 2 | 0.8169543533 | $90,000 | $90,000 | $73.53 | | |
| SWHIDPRBD | P & R S Whidbey BOND | 0.0152817568 | $90,000 | $90,000 | $1.38 | | |
| SWHIDPRBD2 | P & R S Whidbey BOND2 | 0.0138911264 | $90,000 | $90,000 | $1.25 | | |
| SWHIDPRMT | P & R S Whidbey GEN | 0.2053334452 | $90,000 | $90,000 | $18.48 | | |
| | Total Tax Rate: | 5.4929666475 | | | | | |
| | | | | Taxes w/Current Exemptions: | $494.37 | | |
| | | | | Taxes w/o Exemptions: | $494.37 | | |
Improvement / Building
Sketch
| No sketches available for this property. |
Property Image
Land
| 1 | 13 | SQ (06001-08000) | 0.1700 | 7405.20 | 0.00 | 0.00 | 1.00 | $90,000 | $0 |
Roll Value History
| 2026 | N/A | N/A | N/A | N/A | N/A |
| 2025 | $0 | $90,000 | $0 | $90,000 | $90,000 |
| 2024 | $0 | $70,000 | $0 | $70,000 | $70,000 |
| 2023 | $0 | $70,000 | $0 | $70,000 | $70,000 |
| 2022 | $0 | $40,000 | $0 | $40,000 | $40,000 |
| 2021 | $0 | $35,000 | $0 | $35,000 | $35,000 |
| 2020 | $0 | $35,000 | $0 | $35,000 | $35,000 |
| 2019 | $0 | $35,000 | $0 | $35,000 | $35,000 |
| 2018 | $0 | $35,000 | $0 | $35,000 | $35,000 |
| 2017 | $0 | $35,000 | $0 | $35,000 | $35,000 |
| 2016 | $0 | $25,000 | $0 | $25,000 | $25,000 |
| 2015 | $0 | $25,000 | $0 | $25,000 | $25,000 |
| 2014 | $0 | $20,000 | $0 | $20,000 | $20,000 |
| 2013 | $0 | $15,000 | $0 | $15,000 | $15,000 |
| 2012 | $0 | $46,550 | $0 | $46,550 | $46,550 |
| 2011 | $0 | $56,000 | $0 | $56,000 | $56,000 |
| 2010 | $0 | $56,000 | $0 | $56,000 | $56,000 |
| 2009 | $0 | $80,000 | $0 | $80,000 | $80,000 |
| 2008 | $0 | $80,000 | $0 | $80,000 | $80,000 |
| 2007 | $0 | $89,661 | $0 | $89,661 | $89,661 |
Deed and Sales History
| 1 | 09/16/2024 | WD | Warranty Deed | JAEK LLC | ROBINSON, RY | | | $160,000.00 | 61280 | 4577139 |
|   | |
| 2 | 02/09/2016 | WD | Warranty Deed | CULTUS BAY INC | JAEK LLC | | | $132,000.00 | 23170 | 4394244 |
|   | |
| 3 | 04/09/2005 | ESTSEPPROP | Establish Separate Property | CULTUS BAY INC, | CULTUS BAY INC, | | | $11.00 | 51927 | 4133162 |
| 4 | 11/30/2004 | WD | Warranty Deed | NDDS, LLC, | CULTUS BAY INC, | | | $5,498.00 | 45711 | 4120085 |
| 5 | 11/05/2004 | 5 | DNU - Marriage License/Name Change | WATKINS, H J | NDDS, LLC, | | | $0.00 | 45260 | 4117543 |
| 6 | 07/01/1995 | OTHER | Other - Misc. Documents | WATKINS, H J | WATKINS, H J | | | $0.00 | 66538 | 0 |
| 7 | 02/01/1995 | QCD | Quit Claim Deed | Unknown | WATKINS, H J | | | $0.00 | 50747 | 95003459 |
Payout Agreement
| No payout information available.. |