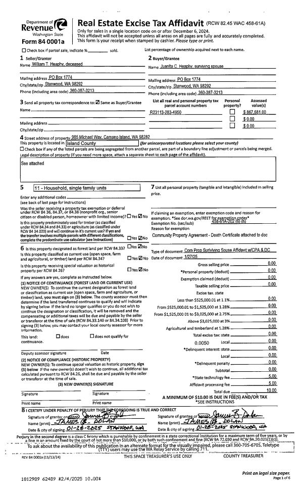
Property
Account |
| Property ID: | 708808 | Abbreviated Legal Description: | WHISP FIRS LOT 20 BLK 3 FR 03017-0 |
| Geographic ID: | S8430-00-03020-0 | Agent Code: | |
| Type: | Real | | |
| Tax Area: | 760 - APPRAISER-S Whid Schl Dist, Special District, improved & less than 1 acre | Land Use Code | 11 |
| Open Space: | N | DFL | N |
| Historic Property: | N | Remodel Property: | N |
| Multi-Family Redevelopment: | N | | |
| Township: | | Section: | |
| Range: | |
Location |
| Address: | 1805 TWIN OAKS LN FREELAND, WA 98249 | Mapsco: | |
| Neighborhood: | Cycle 3 | Map ID: | 316 |
| Neighborhood CD: | 3 |
Owner |
| Name: | GEORGE JTWROS, CATHERINE MARIE | Owner ID: | 311623 |
| Mailing Address: | WAYNE DAVID GEORGE JTWROS 1805 TWIN OAKS LN FREELAND, WA 98249 | % Ownership: | 100.0000000000% |
| | | Exemptions: | |
Taxes and Assessment Details
Values
| (+) Improvement Homesite Value: | + | $0 | |
| (+) Improvement Non-Homesite Value: | + | $368,787 | |
| (+) Land Homesite Value: | + | $0 | |
| (+) Land Non-Homesite Value: | + | $250,000 | |
| (+) Curr Use (HS): | + | $0 | $0 |
| (+) Curr Use (NHS): | + | $0 | $0 |
| | | -------------------------- | |
| (=) Market Value: | = | $618,787 | |
| (–) Productivity Loss: | – | $0 | |
| | | -------------------------- | |
| (=) Subtotal: | = | $618,787 | |
| (+) Senior Appraised Value: | + | $0 | |
| (+) Non-Senior Appraised Value: | + | $618,787 | |
| | | -------------------------- | |
| (=) Total Appraised Value: | = | $618,787 | |
| (–) Senior Exemption Loss: | – | $0 | |
| (–) Exemption Loss: | – | $0 | |
| | | -------------------------- | |
| (=) Taxable Value: | = | $618,787 | |
Taxing Jurisdiction
| Owner: | GEORGE JTWROS, CATHERINE MARIE | | |
| % Ownership: | 100.0000000000% | | |
| Total Value: | $618,787 | | |
| Tax Area: | 760 - APPRAISER-S Whid Schl Dist, Special District, improved & less than 1 acre |
| CF | Conservation Futures | 0.0316035091 | $618,787 | $618,787 | $19.56 | | |
| FIRE3 | Fire & Rescue Dist #3 S Whidbey GEN | 1.2004855531 | $618,787 | $618,787 | $742.84 | | |
| HOBOND | Hospital BOND | 0.1910887512 | $618,787 | $618,787 | $118.24 | | |
| HOGEN | Hospital GEN | 0.3902502903 | $618,787 | $618,787 | $241.48 | | |
| CE | County Current Expense | 0.3708482477 | $618,787 | $618,787 | $229.48 | | |
| CR | County Roads | 0.4584763726 | $618,787 | $618,787 | $283.70 | | |
| ISLANDEMS | Hospital GEN (EMS) | 0.5000000000 | $618,787 | $618,787 | $309.39 | | |
| LIB | Library Sno-Isle GEN | 0.3153421757 | $618,787 | $618,787 | $195.13 | | |
| PORTWHID | Port of S Whidbey GEN | 0.1094540357 | $618,787 | $618,787 | $67.73 | | |
| SCH206BOND | School 206 BOND | 0.3161759235 | $618,787 | $618,787 | $195.65 | | |
| SCH206MO | School 206 Enrichment | 0.4547169547 | $618,787 | $618,787 | $281.37 | | |
| ST | State School | 1.3035497053 | $618,787 | $618,787 | $806.62 | | |
| ST2 | State School Part 2 | 0.8169543533 | $618,787 | $618,787 | $505.52 | | |
| SWHIDPRBD | P & R S Whidbey BOND | 0.0152817568 | $618,787 | $618,787 | $9.46 | | |
| SWHIDPRBD2 | P & R S Whidbey BOND2 | 0.0138911264 | $618,787 | $618,787 | $8.60 | | |
| SWHIDPRMT | P & R S Whidbey GEN | 0.2053334452 | $618,787 | $618,787 | $127.06 | | |
| | Total Tax Rate: | 6.6934522006 | | | | | |
| | | | | Taxes w/Current Exemptions: | $4,141.83 | | |
| | | | | Taxes w/o Exemptions: | $4,141.83 | | |
Improvement / Building
| Improvement #1: | RESIDENTIAL | State Code: | Y | 2162.0 sqft | Value: | $368,787 |
| Bathrooms: | 2.5 | Bedrooms: | 2 | | Ceiling: | DRYWALL PAINTED | Cooling: | HEAT PUMP/CONV/V | | Exterior Wall/Cover: | CEMENT FIBER | Floor Covering: | CARPET/VINYL 60-40 | | Floor Structure: | WOOD W/SUBFLOOR | Foundation: | CONCRETE | | Interior Finish: | DRYWALL PAINT | Plumbing Fixture Cnt: | 11 | | Roof Slope: | 5" IN 12" | Roof Structure/Cover: | CJ ASPHALT |
|
| | Type | Description | Class CD | Sub Class CD | Year Built | Area |
| | BAS | BASE/MAIN FLOOR | 3 | 0 | 2023 | 728.0 |
| | UPS | UPPER STORY | 3 | 0 | 2023 | 758.0 |
| | AGR | ATTACHED GARAGE | 3 | 0 | 2023 | 572.0 |
| | DWN | DOWNSTAIRS LIVING AREA | 3 | 0 | 2023 | 676.0 |
| | OWP | OPEN WOOD PORCH W/STEPS | 3 | 0 | 2023 | 65.0 |
Sketch
Property Image
Land
| 1 | 13 | SQ (06001-08000) | 0.1300 | 5662.80 | 0.00 | 0.00 | 1.00 | $250,000 | $0 |
Roll Value History
| 2026 | N/A | N/A | N/A | N/A | N/A |
| 2025 | $368,787 | $250,000 | $0 | $618,787 | $618,787 |
| 2024 | $375,492 | $230,000 | $0 | $605,492 | $605,492 |
| 2023 | $362,806 | $200,000 | $0 | $562,806 | $562,806 |
| 2022 | $0 | $40,000 | $0 | $40,000 | $40,000 |
| 2021 | $0 | $35,000 | $0 | $35,000 | $35,000 |
| 2020 | $0 | $35,000 | $0 | $35,000 | $35,000 |
| 2019 | $0 | $35,000 | $0 | $35,000 | $35,000 |
| 2018 | $0 | $35,000 | $0 | $35,000 | $35,000 |
| 2017 | $0 | $35,000 | $0 | $35,000 | $35,000 |
| 2016 | $0 | $25,000 | $0 | $25,000 | $25,000 |
| 2015 | $0 | $25,000 | $0 | $25,000 | $25,000 |
| 2014 | $0 | $20,000 | $0 | $20,000 | $20,000 |
| 2013 | $0 | $15,000 | $0 | $15,000 | $15,000 |
| 2012 | $0 | $46,550 | $0 | $46,550 | $46,550 |
| 2011 | $0 | $56,000 | $0 | $56,000 | $56,000 |
| 2010 | $0 | $56,000 | $0 | $56,000 | $56,000 |
| 2009 | $0 | $80,000 | $0 | $80,000 | $80,000 |
| 2008 | $0 | $80,000 | $0 | $80,000 | $80,000 |
| 2007 | $0 | $89,661 | $0 | $89,661 | $89,661 |
Deed and Sales History
| 1 | 01/30/2024 | QCD | Quit Claim Deed | CHULICK, CATHERINE MARIE | GEORGE JTWROS, CATHERINE MARIE | | | $0.00 | 59370 | 4570157 |
| 2 | 04/10/2023 | WD | Warranty Deed | SARATOGA CONSTRUCTION, LLC | CHULICK, CATHERINE MARIE | | | $699,000.00 | 56604 | 4559557 |
| 3 | 01/20/2022 | WD | Warranty Deed | MERRELL, KENNETH | SARATOGA CONSTRUCTION, LLC | | | $66,000.00 | 51765 | 4538524 |
| 4 | 01/29/2021 | WD | Warranty Deed | CULTUS BAY INC | MERRELL, KENNETH | | | $44,000.00 | 46834 | 4510095 |
| 5 | 04/09/2005 | ESTSEPPROP | Establish Separate Property | CULTUS BAY INC, | CULTUS BAY INC, | | | $11.00 | 51927 | 4133162 |
| 6 | 11/30/2004 | WD | Warranty Deed | NDDS, LLC, | CULTUS BAY INC, | | | $5,498.00 | 45711 | 4120085 |
| 7 | 11/05/2004 | 5 | DNU - Marriage License/Name Change | WATKINS, H J | NDDS, LLC, | | | $0.00 | 45260 | 4117543 |
| 8 | 07/01/1995 | OTHER | Other - Misc. Documents | WATKINS, H J | WATKINS, H J | | | $0.00 | 66538 | 0 |
| 9 | 02/01/1995 | QCD | Quit Claim Deed | Unknown | WATKINS, H J | | | $0.00 | 50747 | 95003459 |
Payout Agreement
| No payout information available.. |