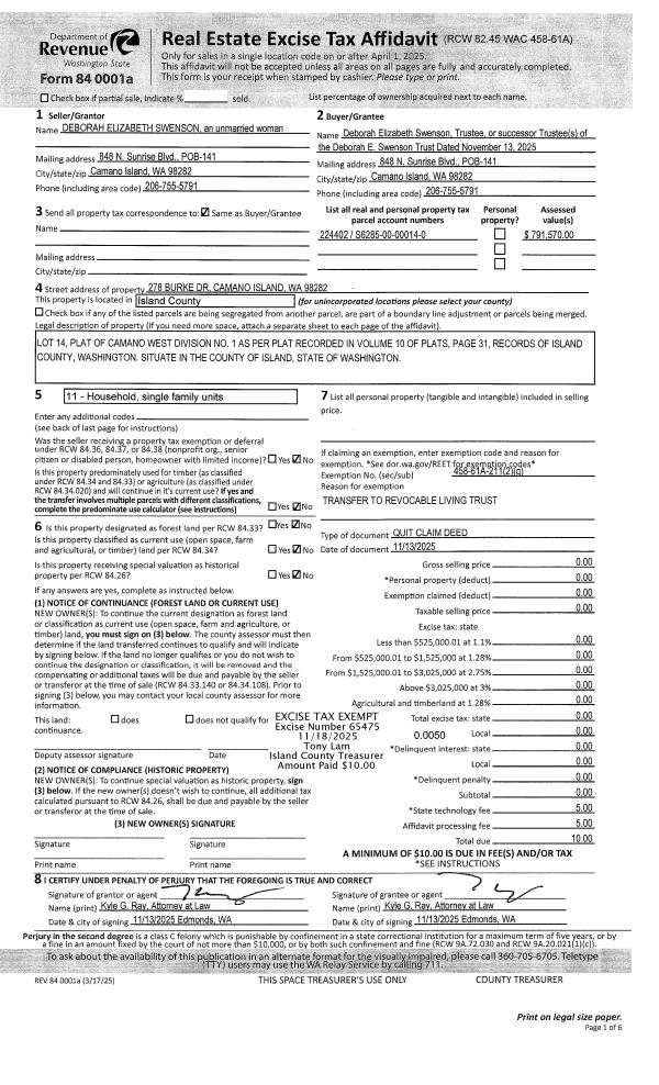
Property
Account |
| Property ID: | 708853 | Abbreviated Legal Description: | S660' OF W/2 W/2 SE SW TGW W66' OF E/2 SW SE SW EX CO RD |
| Geographic ID: | R13204-045-1500 | Agent Code: | |
| Type: | Real | | |
| Tax Area: | 112 - APPRAISER-OH Schl Dist, outside OH, improved, greater than 1 acre | Land Use Code | 11 |
| Open Space: | N | DFL | N |
| Historic Property: | N | Remodel Property: | N |
| Multi-Family Redevelopment: | N | | |
| Township: | 32 | Section: | 04 |
| Range: | R1 |
Location |
| Address: | 1484 FORT NUGENT RD OAK HARBOR, WA 98277 | Mapsco: | |
| Neighborhood: | Cycle 1 | Map ID: | 94 |
| Neighborhood CD: | 1 |
Owner |
| Name: | VINTAGE INVESTMENTS INC | Owner ID: | 195474 |
| Mailing Address: | PO BOX 973 ANACORTES, WA 98221-0973 | % Ownership: | 100.0000000000% |
| | | Exemptions: | |
Taxes and Assessment Details
Values
| (+) Improvement Homesite Value: | + | $0 | |
| (+) Improvement Non-Homesite Value: | + | $5,005 | |
| (+) Land Homesite Value: | + | $0 | |
| (+) Land Non-Homesite Value: | + | $290,000 | |
| (+) Curr Use (HS): | + | $0 | $0 |
| (+) Curr Use (NHS): | + | $0 | $0 |
| | | -------------------------- | |
| (=) Market Value: | = | $295,005 | |
| (–) Productivity Loss: | – | $0 | |
| | | -------------------------- | |
| (=) Subtotal: | = | $295,005 | |
| (+) Senior Appraised Value: | + | $0 | |
| (+) Non-Senior Appraised Value: | + | $295,005 | |
| | | -------------------------- | |
| (=) Total Appraised Value: | = | $295,005 | |
| (–) Senior Exemption Loss: | – | $0 | |
| (–) Exemption Loss: | – | $0 | |
| | | -------------------------- | |
| (=) Taxable Value: | = | $295,005 | |
Taxing Jurisdiction
| Owner: | VINTAGE INVESTMENTS INC | | |
| % Ownership: | 100.0000000000% | | |
| Total Value: | $295,005 | | |
| Tax Area: | 112 - APPRAISER-OH Schl Dist, outside OH, improved, greater than 1 acre |
| CF | Conservation Futures | 0.0316035091 | $295,005 | $295,005 | $9.32 | | |
| CEM1 | Cemetery #1 | 0.0040320932 | $295,005 | $295,005 | $1.19 | | |
| FIRE2 | Fire & Rescue Dist #2 N Whidbey GEN | 0.5475949600 | $295,005 | $295,005 | $161.54 | | |
| HOBOND | Hospital BOND | 0.1910887512 | $295,005 | $295,005 | $56.37 | | |
| HOGEN | Hospital GEN | 0.3902502903 | $295,005 | $295,005 | $115.13 | | |
| CE | County Current Expense | 0.3708482477 | $295,005 | $295,005 | $109.40 | | |
| CR | County Roads | 0.4584763726 | $295,005 | $295,005 | $135.25 | | |
| ISLANDEMS | Hospital GEN (EMS) | 0.5000000000 | $295,005 | $295,005 | $147.50 | | |
| LIB | Library Sno-Isle GEN | 0.3153421757 | $295,005 | $295,005 | $93.03 | | |
| NWHIDPRMT | P & R N Whidbey GEN | 0.2004466701 | $295,005 | $295,005 | $59.13 | | |
| SCH201MO | School 201 Enrichment | 1.8559231640 | $295,005 | $295,005 | $547.51 | | |
| ST | State School | 1.3035497053 | $295,005 | $295,005 | $384.55 | | |
| ST2 | State School Part 2 | 0.8169543533 | $295,005 | $295,005 | $241.01 | | |
| | Total Tax Rate: | 6.9861102925 | | | | | |
| | | | | Taxes w/Current Exemptions: | $2,060.93 | | |
| | | | | Taxes w/o Exemptions: | $2,060.93 | | |
Improvement / Building
| Improvement #1: | RESIDENTIAL | State Code: | F1 | 1140.0 sqft | Value: | $5,005 |
| Bathrooms: | 2 | Bedrooms: | 5 | | Ceiling: | PLASTER PAINTED | Exterior Wall/Cover: | VINYL | | Floor Covering: | SOFTWOOD/VINYL 60-40 | Floor Structure: | WOOD W/SUBFLOOR | | Foundation: | CONCRETE | Heating: | FHA OIL | | Interior Finish: | DRYWALL PAINT | Plumbing Fixture Cnt: | 8 | | Roof Slope: | 8" IN 12" | Roof Structure/Cover: | CJ ASPHALT |
|
| | Type | Description | Class CD | Sub Class CD | Year Built | Area |
| | BAS | BASE/MAIN FLOOR | 3 | 0 | 1935 | 1140.0 |
| | ATF | ATTIC FINISHED | 3 | 0 | 1935 | 608.0 |
| | UB6 | BASEMENT UNFINISHED 6" | 3 | 0 | 1935 | 1140.0 |
| | AGR | ATTACHED GARAGE | 3 | 0 | 1935 | 480.0 |
| | OWR | OPEN WOOD PORCH W/STEPS/ROOF | 3 | 0 | 1935 | 80.0 |
| | oSEP | SEPTIC | 3 | | 1935 | 0.0 |
Sketch
| No sketches available for this property. |
Property Image
Land
| 1 | 32 | AC (03.01-09.99) | 5.6200 | 0.00 | 0.00 | 0.00 | 1.00 | $290,000 | $0 |
Roll Value History
| 2026 | N/A | N/A | N/A | N/A | N/A |
| 2025 | $5,005 | $290,000 | $0 | $295,005 | $295,005 |
| 2024 | $5,005 | $260,000 | $0 | $265,005 | $265,005 |
| 2023 | $5,005 | $250,000 | $0 | $255,005 | $255,005 |
| 2022 | $4,948 | $220,000 | $0 | $224,948 | $224,948 |
| 2021 | $4,824 | $190,000 | $0 | $194,824 | $194,824 |
| 2020 | $4,793 | $140,000 | $0 | $144,793 | $144,793 |
| 2019 | $4,554 | $200,000 | $0 | $204,554 | $204,554 |
| 2018 | $4,554 | $170,000 | $0 | $174,554 | $174,554 |
| 2017 | $4,096 | $160,000 | $0 | $164,096 | $164,096 |
| 2016 | $4,096 | $160,000 | $0 | $164,096 | $164,096 |
| 2015 | $4,096 | $135,000 | $0 | $139,096 | $139,096 |
| 2014 | $4,096 | $140,500 | $0 | $144,596 | $144,596 |
| 2013 | $4,126 | $303,480 | $0 | $307,606 | $307,606 |
| 2012 | $4,157 | $303,480 | $0 | $307,637 | $307,637 |
| 2011 | $54,385 | $337,200 | $0 | $391,585 | $391,585 |
| 2010 | $0 | $337,200 | $0 | $337,200 | $337,200 |
| 2009 | $0 | $477,700 | $0 | $477,700 | $477,700 |
| 2008 | $0 | $512,291 | $0 | $512,291 | $512,291 |
| 2007 | $0 | $512,291 | $0 | $512,291 | $512,291 |
Deed and Sales History
| 1 | 08/16/2005 | WD | Warranty Deed | COVEY, JOHN F | VINTAGE INVESTMENTS INC, | | | $520,000.00 | 54016 | 4144195 |
| 2 | 01/01/1991 | QCD | Quit Claim Deed | Unknown | COVEY, JOHN F | | | $0.00 | 10812 | 91003580 |
Payout Agreement
| No payout information available.. |