Property
Account |
| Property ID: | 708899 | Abbreviated Legal Description: | 25 - S/2 NW SW SE EX CO RD |
| Geographic ID: | R13205-082-2990 | Agent Code: | |
| Type: | Real | | |
| Tax Area: | 112 - APPRAISER-OH Schl Dist, outside OH, improved, greater than 1 acre | Land Use Code | 11 |
| Open Space: | N | DFL | N |
| Historic Property: | N | Remodel Property: | N |
| Multi-Family Redevelopment: | N | | |
| Township: | 32 | Section: | 05 |
| Range: | R1 |
Location |
| Address: | 2344 ZYLSTRA RD OAK HARBOR, WA 98277 | Mapsco: | |
| Neighborhood: | Cycle 1 | Map ID: | 99 |
| Neighborhood CD: | 1 |
Owner |
| Name: | TAJEC PROPERTIES LLC | Owner ID: | 287536 |
| Mailing Address: | 2111MONTE VISTA LN OAK HARBOR, WA 98277 | % Ownership: | 100.0000000000% |
| | | Exemptions: | |
Taxes and Assessment Details
Values
| (+) Improvement Homesite Value: | + | $0 | |
| (+) Improvement Non-Homesite Value: | + | $568,501 | |
| (+) Land Homesite Value: | + | $0 | |
| (+) Land Non-Homesite Value: | + | $290,000 | |
| (+) Curr Use (HS): | + | $0 | $0 |
| (+) Curr Use (NHS): | + | $0 | $0 |
| | | -------------------------- | |
| (=) Market Value: | = | $858,501 | |
| (–) Productivity Loss: | – | $0 | |
| | | -------------------------- | |
| (=) Subtotal: | = | $858,501 | |
| (+) Senior Appraised Value: | + | $0 | |
| (+) Non-Senior Appraised Value: | + | $858,501 | |
| | | -------------------------- | |
| (=) Total Appraised Value: | = | $858,501 | |
| (–) Senior Exemption Loss: | – | $0 | |
| (–) Exemption Loss: | – | $0 | |
| | | -------------------------- | |
| (=) Taxable Value: | = | $858,501 | |
Taxing Jurisdiction
| Owner: | TAJEC PROPERTIES LLC | | |
| % Ownership: | 100.0000000000% | | |
| Total Value: | $858,501 | | |
| Tax Area: | 112 - APPRAISER-OH Schl Dist, outside OH, improved, greater than 1 acre |
| CF | Conservation Futures | 0.0316035091 | $858,501 | $858,501 | $27.13 | | |
| CEM1 | Cemetery #1 | 0.0040320932 | $858,501 | $858,501 | $3.46 | | |
| FIRE2 | Fire & Rescue Dist #2 N Whidbey GEN | 0.5475949600 | $858,501 | $858,501 | $470.11 | | |
| HOBOND | Hospital BOND | 0.1910887512 | $858,501 | $858,501 | $164.05 | | |
| HOGEN | Hospital GEN | 0.3902502903 | $858,501 | $858,501 | $335.03 | | |
| CE | County Current Expense | 0.3708482477 | $858,501 | $858,501 | $318.37 | | |
| CR | County Roads | 0.4584763726 | $858,501 | $858,501 | $393.60 | | |
| ISLANDEMS | Hospital GEN (EMS) | 0.5000000000 | $858,501 | $858,501 | $429.25 | | |
| LIB | Library Sno-Isle GEN | 0.3153421757 | $858,501 | $858,501 | $270.72 | | |
| NWHIDPRMT | P & R N Whidbey GEN | 0.2004466701 | $858,501 | $858,501 | $172.08 | | |
| SCH201MO | School 201 Enrichment | 1.8559231640 | $858,501 | $858,501 | $1,593.31 | | |
| ST | State School | 1.3035497053 | $858,501 | $858,501 | $1,119.10 | | |
| ST2 | State School Part 2 | 0.8169543533 | $858,501 | $858,501 | $701.36 | | |
| | Total Tax Rate: | 6.9861102925 | | | | | |
| | | | | Taxes w/Current Exemptions: | $5,997.57 | | |
| | | | | Taxes w/o Exemptions: | $5,997.57 | | |
Improvement / Building
| Improvement #1: | RESIDENTIAL | State Code: | Y | 1012.0 sqft | Value: | $192,992 |
| Bathrooms: | 0 | Bedrooms: | 0 | | Ceiling: | DRY WALL SPRAYED | Exterior Wall/Cover: | CEMENT FIBER | | Floor Covering: | VINYL 100% | Floor Structure: | WOOD W/SUBFLOOR | | Foundation: | SLAB | Heating: | FHA GAS | | Interior Finish: | DRYWALL PAINT | Plumbing Fixture Cnt: | 10 | | Roof Slope: | 3" IN 12" | Roof Structure/Cover: | CJ ASPHALT |
|
| | Type | Description | Class CD | Sub Class CD | Year Built | Area |
| | BAS | BASE/MAIN FLOOR | 3 | 0 | 2003 | 528.0 |
| | UPS | UPPER STORY | 3 | 0 | 2003 | 484.0 |
| | OWP | OPEN WOOD PORCH W/STEPS | 3 | 0 | 2003 | 154.0 |
| Improvement #2: | RESIDENTIAL | State Code: | Y | 1547.0 sqft | Value: | $375,509 |
| Bathrooms: | 2 | Bedrooms: | 2 | | Ceiling: | DRYWALL PAINTED | Cooling: | HEAT PUMP/CONV/V | | Exterior Wall/Cover: | WOOD SIDING | Floor Covering: | HARDWOOD/CARP 80-20 | | Floor Structure: | WOOD W/SUBFLOOR | Foundation: | CONCRETE | | Interior Finish: | DRYWALL PAINT | Plumbing Fixture Cnt: | 8 | | Roof Slope: | 4" IN 12" | Roof Structure/Cover: | CJ ASPHALT |
|
| | Type | Description | Class CD | Sub Class CD | Year Built | Area |
| | BAS | BASE/MAIN FLOOR | 3 | 0 | 1966 | 1547.0 |
| | ENP | ENCLOSED PORCH | 3 | 0 | 1966 | 576.0 |
| | CPD | OPEN CARPORT DIRT FLOOR | 3 | 0 | 1966 | 378.0 |
| | DGR | DETACHED GARAGE | 3 | 0 | 1966 | 960.0 |
| | UTY | STORAGE/UTILITY | 3 | 0 | 1966 | 216.0 |
| | OWP | OPEN WOOD PORCH W/STEPS | 3 | 0 | 1966 | 452.1 |
| | OWP | OPEN WOOD PORCH W/STEPS | 3 | 0 | 1966 | 100.0 |
Sketch
Property Image
Land
| 1 | 32 | AC (03.01-09.99) | 4.8500 | 0.00 | 0.00 | 0.00 | 1.00 | $290,000 | $0 |
Roll Value History
| 2026 | N/A | N/A | N/A | N/A | N/A |
| 2025 | $568,501 | $290,000 | $0 | $858,501 | $858,501 |
| 2024 | $575,117 | $260,000 | $0 | $835,117 | $835,117 |
| 2023 | $575,117 | $250,000 | $0 | $825,117 | $825,117 |
| 2022 | $526,747 | $220,000 | $0 | $746,747 | $746,747 |
| 2021 | $462,818 | $190,000 | $0 | $652,818 | $652,818 |
| 2020 | $449,995 | $140,000 | $0 | $589,995 | $589,995 |
| 2019 | $325,363 | $200,000 | $0 | $525,363 | $525,363 |
| 2018 | $295,057 | $170,000 | $0 | $465,057 | $465,057 |
| 2017 | $290,105 | $160,000 | $0 | $450,105 | $450,105 |
| 2016 | $219,531 | $160,000 | $0 | $379,531 | $379,531 |
| 2015 | $222,106 | $135,000 | $0 | $357,106 | $357,106 |
| 2014 | $224,682 | $135,000 | $0 | $359,682 | $359,682 |
| 2013 | $227,256 | $120,038 | $0 | $347,294 | $347,294 |
| 2012 | $229,831 | $120,038 | $0 | $349,869 | $349,869 |
| 2011 | $168,009 | $133,375 | $0 | $301,384 | $301,384 |
| 2010 | $180,439 | $133,375 | $0 | $313,814 | $313,814 |
| 2009 | $186,989 | $181,875 | $0 | $368,864 | $368,864 |
| 2008 | $193,332 | $181,875 | $0 | $375,207 | $375,207 |
| 2007 | $194,681 | $181,875 | $0 | $376,556 | $376,556 |
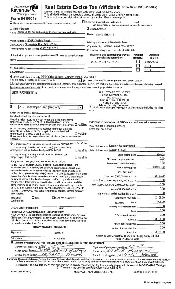
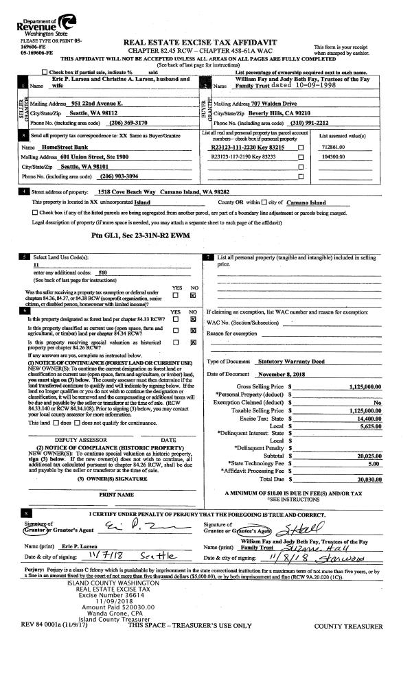
Deed and Sales History
| 1 | 12/18/2020 | QCD | Quit Claim Deed | FITZGERALD, TYLER FALLS | TAJEC PROPERTIES LLC | | | $0.00 | 47805 | 4516607 |
| 2 | 12/18/2020 | QCD | Quit Claim Deed | TAJEC PROPERTIES LLC | FITZGERALD, TYLER FALLS | | | $0.00 | 46290 | 4506189 |
| 3 | 10/15/2018 | QCD | Quit Claim Deed | FITZGERALD, TYLER | TAJEC PROPERTIES LLC | | | $0.00 | 36332 | 4453583 |
| 4 | 10/01/2018 | WD | Warranty Deed | TURPIN, ANTHONY A | FITZGERALD, TYLER | | | $530,000.00 | 36211 | 4453098 |
| 5 | 06/08/2016 | WD | Warranty Deed | MCDONALD TTEE, HERBERT B | TURPIN, ANTHONY A | | | $439,000.00 | 24803 | 4401356 |
| 6 | 12/20/2005 | 5 | DNU - Marriage License/Name Change | MCDONALD, HERBERT B | MCDONALD TTEE, HERBERT B | | | $0.00 | 64879 | 4187011 |
| 7 | 01/26/2000 | TRUSTEED | Trustee's Deed | THE SEVERIN GROUP INC, | MCDONALD, HERBERT B | | | $0.00 | 10419 | 20025096 |
| 8 | 07/26/2000 | WD | Warranty Deed | GOGUEN, EDNA P | THE SEVERIN GROUP INC, | | | $165,000.00 | 2810 | 20013254 |
| 9 | 01/01/1988 | PRD | Personal Representatives Deed | GOGUEN, JOSEPH M | GOGUEN, EDNA P | | | $0.00 | 82517 | 88009482 |
| 10 | 01/01/1900 | OTHER | Other - Misc. Documents | Unknown | GOGUEN, JOSEPH M | | | $0.00 | 0 | 0 |
Payout Agreement
| No payout information available.. |