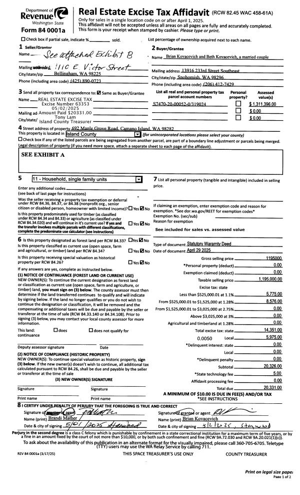
Property
Account |
| Property ID: | 709264 | Abbreviated Legal Description: | 2.9500 Acres ins Section 22s Township 32s Range R1s LOT B BLA 113-16 TL 11 IN GL1;s |
| Geographic ID: | R13222-162-4520 | Agent Code: | |
| Type: | Real | | |
| Tax Area: | 112 - APPRAISER-OH Schl Dist, outside OH, improved, greater than 1 acre | Land Use Code | 11 |
| Open Space: | N | DFL | N |
| Historic Property: | N | Remodel Property: | N |
| Multi-Family Redevelopment: | N | | |
| Township: | 32 | Section: | 22 |
| Range: | R1 |
Location |
| Address: | 898 SCENIC HEIGHTS RD OAK HARBOR, WA 98277 | Mapsco: | |
| Neighborhood: | Area 2 Waterfront Eastside Res | Map ID: | 154 |
| Neighborhood CD: | 2WFTE01R |
Owner |
| Name: | ADAMYK, ANDREW JAMES | Owner ID: | 257280 |
| Mailing Address: | CAROLINE RENARD ADAMYK 898 SCENIC HEIGHTS RD OAK HARBOR, WA 98277 | % Ownership: | 100.0000000000% |
| | | Exemptions: | |
Taxes and Assessment Details
Values
| (+) Improvement Homesite Value: | + | $0 | |
| (+) Improvement Non-Homesite Value: | + | $883,623 | |
| (+) Land Homesite Value: | + | $0 | |
| (+) Land Non-Homesite Value: | + | $630,000 | |
| (+) Curr Use (HS): | + | $0 | $0 |
| (+) Curr Use (NHS): | + | $0 | $0 |
| | | -------------------------- | |
| (=) Market Value: | = | $1,513,623 | |
| (–) Productivity Loss: | – | $0 | |
| | | -------------------------- | |
| (=) Subtotal: | = | $1,513,623 | |
| (+) Senior Appraised Value: | + | $0 | |
| (+) Non-Senior Appraised Value: | + | $1,513,623 | |
| | | -------------------------- | |
| (=) Total Appraised Value: | = | $1,513,623 | |
| (–) Senior Exemption Loss: | – | $0 | |
| (–) Exemption Loss: | – | $0 | |
| | | -------------------------- | |
| (=) Taxable Value: | = | $1,513,623 | |
Taxing Jurisdiction
| Owner: | ADAMYK, ANDREW JAMES | | |
| % Ownership: | 100.0000000000% | | |
| Total Value: | $1,513,623 | | |
| Tax Area: | 112 - APPRAISER-OH Schl Dist, outside OH, improved, greater than 1 acre |
| CF | Conservation Futures | 0.0316035091 | $1,513,623 | $1,513,623 | $47.84 | | |
| CEM1 | Cemetery #1 | 0.0040320932 | $1,513,623 | $1,513,623 | $6.10 | | |
| FIRE2 | Fire & Rescue Dist #2 N Whidbey GEN | 0.5475949600 | $1,513,623 | $1,513,623 | $828.85 | | |
| HOBOND | Hospital BOND | 0.1910887512 | $1,513,623 | $1,513,623 | $289.24 | | |
| HOGEN | Hospital GEN | 0.3902502903 | $1,513,623 | $1,513,623 | $590.69 | | |
| CE | County Current Expense | 0.3708482477 | $1,513,623 | $1,513,623 | $561.32 | | |
| CR | County Roads | 0.4584763726 | $1,513,623 | $1,513,623 | $693.96 | | |
| ISLANDEMS | Hospital GEN (EMS) | 0.5000000000 | $1,513,623 | $1,513,623 | $756.81 | | |
| LIB | Library Sno-Isle GEN | 0.3153421757 | $1,513,623 | $1,513,623 | $477.31 | | |
| NWHIDPRMT | P & R N Whidbey GEN | 0.2004466701 | $1,513,623 | $1,513,623 | $303.40 | | |
| SCH201MO | School 201 Enrichment | 1.8559231640 | $1,513,623 | $1,513,623 | $2,809.17 | | |
| ST | State School | 1.3035497053 | $1,513,623 | $1,513,623 | $1,973.08 | | |
| ST2 | State School Part 2 | 0.8169543533 | $1,513,623 | $1,513,623 | $1,236.56 | | |
| | Total Tax Rate: | 6.9861102925 | | | | | |
| | | | | Taxes w/Current Exemptions: | $10,574.33 | | |
| | | | | Taxes w/o Exemptions: | $10,574.33 | | |
Improvement / Building
| Improvement #1: | RESIDENTIAL | State Code: | Y | 2817.0 sqft | Value: | $700,742 |
| Bathrooms: | 2.5 | Bedrooms: | 2 | | Ceiling: | DRYWALL PAINTED | Exterior Wall/Cover: | CEMENT FIBER | | Floor Covering: | HARDWOOD/CARP 20-80 | Floor Structure: | WOOD W/SUBFLOOR | | Foundation: | CONCRETE | Heating: | RADIANT FLOOR | | Interior Finish: | DRYWALL PAINT | Plumbing Fixture Cnt: | 12 | | Roof Slope: | FLAT | Roof Structure/Cover: | BEAM ALUMINUM HEAVY |
|
| | Type | Description | Class CD | Sub Class CD | Year Built | Area |
| | BAS | BASE/MAIN FLOOR | 5 | 0 | 2017 | 1818.0 |
| | DWN | DOWNSTAIRS LIVING AREA | 5 | 0 | 2017 | 999.0 |
| | OWP | OPEN WOOD PORCH W/STEPS | 5 | 0 | 2017 | 430.9 |
| | OWC | OPEN WOOD PORCH W/STEPS/ROOF/C | 5 | 0 | 2017 | 39.0 |
| | OWP | OPEN WOOD PORCH W/STEPS | 5 | 0 | 2017 | 212.9 |
| | OWC | OPEN WOOD PORCH W/STEPS/ROOF/C | 5 | 0 | 2017 | 70.0 |
| | OP4 | OPEN PORCH W/CEILING-ROOF | 5 | 0 | 2017 | 104.0 |
| Improvement #2: | RESIDENTIAL | State Code: | Y | 440.0 sqft | Value: | $173,854 |
| Bathrooms: | 2.5 | Bedrooms: | 2 | | Ceiling: | DRYWALL PAINTED | Exterior Wall/Cover: | CEMENT FIBER | | Floor Covering: | HARDWOOD/CARP 20-80 | Floor Structure: | WOOD W/SUBFLOOR | | Foundation: | CONCRETE | Heating: | RADIANT FLOOR | | Interior Finish: | DRYWALL PAINT | Plumbing Fixture Cnt: | 6 | | Roof Slope: | FLAT | Roof Structure/Cover: | BEAM ALUMINUM HEAVY |
|
| | Type | Description | Class CD | Sub Class CD | Year Built | Area |
| | BAS | BASE/MAIN FLOOR | 4 | 0 | 2017 | 440.0 |
| | DGR | DETACHED GARAGE | 4 | 0 | 2017 | 440.0 |
| | OP2 | OPEN PORCH W/STEPS | 4 | 0 | 2017 | 64.0 |
| | BAI | BALCONY IRON RAIL | 4 | 0 | 2017 | 52.0 |
| Improvement #3: | RESIDENTIAL | State Code: | Y | 0.0 sqft | Value: | $9,027 |
Sketch
Property Image
Land
| 1 | HB | HIGH BLUFF | 2.9500 | 128502.00 | 280.00 | 0.00 | 1.00 | $630,000 | $0 |
Roll Value History
| 2026 | N/A | N/A | N/A | N/A | N/A |
| 2025 | $883,623 | $630,000 | $0 | $1,513,623 | $1,513,623 |
| 2024 | $656,275 | $600,000 | $0 | $1,256,275 | $1,256,275 |
| 2023 | $661,577 | $600,000 | $0 | $1,261,577 | $1,261,577 |
| 2022 | $604,258 | $520,000 | $0 | $1,124,258 | $1,124,258 |
| 2021 | $423,533 | $400,000 | $0 | $823,533 | $823,533 |
| 2020 | $412,841 | $400,000 | $0 | $812,841 | $812,841 |
| 2019 | $349,050 | $400,000 | $0 | $749,050 | $749,050 |
| 2018 | $370,567 | $400,000 | $0 | $770,567 | $770,567 |
| 2017 | $227,729 | $400,000 | $0 | $627,729 | $627,729 |
| 2016 | $83,312 | $400,000 | $0 | $483,312 | $483,312 |
| 2015 | $84,796 | $400,000 | $0 | $484,796 | $484,796 |
| 2014 | $86,283 | $400,000 | $0 | $486,283 | $486,283 |
| 2013 | $87,768 | $421,568 | $0 | $509,336 | $509,336 |
| 2012 | $87,746 | $421,568 | $0 | $509,314 | $509,314 |
| 2011 | $89,245 | $421,568 | $0 | $510,813 | $510,813 |
| 2010 | $0 | $100,026 | $530 | $530 | $530 |
| 2009 | $0 | $409,268 | $530 | $530 | $530 |
| 2008 | $0 | $409,268 | $530 | $530 | $530 |
| 2007 | $0 | $12,390 | $530 | $530 | $530 |
Deed and Sales History
| 1 | 10/14/2016 | QCD | Quit Claim Deed | MUZZALL, RONALD E | ADAMYK, ANDREW JAMES | | | $0.00 | 27260 | 4413160 |
| 2 | 03/29/2012 | WD | Warranty Deed | VANDERBEEK, SUSAN E | ADAMYK, ANDREW JAMES | | | $485,000.00 | 7287 | 4312926 |
| 3 | 04/09/2010 | WD | Warranty Deed | VANDERBEEK, LAURA M | VANDERBEEK, SUSAN E | | | | 1591 | 4276386 |
| 4 | 06/17/2010 | ESTSEPPROP | Establish Separate Property | VANDERBEEK, LAURA M | | | | | 1585 | 4276380 |
| 5 | 08/01/2002 | QCD | Quit Claim Deed | VANDERBEEK, LAURA M | VANDERBEEK, LAURA M | | | $0.00 | 23056 | 4027577 |
| 6 | 05/01/1996 | QCD | Quit Claim Deed | VANDERBEEK, LAURA M | VANDERBEEK, LAURA M | | | $0.00 | 61727 | 96008563 |
| 7 | 05/01/1996 | QCD | Quit Claim Deed | VANDERBEEK, LAURA M | VANDERBEEK, LAURA M | | | $0.00 | 61727 | 96008563 |
| 8 | 07/01/1971 | CD | DNU - Correction Deed | MUZZALL, EDNA Z | VANDERBEEK, LAURA M | | | $0.00 | 42647 | 0 |
| 9 | 01/01/1900 | OTHER | Other - Misc. Documents | VANDERBEEK, LAURA M | MUZZALL, EDNA Z | | | $0.00 | 0 | 0 |
| 10 | 01/01/1900 | OTHER | Other - Misc. Documents | Unknown | VANDERBEEK, LAURA M | | | $0.00 | 0 | 0 |
Payout Agreement
| No payout information available.. |