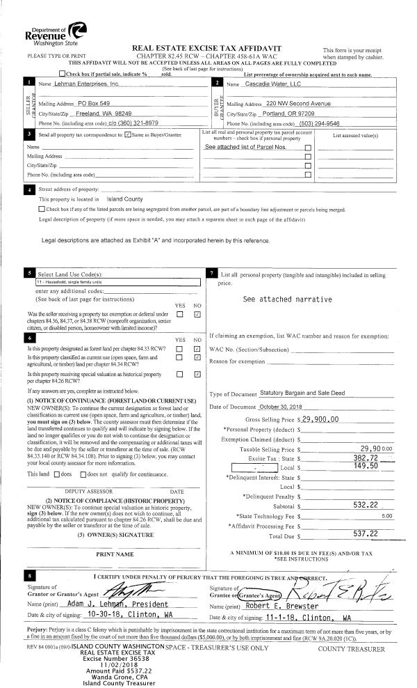
Property
Account |
| Property ID: | 709291 | Abbreviated Legal Description: | 9 - IN GL 6: BG NECR GL 6 S20'TO SLN CO RD TPB S250' N89*W275' N250' S89*E TPB EX 20'R/W ALG ELN |
| Geographic ID: | R13230-249-0750 | Agent Code: | |
| Type: | Real | | |
| Tax Area: | 332 - APPRAISER-Cpvl Schl Dist, Special Dist, improved, greater than 1 acre | Land Use Code | 11 |
| Open Space: | N | DFL | N |
| Historic Property: | N | Remodel Property: | N |
| Multi-Family Redevelopment: | N | | |
| Township: | 32 | Section: | 30 |
| Range: | R1 |
Location |
| Address: | 2341 LIBBEY RD COUPEVILLE, WA 98239 | Mapsco: | |
| Neighborhood: | Cycle 2 | Map ID: | 162 |
| Neighborhood CD: | 2 |
Owner |
| Name: | ISLAND ASSOCIATES LLC | Owner ID: | 314293 |
| Mailing Address: | PO BOX 911 OAK HARBOR, WA 98277 | % Ownership: | 100.0000000000% |
| | | Exemptions: | |
Taxes and Assessment Details
Values
| (+) Improvement Homesite Value: | + | $0 | |
| (+) Improvement Non-Homesite Value: | + | $210,784 | |
| (+) Land Homesite Value: | + | $0 | |
| (+) Land Non-Homesite Value: | + | $281,867 | |
| (+) Curr Use (HS): | + | $0 | $0 |
| (+) Curr Use (NHS): | + | $0 | $0 |
| | | -------------------------- | |
| (=) Market Value: | = | $492,651 | |
| (–) Productivity Loss: | – | $0 | |
| | | -------------------------- | |
| (=) Subtotal: | = | $492,651 | |
| (+) Senior Appraised Value: | + | $0 | |
| (+) Non-Senior Appraised Value: | + | $492,651 | |
| | | -------------------------- | |
| (=) Total Appraised Value: | = | $492,651 | |
| (–) Senior Exemption Loss: | – | $0 | |
| (–) Exemption Loss: | – | $0 | |
| | | -------------------------- | |
| (=) Taxable Value: | = | $492,651 | |
Taxing Jurisdiction
| Owner: | ISLAND ASSOCIATES LLC | | |
| % Ownership: | 100.0000000000% | | |
| Total Value: | $492,651 | | |
| Tax Area: | 332 - APPRAISER-Cpvl Schl Dist, Special Dist, improved, greater than 1 acre |
| CF | Conservation Futures | 0.0316035091 | $492,651 | $492,651 | $15.57 | | |
| CEM2 | Cemetery #2 | 0.0095056933 | $492,651 | $492,651 | $4.68 | | |
| FIRE2 | Fire & Rescue Dist #2 N Whidbey GEN | 0.5475949600 | $492,651 | $492,651 | $269.77 | | |
| HOBOND | Hospital BOND | 0.1910887512 | $492,651 | $492,651 | $94.14 | | |
| HOGEN | Hospital GEN | 0.3902502903 | $492,651 | $492,651 | $192.26 | | |
| CE | County Current Expense | 0.3708482477 | $492,651 | $492,651 | $182.70 | | |
| CR | County Roads | 0.4584763726 | $492,651 | $492,651 | $225.87 | | |
| ISLANDEMS | Hospital GEN (EMS) | 0.5000000000 | $492,651 | $492,651 | $246.33 | | |
| LIB | Library Sno-Isle GEN | 0.3153421757 | $492,651 | $492,651 | $155.35 | | |
| LIBCAP | Library Sno-Isle BOND (Cap Fac Imp Area) | 0.0543427938 | $492,651 | $492,651 | $26.77 | | |
| POCOUP | Port of Coupeville GEN | 0.1093371703 | $492,651 | $492,651 | $53.87 | | |
| POCOUPIDD | Port of Coupeville IDD | 0.3409740022 | $492,651 | $492,651 | $167.98 | | |
| COUPSDTECH | School 204 CP (TECH) | 0.7545480007 | $492,651 | $492,651 | $371.73 | | |
| SCH204MO | School 204 Enrichment | 0.6716186034 | $492,651 | $492,651 | $330.87 | | |
| ST | State School | 1.3035497053 | $492,651 | $492,651 | $642.20 | | |
| ST2 | State School Part 2 | 0.8169543533 | $492,651 | $492,651 | $402.47 | | |
| | Total Tax Rate: | 6.8660346289 | | | | | |
| | | | | Taxes w/Current Exemptions: | $3,382.56 | | |
| | | | | Taxes w/o Exemptions: | $3,382.56 | | |
Improvement / Building
| Improvement #1: | RESIDENTIAL | State Code: | Y | 1146.3 sqft | Value: | $210,784 |
| Bathrooms: | 1 | Bedrooms: | 2 | | Ceiling: | DRY WALL SPRAYED | Exterior Wall/Cover: | PLY/HARDBOARD T-111 | | Floor Covering: | CARPET/VINYL 20-80 | Floor Structure: | WOOD W/SUBFLOOR | | Foundation: | CONCRETE | Heating: | HEAT PUMP | | Interior Finish: | DRYWALL PAINT | Plumbing Fixture Cnt: | 6 | | Roof Slope: | 3" IN 12" | Roof Structure/Cover: | CJ ASPHALT |
|
| | Type | Description | Class CD | Sub Class CD | Year Built | Area |
| | BAS | BASE/MAIN FLOOR | 3 | 0 | 1937 | 1146.3 |
| | UB6 | BASEMENT UNFINISHED 6" | 3 | 0 | 1937 | 433.6 |
| | OWC | OPEN WOOD PORCH W/STEPS/ROOF/C | 3 | 0 | 1937 | 90.0 |
| | OWR | OPEN WOOD PORCH W/STEPS/ROOF | 3 | 0 | 1937 | 162.5 |
| | UTY | STORAGE/UTILITY | 3 | 0 | 1937 | 312.0 |
Sketch
Property Image
Land
| 1 | HS | HOMESITE | 1.0000 | 43560.00 | 0.00 | 0.00 | 1.00 | $220,000 | $0 |
| 2 | 91 | UNDEVELOPED LAND-METES AND BOUNDS | 0.5800 | 25264.80 | 0.00 | 0.00 | 1.00 | $61,867 | $0 |
Roll Value History
| 2026 | N/A | N/A | N/A | N/A | N/A |
| 2025 | $210,784 | $281,867 | $0 | $492,651 | $492,651 |
| 2024 | $198,762 | $270,000 | $0 | $468,762 | $468,762 |
| 2023 | $201,515 | $260,000 | $0 | $461,515 | $461,515 |
| 2022 | $184,967 | $250,000 | $0 | $434,967 | $434,967 |
| 2021 | $163,004 | $150,000 | $0 | $313,004 | $313,004 |
| 2020 | $159,149 | $150,000 | $0 | $309,149 | $309,149 |
| 2019 | $115,058 | $180,000 | $0 | $295,058 | $295,058 |
| 2018 | $87,666 | $160,000 | $0 | $247,666 | $247,666 |
| 2017 | $88,235 | $125,000 | $0 | $213,235 | $213,235 |
| 2016 | $77,026 | $125,000 | $0 | $202,026 | $202,026 |
| 2015 | $70,349 | $105,000 | $0 | $175,349 | $175,349 |
| 2014 | $34,518 | $85,000 | $0 | $119,518 | $119,518 |
| 2013 | $35,380 | $85,000 | $0 | $120,380 | $120,380 |
| 2012 | $42,736 | $85,000 | $0 | $127,736 | $127,736 |
| 2011 | $43,702 | $100,000 | $0 | $143,702 | $143,702 |
| 2010 | $51,778 | $100,000 | $0 | $151,778 | $151,778 |
| 2009 | $53,281 | $116,000 | $0 | $169,281 | $169,281 |
| 2008 | $54,267 | $99,200 | $0 | $153,467 | $153,467 |
| 2007 | $55,252 | $70,500 | $0 | $125,752 | $125,752 |
Deed and Sales History
| 1 | 10/20/2024 | WD | Warranty Deed | HULS, CHRISTIAN L | ISLAND ASSOCIATES LLC | | | $205,000.00 | 61627 | 4578474 |
| 2 | 03/03/2011 | WD | Warranty Deed | GMAC MORTGAGE LLC | HULS, CHRISTIAN L | | | $75,000.00 | 3847 | 4292135 |
| 3 | 11/12/2010 | TRUSTEED | Trustee's Deed | DEL FAVE, MATHEW | GMAC MORTGAGE LLC | | | $93,500.00 | 3155 | 4286993 |
| 4 | 12/19/2001 | WD | Warranty Deed | SILVIA, LILLIAN S | DEL FAVE, MATHEW | | | $91,500.00 | 14811 | 4006517 |
| 5 | 04/01/1984 | OTHER | Other - Misc. Documents | SILVIA, JOHN P | SILVIA, LILLIAN S | | | $0.00 | 60548 | 0 |
| 6 | 08/01/1970 | TRUSTEED | Trustee's Deed | GAMACHE, LOUIS J | SILVIA, JOHN P | | | $6,500.00 | 39193 | 0 |
| 7 | 01/01/1900 | OTHER | Other - Misc. Documents | Unknown | GAMACHE, LOUIS J | | | $0.00 | 0 | 0 |
Payout Agreement
| No payout information available.. |