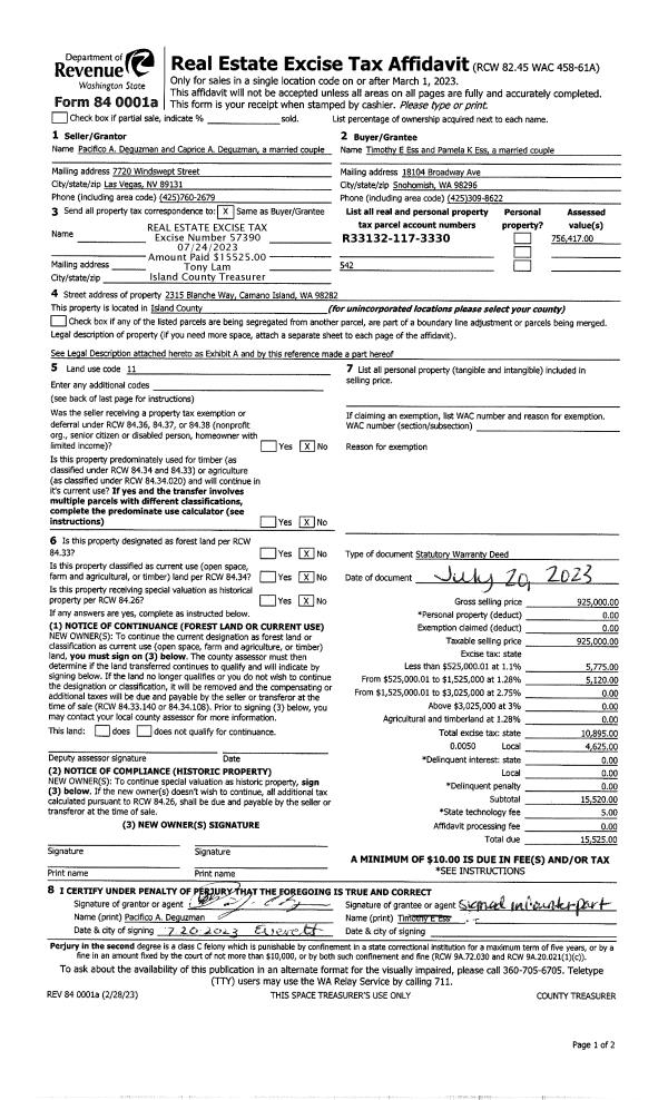
Property
Account |
| Property ID: | 709442 | Abbreviated Legal Description: | 45 - W100' OF E500' OF S/2 SW NW EX RD FROM(R13301-298-0879) |
| Geographic ID: | R13301-298-0870 | Agent Code: | |
| Type: | Real | | |
| Tax Area: | 112 - APPRAISER-OH Schl Dist, outside OH, improved, greater than 1 acre | Land Use Code | 11 |
| Open Space: | N | DFL | N |
| Historic Property: | N | Remodel Property: | N |
| Multi-Family Redevelopment: | N | | |
| Township: | 33 | Section: | 01 |
| Range: | R1 |
Location |
| Address: | 334 W TROXELL RD OAK HARBOR, WA 98277 | Mapsco: | |
| Neighborhood: | Cycle 6 | Map ID: | 191 |
| Neighborhood CD: | 6 |
Owner |
| Name: | DAVIS, KATHLEEN G | Owner ID: | 71364 |
| Mailing Address: | 324 W TROXELL RD OAK HARBOR, WA 98277-7909 | % Ownership: | 100.0000000000% |
| | | Exemptions: | |
Taxes and Assessment Details
Values
| (+) Improvement Homesite Value: | + | $0 | |
| (+) Improvement Non-Homesite Value: | + | $6,502 | |
| (+) Land Homesite Value: | + | $0 | |
| (+) Land Non-Homesite Value: | + | $210,000 | |
| (+) Curr Use (HS): | + | $0 | $0 |
| (+) Curr Use (NHS): | + | $0 | $0 |
| | | -------------------------- | |
| (=) Market Value: | = | $216,502 | |
| (–) Productivity Loss: | – | $0 | |
| | | -------------------------- | |
| (=) Subtotal: | = | $216,502 | |
| (+) Senior Appraised Value: | + | $0 | |
| (+) Non-Senior Appraised Value: | + | $216,502 | |
| | | -------------------------- | |
| (=) Total Appraised Value: | = | $216,502 | |
| (–) Senior Exemption Loss: | – | $0 | |
| (–) Exemption Loss: | – | $0 | |
| | | -------------------------- | |
| (=) Taxable Value: | = | $216,502 | |
Taxing Jurisdiction
| Owner: | DAVIS, KATHLEEN G | | |
| % Ownership: | 100.0000000000% | | |
| Total Value: | $216,502 | | |
| Tax Area: | 112 - APPRAISER-OH Schl Dist, outside OH, improved, greater than 1 acre |
| CF | Conservation Futures | 0.0316035091 | $216,502 | $216,502 | $6.84 | | |
| CEM1 | Cemetery #1 | 0.0040320932 | $216,502 | $216,502 | $0.87 | | |
| FIRE2 | Fire & Rescue Dist #2 N Whidbey GEN | 0.5475949600 | $216,502 | $216,502 | $118.56 | | |
| HOBOND | Hospital BOND | 0.1910887512 | $216,502 | $216,502 | $41.37 | | |
| HOGEN | Hospital GEN | 0.3902502903 | $216,502 | $216,502 | $84.49 | | |
| CE | County Current Expense | 0.3708482477 | $216,502 | $216,502 | $80.29 | | |
| CR | County Roads | 0.4584763726 | $216,502 | $216,502 | $99.26 | | |
| ISLANDEMS | Hospital GEN (EMS) | 0.5000000000 | $216,502 | $216,502 | $108.25 | | |
| LIB | Library Sno-Isle GEN | 0.3153421757 | $216,502 | $216,502 | $68.27 | | |
| NWHIDPRMT | P & R N Whidbey GEN | 0.2004466701 | $216,502 | $216,502 | $43.40 | | |
| SCH201MO | School 201 Enrichment | 1.8559231640 | $216,502 | $216,502 | $401.81 | | |
| ST | State School | 1.3035497053 | $216,502 | $216,502 | $282.22 | | |
| ST2 | State School Part 2 | 0.8169543533 | $216,502 | $216,502 | $176.87 | | |
| | Total Tax Rate: | 6.9861102925 | | | | | |
| | | | | Taxes w/Current Exemptions: | $1,512.50 | | |
| | | | | Taxes w/o Exemptions: | $1,512.50 | | |
Improvement / Building
| Improvement #1: | MANUFACTURED HOME | State Code: | Y | 643.5 sqft | Value: | $6,502 |
| Bathrooms: | 0 | Bedrooms: | 0 | | Ceiling: | PLASTER PAINTED | Cooling: | EVAP NO DUCT | | Exterior Wall/Cover: | VINYL | Floor Covering: | CARPET 100% | | Floor Structure: | SLAB ON GRADE | Foundation: | SLAB | | Heating: | FHA ELECTRIC | Interior Finish: | PLASTER | | Plumbing Fixture Cnt: | 1 | Roof Slope: | FLAT | | Roof Structure/Cover: | CJ ALUMINIUM HEAVY |   |   |
|
Sketch
Property Image
Land
| 1 | 17 | AC (01.01-02.00) | 0.0000 | 0.00 | 0.00 | 0.00 | 1.00 | $210,000 | $0 |
Roll Value History
| 2026 | N/A | N/A | N/A | N/A | N/A |
| 2025 | $6,502 | $210,000 | $0 | $216,502 | $216,502 |
| 2024 | $6,502 | $210,000 | $0 | $216,502 | $216,502 |
| 2023 | $5,654 | $210,000 | $0 | $215,654 | $215,654 |
| 2022 | $5,120 | $200,000 | $0 | $205,120 | $205,120 |
| 2021 | $4,452 | $140,000 | $0 | $144,452 | $144,452 |
| 2020 | $4,322 | $130,000 | $0 | $134,322 | $134,322 |
| 2019 | $3,404 | $185,000 | $0 | $188,404 | $188,404 |
| 2018 | $3,404 | $150,000 | $0 | $153,404 | $153,404 |
| 2017 | $3,404 | $100,000 | $0 | $103,404 | $103,404 |
| 2016 | $5,382 | $100,000 | $0 | $105,382 | $105,382 |
| 2015 | $5,497 | $85,000 | $0 | $90,497 | $90,497 |
| 2014 | $5,611 | $65,000 | $0 | $70,611 | $70,611 |
| 2013 | $5,726 | $70,000 | $0 | $75,726 | $75,726 |
| 2012 | $5,841 | $72,250 | $0 | $78,091 | $78,091 |
| 2011 | $5,955 | $85,000 | $0 | $90,955 | $90,955 |
| 2010 | $12,133 | $85,000 | $0 | $97,133 | $97,133 |
| 2009 | $12,349 | $95,000 | $0 | $107,349 | $107,349 |
| 2008 | $12,349 | $104,000 | $0 | $116,349 | $116,349 |
| 2007 | $12,349 | $104,000 | $0 | $116,349 | $116,349 |
Deed and Sales History
| 1 | 06/15/2023 | MANHOME | Manufactured Home | RHODES, DONALD | DAVIS, KATHLEEN G | | | $0.00 | 57063 | |
| 2 | 02/27/2023 | QCD | Quit Claim Deed | RHODES, DONALD | DAVIS, KATHLEEN G | | | $0.00 | 57062 | 4561401 |
| 3 | 08/06/2002 | OTHER | Other - Misc. Documents | GINNETT, ARTHUR E | RHODES, LINDA J | | | $0.00 | 70228 | 0 |
| 4 | 01/31/2000 | OTHER | Other - Misc. Documents | GINNETT, ARTHUR | GINNETT, ARTHUR E | | | $0.00 | 68563 | 0 |
| 5 | 01/01/1900 | OTHER | Other - Misc. Documents | Unknown | GINNETT, ARTHUR | | | $0.00 | 0 | 0 |
Payout Agreement
| No payout information available.. |