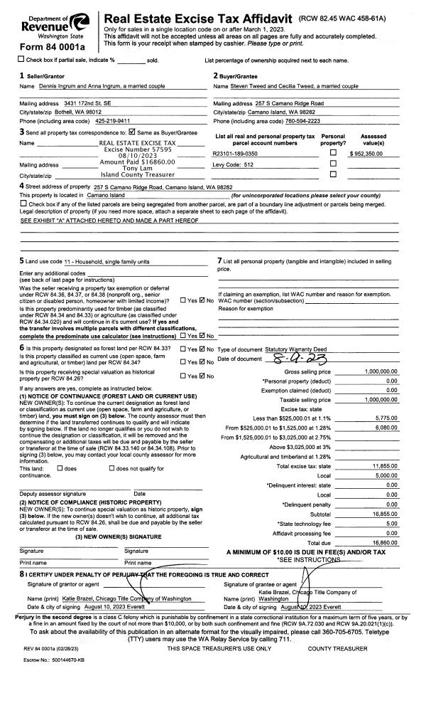
Property
Account |
| Property ID: | 709488 | Abbreviated Legal Description: | S/2 W/2 E/2 SW NW SUB EZ |
| Geographic ID: | R13302-295-0810 | Agent Code: | |
| Type: | Real | | |
| Tax Area: | 112 - APPRAISER-OH Schl Dist, outside OH, improved, greater than 1 acre | Land Use Code | 11 |
| Open Space: | N | DFL | N |
| Historic Property: | N | Remodel Property: | N |
| Multi-Family Redevelopment: | N | | |
| Township: | 33 | Section: | 02 |
| Range: | R1 |
Location |
| Address: | 754 SOUNDVIEW LN OAK HARBOR, WA 98277 | Mapsco: | |
| Neighborhood: | Cycle 6 | Map ID: | 195 |
| Neighborhood CD: | 6 |
Owner |
| Name: | WILEY III, CARL T | Owner ID: | 251783 |
| Mailing Address: | VALERIE WILEY 754 SOUNDVIEW LN OAK HARBOR, WA 98277 | % Ownership: | 100.0000000000% |
| | | Exemptions: | |
Taxes and Assessment Details
Values
| (+) Improvement Homesite Value: | + | $0 | |
| (+) Improvement Non-Homesite Value: | + | $643,920 | |
| (+) Land Homesite Value: | + | $0 | |
| (+) Land Non-Homesite Value: | + | $340,000 | |
| (+) Curr Use (HS): | + | $0 | $0 |
| (+) Curr Use (NHS): | + | $0 | $0 |
| | | -------------------------- | |
| (=) Market Value: | = | $983,920 | |
| (–) Productivity Loss: | – | $0 | |
| | | -------------------------- | |
| (=) Subtotal: | = | $983,920 | |
| (+) Senior Appraised Value: | + | $0 | |
| (+) Non-Senior Appraised Value: | + | $983,920 | |
| | | -------------------------- | |
| (=) Total Appraised Value: | = | $983,920 | |
| (–) Senior Exemption Loss: | – | $0 | |
| (–) Exemption Loss: | – | $0 | |
| | | -------------------------- | |
| (=) Taxable Value: | = | $983,920 | |
Taxing Jurisdiction
| Owner: | WILEY III, CARL T | | |
| % Ownership: | 100.0000000000% | | |
| Total Value: | $983,920 | | |
| Tax Area: | 112 - APPRAISER-OH Schl Dist, outside OH, improved, greater than 1 acre |
| CF | Conservation Futures | 0.0316035091 | $983,920 | $983,920 | $31.10 | | |
| CEM1 | Cemetery #1 | 0.0040320932 | $983,920 | $983,920 | $3.97 | | |
| FIRE2 | Fire & Rescue Dist #2 N Whidbey GEN | 0.5475949600 | $983,920 | $983,920 | $538.79 | | |
| HOBOND | Hospital BOND | 0.1910887512 | $983,920 | $983,920 | $188.02 | | |
| HOGEN | Hospital GEN | 0.3902502903 | $983,920 | $983,920 | $383.98 | | |
| CE | County Current Expense | 0.3708482477 | $983,920 | $983,920 | $364.89 | | |
| CR | County Roads | 0.4584763726 | $983,920 | $983,920 | $451.10 | | |
| ISLANDEMS | Hospital GEN (EMS) | 0.5000000000 | $983,920 | $983,920 | $491.96 | | |
| LIB | Library Sno-Isle GEN | 0.3153421757 | $983,920 | $983,920 | $310.27 | | |
| NWHIDPRMT | P & R N Whidbey GEN | 0.2004466701 | $983,920 | $983,920 | $197.22 | | |
| SCH201MO | School 201 Enrichment | 1.8559231640 | $983,920 | $983,920 | $1,826.08 | | |
| ST | State School | 1.3035497053 | $983,920 | $983,920 | $1,282.59 | | |
| ST2 | State School Part 2 | 0.8169543533 | $983,920 | $983,920 | $803.82 | | |
| | Total Tax Rate: | 6.9861102925 | | | | | |
| | | | | Taxes w/Current Exemptions: | $6,873.79 | | |
| | | | | Taxes w/o Exemptions: | $6,873.79 | | |
Improvement / Building
| Improvement #1: | RESIDENTIAL | State Code: | Y | 2763.7 sqft | Value: | $643,920 |
| Bathrooms: | 2 | Bedrooms: | 2 | | Ceiling: | DRYWALL PAINTED | Cooling: | (NONE) | | Exterior Wall/Cover: | CEMENT FIBER | Floor Covering: | HARDWOOD/CARP 60-40 | | Floor Structure: | WOOD W/SUBFLOOR | Foundation: | CONCRETE | | Heating: | FHA GAS | Interior Finish: | DRYWALL PAINT | | Plumbing Fixture Cnt: | 14 | Roof Slope: | 6" IN 12" | | Roof Structure/Cover: | CJ ASPHALT |   |   |
|
| | Type | Description | Class CD | Sub Class CD | Year Built | Area |
| | BAS | BASE/MAIN FLOOR | 4 | 0 | 2010 | 2763.7 |
| | OP4 | OPEN PORCH W/CEILING-ROOF | 4 | 0 | 2010 | 128.0 |
| | AGR | ATTACHED GARAGE | 4 | 0 | 2010 | 870.0 |
| | OWC | OPEN WOOD PORCH W/STEPS/ROOF/C | 4 | 0 | 2010 | 246.3 |
| | OP4 | OPEN PORCH W/CEILING-ROOF | 4 | 0 | 2010 | 246.3 |
| | OWP | OPEN WOOD PORCH W/STEPS | 4 | 0 | 2010 | 260.4 |
| | DGR | DETACHED GARAGE | 4 | 0 | 2010 | 1248.0 |
Sketch
Property Image
Land
| 1 | 32 | AC (03.01-09.99) | 5.0000 | 0.00 | 0.00 | 0.00 | 1.00 | $340,000 | $0 |
Roll Value History
| 2026 | N/A | N/A | N/A | N/A | N/A |
| 2025 | $643,920 | $340,000 | $0 | $983,920 | $983,920 |
| 2024 | $649,331 | $320,000 | $0 | $969,331 | $969,331 |
| 2023 | $655,103 | $320,000 | $0 | $975,103 | $975,103 |
| 2022 | $587,970 | $300,000 | $0 | $887,970 | $887,970 |
| 2021 | $515,822 | $200,000 | $0 | $715,822 | $715,822 |
| 2020 | $451,414 | $160,000 | $0 | $611,414 | $611,414 |
| 2019 | $359,107 | $220,000 | $0 | $579,107 | $579,107 |
| 2018 | $361,941 | $200,000 | $0 | $561,941 | $561,941 |
| 2017 | $365,570 | $155,000 | $0 | $520,570 | $520,570 |
| 2016 | $418,149 | $155,000 | $0 | $573,149 | $573,149 |
| 2015 | $423,797 | $150,000 | $0 | $573,797 | $573,797 |
| 2014 | $429,445 | $150,000 | $0 | $579,445 | $579,445 |
| 2013 | $435,092 | $112,500 | $0 | $547,592 | $547,592 |
| 2012 | $468,849 | $112,500 | $0 | $581,349 | $581,349 |
| 2011 | $474,499 | $125,000 | $0 | $599,499 | $599,499 |
| 2010 | $92,182 | $125,000 | $0 | $217,182 | $217,182 |
| 2009 | $91,947 | $125,000 | $0 | $216,947 | $62,767 |
| 2008 | $112,827 | $147,500 | $18,767 | $112,827 | $21,917 |
| 2007 | $115,004 | $147,500 | $18,767 | $115,004 | $21,917 |
Deed and Sales History
| 1 | 06/30/2010 | QCD | Quit Claim Deed | WILEY III, CARL T | WILEY III, CARL T | | | $0.00 | 1625 | 4276524 |
| 2 | 11/09/2006 | WD | Warranty Deed | SELTVEIT, VERNYCE A | WILEY III, CARL T | | | $75,000.00 | 64853 | 4186898 |
| 3 | 02/01/1997 | OTHER | Other - Misc. Documents | SELTVEIT, ARNE | SELTVEIT, VERNYCE A | | | $0.00 | 67244 | 88006338 |
| 4 | 04/01/1993 | OTHER | Other - Misc. Documents | Unknown | SELTVEIT, ARNE / | | | $43,690.00 | 11111111 | 0 |
| 5 | 11/01/1987 | EZ | Easement | SELTVEIT, ARNE / | SELTVEIT, ARNE | | | $0.00 | 62436 | 86006629 |
Payout Agreement
| No payout information available.. |