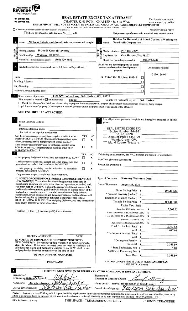
Property
Account |
| Property ID: | 709825 | Abbreviated Legal Description: | WHISP FIRS LOT 11 BLK 3 FR 03010-0 |
| Geographic ID: | S8430-00-03011-0 | Agent Code: | |
| Type: | Real | | |
| Tax Area: | 760 - APPRAISER-S Whid Schl Dist, Special District, improved & less than 1 acre | Land Use Code | 11 |
| Open Space: | N | DFL | N |
| Historic Property: | N | Remodel Property: | N |
| Multi-Family Redevelopment: | N | | |
| Township: | | Section: | |
| Range: | |
Location |
| Address: | 1822 WATKINS RD FREELAND, WA 98249 | Mapsco: | |
| Neighborhood: | Cycle 3 | Map ID: | 316 |
| Neighborhood CD: | 3 |
Owner |
| Name: | KAY, PENNY | Owner ID: | 293633 |
| Mailing Address: | 1822 WATKINS RD FREELAND, WA 98249 | % Ownership: | 100.0000000000% |
| | | Exemptions: | |
Taxes and Assessment Details
Values
| (+) Improvement Homesite Value: | + | $0 | |
| (+) Improvement Non-Homesite Value: | + | $401,165 | |
| (+) Land Homesite Value: | + | $0 | |
| (+) Land Non-Homesite Value: | + | $250,000 | |
| (+) Curr Use (HS): | + | $0 | $0 |
| (+) Curr Use (NHS): | + | $0 | $0 |
| | | -------------------------- | |
| (=) Market Value: | = | $651,165 | |
| (–) Productivity Loss: | – | $0 | |
| | | -------------------------- | |
| (=) Subtotal: | = | $651,165 | |
| (+) Senior Appraised Value: | + | $0 | |
| (+) Non-Senior Appraised Value: | + | $651,165 | |
| | | -------------------------- | |
| (=) Total Appraised Value: | = | $651,165 | |
| (–) Senior Exemption Loss: | – | $0 | |
| (–) Exemption Loss: | – | $0 | |
| | | -------------------------- | |
| (=) Taxable Value: | = | $651,165 | |
Taxing Jurisdiction
| Owner: | KAY, PENNY | | |
| % Ownership: | 100.0000000000% | | |
| Total Value: | $651,165 | | |
| Tax Area: | 760 - APPRAISER-S Whid Schl Dist, Special District, improved & less than 1 acre |
| CF | Conservation Futures | 0.0316035091 | $651,165 | $651,165 | $20.58 | | |
| FIRE3 | Fire & Rescue Dist #3 S Whidbey GEN | 1.2004855531 | $651,165 | $651,165 | $781.71 | | |
| HOBOND | Hospital BOND | 0.1910887512 | $651,165 | $651,165 | $124.43 | | |
| HOGEN | Hospital GEN | 0.3902502903 | $651,165 | $651,165 | $254.12 | | |
| CE | County Current Expense | 0.3708482477 | $651,165 | $651,165 | $241.48 | | |
| CR | County Roads | 0.4584763726 | $651,165 | $651,165 | $298.54 | | |
| ISLANDEMS | Hospital GEN (EMS) | 0.5000000000 | $651,165 | $651,165 | $325.58 | | |
| LIB | Library Sno-Isle GEN | 0.3153421757 | $651,165 | $651,165 | $205.34 | | |
| PORTWHID | Port of S Whidbey GEN | 0.1094540357 | $651,165 | $651,165 | $71.27 | | |
| SCH206BOND | School 206 BOND | 0.3161759235 | $651,165 | $651,165 | $205.88 | | |
| SCH206MO | School 206 Enrichment | 0.4547169547 | $651,165 | $651,165 | $296.10 | | |
| ST | State School | 1.3035497053 | $651,165 | $651,165 | $848.83 | | |
| ST2 | State School Part 2 | 0.8169543533 | $651,165 | $651,165 | $531.97 | | |
| SWHIDPRBD | P & R S Whidbey BOND | 0.0152817568 | $651,165 | $651,165 | $9.95 | | |
| SWHIDPRBD2 | P & R S Whidbey BOND2 | 0.0138911264 | $651,165 | $651,165 | $9.05 | | |
| SWHIDPRMT | P & R S Whidbey GEN | 0.2053334452 | $651,165 | $651,165 | $133.71 | | |
| | Total Tax Rate: | 6.6934522006 | | | | | |
| | | | | Taxes w/Current Exemptions: | $4,358.54 | | |
| | | | | Taxes w/o Exemptions: | $4,358.54 | | |
Improvement / Building
| Improvement #1: | RESIDENTIAL | State Code: | Y | 2026.0 sqft | Value: | $401,165 |
| Bathrooms: | 2.25 | Bedrooms: | 3 | | Ceiling: | DRYWALL PAINTED | Exterior Wall/Cover: | CEMENT FIBER | | Floor Covering: | CARPET/VINYL 80-20 | Floor Structure: | WOOD W/SUBFLOOR | | Foundation: | CONCRETE | Heating: | FHA ELECTRIC | | Interior Finish: | DRYWALL PAINT | Plumbing Fixture Cnt: | 13 | | Roof Slope: | 6" IN 12" | Roof Structure/Cover: | CJ ASPHALT |
|
| | Type | Description | Class CD | Sub Class CD | Year Built | Area |
| | BAS | BASE/MAIN FLOOR | 4 | 0 | 2006 | 1394.0 |
| | AGR | ATTACHED GARAGE | 4 | 0 | 2006 | 452.0 |
| | UPS | UPPER STORY | 4 | 0 | 2006 | 632.0 |
| | OWC | OPEN WOOD PORCH W/STEPS/ROOF/C | 4 | 0 | 2006 | 196.0 |
Sketch
Property Image
Land
| 1 | 13 | SQ (06001-08000) | 0.1700 | 7405.20 | 0.00 | 0.00 | 1.00 | $250,000 | $0 |
Roll Value History
| 2026 | N/A | N/A | N/A | N/A | N/A |
| 2025 | $401,165 | $250,000 | $0 | $651,165 | $651,165 |
| 2024 | $405,870 | $230,000 | $0 | $635,870 | $635,870 |
| 2023 | $410,577 | $200,000 | $0 | $610,577 | $610,577 |
| 2022 | $376,033 | $210,000 | $0 | $586,033 | $586,033 |
| 2021 | $330,686 | $140,000 | $0 | $470,686 | $470,686 |
| 2020 | $320,669 | $115,000 | $0 | $435,669 | $435,669 |
| 2019 | $231,209 | $170,000 | $0 | $401,209 | $401,209 |
| 2018 | $231,873 | $130,000 | $0 | $361,873 | $361,873 |
| 2017 | $233,079 | $120,000 | $0 | $353,079 | $353,079 |
| 2016 | $235,728 | $90,000 | $0 | $325,728 | $325,728 |
| 2015 | $238,375 | $85,000 | $0 | $323,375 | $323,375 |
| 2014 | $241,024 | $70,000 | $0 | $311,024 | $311,024 |
| 2013 | $244,315 | $52,000 | $0 | $296,315 | $296,315 |
| 2012 | $246,893 | $53,550 | $0 | $300,443 | $300,443 |
| 2011 | $249,470 | $63,000 | $0 | $312,470 | $312,470 |
| 2010 | $258,335 | $63,000 | $0 | $321,335 | $321,335 |
| 2009 | $269,108 | $89,661 | $0 | $358,769 | $358,769 |
| 2008 | $272,193 | $89,661 | $0 | $361,854 | $361,854 |
| 2007 | $270,175 | $89,661 | $0 | $359,836 | $359,836 |
Deed and Sales History
| 1 | 02/27/2020 | WD | Warranty Deed | SUTLIFF, BLAINE J | KAY, PENNY | | | $425,000.00 | 42254 | 4482197 |
| 2 | 12/05/2005 | WD | Warranty Deed | CULTUS BAY INC, | SUTLIFF, BLAINE J | | | $70,000.00 | 56182 | 4156982 |
| 3 | 04/09/2005 | ESTSEPPROP | Establish Separate Property | CULTUS BAY INC, | CULTUS BAY INC, | | | $11.00 | 51927 | 4133162 |
| 4 | 11/30/2004 | WD | Warranty Deed | NDDS, LLC, | CULTUS BAY INC, | | | $5,498.00 | 45711 | 4120085 |
| 5 | 11/05/2004 | 5 | DNU - Marriage License/Name Change | WATKINS, H J | NDDS, LLC, | | | $0.00 | 45260 | 4117543 |
| 6 | 07/01/1995 | OTHER | Other - Misc. Documents | WATKINS, H J | WATKINS, H J | | | $0.00 | 66538 | 0 |
| 7 | 01/01/1900 | OTHER | Other - Misc. Documents | Unknown | WATKINS, H J | | | $0.00 | 50747 | 95003459 |
Payout Agreement
| No payout information available.. |