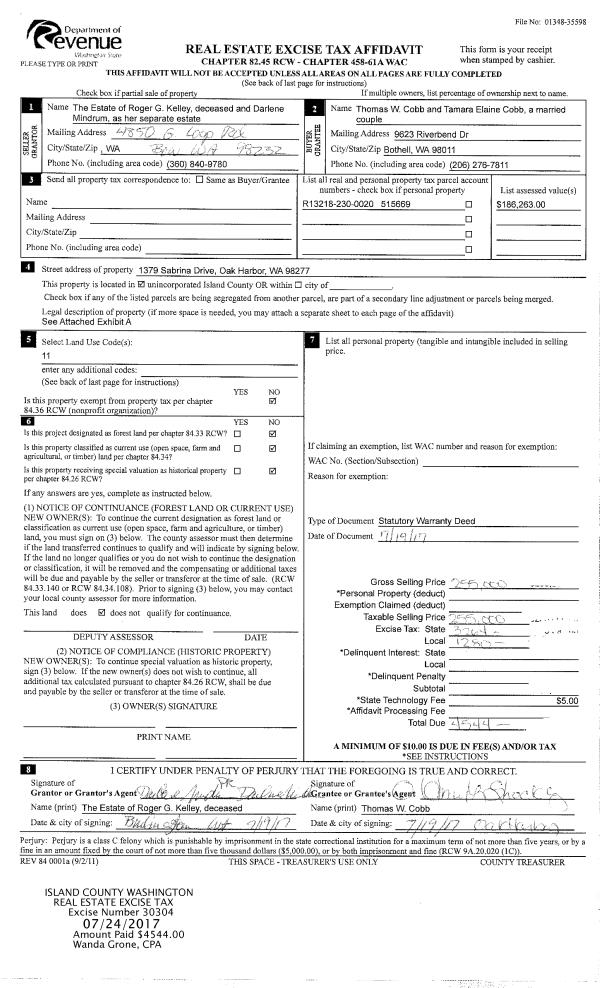
Property
Account |
| Property ID: | 710314 | Abbreviated Legal Description: | 1980 GIBRALTER 14X52 VIN# 95025 TPO $87881 |
| Geographic ID: | M91400000031-2 | Agent Code: | |
| Type: | Mobile Home | | |
| Tax Area: | 110 - APPRAISER-OH Schl Dist, outside OH, improved & 1 acre or less | Land Use Code | 11 |
| Open Space: | N | DFL | N |
| Historic Property: | N | Remodel Property: | N |
| Multi-Family Redevelopment: | N | | |
| Township: | | Section: | |
| Range: | |
Location |
| Address: | 34938 SR20 # 31 OAK HARBOR, WA 98277 | Mapsco: | |
| Neighborhood: | Cycle 6 | Map ID: | |
| Neighborhood CD: | 6 |
Owner |
| Name: | HERNANDEZ-SANTOS, ELEUTERIO | Owner ID: | 280112 |
| Mailing Address: | 34938 SR 20 #31 OAK HARBOR, WA 98277 | % Ownership: | 100.0000000000% |
| | | Exemptions: | |
Taxes and Assessment Details
Values
| (+) Improvement Homesite Value: | + | $0 | |
| (+) Improvement Non-Homesite Value: | + | $2,970 | |
| (+) Land Homesite Value: | + | $0 | |
| (+) Land Non-Homesite Value: | + | $0 | |
| (+) Curr Use (HS): | + | $0 | $0 |
| (+) Curr Use (NHS): | + | $0 | $0 |
| | | -------------------------- | |
| (=) Market Value: | = | $2,970 | |
| (–) Productivity Loss: | – | $0 | |
| | | -------------------------- | |
| (=) Subtotal: | = | $2,970 | |
| (+) Senior Appraised Value: | + | $0 | |
| (+) Non-Senior Appraised Value: | + | $2,970 | |
| | | -------------------------- | |
| (=) Total Appraised Value: | = | $2,970 | |
| (–) Senior Exemption Loss: | – | $0 | |
| (–) Exemption Loss: | – | $0 | |
| | | -------------------------- | |
| (=) Taxable Value: | = | $2,970 | |
Taxing Jurisdiction
| Owner: | HERNANDEZ-SANTOS, ELEUTERIO | | |
| % Ownership: | 100.0000000000% | | |
| Total Value: | $2,970 | | |
| Tax Area: | 110 - APPRAISER-OH Schl Dist, outside OH, improved & 1 acre or less |
| CF | Conservation Futures | 0.0316035091 | $2,970 | $2,970 | $0.09 | | |
| CEM1 | Cemetery #1 | 0.0040320932 | $2,970 | $2,970 | $0.01 | | |
| FIRE2 | Fire & Rescue Dist #2 N Whidbey GEN | 0.5475949600 | $2,970 | $2,970 | $1.63 | | |
| HOBOND | Hospital BOND | 0.1910887512 | $2,970 | $2,970 | $0.57 | | |
| HOGEN | Hospital GEN | 0.3902502903 | $2,970 | $2,970 | $1.16 | | |
| CE | County Current Expense | 0.3708482477 | $2,970 | $2,970 | $1.10 | | |
| CR | County Roads | 0.4584763726 | $2,970 | $2,970 | $1.36 | | |
| ISLANDEMS | Hospital GEN (EMS) | 0.5000000000 | $2,970 | $2,970 | $1.49 | | |
| LIB | Library Sno-Isle GEN | 0.3153421757 | $2,970 | $2,970 | $0.94 | | |
| NWHIDPRMT | P & R N Whidbey GEN | 0.2004466701 | $2,970 | $2,970 | $0.60 | | |
| SCH201MO | School 201 Enrichment | 1.8559231640 | $2,970 | $2,970 | $5.51 | | |
| ST | State School | 1.3035497053 | $2,970 | $2,970 | $3.87 | | |
| ST2 | State School Part 2 | 0.8169543533 | $2,970 | $2,970 | $2.43 | | |
| | Total Tax Rate: | 6.9861102925 | | | | | |
| | | | | Taxes w/Current Exemptions: | $20.76 | | |
| | | | | Taxes w/o Exemptions: | $20.76 | | |
Improvement / Building
| Improvement #1: | MANUFACTURED HOME | State Code: | Y | 728.0 sqft | Value: | $2,970 |
| Bathrooms: | 0 | Bedrooms: | 0 | | Ceiling: | PLASTER PAINTED | Cooling: | EVAP NO DUCT | | Exterior Wall/Cover: | VINYL | Floor Covering: | CARPET 100% | | Floor Structure: | SLAB ON GRADE | Foundation: | SLAB | | Heating: | FHA ELECTRIC | Interior Finish: | PLASTER | | Plumbing Fixture Cnt: | 1 | Roof Slope: | FLAT | | Roof Structure/Cover: | CJ ALUMINIUM HEAVY |   |   |
|
Sketch
Property Image
Land
No land segments exist for this property.
Roll Value History
| 2026 | N/A | N/A | N/A | N/A | N/A |
| 2025 | $2,970 | $0 | $0 | $2,970 | $2,970 |
| 2024 | $3,162 | $0 | $0 | $3,162 | $3,162 |
| 2023 | $5,589 | $0 | $0 | $5,589 | $5,589 |
| 2022 | $3,171 | $0 | $0 | $3,171 | $3,171 |
| 2021 | $2,977 | $0 | $0 | $2,977 | $2,977 |
| 2020 | $2,997 | $0 | $0 | $2,997 | $2,997 |
| 2019 | $2,530 | $0 | $0 | $2,530 | $2,530 |
| 2018 | $2,615 | $0 | $0 | $2,615 | $2,615 |
| 2017 | $2,783 | $0 | $0 | $2,783 | $2,783 |
| 2016 | $1,818 | $0 | $0 | $1,818 | $1,818 |
| 2015 | $1,974 | $0 | $0 | $1,974 | $1,974 |
| 2014 | $2,078 | $0 | $0 | $2,078 | $2,078 |
| 2013 | $2,182 | $0 | $0 | $2,182 | $2,182 |
| 2012 | $2,286 | $0 | $0 | $2,286 | $2,286 |
| 2011 | $2,390 | $0 | $0 | $2,390 | $2,390 |
| 2010 | $2,698 | $0 | $0 | $2,698 | $2,698 |
| 2009 | $2,905 | $0 | $0 | $2,905 | $2,905 |
| 2008 | $3,055 | $0 | $0 | $3,055 | $3,055 |
| 2007 | $3,277 | $0 | $0 | $3,277 | $3,277 |
Deed and Sales History
| 1 | 05/26/2017 | MANHOME | Manufactured Home | BENAVIDES, ANA E | HERNANDEZ-SANTOS, ELEUTERIO | | | $1,000.00 | 29492 | |
| 2 | 02/11/2014 | OTHER | Other - Misc. Documents | PEDEN, CRYSTAL | BENAVIDES, ANA E | | | $700.00 | 14265 | |
| 3 | 04/05/2012 | OTHER | Other - Misc. Documents | BROWER, TED L | PEDEN, CRYSTAL | | | $2,390.00 | 7285 | |
| 4 | 03/08/2011 | OTHER | Other - Misc. Documents | MAURO, SHERRI | BROWER, TED L | | | $1,000.00 | 3854 | |
| 5 | 08/22/2007 | OTHER | Other - Misc. Documents | RAMIREZ, KAREN | MAURO, SHERRI | | | $0.00 | 72861 | 0 |
| 6 | 03/10/2006 | OTHER | Other - Misc. Documents | EVANS, FRANK | RAMIREZ, KAREN | | | $0.00 | 62023 | 0 |
| 7 | 02/06/2006 | OTHER | Other - Misc. Documents | VANDENHAAK, KAREL F | EVANS, FRANK | | | $0.00 | 60487 | 0 |
| 8 | 03/16/2000 | OTHER | Other - Misc. Documents | Unknown | VANDENHAAK, KAREL F | | | $7,500.00 | 939 | 0 |
Payout Agreement
| No payout information available.. |