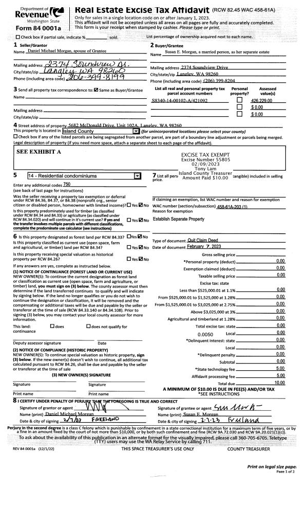
Property
Account |
| Property ID: | 710500 | Abbreviated Legal Description: | LOT 2 OH-SP 6-95.13334.320-1120 & .320-1170 V3 SP P29/30 AF#95011169 |
| Geographic ID: | R13334-320-1170 | Agent Code: | |
| Type: | Real | | |
| Tax Area: | 100 - APPRAISER-OH Schl Dist, in OH | Land Use Code | 11 |
| Open Space: | N | DFL | N |
| Historic Property: | N | Remodel Property: | N |
| Multi-Family Redevelopment: | N | | |
| Township: | 33 | Section: | 34 |
| Range: | R1 |
Location |
| Address: | 1444 NW 8TH AVE OAK HARBOR, WA 98277 | Mapsco: | |
| Neighborhood: | Cycle 1 | Map ID: | 254 |
| Neighborhood CD: | 1 |
Owner |
| Name: | PEDIMONTE, DOMINGO | Owner ID: | 306801 |
| Mailing Address: | ANALIZA DE GUZMAN PEDIMONTE 1444 NW 8TH AVE OAK HARBOR, WA 98277 | % Ownership: | 100.0000000000% |
| | | Exemptions: | |
Taxes and Assessment Details
Values
| (+) Improvement Homesite Value: | + | $0 | |
| (+) Improvement Non-Homesite Value: | + | $268,790 | |
| (+) Land Homesite Value: | + | $0 | |
| (+) Land Non-Homesite Value: | + | $190,000 | |
| (+) Curr Use (HS): | + | $0 | $0 |
| (+) Curr Use (NHS): | + | $0 | $0 |
| | | -------------------------- | |
| (=) Market Value: | = | $458,790 | |
| (–) Productivity Loss: | – | $0 | |
| | | -------------------------- | |
| (=) Subtotal: | = | $458,790 | |
| (+) Senior Appraised Value: | + | $0 | |
| (+) Non-Senior Appraised Value: | + | $458,790 | |
| | | -------------------------- | |
| (=) Total Appraised Value: | = | $458,790 | |
| (–) Senior Exemption Loss: | – | $0 | |
| (–) Exemption Loss: | – | $0 | |
| | | -------------------------- | |
| (=) Taxable Value: | = | $458,790 | |
Taxing Jurisdiction
| Owner: | PEDIMONTE, DOMINGO | | |
| % Ownership: | 100.0000000000% | | |
| Total Value: | $458,790 | | |
| Tax Area: | 100 - APPRAISER-OH Schl Dist, in OH |
| CF | Conservation Futures | 0.0316035091 | $458,790 | $458,790 | $14.50 | | |
| CEM1 | Cemetery #1 | 0.0040320932 | $458,790 | $458,790 | $1.85 | | |
| COH | City of Oak Harbor | 2.3001546061 | $458,790 | $458,790 | $1,055.29 | | |
| OAKBOND | City of Oak Harbor BOND | 0.1926904192 | $458,790 | $458,790 | $88.40 | | |
| HOBOND | Hospital BOND | 0.1910887512 | $458,790 | $458,790 | $87.67 | | |
| HOGEN | Hospital GEN | 0.3902502903 | $458,790 | $458,790 | $179.04 | | |
| CE | County Current Expense | 0.3708482477 | $458,790 | $458,790 | $170.14 | | |
| ISLANDEMS | Hospital GEN (EMS) | 0.5000000000 | $458,790 | $458,790 | $229.40 | | |
| LIB | Library Sno-Isle GEN | 0.3153421757 | $458,790 | $458,790 | $144.68 | | |
| NWHIDPRMT | P & R N Whidbey GEN | 0.2004466701 | $458,790 | $458,790 | $91.96 | | |
| SCH201MO | School 201 Enrichment | 1.8559231640 | $458,790 | $458,790 | $851.48 | | |
| ST | State School | 1.3035497053 | $458,790 | $458,790 | $598.06 | | |
| ST2 | State School Part 2 | 0.8169543533 | $458,790 | $458,790 | $374.81 | | |
| | Total Tax Rate: | 8.4728839852 | | | | | |
| | | | | Taxes w/Current Exemptions: | $3,887.28 | | |
| | | | | Taxes w/o Exemptions: | $3,887.28 | | |
Improvement / Building
| Improvement #1: | RESIDENTIAL | State Code: | Y | 1200.5 sqft | Value: | $268,790 |
| Bathrooms: | 2 | Bedrooms: | 3 | | Ceiling: | DRYWALL PAINTED | Exterior Wall/Cover: | PLY/HARDBOARD T-111 | | Floor Covering: | HARDWOOD/CARP 60-40 | Floor Structure: | WOOD W/SUBFLOOR | | Foundation: | CONCRETE | Heating: | FHA GAS | | Interior Finish: | DRYWALL PAINT | Plumbing Fixture Cnt: | 10 | | Roof Slope: | 4" IN 12" | Roof Structure/Cover: | CJ ASPHALT |
|
| | Type | Description | Class CD | Sub Class CD | Year Built | Area |
| | BAS | BASE/MAIN FLOOR | 3 | 0 | 1996 | 1200.5 |
| | OP3 | OPEN PORCH W/ROOF | 3 | 0 | 1996 | 120.0 |
| | OP2 | OPEN PORCH W/STEPS | 3 | 0 | 1996 | 21.0 |
| | AGR | ATTACHED GARAGE | 3 | 0 | 1996 | 535.2 |
| | OWR | OPEN WOOD PORCH W/STEPS/ROOF | 3 | 0 | 1996 | 133.0 |
Sketch
Property Image
Land
| 1 | 14 | SQ (08001-12000) | 0.0000 | 0.00 | 0.00 | 0.00 | 1.00 | $190,000 | $0 |
Roll Value History
| 2026 | N/A | N/A | N/A | N/A | N/A |
| 2025 | $268,790 | $190,000 | $0 | $458,790 | $458,790 |
| 2024 | $271,944 | $180,000 | $0 | $451,944 | $451,944 |
| 2023 | $257,524 | $180,000 | $0 | $437,524 | $437,524 |
| 2022 | $235,918 | $180,000 | $0 | $415,918 | $415,918 |
| 2021 | $207,530 | $120,000 | $0 | $327,530 | $327,530 |
| 2020 | $181,447 | $100,000 | $0 | $281,447 | $281,447 |
| 2019 | $127,845 | $150,000 | $0 | $277,845 | $277,845 |
| 2018 | $128,229 | $130,000 | $0 | $258,229 | $84,580 |
| 2017 | $119,951 | $110,000 | $0 | $229,951 | $84,580 |
| 2016 | $121,450 | $90,000 | $0 | $211,450 | $84,580 |
| 2015 | $122,950 | $70,000 | $0 | $192,950 | $192,950 |
| 2014 | $124,448 | $55,000 | $0 | $179,448 | $179,448 |
| 2013 | $125,947 | $55,000 | $0 | $180,947 | $180,947 |
| 2012 | $127,448 | $65,000 | $0 | $192,448 | $192,448 |
| 2011 | $125,947 | $50,000 | $0 | $175,947 | $175,947 |
| 2010 | $130,956 | $50,000 | $0 | $180,956 | $180,956 |
| 2009 | $136,547 | $66,400 | $0 | $202,947 | $202,947 |
| 2008 | $138,114 | $80,000 | $0 | $218,114 | $218,114 |
| 2007 | $139,679 | $80,000 | $0 | $219,679 | $219,679 |
Deed and Sales History
| 1 | 11/12/2022 | QCD | Quit Claim Deed | PEDIMONTE, DOMINGO | PEDIMONTE, DOMINGO | | | $0.00 | 55276 | 4554374 |
| 2 | 08/28/2020 | QCD | Quit Claim Deed | PEDIMONTE, ANALIZA D | PEDIMONTE, DOMINGOF | | | $0.00 | 44493 | 4495149 |
| 3 | 08/05/2020 | WD | Warranty Deed | VILLALON, ARTHEUS P / PACITA | PEDIMONTE, DOMINGO | | | $333,000.00 | 44492 | 4495148 |
| 4 | 01/01/1996 | WD | Warranty Deed | ISLAND, PACIFIC C | VILLALON, ARTHEUS P | | | $134,500.00 | 60214 | 96001064 |
| 5 | 01/01/1900 | OTHER | Other - Misc. Documents | Unknown | ISLAND, PACIFIC C | | | $0.00 | 51113 | 95005222 |
Payout Agreement
| No payout information available.. |