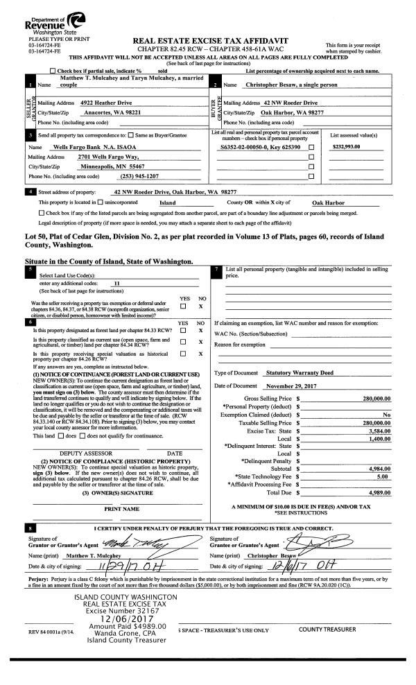
Property
Account |
| Property ID: | 710537 | Abbreviated Legal Description: | LOT 1 OH-SP 4-95.13334.305-1120 & .305-1220 V3 SP P31 AF#95011426 |
| Geographic ID: | R13334-300-1090 | Agent Code: | |
| Type: | Real | | |
| Tax Area: | 100 - APPRAISER-OH Schl Dist, in OH | Land Use Code | 11 |
| Open Space: | N | DFL | N |
| Historic Property: | N | Remodel Property: | N |
| Multi-Family Redevelopment: | N | | |
| Township: | 33 | Section: | 34 |
| Range: | R1 |
Location |
| Address: | 1467 NW 8TH AVE OAK HARBOR, WA 98277 | Mapsco: | |
| Neighborhood: | Cycle 1 | Map ID: | 254 |
| Neighborhood CD: | 1 |
Owner |
| Name: | SAHLIN, BRIDGETTE C | Owner ID: | 282170 |
| Mailing Address: | 1467 NW 8TH AVE OAK HARBOR, WA 98277 | % Ownership: | 100.0000000000% |
| | | Exemptions: | |
Taxes and Assessment Details
Values
| (+) Improvement Homesite Value: | + | $0 | |
| (+) Improvement Non-Homesite Value: | + | $235,353 | |
| (+) Land Homesite Value: | + | $0 | |
| (+) Land Non-Homesite Value: | + | $190,000 | |
| (+) Curr Use (HS): | + | $0 | $0 |
| (+) Curr Use (NHS): | + | $0 | $0 |
| | | -------------------------- | |
| (=) Market Value: | = | $425,353 | |
| (–) Productivity Loss: | – | $0 | |
| | | -------------------------- | |
| (=) Subtotal: | = | $425,353 | |
| (+) Senior Appraised Value: | + | $0 | |
| (+) Non-Senior Appraised Value: | + | $425,353 | |
| | | -------------------------- | |
| (=) Total Appraised Value: | = | $425,353 | |
| (–) Senior Exemption Loss: | – | $0 | |
| (–) Exemption Loss: | – | $0 | |
| | | -------------------------- | |
| (=) Taxable Value: | = | $425,353 | |
Taxing Jurisdiction
| Owner: | SAHLIN, BRIDGETTE C | | |
| % Ownership: | 100.0000000000% | | |
| Total Value: | $425,353 | | |
| Tax Area: | 100 - APPRAISER-OH Schl Dist, in OH |
| CF | Conservation Futures | 0.0316035091 | $425,353 | $425,353 | $13.44 | | |
| CEM1 | Cemetery #1 | 0.0040320932 | $425,353 | $425,353 | $1.72 | | |
| COH | City of Oak Harbor | 2.3001546061 | $425,353 | $425,353 | $978.38 | | |
| OAKBOND | City of Oak Harbor BOND | 0.1926904192 | $425,353 | $425,353 | $81.96 | | |
| HOBOND | Hospital BOND | 0.1910887512 | $425,353 | $425,353 | $81.28 | | |
| HOGEN | Hospital GEN | 0.3902502903 | $425,353 | $425,353 | $165.99 | | |
| CE | County Current Expense | 0.3708482477 | $425,353 | $425,353 | $157.74 | | |
| ISLANDEMS | Hospital GEN (EMS) | 0.5000000000 | $425,353 | $425,353 | $212.68 | | |
| LIB | Library Sno-Isle GEN | 0.3153421757 | $425,353 | $425,353 | $134.13 | | |
| NWHIDPRMT | P & R N Whidbey GEN | 0.2004466701 | $425,353 | $425,353 | $85.26 | | |
| SCH201MO | School 201 Enrichment | 1.8559231640 | $425,353 | $425,353 | $789.42 | | |
| ST | State School | 1.3035497053 | $425,353 | $425,353 | $554.47 | | |
| ST2 | State School Part 2 | 0.8169543533 | $425,353 | $425,353 | $347.49 | | |
| | Total Tax Rate: | 8.4728839852 | | | | | |
| | | | | Taxes w/Current Exemptions: | $3,603.96 | | |
| | | | | Taxes w/o Exemptions: | $3,603.96 | | |
Improvement / Building
| Improvement #1: | RESIDENTIAL | State Code: | Y | 1145.0 sqft | Value: | $235,353 |
| Bathrooms: | 1.75 | Bedrooms: | 3 | | Ceiling: | DRYWALL PAINTED | Exterior Wall/Cover: | PLY/HARDBOARD T-111 | | Floor Covering: | HARDWOOD/CARP 60-40 | Floor Structure: | WOOD W/SUBFLOOR | | Foundation: | CONCRETE | Heating: | FHA GAS | | Interior Finish: | DRYWALL PAINT | Plumbing Fixture Cnt: | 9 | | Roof Slope: | 4" IN 12" | Roof Structure/Cover: | CJ ASPHALT |
|
| | Type | Description | Class CD | Sub Class CD | Year Built | Area |
| | BAS | BASE/MAIN FLOOR | 3 | 0 | 1996 | 1145.0 |
| | OP1 | OPEN PORCH SLAB | 3 | 0 | 1996 | 120.0 |
| | OP4 | OPEN PORCH W/CEILING-ROOF | 3 | 0 | 1996 | 40.0 |
| | AGR | ATTACHED GARAGE | 3 | 0 | 1996 | 480.0 |
Sketch
Property Image
Land
| 1 | 14 | SQ (08001-12000) | 0.0000 | 7840.80 | 0.00 | 0.00 | 1.00 | $190,000 | $0 |
Roll Value History
| 2026 | N/A | N/A | N/A | N/A | N/A |
| 2025 | $235,353 | $190,000 | $0 | $425,353 | $425,353 |
| 2024 | $238,250 | $180,000 | $0 | $418,250 | $418,250 |
| 2023 | $235,353 | $180,000 | $0 | $415,353 | $415,353 |
| 2022 | $215,738 | $180,000 | $0 | $395,738 | $395,738 |
| 2021 | $189,884 | $120,000 | $0 | $309,884 | $309,884 |
| 2020 | $184,655 | $100,000 | $0 | $284,655 | $284,655 |
| 2019 | $130,969 | $150,000 | $0 | $280,969 | $280,969 |
| 2018 | $131,353 | $130,000 | $0 | $261,353 | $261,353 |
| 2017 | $115,554 | $110,000 | $0 | $225,554 | $225,554 |
| 2016 | $116,998 | $90,000 | $0 | $206,998 | $206,998 |
| 2015 | $118,442 | $70,000 | $0 | $188,442 | $188,442 |
| 2014 | $119,888 | $55,000 | $0 | $174,888 | $174,888 |
| 2013 | $121,331 | $55,000 | $0 | $176,331 | $176,331 |
| 2012 | $122,776 | $65,000 | $0 | $187,776 | $187,776 |
| 2011 | $122,521 | $50,000 | $0 | $172,521 | $172,521 |
| 2010 | $126,802 | $50,000 | $0 | $176,802 | $176,802 |
| 2009 | $132,407 | $66,400 | $0 | $198,807 | $198,807 |
| 2008 | $134,200 | $80,000 | $0 | $214,200 | $214,200 |
| 2007 | $135,991 | $80,000 | $0 | $215,991 | $215,991 |
Deed and Sales History
| 1 | 09/15/2017 | WD | Warranty Deed | GALVEZ, ERNESTO Q / CONSUELO | SAHLIN, BRIDGETTE C | | | $260,000.00 | 31277 | 4431012 |
| 2 | 05/01/1996 | WD | Warranty Deed | ISLAND, PACIFIC C | GALVEZ, ERNESTO Q | | | $134,000.00 | 61613 | 96008189 |
| 3 | 09/01/1995 | WD | Warranty Deed | MASSEY, WILLIAM L | ISLAND, PACIFIC C | | | $38,000.00 | 53456 | 95015842 |
| 4 | 01/01/1900 | OTHER | Other - Misc. Documents | Unknown | MASSEY, WILLIAM L | | | $0.00 | 51084 | 95005126 |
Payout Agreement
| No payout information available.. |