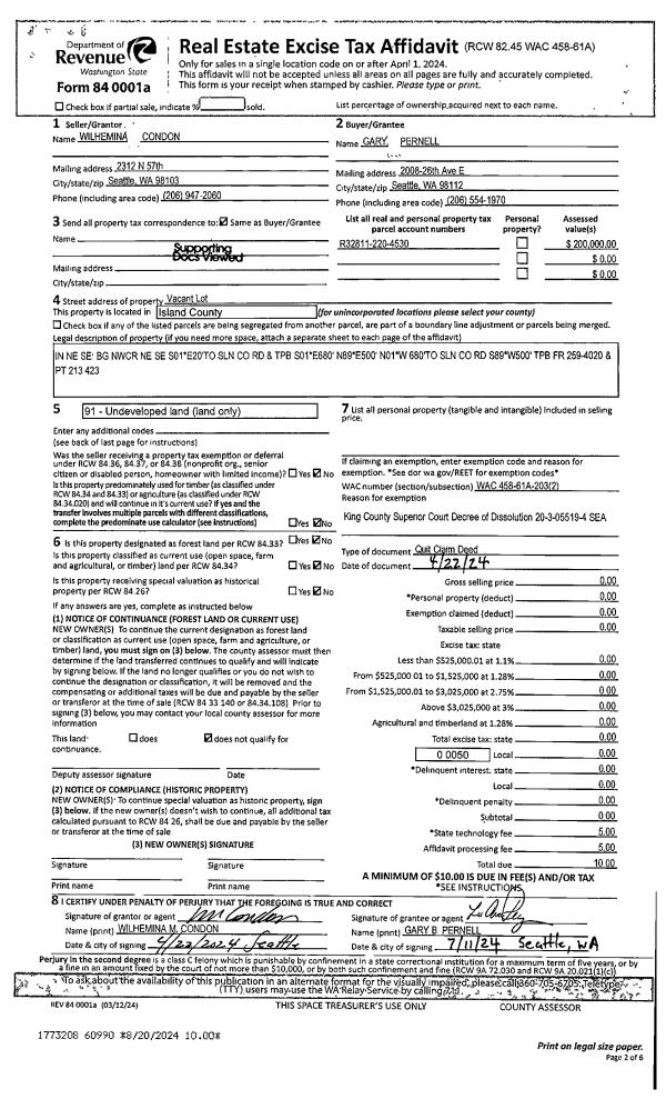
Property
Account |
| Property ID: | 711689 | Abbreviated Legal Description: | SE SE EX N660' TGW EZS EX PT SE SE LY NWLY OF FOLL DESC LN: BG PT SLN OF N660' OF SE SE 905'FR SECR SWLY 185'M/L TP 975'W & 175'S OF SECR SWLY 200'M/L TP 330'S & 1100'W OF SECR WLY 230' M/L TP ELN S/2 SW SE 260'N OF SECR TGW S10 RODS(165') OF SW SW SEC |
| Geographic ID: | R13208-030-5050 | Agent Code: | |
| Type: | Real | | |
| Tax Area: | 112 - APPRAISER-OH Schl Dist, outside OH, improved, greater than 1 acre | Land Use Code | 83 |
| Open Space: | Y | DFL | N |
| Historic Property: | N | Remodel Property: | N |
| Multi-Family Redevelopment: | N | | |
| Township: | 32 | Section: | 08 |
| Range: | R1 |
Location |
| Address: | | Mapsco: | |
| Neighborhood: | Cycle 1 | Map ID: | 109 |
| Neighborhood CD: | 1 |
Owner |
| Name: | GORVEATT, GEORGE A | Owner ID: | 311024 |
| Mailing Address: | PO BOX 1408 OAK HARBOR, WA 98277 | % Ownership: | 100.0000000000% |
| | | Exemptions: | |
Taxes and Assessment Details
Values
| (+) Improvement Homesite Value: | + | $0 | |
| (+) Improvement Non-Homesite Value: | + | $193,332 | |
| (+) Land Homesite Value: | + | $0 | |
| (+) Land Non-Homesite Value: | + | $0 | |
| (+) Curr Use (HS): | + | $0 | $0 |
| (+) Curr Use (NHS): | + | $390,000 | $15,508 |
| | | -------------------------- | |
| (=) Market Value: | = | $583,332 | |
| (–) Productivity Loss: | – | $374,492 | |
| | | -------------------------- | |
| (=) Subtotal: | = | $208,840 | |
| (+) Senior Appraised Value: | + | $0 | |
| (+) Non-Senior Appraised Value: | + | $208,840 | |
| | | -------------------------- | |
| (=) Total Appraised Value: | = | $208,840 | |
| (–) Senior Exemption Loss: | – | $0 | |
| (–) Exemption Loss: | – | $0 | |
| | | -------------------------- | |
| (=) Taxable Value: | = | $208,840 | |
Taxing Jurisdiction
| Owner: | GORVEATT, GEORGE A | | |
| % Ownership: | 100.0000000000% | | |
| Total Value: | $583,332 | | |
| Tax Area: | 112 - APPRAISER-OH Schl Dist, outside OH, improved, greater than 1 acre |
| CF | Conservation Futures | 0.0316035091 | $208,840 | $208,840 | $6.60 | | |
| CEM1 | Cemetery #1 | 0.0040320932 | $208,840 | $208,840 | $0.84 | | |
| FIRE2 | Fire & Rescue Dist #2 N Whidbey GEN | 0.5475949600 | $208,840 | $208,840 | $114.36 | | |
| HOBOND | Hospital BOND | 0.1910887512 | $208,840 | $208,840 | $39.91 | | |
| HOGEN | Hospital GEN | 0.3902502903 | $208,840 | $208,840 | $81.50 | | |
| CE | County Current Expense | 0.3708482477 | $208,840 | $208,840 | $77.45 | | |
| CR | County Roads | 0.4584763726 | $208,840 | $208,840 | $95.75 | | |
| ISLANDEMS | Hospital GEN (EMS) | 0.5000000000 | $208,840 | $208,840 | $104.42 | | |
| LIB | Library Sno-Isle GEN | 0.3153421757 | $208,840 | $208,840 | $65.86 | | |
| NWHIDPRMT | P & R N Whidbey GEN | 0.2004466701 | $208,840 | $208,840 | $41.86 | | |
| SCH201MO | School 201 Enrichment | 1.8559231640 | $208,840 | $208,840 | $387.59 | | |
| ST | State School | 1.3035497053 | $208,840 | $208,840 | $272.23 | | |
| ST2 | State School Part 2 | 0.8169543533 | $208,840 | $208,840 | $170.61 | | |
| | Total Tax Rate: | 6.9861102925 | | | | | |
| | | | | Taxes w/Current Exemptions: | $1,458.98 | | |
| | | | | Taxes w/o Exemptions: | $1,458.98 | | |
Improvement / Building
| Improvement #1: | RESIDENTIAL | State Code: | Y | 1248.0 sqft | Value: | $193,332 |
| Bathrooms: | 1 | Bedrooms: | 3 | | Ceiling: | ACOUSTIC FURRED | Exterior Wall/Cover: | WOOD SIDING | | Floor Covering: | VINYL/HARDWOOD 60-40 | Floor Structure: | WOOD W/SUBFLOOR | | Foundation: | CONCRETE | Heating: | BASEBOARD ELECTRIC | | Interior Finish: | DRYWALL PAINT | Plumbing Fixture Cnt: | 6 | | Roof Slope: | 8" IN 12" | Roof Structure/Cover: | CJ ASPHALT |
|
| | Type | Description | Class CD | Sub Class CD | Year Built | Area |
| | BAS | BASE/MAIN FLOOR | 3 | 0 | 1918 | 1248.0 |
| | UB6 | BASEMENT UNFINISHED 6" | 3 | 0 | 1918 | 532.0 |
| | ENP | ENCLOSED PORCH | 3 | 0 | 1918 | 56.0 |
| | oOBD | Out Buildings | 3 | 0 | 1918 | 56.0 |
Sketch
Property Image
Land
| 1 | 83 | OPEN AGRICULTURE | 21.0700 | 917809.20 | 0.00 | 0.00 | 1.00 | $170,000 | $14,806 |
| 2 | HS | HOMESITE | 1.0000 | 43560.00 | 0.00 | 0.00 | 1.00 | $220,000 | $702 |
Roll Value History
| 2026 | N/A | N/A | N/A | N/A | N/A |
| 2025 | $193,332 | $390,000 | $15,508 | $208,840 | $208,840 |
| 2024 | $198,792 | $350,000 | $15,508 | $414,300 | $414,300 |
| 2023 | $201,565 | $330,000 | $15,508 | $232,025 | $232,025 |
| 2022 | $191,169 | $310,000 | $15,508 | $220,767 | $220,767 |
| 2021 | $176,896 | $265,000 | $15,508 | $204,449 | $204,449 |
| 2020 | $175,028 | $210,000 | $15,508 | $200,051 | $200,051 |
| 2019 | $144,799 | $220,000 | $15,508 | $170,275 | $170,275 |
| 2018 | $145,173 | $220,000 | $15,508 | $170,649 | $170,649 |
| 2017 | $111,422 | $240,000 | $15,508 | $137,804 | $137,804 |
| 2016 | $112,884 | $240,000 | $15,508 | $139,266 | $139,266 |
| 2015 | $114,346 | $240,000 | $15,508 | $140,728 | $140,728 |
| 2014 | $115,807 | $240,000 | $15,508 | $142,189 | $142,189 |
| 2013 | $117,267 | $281,393 | $15,508 | $145,525 | $145,525 |
| 2012 | $118,730 | $281,393 | $15,508 | $146,988 | $146,988 |
| 2011 | $120,192 | $331,060 | $15,508 | $192,850 | $192,850 |
| 2010 | $0 | $273,910 | $15,508 | $15,508 | $15,508 |
| 2009 | $0 | $252,840 | $15,508 | $15,508 | $15,508 |
| 2008 | $0 | $221,250 | $15,508 | $15,508 | $15,508 |
| 2007 | $0 | $221,235 | $15,508 | $15,508 | $15,508 |
Deed and Sales History
| 1 | 12/14/2023 | PRD | Personal Representatives Deed | GORVEATT, GEORGE | GORVEATT, GEORGE A | | | $0.00 | 58834 | 4567918 |
| 2 | 01/23/2014 | EZ | Easement | GORVEATT, GEORGE | GORVEATT, GEORGE | | | $0.00 | 14620 | 4356715 |
| 3 | 11/01/1997 | WD | Warranty Deed | BOON, CORNELIUS P | GORVEATT, JULIE L | | | $0.00 | 73946 | 97018902 |
| 4 | 08/01/1995 | OTHER | Other - Misc. Documents | BOON, CORNELIUS P | BOON, CORNELIUS P | | | $0.00 | 66598 | 95012974 |
| 5 | 02/01/1995 | OTHER | Other - Misc. Documents | Unknown | BOON, CORNELIUS P | | | $0.00 | 66228 | 0 |
Payout Agreement
| No payout information available.. |