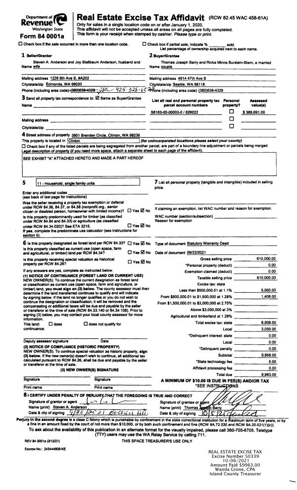
Property
Account |
| Property ID: | 711750 | Abbreviated Legal Description: | AMBERDALE #1 LOT 5 |
| Geographic ID: | S6027-00-00005-0 | Agent Code: | |
| Type: | Real | | |
| Tax Area: | 100 - APPRAISER-OH Schl Dist, in OH | Land Use Code | 11 |
| Open Space: | N | DFL | N |
| Historic Property: | N | Remodel Property: | N |
| Multi-Family Redevelopment: | N | | |
| Township: | | Section: | |
| Range: | |
Location |
| Address: | 1675 SW NIENHUIS ST OAK HARBOR, WA 98277 | Mapsco: | |
| Neighborhood: | Cycle 1 | Map ID: | 90 |
| Neighborhood CD: | 1 |
Owner |
| Name: | WESLEY, LISA | Owner ID: | 297378 |
| Mailing Address: | 1675 SW NIENHUIS ST OAK HARBOR, WA 98277 | % Ownership: | 100.0000000000% |
| | | Exemptions: | |
Taxes and Assessment Details
Values
| (+) Improvement Homesite Value: | + | $0 | |
| (+) Improvement Non-Homesite Value: | + | $251,686 | |
| (+) Land Homesite Value: | + | $0 | |
| (+) Land Non-Homesite Value: | + | $200,000 | |
| (+) Curr Use (HS): | + | $0 | $0 |
| (+) Curr Use (NHS): | + | $0 | $0 |
| | | -------------------------- | |
| (=) Market Value: | = | $451,686 | |
| (–) Productivity Loss: | – | $0 | |
| | | -------------------------- | |
| (=) Subtotal: | = | $451,686 | |
| (+) Senior Appraised Value: | + | $0 | |
| (+) Non-Senior Appraised Value: | + | $451,686 | |
| | | -------------------------- | |
| (=) Total Appraised Value: | = | $451,686 | |
| (–) Senior Exemption Loss: | – | $0 | |
| (–) Exemption Loss: | – | $0 | |
| | | -------------------------- | |
| (=) Taxable Value: | = | $451,686 | |
Taxing Jurisdiction
| Owner: | WESLEY, LISA | | |
| % Ownership: | 100.0000000000% | | |
| Total Value: | $451,686 | | |
| Tax Area: | 100 - APPRAISER-OH Schl Dist, in OH |
| CF | Conservation Futures | 0.0316035091 | $451,686 | $451,686 | $14.27 | | |
| CEM1 | Cemetery #1 | 0.0040320932 | $451,686 | $451,686 | $1.82 | | |
| COH | City of Oak Harbor | 2.3001546061 | $451,686 | $451,686 | $1,038.95 | | |
| OAKBOND | City of Oak Harbor BOND | 0.1926904192 | $451,686 | $451,686 | $87.04 | | |
| HOBOND | Hospital BOND | 0.1910887512 | $451,686 | $451,686 | $86.31 | | |
| HOGEN | Hospital GEN | 0.3902502903 | $451,686 | $451,686 | $176.27 | | |
| CE | County Current Expense | 0.3708482477 | $451,686 | $451,686 | $167.51 | | |
| ISLANDEMS | Hospital GEN (EMS) | 0.5000000000 | $451,686 | $451,686 | $225.84 | | |
| LIB | Library Sno-Isle GEN | 0.3153421757 | $451,686 | $451,686 | $142.44 | | |
| NWHIDPRMT | P & R N Whidbey GEN | 0.2004466701 | $451,686 | $451,686 | $90.54 | | |
| SCH201MO | School 201 Enrichment | 1.8559231640 | $451,686 | $451,686 | $838.29 | | |
| ST | State School | 1.3035497053 | $451,686 | $451,686 | $588.80 | | |
| ST2 | State School Part 2 | 0.8169543533 | $451,686 | $451,686 | $369.01 | | |
| | Total Tax Rate: | 8.4728839852 | | | | | |
| | | | | Taxes w/Current Exemptions: | $3,827.09 | | |
| | | | | Taxes w/o Exemptions: | $3,827.09 | | |
Improvement / Building
| Improvement #1: | RESIDENTIAL | State Code: | Y | 1220.0 sqft | Value: | $251,686 |
| Bathrooms: | 2 | Bedrooms: | 3 | | Ceiling: | DRYWALL PAINTED | Exterior Wall/Cover: | WOOD SIDING | | Floor Covering: | HARDWOOD/CARP 20-80 | Floor Structure: | WOOD W/SUBFLOOR | | Foundation: | CONCRETE | Heating: | FHA GAS | | Interior Finish: | DRYWALL PAINT | Plumbing Fixture Cnt: | 9 | | Roof Slope: | 5" IN 12" | Roof Structure/Cover: | CJ ASPHALT |
|
| | Type | Description | Class CD | Sub Class CD | Year Built | Area |
| | BAS | BASE/MAIN FLOOR | 3 | 0 | 1996 | 1220.0 |
| | OWR | OPEN WOOD PORCH W/STEPS/ROOF | 3 | 0 | 1996 | 120.0 |
| | AGR | ATTACHED GARAGE | 3 | 0 | 1996 | 400.0 |
| | OWC | OPEN WOOD PORCH W/STEPS/ROOF/C | 3 | 0 | 1996 | 210.0 |
Sketch
Property Image
Land
| 1 | 13 | SQ (06001-08000) | 0.1800 | 7840.80 | 0.00 | 0.00 | 1.00 | $200,000 | $0 |
Roll Value History
| 2026 | N/A | N/A | N/A | N/A | N/A |
| 2025 | $251,686 | $200,000 | $0 | $451,686 | $451,686 |
| 2024 | $254,745 | $190,000 | $0 | $444,745 | $444,745 |
| 2023 | $246,194 | $180,000 | $0 | $426,194 | $426,194 |
| 2022 | $225,668 | $180,000 | $0 | $405,668 | $405,668 |
| 2021 | $198,627 | $110,000 | $0 | $308,627 | $308,627 |
| 2020 | $193,209 | $100,000 | $0 | $293,209 | $293,209 |
| 2019 | $137,411 | $150,000 | $0 | $287,411 | $287,411 |
| 2018 | $137,814 | $130,000 | $0 | $267,814 | $267,814 |
| 2017 | $121,295 | $120,000 | $0 | $241,295 | $241,295 |
| 2016 | $122,813 | $90,000 | $0 | $212,813 | $212,813 |
| 2015 | $124,329 | $70,000 | $0 | $194,329 | $194,329 |
| 2014 | $125,845 | $55,000 | $0 | $180,845 | $180,845 |
| 2013 | $127,361 | $55,000 | $0 | $182,361 | $182,361 |
| 2012 | $128,877 | $60,000 | $0 | $188,877 | $188,877 |
| 2011 | $129,097 | $50,000 | $0 | $179,097 | $179,097 |
| 2010 | $132,242 | $50,000 | $0 | $182,242 | $182,242 |
| 2009 | $137,836 | $75,000 | $0 | $212,836 | $212,836 |
| 2008 | $139,428 | $100,000 | $0 | $239,428 | $239,428 |
| 2007 | $141,020 | $100,000 | $0 | $241,020 | $241,020 |
Deed and Sales History
| 1 | 12/16/2020 | WD | Warranty Deed | KELLY, CHRIS | WESLEY, LISA | | | $370,000.00 | 46176 | 4505602 |
| 2 | 01/31/2018 | WD | Warranty Deed | BOESCH, TED E | KELLY, CHRIS | | | $295,000.00 | 32834 | 4438541 |
| 3 | 02/07/2002 | WD | Warranty Deed | LABEFF, TERRY E | BOESCH, TED E | | | $138,000.00 | 20563 | 4011259 |
| 4 | 03/19/1999 | WD | Warranty Deed | PROCTER, DAVID R | LABEFF, TERRY E | | | $129,500.00 | 91055 | 99007232 |
| 5 | 08/01/1995 | QCD | Quit Claim Deed | KOORN, EUGENE R | LINN, CLAUD & | | | $4,545.00 | 52889 | 95013373 |
| 6 | 08/01/1995 | WD | Warranty Deed | LINN, CLAUD & | PROCTER, DAVID R | | | $39,500.00 | 52989 | 95013923 |
| 7 | 01/01/1900 | OTHER | Other - Misc. Documents | Unknown | KOORN, EUGENE R | | | $0.00 | 22970 | 92014392 |
Payout Agreement
| No payout information available.. |