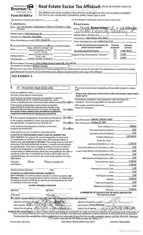
Property
Account |
| Property ID: | 711787 | Abbreviated Legal Description: | AMBERDALE #1 LOT 8 |
| Geographic ID: | S6027-00-00008-0 | Agent Code: | |
| Type: | Real | | |
| Tax Area: | 100 - APPRAISER-OH Schl Dist, in OH | Land Use Code | 11 |
| Open Space: | N | DFL | N |
| Historic Property: | N | Remodel Property: | N |
| Multi-Family Redevelopment: | N | | |
| Township: | | Section: | |
| Range: | |
Location |
| Address: | 1480 SW 16TH AVE OAK HARBOR, WA 98277 | Mapsco: | |
| Neighborhood: | Cycle 1 | Map ID: | 90 |
| Neighborhood CD: | 1 |
Owner |
| Name: | BULGER, THOMAS R | Owner ID: | 313449 |
| Mailing Address: | PO BOX 724 OAK HARBOR, WA 98277 | % Ownership: | 100.0000000000% |
| | | Exemptions: | |
Taxes and Assessment Details
Values
| (+) Improvement Homesite Value: | + | $0 | |
| (+) Improvement Non-Homesite Value: | + | $243,356 | |
| (+) Land Homesite Value: | + | $0 | |
| (+) Land Non-Homesite Value: | + | $200,000 | |
| (+) Curr Use (HS): | + | $0 | $0 |
| (+) Curr Use (NHS): | + | $0 | $0 |
| | | -------------------------- | |
| (=) Market Value: | = | $443,356 | |
| (–) Productivity Loss: | – | $0 | |
| | | -------------------------- | |
| (=) Subtotal: | = | $443,356 | |
| (+) Senior Appraised Value: | + | $0 | |
| (+) Non-Senior Appraised Value: | + | $443,356 | |
| | | -------------------------- | |
| (=) Total Appraised Value: | = | $443,356 | |
| (–) Senior Exemption Loss: | – | $0 | |
| (–) Exemption Loss: | – | $0 | |
| | | -------------------------- | |
| (=) Taxable Value: | = | $443,356 | |
Taxing Jurisdiction
| Owner: | BULGER, THOMAS R | | |
| % Ownership: | 100.0000000000% | | |
| Total Value: | $443,356 | | |
| Tax Area: | 100 - APPRAISER-OH Schl Dist, in OH |
| CF | Conservation Futures | 0.0316035091 | $443,356 | $443,356 | $14.01 | | |
| CEM1 | Cemetery #1 | 0.0040320932 | $443,356 | $443,356 | $1.79 | | |
| COH | City of Oak Harbor | 2.3001546061 | $443,356 | $443,356 | $1,019.79 | | |
| OAKBOND | City of Oak Harbor BOND | 0.1926904192 | $443,356 | $443,356 | $85.43 | | |
| HOBOND | Hospital BOND | 0.1910887512 | $443,356 | $443,356 | $84.72 | | |
| HOGEN | Hospital GEN | 0.3902502903 | $443,356 | $443,356 | $173.02 | | |
| CE | County Current Expense | 0.3708482477 | $443,356 | $443,356 | $164.42 | | |
| ISLANDEMS | Hospital GEN (EMS) | 0.5000000000 | $443,356 | $443,356 | $221.68 | | |
| LIB | Library Sno-Isle GEN | 0.3153421757 | $443,356 | $443,356 | $139.81 | | |
| NWHIDPRMT | P & R N Whidbey GEN | 0.2004466701 | $443,356 | $443,356 | $88.87 | | |
| SCH201MO | School 201 Enrichment | 1.8559231640 | $443,356 | $443,356 | $822.83 | | |
| ST | State School | 1.3035497053 | $443,356 | $443,356 | $577.94 | | |
| ST2 | State School Part 2 | 0.8169543533 | $443,356 | $443,356 | $362.20 | | |
| | Total Tax Rate: | 8.4728839852 | | | | | |
| | | | | Taxes w/Current Exemptions: | $3,756.51 | | |
| | | | | Taxes w/o Exemptions: | $3,756.51 | | |
Improvement / Building
| Improvement #1: | RESIDENTIAL | State Code: | Y | 1252.0 sqft | Value: | $243,356 |
| Bathrooms: | 2 | Bedrooms: | 3 | | Ceiling: | DRYWALL PAINTED | Exterior Wall/Cover: | WOOD SIDING | | Floor Covering: | CARPET/VINYL 60-40 | Floor Structure: | WOOD W/SUBFLOOR | | Foundation: | CONCRETE | Heating: | FHA GAS | | Interior Finish: | DRYWALL PAINT | Plumbing Fixture Cnt: | 9 | | Roof Slope: | 4" IN 12" | Roof Structure/Cover: | CJ ASPHALT |
|
| | Type | Description | Class CD | Sub Class CD | Year Built | Area |
| | BAS | BASE/MAIN FLOOR | 3 | 0 | 1996 | 1252.0 |
| | OWP | OPEN WOOD PORCH W/STEPS | 3 | 0 | 1996 | 360.0 |
| | AGR | ATTACHED GARAGE | 3 | 0 | 1996 | 440.0 |
| | OWC | OPEN WOOD PORCH W/STEPS/ROOF/C | 3 | 0 | 1996 | 68.0 |
Sketch
| No sketches available for this property. |
Property Image
Land
| 1 | 14 | SQ (08001-12000) | 0.2800 | 12196.80 | 0.00 | 0.00 | 1.00 | $200,000 | $0 |
Roll Value History
| 2026 | N/A | N/A | N/A | N/A | N/A |
| 2025 | $243,356 | $200,000 | $0 | $443,356 | $443,356 |
| 2024 | $233,776 | $190,000 | $0 | $423,776 | $423,776 |
| 2023 | $224,582 | $180,000 | $0 | $404,582 | $404,582 |
| 2022 | $205,932 | $180,000 | $0 | $385,932 | $385,932 |
| 2021 | $181,300 | $110,000 | $0 | $291,300 | $291,300 |
| 2020 | $176,412 | $100,000 | $0 | $276,412 | $276,412 |
| 2019 | $124,360 | $150,000 | $0 | $274,360 | $274,360 |
| 2018 | $124,733 | $130,000 | $0 | $254,733 | $254,733 |
| 2017 | $119,630 | $120,000 | $0 | $239,630 | $239,630 |
| 2016 | $121,125 | $90,000 | $0 | $211,125 | $211,125 |
| 2015 | $122,621 | $70,000 | $0 | $192,621 | $192,621 |
| 2014 | $124,116 | $55,000 | $0 | $179,116 | $179,116 |
| 2013 | $125,611 | $55,000 | $0 | $180,611 | $180,611 |
| 2012 | $127,106 | $60,000 | $0 | $187,106 | $187,106 |
| 2011 | $127,380 | $50,000 | $0 | $177,380 | $177,380 |
| 2010 | $131,559 | $50,000 | $0 | $181,559 | $181,559 |
| 2009 | $137,170 | $75,000 | $0 | $212,170 | $212,170 |
| 2008 | $138,811 | $100,000 | $0 | $238,811 | $238,811 |
| 2007 | $140,444 | $100,000 | $0 | $240,444 | $240,444 |
Deed and Sales History
| 1 | 07/31/2024 | WD | Warranty Deed | CARTER, SERLOYD L | BULGER, THOMAS R | | | $450,000.00 | 60881 | 4575626 |
| 2 | 08/31/2007 | WD | Warranty Deed | MEEKER, JUSTIN W | CARTER, SERLOYD L | | | $245,500.00 | 73009 | 4211118 |
| 3 | 06/17/2004 | WD | Warranty Deed | HENRICKSEN, TODD G | MEEKER, JUSTIN W | | | $165,900.00 | 42883 | 4105215 |
| 4 | 12/01/1996 | WD | Warranty Deed | PROCTER, DAVID R | HENRICKSEN, TODD G | | | $129,000.00 | 64340 | 96021173 |
| 5 | 07/01/1996 | WD | Warranty Deed | LINN, CLAUD & | PROCTER, DAVID R | | | $39,500.00 | 62359 | 96011679 |
| 6 | 08/01/1995 | QCD | Quit Claim Deed | KOORN, EUGENE R | LINN, CLAUD & | | | $4,545.00 | 52889 | 95013373 |
| 7 | 01/01/1900 | OTHER | Other - Misc. Documents | Unknown | KOORN, EUGENE R | | | $0.00 | 22970 | 92014392 |
Payout Agreement
| No payout information available.. |