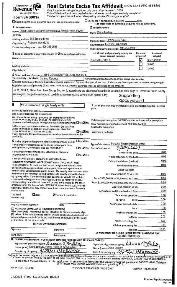
Property
Account |
| Property ID: | 712018 | Abbreviated Legal Description: | LOT 2 SP 56-93.32803.305-2330 V3 SP P38 AF#95013353 |
| Geographic ID: | R32803-322-2330 | Agent Code: | |
| Type: | Real | | |
| Tax Area: | 712 - APPRAISER-S Whid Schl Dist, outside Langley, improved, greater than 1 acre | Land Use Code | 11 |
| Open Space: | N | DFL | N |
| Historic Property: | N | Remodel Property: | N |
| Multi-Family Redevelopment: | N | | |
| Township: | 28 | Section: | 03 |
| Range: | R3 |
Location |
| Address: | 7377 BARRED OWL WAY CLINTON, WA 98236 | Mapsco: | |
| Neighborhood: | Cycle 4 | Map ID: | 685 |
| Neighborhood CD: | 4 |
Owner |
| Name: | ENGEBRETSON, SUSAN C. | Owner ID: | 277950 |
| Mailing Address: | 7377 BARRED OWL WAY CLINTON, WA 98236 | % Ownership: | 100.0000000000% |
| | | Exemptions: | SNR/DSBL |
Taxes and Assessment Details
Values
| (+) Improvement Homesite Value: | + | $123,876 | |
| (+) Improvement Non-Homesite Value: | + | $0 | |
| (+) Land Homesite Value: | + | $370,000 | |
| (+) Land Non-Homesite Value: | + | $0 | |
| (+) Curr Use (HS): | + | $0 | $0 |
| (+) Curr Use (NHS): | + | $0 | $0 |
| | | -------------------------- | |
| (=) Market Value: | = | $493,876 | |
| (–) Productivity Loss: | – | $0 | |
| | | -------------------------- | |
| (=) Subtotal: | = | $493,876 | |
| (+) Senior Appraised Value: | + | $165,666 | |
| (+) Non-Senior Appraised Value: | + | $0 | |
| | | -------------------------- | |
| (=) Total Appraised Value: | = | $165,666 | |
| (–) Senior Exemption Loss: | – | $99,400 | |
| (–) Exemption Loss: | – | $0 | |
| | | -------------------------- | |
| (=) Taxable Value: | = | $66,266 | |
Taxing Jurisdiction
| Owner: | ENGEBRETSON, SUSAN C. | | |
| % Ownership: | 100.0000000000% | | |
| Total Value: | $493,876 | | |
| Tax Area: | 712 - APPRAISER-S Whid Schl Dist, outside Langley, improved, greater than 1 acre |
| CF | Conservation Futures | 0.0316035091 | $493,876 | $66,266 | $2.09 | | |
| FIRE3 | Fire & Rescue Dist #3 S Whidbey GEN | 1.2004855531 | $493,876 | $66,266 | $79.55 | | |
| HOBOND | Hospital BOND | 0.0000000000 | $493,876 | $0 | $0.00 | | |
| HOGEN | Hospital GEN | 0.3902502903 | $493,876 | $66,266 | $25.86 | | |
| CE | County Current Expense | 0.3708482477 | $493,876 | $66,266 | $24.57 | | |
| CR | County Roads | 0.4584763726 | $493,876 | $66,266 | $30.38 | | |
| ISLANDEMS | Hospital GEN (EMS) | 0.5000000000 | $493,876 | $66,266 | $33.13 | | |
| LIB | Library Sno-Isle GEN | 0.3153421757 | $493,876 | $66,266 | $20.90 | | |
| PORTWHID | Port of S Whidbey GEN | 0.1094540357 | $493,876 | $66,266 | $7.25 | | |
| SCH206BOND | School 206 BOND | 0.3161759235 | $493,876 | $66,266 | $20.95 | | |
| SCH206MO | School 206 Enrichment | 0.0000000000 | $493,876 | $0 | $0.00 | | |
| ST | State School | 1.3035497053 | $493,876 | $66,266 | $86.38 | | |
| ST2 | State School Part 2 | 0.0000000000 | $493,876 | $0 | $0.00 | | |
| SWHIDPRBD | P & R S Whidbey BOND | 0.0000000000 | $493,876 | $0 | $0.00 | | |
| SWHIDPRBD2 | P & R S Whidbey BOND2 | 0.0000000000 | $493,876 | $0 | $0.00 | | |
| SWHIDPRMT | P & R S Whidbey GEN | 0.2053334452 | $493,876 | $66,266 | $13.61 | | |
| | Total Tax Rate: | 5.2015192582 | | | | | |
| | | | | Taxes w/Current Exemptions: | $344.67 | | |
| | | | | Taxes w/o Exemptions: | $3,305.73 | | |
Improvement / Building
| Improvement #1: | MANUFACTURED HOME | State Code: | Y | 1620.0 sqft | Value: | $123,876 |
| Bathrooms: | 0 | Bedrooms: | 0 | | Ceiling: | PLASTER PAINTED | Cooling: | EVAP NO DUCT | | Exterior Wall/Cover: | VINYL | Floor Covering: | CARPET 100% | | Floor Structure: | SLAB ON GRADE | Foundation: | SLAB | | Heating: | FHA ELECTRIC | Interior Finish: | PLASTER | | Plumbing Fixture Cnt: | 1 | Roof Slope: | FLAT | | Roof Structure/Cover: | CJ ALUMINIUM HEAVY |   |   |
|
| | Type | Description | Class CD | Sub Class CD | Year Built | Area |
| | BAS | BASE/MAIN FLOOR | 4 | 0 | 2002 | 1620.0 |
| | DGR | DETACHED GARAGE | 4 | 0 | 2002 | 864.0 |
| | OWP | OPEN WOOD PORCH W/STEPS | 4 | 0 | 2002 | 130.0 |
Sketch
Property Image
Land
| 1 | 32 | AC (03.01-09.99) | 5.0800 | 221284.80 | 0.00 | 0.00 | 1.00 | $370,000 | $0 |
Roll Value History
| 2026 | N/A | N/A | N/A | N/A | N/A |
| 2025 | $123,876 | $370,000 | $0 | $493,876 | $66,266 |
| 2024 | $127,748 | $350,000 | $0 | $477,748 | $66,266 |
| 2023 | $114,448 | $330,000 | $0 | $444,448 | $66,266 |
| 2022 | $106,681 | $280,000 | $0 | $386,681 | $66,266 |
| 2021 | $95,418 | $230,000 | $0 | $325,418 | $66,266 |
| 2020 | $85,961 | $190,000 | $0 | $275,961 | $66,266 |
| 2019 | $69,466 | $250,000 | $0 | $319,466 | $66,266 |
| 2018 | $71,225 | $210,000 | $0 | $281,225 | $107,683 |
| 2017 | $72,983 | $190,000 | $0 | $262,983 | $107,683 |
| 2016 | $74,743 | $135,000 | $0 | $209,743 | $107,683 |
| 2015 | $75,621 | $135,000 | $0 | $210,621 | $107,683 |
| 2014 | $91,828 | $135,000 | $0 | $226,828 | $165,666 |
| 2013 | $92,589 | $135,000 | $0 | $227,589 | $165,666 |
| 2012 | $93,351 | $172,720 | $0 | $266,071 | $165,666 |
| 2011 | $94,874 | $170,000 | $0 | $264,874 | $165,666 |
| 2010 | $92,254 | $170,000 | $0 | $262,254 | $165,666 |
| 2009 | $91,475 | $223,520 | $220,000 | $311,475 | $165,666 |
| 2008 | $92,406 | $213,360 | $210,000 | $302,406 | $66,266 |
| 2007 | $305,170 | $213,360 | $210,000 | $305,170 | $66,266 |
Deed and Sales History
| 1 | 12/19/2016 | TRUSTEED | Trustee's Deed | ENGEBRETSON, DAVID C | ENGEBRETSON, SUSAN C. | | | $0.00 | 27411 | 4413614 |
| 2 | 04/24/2000 | WD | Warranty Deed | SMITH, JOHN W | ENGEBRETSON, DAVID C | | | $56,000.00 | 1609 | 20007752 |
| 3 | 01/01/1900 | OTHER | Other - Misc. Documents | Unknown | SMITH, JOHN W | | | $0.00 | 11196 | 91005078 |
| 4 | 01/01/1900 | OTHER | Other - Misc. Documents | SMITH, JOHN W | SMITH, JOHN W | | | $0.00 | 0 | 0 |
Payout Agreement
| No payout information available.. |