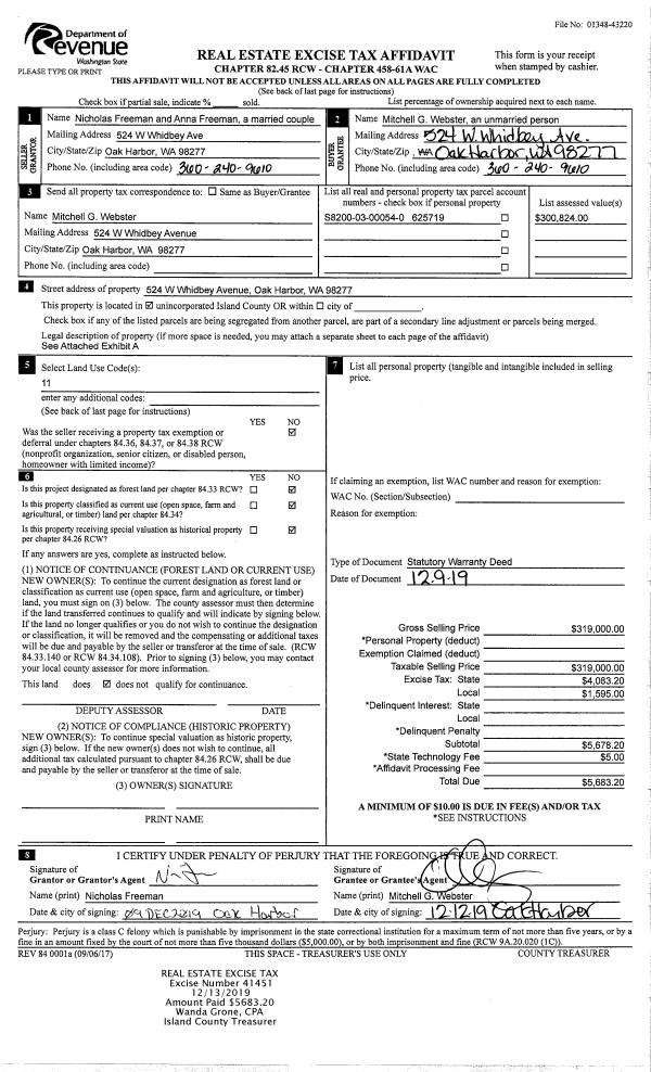
Property
Account |
| Property ID: | 712036 | Abbreviated Legal Description: | W/F 9 - IN GL3: BG NWCR GL3 TPB |
| Geographic ID: | R23027-386-0620 | Agent Code: | |
| Type: | Real | | |
| Tax Area: | 312 - APPRAISER-Cpvl Schl Dist, outside Cpvl, improved, greater than 1 acre | Land Use Code | 11 |
| Open Space: | N | DFL | N |
| Historic Property: | N | Remodel Property: | N |
| Multi-Family Redevelopment: | N | | |
| Township: | 30 | Section: | 27 |
| Range: | R2 |
Location |
| Address: | 4109 HONEYMOON BAY RD GREENBANK, WA 98253 | Mapsco: | |
| Neighborhood: | Cycle 3 | Map ID: | 420 |
| Neighborhood CD: | 3 |
Owner |
| Name: | ROD, WILLIAM H | Owner ID: | 265074 |
| Mailing Address: | & JOLENE E ROD UND 1/2 INT EGARD H BERRY & JANET R BERRY UNDIV 1/2 INT 14012 64TH AVE W EDMONDS, WA 98026 | % Ownership: | 100.0000000000% |
| | | Exemptions: | |
Taxes and Assessment Details
Values
| (+) Improvement Homesite Value: | + | $0 | |
| (+) Improvement Non-Homesite Value: | + | $143,480 | |
| (+) Land Homesite Value: | + | $0 | |
| (+) Land Non-Homesite Value: | + | $776,970 | |
| (+) Curr Use (HS): | + | $0 | $0 |
| (+) Curr Use (NHS): | + | $0 | $0 |
| | | -------------------------- | |
| (=) Market Value: | = | $920,450 | |
| (–) Productivity Loss: | – | $0 | |
| | | -------------------------- | |
| (=) Subtotal: | = | $920,450 | |
| (+) Senior Appraised Value: | + | $0 | |
| (+) Non-Senior Appraised Value: | + | $920,450 | |
| | | -------------------------- | |
| (=) Total Appraised Value: | = | $920,450 | |
| (–) Senior Exemption Loss: | – | $0 | |
| (–) Exemption Loss: | – | $0 | |
| | | -------------------------- | |
| (=) Taxable Value: | = | $920,450 | |
Taxing Jurisdiction
| Owner: | ROD, WILLIAM H | | |
| % Ownership: | 100.0000000000% | | |
| Total Value: | $920,450 | | |
| Tax Area: | 312 - APPRAISER-Cpvl Schl Dist, outside Cpvl, improved, greater than 1 acre |
| CF | Conservation Futures | 0.0316035091 | $920,450 | $920,450 | $29.09 | | |
| CEM2 | Cemetery #2 | 0.0095056933 | $920,450 | $920,450 | $8.75 | | |
| FIRE5 | Fire & Rescue Dist #5 C Whidbey GEN | 1.2008080668 | $920,450 | $920,450 | $1,105.28 | | |
| FIRE5BOND | Fire & Rescue Dist #5 C Whidbey BOND | 0.1400090713 | $920,450 | $920,450 | $128.87 | | |
| HOBOND | Hospital BOND | 0.1910887512 | $920,450 | $920,450 | $175.89 | | |
| HOGEN | Hospital GEN | 0.3902502903 | $920,450 | $920,450 | $359.21 | | |
| CE | County Current Expense | 0.3708482477 | $920,450 | $920,450 | $341.35 | | |
| CR | County Roads | 0.4584763726 | $920,450 | $920,450 | $422.00 | | |
| ISLANDEMS | Hospital GEN (EMS) | 0.5000000000 | $920,450 | $920,450 | $460.23 | | |
| LIB | Library Sno-Isle GEN | 0.3153421757 | $920,450 | $920,450 | $290.26 | | |
| LIBCAP | Library Sno-Isle BOND (Cap Fac Imp Area) | 0.0543427938 | $920,450 | $920,450 | $50.02 | | |
| POCOUP | Port of Coupeville GEN | 0.1093371703 | $920,450 | $920,450 | $100.64 | | |
| POCOUPIDD | Port of Coupeville IDD | 0.3409740022 | $920,450 | $920,450 | $313.85 | | |
| COUPSDTECH | School 204 CP (TECH) | 0.7545480007 | $920,450 | $920,450 | $694.52 | | |
| SCH204MO | School 204 Enrichment | 0.6716186034 | $920,450 | $920,450 | $618.19 | | |
| ST | State School | 1.3035497053 | $920,450 | $920,450 | $1,199.85 | | |
| ST2 | State School Part 2 | 0.8169543533 | $920,450 | $920,450 | $751.97 | | |
| | Total Tax Rate: | 7.6592568070 | | | | | |
| | | | | Taxes w/Current Exemptions: | $7,049.97 | | |
| | | | | Taxes w/o Exemptions: | $7,049.97 | | |
Improvement / Building
| Improvement #1: | RESIDENTIAL | State Code: | Y | 1049.0 sqft | Value: | $143,480 |
| Bathrooms: | 1 | Bedrooms: | 2 | | Ceiling: | DRYWALL PAINTED | Exterior Wall/Cover: | WOOD SIDING | | Floor Covering: | CARPET/VINYL 20-80 | Floor Structure: | WOOD W/SUBFLOOR | | Foundation: | CONCRETE | Heating: | BASEBOARD ELECTRIC | | Interior Finish: | DRYWALL PAINT | Plumbing Fixture Cnt: | 7 | | Roof Slope: | 6" IN 12" | Roof Structure/Cover: | CJ ASPHALT |
|
| | Type | Description | Class CD | Sub Class CD | Year Built | Area |
| | BAS | BASE/MAIN FLOOR | 3 | 0 | 1954 | 1049.0 |
| | OCP | OPEN CARPORT | 3 | 0 | 1954 | 480.0 |
| | OWP | OPEN WOOD PORCH W/STEPS | 3 | 0 | 1954 | 300.0 |
| | OWP | OPEN WOOD PORCH W/STEPS | 3 | 0 | 1954 | 100.0 |
| | OWR | OPEN WOOD PORCH W/STEPS/ROOF | 3 | 0 | 1954 | 166.0 |
Sketch
Property Image
Land
| 1 | HB | HIGH BLUFF | 5.6300 | 245242.80 | 197.00 | 0.00 | 1.00 | $775,000 | $0 |
| 2 | 55 | TIDES | 0.0000 | 0.00 | 197.00 | 0.00 | 1.00 | $1,970 | $0 |
Roll Value History
| 2026 | N/A | N/A | N/A | N/A | N/A |
| 2025 | $143,480 | $776,970 | $0 | $920,450 | $920,450 |
| 2024 | $148,857 | $726,970 | $0 | $875,827 | $875,827 |
| 2023 | $151,289 | $726,970 | $0 | $878,259 | $878,259 |
| 2022 | $139,200 | $726,970 | $0 | $866,170 | $866,170 |
| 2021 | $122,957 | $551,970 | $0 | $674,927 | $674,927 |
| 2020 | $120,138 | $501,970 | $0 | $622,108 | $622,108 |
| 2019 | $84,130 | $601,970 | $0 | $686,100 | $686,100 |
| 2018 | $84,454 | $501,970 | $0 | $586,424 | $586,424 |
| 2017 | $85,100 | $501,970 | $0 | $587,070 | $587,070 |
| 2016 | $86,391 | $501,970 | $0 | $588,361 | $588,361 |
| 2015 | $87,683 | $501,970 | $0 | $589,653 | $589,653 |
| 2014 | $88,977 | $501,970 | $0 | $590,947 | $590,947 |
| 2013 | $60,271 | $516,577 | $0 | $576,848 | $576,848 |
| 2012 | $61,495 | $516,577 | $0 | $578,072 | $578,072 |
| 2011 | $62,720 | $516,577 | $0 | $579,297 | $579,297 |
| 2010 | $70,690 | $516,577 | $0 | $587,267 | $587,267 |
| 2009 | $75,677 | $688,113 | $0 | $763,790 | $763,790 |
| 2008 | $76,949 | $688,113 | $0 | $765,062 | $765,062 |
| 2007 | $71,494 | $543,426 | $0 | $614,920 | $614,920 |
Deed and Sales History
| 1 | 02/07/2014 | CCOMPROP | Create Community Property | ROD, WILLIAM H | ROD, WILLIAM H | | | $0.00 | 14266 | 4355149 |
| 2 | 07/24/2013 | WD | Warranty Deed | ROD ET AL, JOLENE A | ROD, WILLIAM H | | | $160,650.00 | 12238 | 4345368 |
| 3 | 09/01/2002 | OTHER | Other - Misc. Documents | LECHELT, MERLE A | ROD ET AL, JOLENE A | | | $0.00 | 0 | 0 |
| 4 | 06/01/1993 | QCD | Quit Claim Deed | LECHELT, MERLE | LECHELT, MERLE A | | | $0.00 | 32305 | 93011919 |
| 5 | 01/01/1900 | OTHER | Other - Misc. Documents | Unknown | LECHELT, MERLE | | | $0.00 | 0 | 0 |
Payout Agreement
| No payout information available.. |