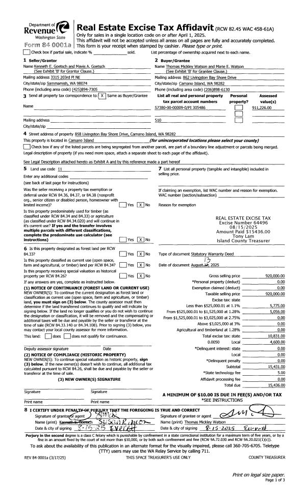
Property
Account |
| Property ID: | 712447 | Abbreviated Legal Description: | 15 - W279' OF N198' OF S/2 SW SW EX W30' RD (RD AC EXCEPTED 9/9/82) |
| Geographic ID: | R23102-059-0190 | Agent Code: | |
| Type: | Real | | |
| Tax Area: | 512 - APPRAISER-Stan/Cam Schl Dist, improved, greater than 1 acre | Land Use Code | 11 |
| Open Space: | N | DFL | N |
| Historic Property: | N | Remodel Property: | N |
| Multi-Family Redevelopment: | N | | |
| Township: | 31 | Section: | 02 |
| Range: | R2 |
Location |
| Address: | 347 S WEST CAMANO DR CAMANO ISLAND, WA 98282 | Mapsco: | |
| Neighborhood: | Cycle 5 | Map ID: | 453 |
| Neighborhood CD: | 5 |
Owner |
| Name: | SIMMONS, STEPHANIE | Owner ID: | 315381 |
| Mailing Address: | 20716 37TH AVE SE BOTHELL, WA 98021 | % Ownership: | 100.0000000000% |
| | | Exemptions: | |
Taxes and Assessment Details
Values
| (+) Improvement Homesite Value: | + | $0 | |
| (+) Improvement Non-Homesite Value: | + | $379,866 | |
| (+) Land Homesite Value: | + | $0 | |
| (+) Land Non-Homesite Value: | + | $260,000 | |
| (+) Curr Use (HS): | + | $0 | $0 |
| (+) Curr Use (NHS): | + | $0 | $0 |
| | | -------------------------- | |
| (=) Market Value: | = | $639,866 | |
| (–) Productivity Loss: | – | $0 | |
| | | -------------------------- | |
| (=) Subtotal: | = | $639,866 | |
| (+) Senior Appraised Value: | + | $0 | |
| (+) Non-Senior Appraised Value: | + | $639,866 | |
| | | -------------------------- | |
| (=) Total Appraised Value: | = | $639,866 | |
| (–) Senior Exemption Loss: | – | $0 | |
| (–) Exemption Loss: | – | $0 | |
| | | -------------------------- | |
| (=) Taxable Value: | = | $639,866 | |
Taxing Jurisdiction
| Owner: | SIMMONS, STEPHANIE | | |
| % Ownership: | 100.0000000000% | | |
| Total Value: | $639,866 | | |
| Tax Area: | 512 - APPRAISER-Stan/Cam Schl Dist, improved, greater than 1 acre |
| CF | Conservation Futures | 0.0316035091 | $639,866 | $639,866 | $20.22 | | |
| EMS1 | Fire & Rescue Dist #1 Camano GEN (EMS) | 0.3677864386 | $639,866 | $639,866 | $235.33 | | |
| FIRE1 | Fire & Rescue Dist #1 Camano GEN | 1.2502910536 | $639,866 | $639,866 | $800.02 | | |
| FIRE1BOND | Fire & Rescue Dist #1 Camano BOND | 0.1570001679 | $639,866 | $639,866 | $100.46 | | |
| CE | County Current Expense | 0.3708482477 | $639,866 | $639,866 | $237.29 | | |
| CR | County Roads | 0.4584763726 | $639,866 | $639,866 | $293.36 | | |
| LCIB | Library Sno-Isle BOND (Camano Island) | 0.0396325772 | $639,866 | $639,866 | $25.36 | | |
| LIB | Library Sno-Isle GEN | 0.3153421757 | $639,866 | $639,866 | $201.78 | | |
| SCH205_401 | School 205-401 Enrichment | 1.2698420524 | $639,866 | $639,866 | $812.53 | | |
| SCH205BOND | School 205-401 BOND | 0.9396497583 | $639,866 | $639,866 | $601.25 | | |
| ST | State School | 1.3035497053 | $639,866 | $639,866 | $834.10 | | |
| ST2 | State School Part 2 | 0.8169543533 | $639,866 | $639,866 | $522.74 | | |
| | Total Tax Rate: | 7.3209764117 | | | | | |
| | | | | Taxes w/Current Exemptions: | $4,684.44 | | |
| | | | | Taxes w/o Exemptions: | $4,684.44 | | |
Improvement / Building
| Improvement #1: | RESIDENTIAL | State Code: | Y | 988.0 sqft | Value: | $252,267 |
| Bathrooms: | 1 | Bedrooms: | 2 | | Ceiling: | ACOUSTIC FURRED | Exterior Wall/Cover: | WOOD SIDING | | Floor Covering: | CERAMIC TILE/HWD 40/60 | Floor Structure: | WOOD W/SUBFLOOR | | Foundation: | CONCRETE | Heating: | WALL HEAT ELECTRIC | | Interior Finish: | DRYWALL PAINT | Plumbing Fixture Cnt: | 6 | | Roof Slope: | 6" IN 12" | Roof Structure/Cover: | CJ ASPHALT |
|
| | Type | Description | Class CD | Sub Class CD | Year Built | Area |
| | BAS | BASE/MAIN FLOOR | 3 | 0 | 1928 | 988.0 |
| | UB6 | BASEMENT UNFINISHED 6" | 3 | 0 | 1928 | 988.0 |
| | OP3 | OPEN PORCH W/ROOF | 3 | 0 | 1928 | 192.0 |
| | UTY | STORAGE/UTILITY | 3 | 0 | 1928 | 224.0 |
| | OWR | OPEN WOOD PORCH W/STEPS/ROOF | 3 | 0 | 1928 | 60.0 |
| | CPD | OPEN CARPORT DIRT FLOOR | 3 | 0 | 1928 | 200.0 |
| Improvement #2: | RESIDENTIAL | State Code: | Y | 552.0 sqft | Value: | $127,599 |
| Bathrooms: | 1 | Bedrooms: | 1 | | Ceiling: | TONGUE & GROOVE | Exterior Wall/Cover: | PLY/HARDBOARD T-111 | | Floor Covering: | HARDWOOD 100% | Floor Structure: | WOOD W/SUBFLOOR | | Foundation: | PIERS/CONCRETE | Heating: | WALL HEAT ELECTRIC | | Interior Finish: | DRYWALL PAINT | Plumbing Fixture Cnt: | 3 | | Roof Slope: | 6" IN 12" | Roof Structure/Cover: | CJ ALUMINIUM HEAVY |
|
| | Type | Description | Class CD | Sub Class CD | Year Built | Area |
| | BAS | BASE/MAIN FLOOR | 3 | 0 | 2021 | 432.0 |
| | LOF | LOFT | 3 | 0 | 2021 | 120.0 |
| | OWP | OPEN WOOD PORCH W/STEPS | 3 | 0 | 2021 | 651.0 |
Sketch
Property Image
Land
| 1 | 17 | AC (01.01-02.00) | 1.1300 | 49222.80 | 0.00 | 0.00 | 1.00 | $260,000 | $0 |
Roll Value History
| 2026 | N/A | N/A | N/A | N/A | N/A |
| 2025 | $379,866 | $260,000 | $0 | $639,866 | $639,866 |
| 2024 | $383,984 | $240,000 | $0 | $623,984 | $623,984 |
| 2023 | $388,438 | $230,000 | $0 | $618,438 | $618,438 |
| 2022 | $356,682 | $240,000 | $0 | $596,682 | $596,682 |
| 2021 | $237,341 | $170,000 | $0 | $407,341 | $407,341 |
| 2020 | $162,798 | $150,000 | $0 | $312,798 | $312,798 |
| 2019 | $117,176 | $200,000 | $0 | $317,176 | $317,176 |
| 2018 | $117,555 | $150,000 | $0 | $267,555 | $267,555 |
| 2017 | $118,314 | $135,000 | $0 | $253,314 | $253,314 |
| 2016 | $119,829 | $130,000 | $0 | $249,829 | $249,829 |
| 2015 | $104,732 | $74,400 | $0 | $179,132 | $179,132 |
| 2014 | $106,187 | $74,400 | $0 | $180,587 | $180,587 |
| 2013 | $107,645 | $74,400 | $0 | $182,045 | $182,045 |
| 2012 | $109,101 | $74,400 | $0 | $183,501 | $183,501 |
| 2011 | $110,556 | $93,000 | $0 | $203,556 | $203,556 |
| 2010 | $88,377 | $93,000 | $0 | $181,377 | $181,377 |
| 2009 | $91,800 | $135,000 | $0 | $226,800 | $226,800 |
| 2008 | $93,006 | $136,000 | $0 | $229,006 | $229,006 |
| 2007 | $94,205 | $123,750 | $0 | $217,955 | $217,955 |
Deed and Sales History
| 1 | 11/21/2024 | QCD | Quit Claim Deed | CASTILLO, GERARDO | SIMMONS, STEPHANIE | | | $0.00 | 62497 | 4581994 |
| 2 | 11/25/2020 | WD | Warranty Deed | ROTHSTEIN, JOSEPH | SIMMONS, STEPHANIE | | | $445,000.00 | 45931 | 4503756 |
| 3 | 08/26/2015 | WD | Warranty Deed | PITTS JR, AUBERT L | ROTHSTEIN, JOSEPH | | | $231,750.00 | 21201 | 4385251 |
| 4 | 06/13/2013 | ESTSEPPROP | Establish Separate Property | PITTS JR, AUBERT L | PITTS JR, AUBERT L | | | | 2086 | 4279278 |
| 5 | 08/19/2010 | WD | Warranty Deed | FRANK, CHRISTOPHER L | PITTS JR, AUBERT L | | | $224,000.00 | 2085 | 4279277 |
| 6 | 04/29/2003 | TRUSTEED | Trustee's Deed | SMITH TRUSTEE, GAYLE GREEN | FRANK, CHRISTOPHER L | | | $159,000.00 | 31817 | 4057126 |
| 7 | 11/07/2001 | QCD | Quit Claim Deed | CLARK, GERTRUDE A | SMITH TRUSTEE, GAYLE GREEN | | | $0.00 | 20075 | 4007572 |
| 8 | 01/01/1900 | OTHER | Other - Misc. Documents | Unknown | CLARK, GERTRUDE A | | | $0.00 | 0 | 0 |
Payout Agreement
| No payout information available.. |