Property
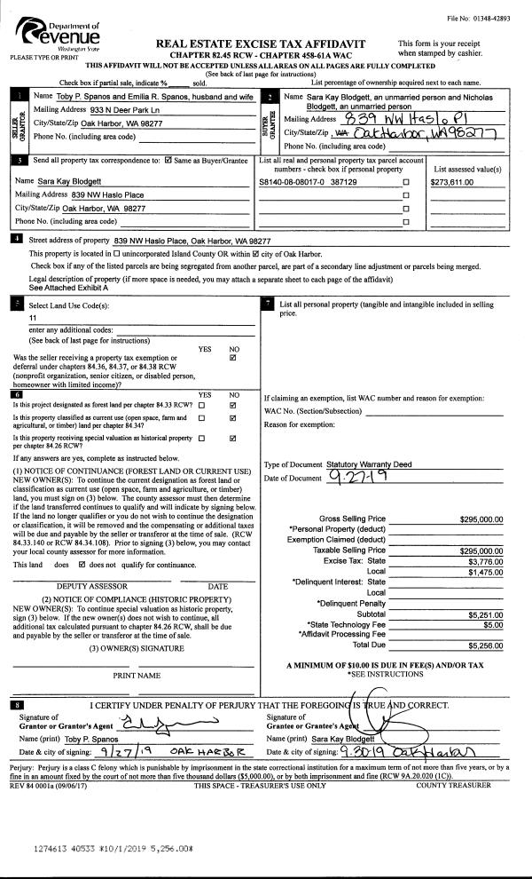
Account |
| Property ID: | 712562 | Abbreviated Legal Description: | LOT 17-N SP 80-72.23107.265-1210 |
| Geographic ID: | R23107-285-1270 | Agent Code: | |
| Type: | Real | | |
| Tax Area: | 312 - APPRAISER-Cpvl Schl Dist, outside Cpvl, improved, greater than 1 acre | Land Use Code | 11 |
| Open Space: | N | DFL | N |
| Historic Property: | N | Remodel Property: | N |
| Multi-Family Redevelopment: | N | | |
| Township: | 31 | Section: | 07 |
| Range: | R2 |
Location |
| Address: | 80 DENNEBOOM RD COUPEVILLE, WA 98239 | Mapsco: | |
| Neighborhood: | Cycle 2 | Map ID: | 464 |
| Neighborhood CD: | 2 |
Owner |
| Name: | TARASOFF, LAURA | Owner ID: | 293077 |
| Mailing Address: | DINA BLACKSTONE 80 DENNEBOOM RD COUPEVILLE, WA 98239 | % Ownership: | 100.0000000000% |
| | | Exemptions: | |
Taxes and Assessment Details
Values
| (+) Improvement Homesite Value: | + | $0 | |
| (+) Improvement Non-Homesite Value: | + | $295,774 | |
| (+) Land Homesite Value: | + | $0 | |
| (+) Land Non-Homesite Value: | + | $305,693 | |
| (+) Curr Use (HS): | + | $0 | $0 |
| (+) Curr Use (NHS): | + | $0 | $0 |
| | | -------------------------- | |
| (=) Market Value: | = | $601,467 | |
| (–) Productivity Loss: | – | $0 | |
| | | -------------------------- | |
| (=) Subtotal: | = | $601,467 | |
| (+) Senior Appraised Value: | + | $0 | |
| (+) Non-Senior Appraised Value: | + | $601,467 | |
| | | -------------------------- | |
| (=) Total Appraised Value: | = | $601,467 | |
| (–) Senior Exemption Loss: | – | $0 | |
| (–) Exemption Loss: | – | $0 | |
| | | -------------------------- | |
| (=) Taxable Value: | = | $601,467 | |
Taxing Jurisdiction
| Owner: | TARASOFF, LAURA | | |
| % Ownership: | 100.0000000000% | | |
| Total Value: | $601,467 | | |
| Tax Area: | 312 - APPRAISER-Cpvl Schl Dist, outside Cpvl, improved, greater than 1 acre |
| CF | Conservation Futures | 0.0316035091 | $601,467 | $601,467 | $19.01 | | |
| CEM2 | Cemetery #2 | 0.0095056933 | $601,467 | $601,467 | $5.72 | | |
| FIRE5 | Fire & Rescue Dist #5 C Whidbey GEN | 1.2008080668 | $601,467 | $601,467 | $722.25 | | |
| FIRE5BOND | Fire & Rescue Dist #5 C Whidbey BOND | 0.1400090713 | $601,467 | $601,467 | $84.21 | | |
| HOBOND | Hospital BOND | 0.1910887512 | $601,467 | $601,467 | $114.93 | | |
| HOGEN | Hospital GEN | 0.3902502903 | $601,467 | $601,467 | $234.72 | | |
| CE | County Current Expense | 0.3708482477 | $601,467 | $601,467 | $223.05 | | |
| CR | County Roads | 0.4584763726 | $601,467 | $601,467 | $275.76 | | |
| ISLANDEMS | Hospital GEN (EMS) | 0.5000000000 | $601,467 | $601,467 | $300.73 | | |
| LIB | Library Sno-Isle GEN | 0.3153421757 | $601,467 | $601,467 | $189.67 | | |
| LIBCAP | Library Sno-Isle BOND (Cap Fac Imp Area) | 0.0543427938 | $601,467 | $601,467 | $32.69 | | |
| POCOUP | Port of Coupeville GEN | 0.1093371703 | $601,467 | $601,467 | $65.76 | | |
| POCOUPIDD | Port of Coupeville IDD | 0.3409740022 | $601,467 | $601,467 | $205.08 | | |
| COUPSDTECH | School 204 CP (TECH) | 0.7545480007 | $601,467 | $601,467 | $453.84 | | |
| SCH204MO | School 204 Enrichment | 0.6716186034 | $601,467 | $601,467 | $403.96 | | |
| ST | State School | 1.3035497053 | $601,467 | $601,467 | $784.04 | | |
| ST2 | State School Part 2 | 0.8169543533 | $601,467 | $601,467 | $491.37 | | |
| | Total Tax Rate: | 7.6592568070 | | | | | |
| | | | | Taxes w/Current Exemptions: | $4,606.79 | | |
| | | | | Taxes w/o Exemptions: | $4,606.79 | | |
Improvement / Building
| Improvement #1: | RESIDENTIAL | State Code: | Y | 1510.5 sqft | Value: | $295,774 |
| Bathrooms: | 1.5 | Bedrooms: | 2 | | Ceiling: | TONGUE & GROOVE | Exterior Wall/Cover: | PLY/HARDBOARD T-111 | | Floor Covering: | CARPET/VINYL 80-20 | Floor Structure: | WOOD W/SUBFLOOR | | Foundation: | CONCRETE | Heating: | FLOOR/WALL GAS | | Interior Finish: | DRYWALL PAINT | Plumbing Fixture Cnt: | 9 | | Roof Slope: | 4" IN 12" | Roof Structure/Cover: | BEAM ASPHALT |
|
| | Type | Description | Class CD | Sub Class CD | Year Built | Area |
| | BAS | BASE/MAIN FLOOR | 3 | 0 | 1986 | 1510.5 |
| | AGR | ATTACHED GARAGE | 3 | 0 | 1986 | 576.0 |
| | OWP | OPEN WOOD PORCH W/STEPS | 3 | 0 | 1986 | 96.0 |
| | OWP | OPEN WOOD PORCH W/STEPS | 3 | 0 | 1986 | 69.8 |
| | ENP | ENCLOSED PORCH | 3 | 0 | 1986 | 120.0 |
Sketch
Property Image
Land
| 1 | HS | HOMESITE | 1.0000 | 43560.00 | 0.00 | 0.00 | 1.00 | $220,000 | $0 |
| 2 | 91 | UNDEVELOPED LAND-METES AND BOUNDS | 1.4100 | 61419.60 | 0.00 | 0.00 | 1.00 | $85,693 | $0 |
Roll Value History
| 2026 | N/A | N/A | N/A | N/A | N/A |
| 2025 | $295,774 | $305,693 | $0 | $601,467 | $601,467 |
| 2024 | $287,210 | $280,000 | $0 | $567,210 | $567,210 |
| 2023 | $290,882 | $270,000 | $0 | $560,882 | $516,727 |
| 2022 | $266,727 | $250,000 | $0 | $516,727 | $446,727 |
| 2021 | $234,828 | $150,000 | $0 | $384,828 | $384,828 |
| 2020 | $228,859 | $150,000 | $0 | $378,859 | $378,859 |
| 2019 | $166,566 | $180,000 | $0 | $346,566 | $346,566 |
| 2018 | $157,636 | $160,000 | $0 | $317,636 | $60,865 |
| 2017 | $158,612 | $130,000 | $0 | $288,612 | $60,865 |
| 2016 | $160,646 | $125,000 | $0 | $285,646 | $60,865 |
| 2015 | $162,680 | $90,000 | $0 | $252,680 | $60,865 |
| 2014 | $164,713 | $100,000 | $0 | $264,713 | $60,865 |
| 2013 | $166,746 | $100,000 | $0 | $266,746 | $60,865 |
| 2012 | $174,460 | $100,000 | $0 | $274,460 | $60,865 |
| 2011 | $176,560 | $100,000 | $0 | $276,560 | $60,865 |
| 2010 | $182,714 | $100,000 | $0 | $282,714 | $60,865 |
| 2009 | $189,255 | $126,170 | $0 | $315,425 | $60,864 |
| 2008 | $193,702 | $123,843 | $0 | $317,545 | $60,864 |
| 2007 | $194,996 | $124,669 | $0 | $319,665 | $60,864 |
Deed and Sales History
| 1 | 12/24/2019 | WD | Warranty Deed | DESHONG, EMMALYN M | TARASOFF, LAURA | | | $327,500.00 | 41683 | 4478516 |
| 2 | 11/01/1986 | OTHER | Other - Misc. Documents | Unknown | DESHONG, EMMALYN M | | | $0.00 | 61950 | 0 |
Payout Agreement
| No payout information available.. |