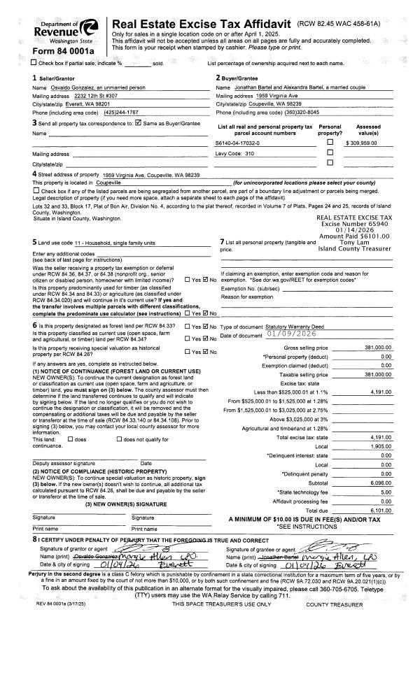
Property
Account |
| Property ID: | 71326 | Abbreviated Legal Description: | 59 - IN N/2 SW: BG WLN SEC 1 N2065.82' FR SWCR SEC 1 N166.78' S88*E360.01' TPB S166.78' S88*E289.31' N1*E 166.75' N88*W293.12' TPB TGW EZ |
| Geographic ID: | R23101-214-0510 | Agent Code: | |
| Type: | Real | | |
| Tax Area: | 512 - APPRAISER-Stan/Cam Schl Dist, improved, greater than 1 acre | Land Use Code | 11 |
| Open Space: | N | DFL | N |
| Historic Property: | N | Remodel Property: | N |
| Multi-Family Redevelopment: | N | | |
| Township: | 31 | Section: | 01 |
| Range: | R2 |
Location |
| Address: | 231 S CAMANO RIDGE RD CAMANO ISLAND, WA 98282 | Mapsco: | |
| Neighborhood: | Cycle 5 | Map ID: | 449 |
| Neighborhood CD: | 5 |
Owner |
| Name: | JOHANSEN, STIG K | Owner ID: | 314217 |
| Mailing Address: | KATHY S JOHANSEN 28910 SE 226TH ST MAPLE VALLEY, WA 98038 | % Ownership: | 100.0000000000% |
| | | Exemptions: | |
Taxes and Assessment Details
Values
| (+) Improvement Homesite Value: | + | $0 | |
| (+) Improvement Non-Homesite Value: | + | $559,375 | |
| (+) Land Homesite Value: | + | $0 | |
| (+) Land Non-Homesite Value: | + | $260,000 | |
| (+) Curr Use (HS): | + | $0 | $0 |
| (+) Curr Use (NHS): | + | $0 | $0 |
| | | -------------------------- | |
| (=) Market Value: | = | $819,375 | |
| (–) Productivity Loss: | – | $0 | |
| | | -------------------------- | |
| (=) Subtotal: | = | $819,375 | |
| (+) Senior Appraised Value: | + | $0 | |
| (+) Non-Senior Appraised Value: | + | $819,375 | |
| | | -------------------------- | |
| (=) Total Appraised Value: | = | $819,375 | |
| (–) Senior Exemption Loss: | – | $0 | |
| (–) Exemption Loss: | – | $0 | |
| | | -------------------------- | |
| (=) Taxable Value: | = | $819,375 | |
Taxing Jurisdiction
| Owner: | JOHANSEN, STIG K | | |
| % Ownership: | 100.0000000000% | | |
| Total Value: | $819,375 | | |
| Tax Area: | 512 - APPRAISER-Stan/Cam Schl Dist, improved, greater than 1 acre |
| CF | Conservation Futures | 0.0316035091 | $819,375 | $819,375 | $25.90 | | |
| EMS1 | Fire & Rescue Dist #1 Camano GEN (EMS) | 0.3677864386 | $819,375 | $819,375 | $301.36 | | |
| FIRE1 | Fire & Rescue Dist #1 Camano GEN | 1.2502910536 | $819,375 | $819,375 | $1,024.46 | | |
| FIRE1BOND | Fire & Rescue Dist #1 Camano BOND | 0.1570001679 | $819,375 | $819,375 | $128.64 | | |
| CE | County Current Expense | 0.3708482477 | $819,375 | $819,375 | $303.86 | | |
| CR | County Roads | 0.4584763726 | $819,375 | $819,375 | $375.66 | | |
| LCIB | Library Sno-Isle BOND (Camano Island) | 0.0396325772 | $819,375 | $819,375 | $32.47 | | |
| LIB | Library Sno-Isle GEN | 0.3153421757 | $819,375 | $819,375 | $258.38 | | |
| SCH205_401 | School 205-401 Enrichment | 1.2698420524 | $819,375 | $819,375 | $1,040.48 | | |
| SCH205BOND | School 205-401 BOND | 0.9396497583 | $819,375 | $819,375 | $769.93 | | |
| ST | State School | 1.3035497053 | $819,375 | $819,375 | $1,068.10 | | |
| ST2 | State School Part 2 | 0.8169543533 | $819,375 | $819,375 | $669.39 | | |
| | Total Tax Rate: | 7.3209764117 | | | | | |
| | | | | Taxes w/Current Exemptions: | $5,998.63 | | |
| | | | | Taxes w/o Exemptions: | $5,998.63 | | |
Improvement / Building
| Improvement #1: | RESIDENTIAL | State Code: | Y | 2777.8 sqft | Value: | $559,375 |
| Bathrooms: | 2.5 | Bedrooms: | 4 | | Ceiling: | DRYWALL PAINTED | Exterior Wall/Cover: | CEMENT FIBER | | Floor Covering: | HARDWOOD/CARP 60-40 | Floor Structure: | WOOD W/SUBFLOOR | | Foundation: | CONCRETE | Heating: | FHA GAS | | Interior Finish: | DRYWALL PAINT | Plumbing Fixture Cnt: | 14 | | Roof Slope: | 6" IN 12" | Roof Structure/Cover: | CJ ASPHALT |
|
| | Type | Description | Class CD | Sub Class CD | Year Built | Area |
| | BAS | BASE/MAIN FLOOR | 4 | 0 | 2007 | 1438.3 |
| | UTY | STORAGE/UTILITY | 4 | 0 | 2007 | 97.8 |
| | OP1 | OPEN PORCH SLAB | 4 | 0 | 2007 | 197.0 |
| | OP4 | OPEN PORCH W/CEILING-ROOF | 4 | 0 | 2007 | 48.0 |
| | AGR | ATTACHED GARAGE | 4 | 0 | 2007 | 832.0 |
| | UPS | UPPER STORY | 4 | 0 | 2007 | 971.7 |
| | LOF | LOFT | 4 | 0 | 2007 | 367.8 |
Sketch
| No sketches available for this property. |
Property Image
Land
| 1 | 17 | AC (01.01-02.00) | 1.1300 | 49222.80 | 0.00 | 0.00 | 1.00 | $260,000 | $0 |
Roll Value History
| 2026 | N/A | N/A | N/A | N/A | N/A |
| 2025 | $559,375 | $260,000 | $0 | $819,375 | $819,375 |
| 2024 | $574,367 | $240,000 | $0 | $814,367 | $814,367 |
| 2023 | $580,874 | $230,000 | $0 | $810,874 | $810,874 |
| 2022 | $530,403 | $240,000 | $0 | $770,403 | $770,403 |
| 2021 | $457,379 | $170,000 | $0 | $627,379 | $627,379 |
| 2020 | $444,476 | $150,000 | $0 | $594,476 | $594,476 |
| 2019 | $343,099 | $200,000 | $0 | $543,099 | $543,099 |
| 2018 | $344,038 | $150,000 | $0 | $494,038 | $494,038 |
| 2017 | $345,918 | $120,000 | $0 | $465,918 | $465,918 |
| 2016 | $349,678 | $80,000 | $0 | $429,678 | $429,678 |
| 2015 | $365,289 | $74,400 | $0 | $439,689 | $439,689 |
| 2014 | $369,259 | $74,400 | $0 | $443,659 | $443,659 |
| 2013 | $373,226 | $74,400 | $0 | $447,626 | $447,626 |
| 2012 | $377,199 | $74,400 | $0 | $451,599 | $451,599 |
| 2011 | $381,168 | $93,000 | $0 | $474,168 | $474,168 |
| 2010 | $388,061 | $93,000 | $0 | $481,061 | $481,061 |
| 2009 | $403,987 | $135,000 | $0 | $538,987 | $538,987 |
| 2008 | $404,276 | $136,000 | $0 | $540,276 | $540,276 |
| 2007 | $408,477 | $123,750 | $0 | $532,227 | $532,227 |
Deed and Sales History
| 1 | 09/26/2024 | WD | Warranty Deed | ORKNEY, KAREN J | JOHANSEN, STIG K | | | $789,990.00 | 61563 | 4578215 |
| 2 | 11/03/2015 | DECREE | Divorce Decree/Legal Separation | ORKNEY, MELVIN S | ORKNEY, KAREN J | | | $0.00 | 22211 | 4389783 |
| 3 | 04/29/2008 | QCD | Quit Claim Deed | SILVANAN CONSTRUCTION LLC, | ORKNEY, MELVIN S | | | $0.00 | 81100 | 4227684 |
| 4 | 03/02/2007 | QCD | Quit Claim Deed | ORKNEY, MELVIN | SILVANAN CONSTRUCTION LLC, | | | $0.00 | 70812 | 4196138 |
| 5 | 12/09/2005 | WD | Warranty Deed | ALDRIDGE, LINCOLN T | ORKNEY, MELVIN | | | $125,000.00 | 56163 | 4156809 |
| 6 | 05/26/2004 | WD | Warranty Deed | HOUSER, RAY | ALDRIDGE, LINCOLN T | | | $10,000.00 | 42291 | 4102081 |
| 7 | 08/07/1998 | WD | Warranty Deed | WIGGINS, MILDRED & | HOUSER, RAY | | | $10,000.00 | 83235 | 98016981 |
| 8 | 03/01/1995 | OTHER | Other - Misc. Documents | WIGGINS, TRUST & | WIGGINS, MILDRED & | | | $0.00 | 66312 | 0 |
| 9 | 09/01/1994 | QCD | Quit Claim Deed | WIGGINS, LEE & | WIGGINS, TRUST & | | | $0.00 | 43674 | 94019407 |
Payout Agreement
| No payout information available.. |