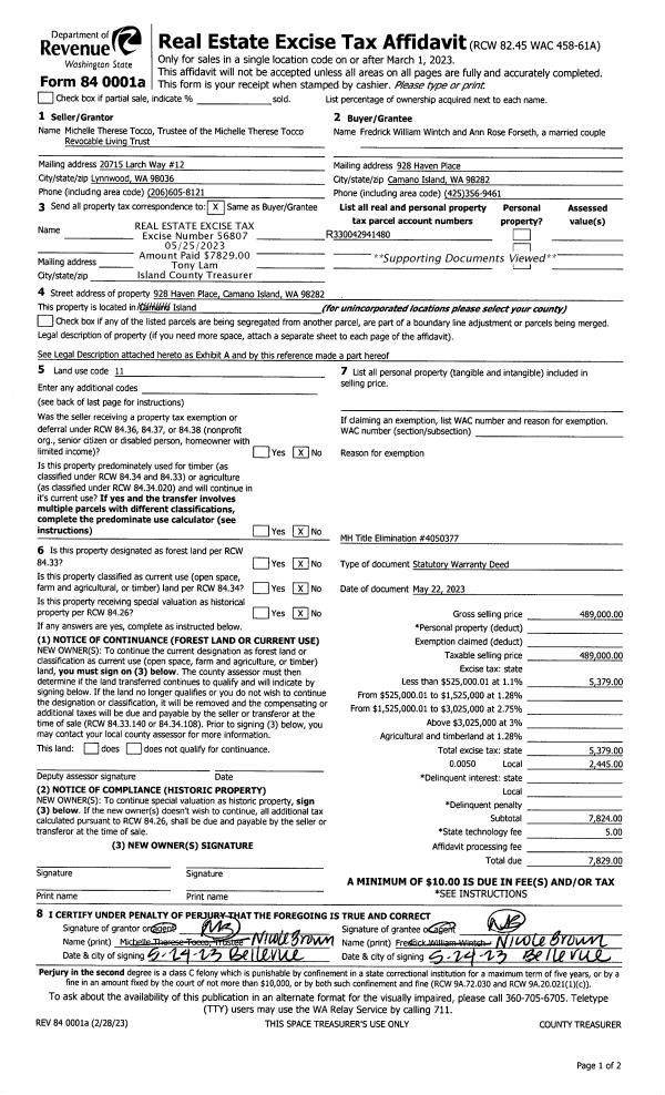
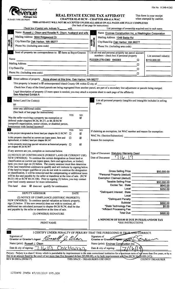
| 1 | 12/26/2018 | WD | Warranty Deed | PREMIER PROPERTY DEVELOPMENTS, LLC | WAGGONER, BRIAN KENNETH | | | $520,000.00 | 37117 | 4457180 |
| 2 | 07/13/2018 | BARGSLD | Bargain And Sale Deed | US BANK NATIONAL ASSOC, TTEE | PREMIER PROPERTY DEVELOPMENTS, LLC | | | $406,875.00 | 35060 | 4448270 |
| 3 | 05/09/2018 | SHERIFFD | Sheriff Deed | CAMANO HOLDINGS LLC | US BANK NATIONAL ASSOC, TTEE | | | $344,000.00 | 34175 | 4444749 |
| 4 | 09/17/2008 | 5 | DNU - Marriage License/Name Change | JONES, DARRYL | CAMANO HOLDINGS LLC, | | | $0.00 | 82459 | 4236806 |
| 5 | 06/04/2007 | QCD | Quit Claim Deed | JONES, DARRYL | JONES, DARRYL | | | $0.00 | 71875 | 4203806 |
| 6 | 09/27/2005 | QCD | Quit Claim Deed | SUN MOUNTAIN CONSTRUCTION, | JONES, DARRYL | | | $0.00 | 54857 | 4149094 |
| 7 | 02/13/2003 | REC | Real Estate Contract | SUN MOUNTAIN CONST INC, | SUN MOUNTAIN CONSTRUCTION, | | | $6,000.00 | 30599 | 0 |
| 8 | 02/12/2003 | WD | Warranty Deed | ZERR, DOROTHY M | SUN MOUNTAIN CONST INC, | | | $87,465.00 | 30598 | 4047759 |
| 9 | 05/01/1996 | OTHER | Other - Misc. Documents | ZERR, RICHARD S | ZERR, DOROTHY M | | | $0.00 | 61537 | 0 |
| 10 | 12/01/1995 | OTHER | Other - Misc. Documents | ZERR, DOROTHY M | ZERR, DOROTHY M | | | $0.00 | 66756 | 95020078 |
| 11 | 12/01/1995 | OTHER | Other - Misc. Documents | ZERR, RICHARD S | ZERR, DOROTHY M | | | $0.00 | 66756 | 95020078 |
| 12 | 01/01/1900 | OTHER | Other - Misc. Documents | Unknown | ZERR, RICHARD S | | | $0.00 | 0 | 0 |
| 13 | 01/01/1900 | OTHER | Other - Misc. Documents | ZERR, DOROTHY M | ZERR, RICHARD S | | | $0.00 | 0 | 0 |