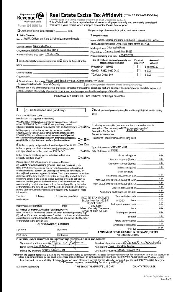
Property
Account |
| Property ID: | 714 | Abbreviated Legal Description: | 35 - E485' OF S224.55' OF GL2 EX E30' EX PT TO IS CO AF#4081038 |
| Geographic ID: | R03224-275-3640 | Agent Code: | |
| Type: | Real | | |
| Tax Area: | 332 - APPRAISER-Cpvl Schl Dist, Special Dist, improved, greater than 1 acre | Land Use Code | 11 |
| Open Space: | N | DFL | N |
| Historic Property: | N | Remodel Property: | N |
| Multi-Family Redevelopment: | N | | |
| Township: | 32 | Section: | 24 |
| Range: | R0 |
Location |
| Address: | 1011 WEST BEACH RD COUPEVILLE, WA 98239 | Mapsco: | |
| Neighborhood: | Cycle 2 | Map ID: | 5 |
| Neighborhood CD: | 2 |
Owner |
| Name: | KELSEY BLUE WATER PROPERTIES, LLC | Owner ID: | 279524 |
| Mailing Address: | PO BOX 451 COUPEVILLE, WA 98239 | % Ownership: | 100.0000000000% |
| | | Exemptions: | |
Taxes and Assessment Details
Values
| (+) Improvement Homesite Value: | + | $0 | |
| (+) Improvement Non-Homesite Value: | + | $283,328 | |
| (+) Land Homesite Value: | + | $0 | |
| (+) Land Non-Homesite Value: | + | $301,185 | |
| (+) Curr Use (HS): | + | $0 | $0 |
| (+) Curr Use (NHS): | + | $0 | $0 |
| | | -------------------------- | |
| (=) Market Value: | = | $584,513 | |
| (–) Productivity Loss: | – | $0 | |
| | | -------------------------- | |
| (=) Subtotal: | = | $584,513 | |
| (+) Senior Appraised Value: | + | $0 | |
| (+) Non-Senior Appraised Value: | + | $584,513 | |
| | | -------------------------- | |
| (=) Total Appraised Value: | = | $584,513 | |
| (–) Senior Exemption Loss: | – | $0 | |
| (–) Exemption Loss: | – | $0 | |
| | | -------------------------- | |
| (=) Taxable Value: | = | $584,513 | |
Taxing Jurisdiction
| Owner: | KELSEY BLUE WATER PROPERTIES, LLC | | |
| % Ownership: | 100.0000000000% | | |
| Total Value: | $584,513 | | |
| Tax Area: | 332 - APPRAISER-Cpvl Schl Dist, Special Dist, improved, greater than 1 acre |
| CF | Conservation Futures | 0.0316035091 | $584,513 | $584,513 | $18.47 | | |
| CEM2 | Cemetery #2 | 0.0095056933 | $584,513 | $584,513 | $5.56 | | |
| FIRE2 | Fire & Rescue Dist #2 N Whidbey GEN | 0.5475949600 | $584,513 | $584,513 | $320.08 | | |
| HOBOND | Hospital BOND | 0.1910887512 | $584,513 | $584,513 | $111.69 | | |
| HOGEN | Hospital GEN | 0.3902502903 | $584,513 | $584,513 | $228.11 | | |
| CE | County Current Expense | 0.3708482477 | $584,513 | $584,513 | $216.77 | | |
| CR | County Roads | 0.4584763726 | $584,513 | $584,513 | $267.99 | | |
| ISLANDEMS | Hospital GEN (EMS) | 0.5000000000 | $584,513 | $584,513 | $292.26 | | |
| LIB | Library Sno-Isle GEN | 0.3153421757 | $584,513 | $584,513 | $184.32 | | |
| LIBCAP | Library Sno-Isle BOND (Cap Fac Imp Area) | 0.0543427938 | $584,513 | $584,513 | $31.76 | | |
| POCOUP | Port of Coupeville GEN | 0.1093371703 | $584,513 | $584,513 | $63.91 | | |
| POCOUPIDD | Port of Coupeville IDD | 0.3409740022 | $584,513 | $584,513 | $199.30 | | |
| COUPSDTECH | School 204 CP (TECH) | 0.7545480007 | $584,513 | $584,513 | $441.04 | | |
| SCH204MO | School 204 Enrichment | 0.6716186034 | $584,513 | $584,513 | $392.57 | | |
| ST | State School | 1.3035497053 | $584,513 | $584,513 | $761.94 | | |
| ST2 | State School Part 2 | 0.8169543533 | $584,513 | $584,513 | $477.52 | | |
| | Total Tax Rate: | 6.8660346289 | | | | | |
| | | | | Taxes w/Current Exemptions: | $4,013.29 | | |
| | | | | Taxes w/o Exemptions: | $4,013.29 | | |
Improvement / Building
| Improvement #1: | RESIDENTIAL | State Code: | Y | 2200.0 sqft | Value: | $283,328 |
| Bathrooms: | 2 | Bedrooms: | 3 | | Ceiling: | DRY WALL SPRAYED | Exterior Wall/Cover: | PLY/HARDBOARD T-111 | | Floor Covering: | HARDWOOD/CARP 60-40 | Floor Structure: | WOOD W/SUBFLOOR | | Foundation: | CONCRETE | Heating: | FHA ELECTRIC | | Interior Finish: | DRYWALL PAINT | Plumbing Fixture Cnt: | 9 | | Roof Slope: | 5" IN 12" | Roof Structure/Cover: | CJ ASPHALT |
|
| | Type | Description | Class CD | Sub Class CD | Year Built | Area |
| | BAS | BASE/MAIN FLOOR | 3 | 0 | 1977 | 1100.0 |
| | OP4 | OPEN PORCH W/CEILING-ROOF | 3 | 0 | 1977 | 100.0 |
| | AGR | ATTACHED GARAGE | 3 | 0 | 1977 | 550.0 |
| | OWP | OPEN WOOD PORCH W/STEPS | 3 | 0 | 1977 | 399.0 |
| | DWN | DOWNSTAIRS LIVING AREA | 3 | 0 | 1977 | 1100.0 |
| | CPD | OPEN CARPORT DIRT FLOOR | 3 | 0 | 1977 | 216.0 |
| | UTY | STORAGE/UTILITY | 3 | 0 | 1977 | 468.0 |
Sketch
Property Image
Land
| 1 | 91 | UNDEVELOPED LAND-METES AND BOUNDS | 1.2700 | 55321.20 | 0.00 | 0.00 | 1.00 | $81,185 | $0 |
| 2 | HS | HOMESITE | 1.0000 | 43560.00 | 0.00 | 0.00 | 1.00 | $220,000 | $0 |
Roll Value History
| 2026 | N/A | N/A | N/A | N/A | N/A |
| 2025 | $283,328 | $301,185 | $0 | $584,513 | $584,513 |
| 2024 | $287,194 | $280,000 | $0 | $567,194 | $567,194 |
| 2023 | $291,063 | $270,000 | $0 | $561,063 | $561,063 |
| 2022 | $267,073 | $250,000 | $0 | $517,073 | $517,073 |
| 2021 | $235,279 | $170,000 | $0 | $405,279 | $405,279 |
| 2020 | $229,990 | $150,000 | $0 | $379,990 | $379,990 |
| 2019 | $178,343 | $180,000 | $0 | $358,343 | $358,343 |
| 2018 | $160,275 | $160,000 | $0 | $320,275 | $320,275 |
| 2017 | $161,336 | $150,000 | $0 | $311,336 | $311,336 |
| 2016 | $163,459 | $140,000 | $0 | $303,459 | $303,459 |
| 2015 | $143,595 | $125,000 | $0 | $268,595 | $268,595 |
| 2014 | $145,646 | $85,000 | $0 | $230,646 | $230,646 |
| 2013 | $147,697 | $85,000 | $0 | $232,697 | $232,697 |
| 2012 | $150,418 | $85,000 | $0 | $235,418 | $235,418 |
| 2011 | $152,470 | $100,000 | $0 | $252,470 | $252,470 |
| 2010 | $162,905 | $100,000 | $0 | $262,905 | $262,905 |
| 2009 | $168,197 | $124,000 | $0 | $292,197 | $292,197 |
| 2008 | $170,714 | $129,200 | $0 | $299,914 | $299,914 |
| 2007 | $173,169 | $116,000 | $0 | $289,169 | $289,169 |
Deed and Sales History
| 1 | 04/14/2017 | QCD | Quit Claim Deed | KELSEY TRUSTEE, THOMAS M | KELSEY BLUE WATER PROPERTIES, LLC | | | $0.00 | 28947 | 4421017 |
| 2 | 07/02/2015 | WD | Warranty Deed | PUHR, JAMES R & S NAOMI | KELSEY TRUSTEE, THOMAS M | | | $302,400.00 | 20323 | 4381484 |
| 3 | 04/30/2004 | QCD | Quit Claim Deed | PUHR, JAMES R | PUHR, JAMES R & S NAOMI | | | $3,500.00 | 70254 | 4081038 |
| 4 | 10/01/1994 | WD | Warranty Deed | PUHR, JAMES R | PUHR, JAMES R | | | $155,000.00 | 44301 | 94022185 |
| 5 | 10/01/1994 | WD | Warranty Deed | PRATER, JONATHAN M | PUHR, JAMES R | | | $0.00 | 51505 | 95007055 |
| 6 | 11/01/1989 | WD | Warranty Deed | PHILLIPS, ROBERT L | PRATER, JONATHAN M | | | $81,700.00 | 95213 | 89016773 |
| 7 | 09/01/1983 | WD | Warranty Deed | SEVERNS, EARL H | PHILLIPS, ROBERT L | | | $80,000.00 | 32877 | 415670 |
| 8 | 01/01/1900 | OTHER | Other - Misc. Documents | Unknown | SEVERNS, EARL H | | | $0.00 | 0 | 0 |
Payout Agreement
| No payout information available.. |