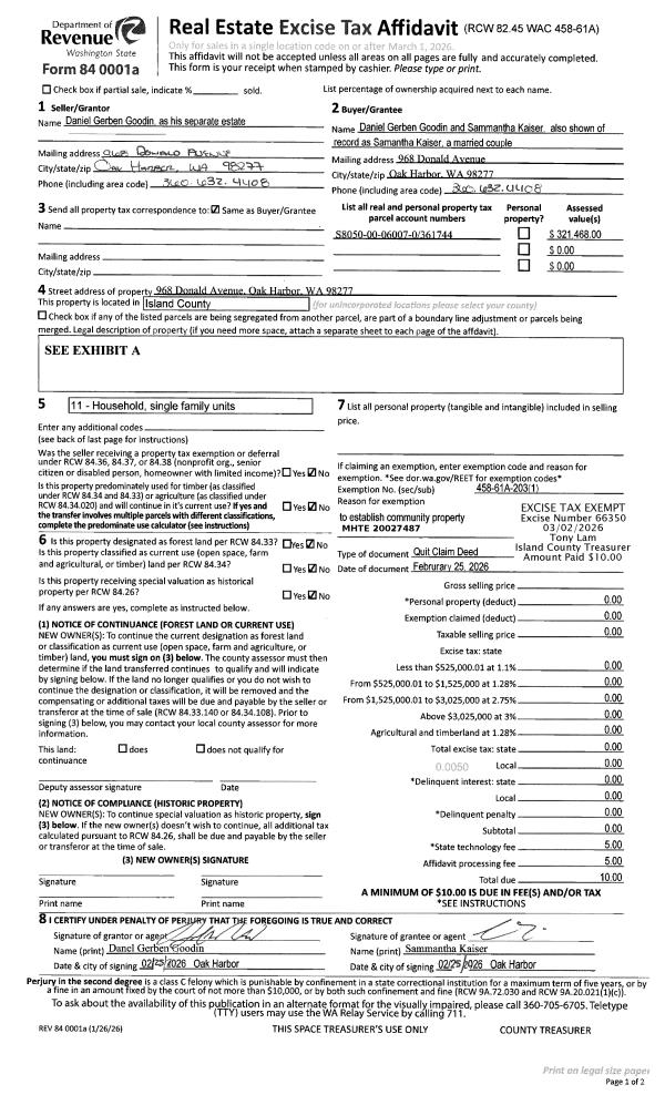
Property
Account |
| Property ID: | 714178 | Abbreviated Legal Description: | SUNNY VIEW FARMS LOT 19 EX S873' FR 00019-0 |
| Geographic ID: | S8245-00-00019-1 | Agent Code: | |
| Type: | Real | | |
| Tax Area: | 760 - APPRAISER-S Whid Schl Dist, Special District, improved & less than 1 acre | Land Use Code | 11 |
| Open Space: | N | DFL | N |
| Historic Property: | N | Remodel Property: | N |
| Multi-Family Redevelopment: | N | | |
| Township: | | Section: | |
| Range: | |
Location |
| Address: | 1728 SCENIC AVE FREELAND, WA 98249 | Mapsco: | |
| Neighborhood: | Cycle 3 | Map ID: | 327 |
| Neighborhood CD: | 3 |
Owner |
| Name: | ADADOW, RICHARD M | Owner ID: | 187733 |
| Mailing Address: | MARTA MULHOLLAND 1728 SCENIC AVE #B FREELAND, WA 98249 | % Ownership: | 100.0000000000% |
| | | Exemptions: | |
Taxes and Assessment Details
Values
| (+) Improvement Homesite Value: | + | $0 | |
| (+) Improvement Non-Homesite Value: | + | $141,986 | |
| (+) Land Homesite Value: | + | $0 | |
| (+) Land Non-Homesite Value: | + | $350,000 | |
| (+) Curr Use (HS): | + | $0 | $0 |
| (+) Curr Use (NHS): | + | $0 | $0 |
| | | -------------------------- | |
| (=) Market Value: | = | $491,986 | |
| (–) Productivity Loss: | – | $0 | |
| | | -------------------------- | |
| (=) Subtotal: | = | $491,986 | |
| (+) Senior Appraised Value: | + | $0 | |
| (+) Non-Senior Appraised Value: | + | $491,986 | |
| | | -------------------------- | |
| (=) Total Appraised Value: | = | $491,986 | |
| (–) Senior Exemption Loss: | – | $0 | |
| (–) Exemption Loss: | – | $0 | |
| | | -------------------------- | |
| (=) Taxable Value: | = | $491,986 | |
Taxing Jurisdiction
| Owner: | ADADOW, RICHARD M | | |
| % Ownership: | 100.0000000000% | | |
| Total Value: | $491,986 | | |
| Tax Area: | 760 - APPRAISER-S Whid Schl Dist, Special District, improved & less than 1 acre |
| CF | Conservation Futures | 0.0316035091 | $491,986 | $491,986 | $15.55 | | |
| FIRE3 | Fire & Rescue Dist #3 S Whidbey GEN | 1.2004855531 | $491,986 | $491,986 | $590.62 | | |
| HOBOND | Hospital BOND | 0.1910887512 | $491,986 | $491,986 | $94.01 | | |
| HOGEN | Hospital GEN | 0.3902502903 | $491,986 | $491,986 | $192.00 | | |
| CE | County Current Expense | 0.3708482477 | $491,986 | $491,986 | $182.45 | | |
| CR | County Roads | 0.4584763726 | $491,986 | $491,986 | $225.56 | | |
| ISLANDEMS | Hospital GEN (EMS) | 0.5000000000 | $491,986 | $491,986 | $245.99 | | |
| LIB | Library Sno-Isle GEN | 0.3153421757 | $491,986 | $491,986 | $155.14 | | |
| PORTWHID | Port of S Whidbey GEN | 0.1094540357 | $491,986 | $491,986 | $53.85 | | |
| SCH206BOND | School 206 BOND | 0.3161759235 | $491,986 | $491,986 | $155.55 | | |
| SCH206MO | School 206 Enrichment | 0.4547169547 | $491,986 | $491,986 | $223.71 | | |
| ST | State School | 1.3035497053 | $491,986 | $491,986 | $641.33 | | |
| ST2 | State School Part 2 | 0.8169543533 | $491,986 | $491,986 | $401.93 | | |
| SWHIDPRBD | P & R S Whidbey BOND | 0.0152817568 | $491,986 | $491,986 | $7.52 | | |
| SWHIDPRBD2 | P & R S Whidbey BOND2 | 0.0138911264 | $491,986 | $491,986 | $6.83 | | |
| SWHIDPRMT | P & R S Whidbey GEN | 0.2053334452 | $491,986 | $491,986 | $101.02 | | |
| | Total Tax Rate: | 6.6934522006 | | | | | |
| | | | | Taxes w/Current Exemptions: | $3,293.06 | | |
| | | | | Taxes w/o Exemptions: | $3,293.06 | | |
Improvement / Building
| Improvement #1: | RESIDENTIAL | State Code: | Y | 604.0 sqft | Value: | $80,429 |
| Bathrooms: | 1 | Bedrooms: | 1 | | Ceiling: | DRYWALL PAINTED | Cooling: | HEAT PUMP/CONV/V | | Exterior Wall/Cover: | SHINGLE | Floor Covering: | SOFTWOOD/VINYL 60-40 | | Floor Structure: | WOOD W/SUBFLOOR | Foundation: | CONCRETE | | Interior Finish: | DRYWALL PAINT | Plumbing Fixture Cnt: | 6 | | Roof Slope: | 5" IN 12" | Roof Structure/Cover: | CJ ALUMINIUM HEAVY |
|
| | Type | Description | Class CD | Sub Class CD | Year Built | Area |
| | BAS | BASE/MAIN FLOOR | 1 | 0 | 1950 | 472.0 |
| | ATF | ATTIC FINISHED | 1 | 0 | 1950 | 132.0 |
| | OWR | OPEN WOOD PORCH W/STEPS/ROOF | 1 | 0 | 1950 | 129.5 |
| | LOF | LOFT | 1 | 0 | 1950 | 132.0 |
| | OWP | OPEN WOOD PORCH W/STEPS | 1 | 0 | 1950 | 56.0 |
| | UTY | STORAGE/UTILITY | 1 | 0 | 1950 | 96.0 |
| | UTY | STORAGE/UTILITY | 1 | 0 | 1950 | 392.0 |
| Improvement #2: | RESIDENTIAL | State Code: | Y | 414.0 sqft | Value: | $61,557 |
| Bathrooms: | 1 | Bedrooms: | 1 | | Ceiling: | TONGUE & GROOVE | Exterior Wall/Cover: | WOOD SIDING | | Floor Covering: | SOFTWOOD/VINYL 60-40 | Floor Structure: | WOOD W/SUBFLOOR | | Foundation: | PIERS/CONCRETE | Heating: | (NONE) | | Interior Finish: | DRYWALL PAINT | Plumbing Fixture Cnt: | 6 | | Roof Slope: | 12" IN 12" | Roof Structure/Cover: | BEAM ALUMINUM HEAVY |
|
| | Type | Description | Class CD | Sub Class CD | Year Built | Area |
| | BAS | BASE/MAIN FLOOR | 1 | 0 | 1950 | 318.0 |
| | ENP | ENCLOSED PORCH | 1 | 0 | 1950 | 36.0 |
| | OWP | OPEN WOOD PORCH W/STEPS | 1 | 0 | 1950 | 258.0 |
| | LOF | LOFT | 1 | 0 | 1950 | 96.0 |
| | UTY | STORAGE/UTILITY | 1 | 0 | 1950 | 63.6 |
| | UTY | STORAGE/UTILITY | 1 | 0 | 1950 | 73.4 |
| | UTY | STORAGE/UTILITY | 1 | 0 | 1950 | 324.0 |
| | UTY | STORAGE/UTILITY | 1 | 0 | 1950 | 36.0 |
Sketch
Property Image
Land
| 1 | 32 | AC (03.01-09.99) | 3.5200 | 0.00 | 0.00 | 0.00 | 1.00 | $350,000 | $0 |
Roll Value History
| 2026 | N/A | N/A | N/A | N/A | N/A |
| 2025 | $141,986 | $350,000 | $0 | $491,986 | $491,986 |
| 2024 | $144,125 | $330,000 | $0 | $474,125 | $474,125 |
| 2023 | $146,267 | $300,000 | $0 | $446,267 | $446,267 |
| 2022 | $132,214 | $280,000 | $0 | $412,214 | $412,214 |
| 2021 | $116,656 | $230,000 | $0 | $346,656 | $346,656 |
| 2020 | $113,796 | $190,000 | $0 | $303,796 | $303,796 |
| 2019 | $78,778 | $230,000 | $0 | $308,778 | $308,778 |
| 2018 | $79,068 | $210,000 | $0 | $289,068 | $289,068 |
| 2017 | $79,643 | $190,000 | $0 | $269,643 | $269,643 |
| 2016 | $53,913 | $140,000 | $0 | $193,913 | $193,913 |
| 2015 | $54,810 | $95,040 | $0 | $149,850 | $149,850 |
| 2014 | $55,707 | $95,040 | $0 | $150,747 | $150,747 |
| 2013 | $48,350 | $95,040 | $0 | $143,390 | $143,390 |
| 2012 | $48,807 | $95,040 | $0 | $143,847 | $143,847 |
| 2011 | $49,265 | $95,040 | $0 | $144,305 | $144,305 |
| 2010 | $52,559 | $95,040 | $0 | $147,599 | $147,599 |
| 2009 | $54,895 | $137,280 | $0 | $192,175 | $192,175 |
| 2008 | $56,334 | $197,120 | $0 | $253,454 | $253,454 |
| 2007 | $41,427 | $202,781 | $0 | $244,208 | $244,208 |
Deed and Sales History
| 1 | 12/16/2002 | QCD | Quit Claim Deed | ADADOW, RICHARD M | ADADOW, RICHARD M | | | $0.00 | 25094 | 4041206 |
| 2 | 04/25/2002 | WD | Warranty Deed | HANSEN, | ADADOW, RICHARD M | | | $119,000.00 | 21669 | 4018720 |
| 3 | 04/04/2000 | WD | Warranty Deed | LOCKWOOD, MARTIN B | HANSEN, | | | $65,000.00 | 1241 | 20006241 |
| 4 | 10/01/1995 | OTHER | Other - Misc. Documents | LOCKWOOD, MARTIN B | LOCKWOOD, MARTIN B | | | $0.00 | 66675 | 95016543 |
| 5 | 01/01/1900 | OTHER | Other - Misc. Documents | Unknown | LOCKWOOD, MARTIN B | | | $0.00 | 44020 | 94020736 |
| 6 | 01/01/1900 | OTHER | Other - Misc. Documents | LOCKWOOD, MARTIN B | LOCKWOOD, MARTIN B | | | $0.00 | 0 | 0 |
Payout Agreement
| No payout information available.. |