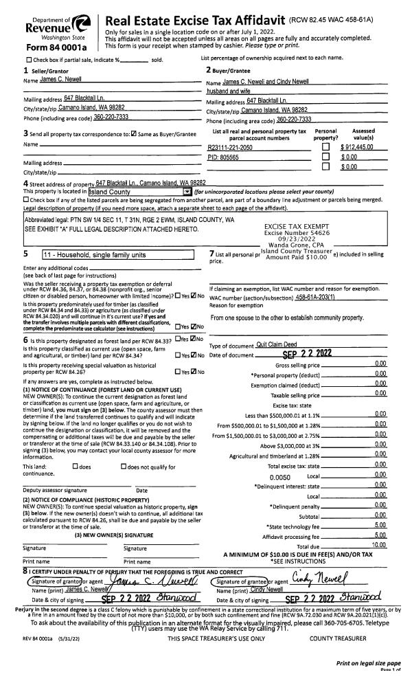
Property
Account |
| Property ID: | 714301 | Abbreviated Legal Description: | TRACT B SP 82-93-11.23326.337-0860 AF#408148 V1P211 |
| Geographic ID: | R23326-315-1160 | Agent Code: | |
| Type: | Real | | |
| Tax Area: | 112 - APPRAISER-OH Schl Dist, outside OH, improved, greater than 1 acre | Land Use Code | 11 |
| Open Space: | N | DFL | N |
| Historic Property: | N | Remodel Property: | N |
| Multi-Family Redevelopment: | N | | |
| Township: | 33 | Section: | 26 |
| Range: | R2 |
Location |
| Address: | 3053 WOOLYBROOK LN OAK HARBOR, WA 98277 | Mapsco: | |
| Neighborhood: | Cycle 6 | Map ID: | 625 |
| Neighborhood CD: | 6 |
Owner |
| Name: | D'OYLEY, PAUL S | Owner ID: | 303213 |
| Mailing Address: | TAMMY L D'OYLEY 14480 58TH AVE SOUTH TUKWILA, WA 98168 | % Ownership: | 100.0000000000% |
| | | Exemptions: | |
Taxes and Assessment Details
Values
| (+) Improvement Homesite Value: | + | $0 | |
| (+) Improvement Non-Homesite Value: | + | $437,192 | |
| (+) Land Homesite Value: | + | $0 | |
| (+) Land Non-Homesite Value: | + | $290,000 | |
| (+) Curr Use (HS): | + | $0 | $0 |
| (+) Curr Use (NHS): | + | $0 | $0 |
| | | -------------------------- | |
| (=) Market Value: | = | $727,192 | |
| (–) Productivity Loss: | – | $0 | |
| | | -------------------------- | |
| (=) Subtotal: | = | $727,192 | |
| (+) Senior Appraised Value: | + | $0 | |
| (+) Non-Senior Appraised Value: | + | $727,192 | |
| | | -------------------------- | |
| (=) Total Appraised Value: | = | $727,192 | |
| (–) Senior Exemption Loss: | – | $0 | |
| (–) Exemption Loss: | – | $0 | |
| | | -------------------------- | |
| (=) Taxable Value: | = | $727,192 | |
Taxing Jurisdiction
| Owner: | D'OYLEY, PAUL S | | |
| % Ownership: | 100.0000000000% | | |
| Total Value: | $727,192 | | |
| Tax Area: | 112 - APPRAISER-OH Schl Dist, outside OH, improved, greater than 1 acre |
| CF | Conservation Futures | 0.0316035091 | $727,192 | $727,192 | $22.98 | | |
| CEM1 | Cemetery #1 | 0.0040320932 | $727,192 | $727,192 | $2.93 | | |
| FIRE2 | Fire & Rescue Dist #2 N Whidbey GEN | 0.5475949600 | $727,192 | $727,192 | $398.21 | | |
| HOBOND | Hospital BOND | 0.1910887512 | $727,192 | $727,192 | $138.96 | | |
| HOGEN | Hospital GEN | 0.3902502903 | $727,192 | $727,192 | $283.79 | | |
| CE | County Current Expense | 0.3708482477 | $727,192 | $727,192 | $269.68 | | |
| CR | County Roads | 0.4584763726 | $727,192 | $727,192 | $333.40 | | |
| ISLANDEMS | Hospital GEN (EMS) | 0.5000000000 | $727,192 | $727,192 | $363.60 | | |
| LIB | Library Sno-Isle GEN | 0.3153421757 | $727,192 | $727,192 | $229.31 | | |
| NWHIDPRMT | P & R N Whidbey GEN | 0.2004466701 | $727,192 | $727,192 | $145.76 | | |
| SCH201MO | School 201 Enrichment | 1.8559231640 | $727,192 | $727,192 | $1,349.61 | | |
| ST | State School | 1.3035497053 | $727,192 | $727,192 | $947.93 | | |
| ST2 | State School Part 2 | 0.8169543533 | $727,192 | $727,192 | $594.08 | | |
| | Total Tax Rate: | 6.9861102925 | | | | | |
| | | | | Taxes w/Current Exemptions: | $5,080.24 | | |
| | | | | Taxes w/o Exemptions: | $5,080.24 | | |
Improvement / Building
| Improvement #1: | RESIDENTIAL | State Code: | Y | 3172.5 sqft | Value: | $437,192 |
| Bathrooms: | 3 | Bedrooms: | 3 | | Ceiling: | DRYWALL PAINTED | Cooling: | HEAT PUMP/CONV/V | | Exterior Wall/Cover: | WOOD SIDING | Floor Covering: | CERAMIC TILE/CPT 40-60 | | Floor Structure: | WOOD W/SUBFLOOR | Foundation: | CONCRETE | | Interior Finish: | DRYWALL PAINT | Plumbing Fixture Cnt: | 13 | | Roof Slope: | 4" IN 12" | Roof Structure/Cover: | CJ ASPHALT |
|
| | Type | Description | Class CD | Sub Class CD | Year Built | Area |
| | BAS | BASE/MAIN FLOOR | 3 | 0 | 1985 | 1876.5 |
| | OCP | OPEN CARPORT | 3 | 0 | 1985 | 1408.0 |
| | OWP | OPEN WOOD PORCH W/STEPS | 3 | 0 | 1985 | 263.0 |
| | OWC | OPEN WOOD PORCH W/STEPS/ROOF/C | 3 | 0 | 1985 | 634.5 |
| | DWN | DOWNSTAIRS LIVING AREA | 3 | 0 | 1985 | 1296.0 |
| | UTY | STORAGE/UTILITY | 3 | 0 | 1985 | 1152.0 |
Sketch
Property Image
Land
| 1 | 18 | AC (02.01-03.00) | 2.5100 | 109335.60 | 0.00 | 0.00 | 1.00 | $290,000 | $0 |
Roll Value History
| 2026 | N/A | N/A | N/A | N/A | N/A |
| 2025 | $437,192 | $290,000 | $0 | $727,192 | $727,192 |
| 2024 | $442,696 | $280,000 | $0 | $722,696 | $722,696 |
| 2023 | $448,200 | $280,000 | $0 | $728,200 | $728,200 |
| 2022 | $342,338 | $220,000 | $0 | $562,338 | $562,338 |
| 2021 | $304,808 | $190,000 | $0 | $494,808 | $494,808 |
| 2020 | $298,935 | $160,000 | $0 | $458,935 | $458,935 |
| 2019 | $245,468 | $220,000 | $0 | $465,468 | $465,468 |
| 2018 | $246,248 | $200,000 | $0 | $446,248 | $446,248 |
| 2017 | $235,938 | $165,000 | $0 | $400,938 | $400,938 |
| 2016 | $229,467 | $130,000 | $0 | $359,467 | $359,467 |
| 2015 | $232,364 | $110,000 | $0 | $342,364 | $342,364 |
| 2014 | $238,220 | $100,000 | $0 | $338,220 | $338,220 |
| 2013 | $241,154 | $108,000 | $0 | $349,154 | $349,154 |
| 2012 | $244,091 | $108,000 | $0 | $352,091 | $352,091 |
| 2011 | $247,029 | $120,000 | $0 | $367,029 | $367,029 |
| 2010 | $256,890 | $120,000 | $0 | $376,890 | $376,890 |
| 2009 | $267,425 | $155,000 | $0 | $422,425 | $422,425 |
| 2008 | $277,047 | $145,000 | $0 | $422,047 | $422,047 |
| 2007 | $280,358 | $217,500 | $0 | $497,858 | $497,858 |
Deed and Sales History
| 1 | 02/24/2022 | WD | Warranty Deed | FRASCA, TROY | D'OYLEY, PAUL S | | | $712,500.00 | 52151 | 4540757 |
| 2 | 04/21/2020 | WD | Warranty Deed | ROBERTS, RONALD W | FRASCA, TROY | | | $497,500.00 | 42892 | 4485877 |
| 3 | 07/15/2016 | WD | Warranty Deed | ROBERTS, RONALD W | ROBERTS, RONALD W | | | $0.00 | 28942 | 4420994 |
| 4 | 11/06/2009 | ESTSEPPROP | Establish Separate Property | ROBERTS, RONALD W | ROBERTS, RONALD W | | | $0.00 | 92732 | 4263357 |
| 5 | 05/27/2004 | WD | Warranty Deed | KARSH, TOMMY A | ROBERTS, RONALD W | | | $290,000.00 | 42346 | 4102326 |
| 6 | 02/07/2003 | 5 | DNU - Marriage License/Name Change | KARSH, DANICE L | KARSH, TOMMY A | | | $0.00 | 69722 | 4047003 |
| 7 | 05/01/1995 | OTHER | Other - Misc. Documents | Unknown | KARSH, DANICE L | | | $0.00 | 66421 | 88014064 |
Payout Agreement
| No payout information available.. |