Property
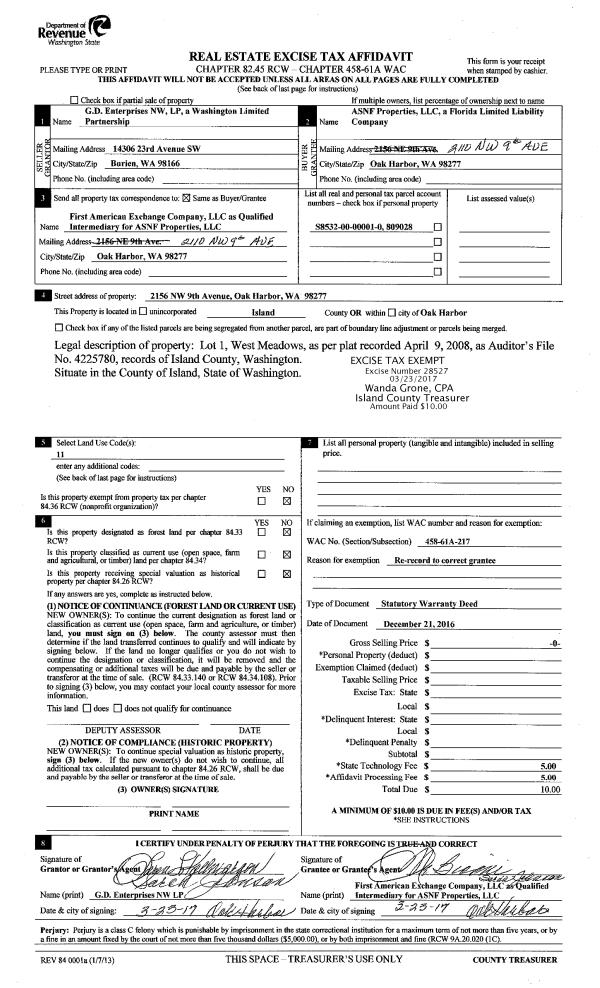
Account |
| Property ID: | 714481 | Abbreviated Legal Description: | 83 - BG SW CR GL1 E22' N26* E1198' TPB N26*E100' S63*E TO SEC LN S ALG SEC LN 110' N63*W TPB |
| Geographic ID: | R32805-103-5050 | Agent Code: | |
| Type: | Real | | |
| Tax Area: | 712 - APPRAISER-S Whid Schl Dist, outside Langley, improved, greater than 1 acre | Land Use Code | 11 |
| Open Space: | N | DFL | N |
| Historic Property: | N | Remodel Property: | N |
| Multi-Family Redevelopment: | N | | |
| Township: | 28 | Section: | 05 |
| Range: | R3 |
Location |
| Address: | 7515 MAXWELTON RD CLINTON, WA 98236 | Mapsco: | |
| Neighborhood: | Cycle 4 | Map ID: | 691 |
| Neighborhood CD: | 4 |
Owner |
| Name: | JOHNSON BROTHERS LLC | Owner ID: | 279217 |
| Mailing Address: | PO BOX 1171 CLINTON, WA 98236 | % Ownership: | 100.0000000000% |
| | | Exemptions: | |
Taxes and Assessment Details
Values
| (+) Improvement Homesite Value: | + | $0 | |
| (+) Improvement Non-Homesite Value: | + | $227,565 | |
| (+) Land Homesite Value: | + | $0 | |
| (+) Land Non-Homesite Value: | + | $370,000 | |
| (+) Curr Use (HS): | + | $0 | $0 |
| (+) Curr Use (NHS): | + | $0 | $0 |
| | | -------------------------- | |
| (=) Market Value: | = | $597,565 | |
| (–) Productivity Loss: | – | $0 | |
| | | -------------------------- | |
| (=) Subtotal: | = | $597,565 | |
| (+) Senior Appraised Value: | + | $0 | |
| (+) Non-Senior Appraised Value: | + | $597,565 | |
| | | -------------------------- | |
| (=) Total Appraised Value: | = | $597,565 | |
| (–) Senior Exemption Loss: | – | $0 | |
| (–) Exemption Loss: | – | $0 | |
| | | -------------------------- | |
| (=) Taxable Value: | = | $597,565 | |
Taxing Jurisdiction
| Owner: | JOHNSON BROTHERS LLC | | |
| % Ownership: | 100.0000000000% | | |
| Total Value: | $597,565 | | |
| Tax Area: | 712 - APPRAISER-S Whid Schl Dist, outside Langley, improved, greater than 1 acre |
| CF | Conservation Futures | 0.0316035091 | $597,565 | $597,565 | $18.89 | | |
| FIRE3 | Fire & Rescue Dist #3 S Whidbey GEN | 1.2004855531 | $597,565 | $597,565 | $717.37 | | |
| HOBOND | Hospital BOND | 0.1910887512 | $597,565 | $597,565 | $114.19 | | |
| HOGEN | Hospital GEN | 0.3902502903 | $597,565 | $597,565 | $233.20 | | |
| CE | County Current Expense | 0.3708482477 | $597,565 | $597,565 | $221.61 | | |
| CR | County Roads | 0.4584763726 | $597,565 | $597,565 | $273.97 | | |
| ISLANDEMS | Hospital GEN (EMS) | 0.5000000000 | $597,565 | $597,565 | $298.78 | | |
| LIB | Library Sno-Isle GEN | 0.3153421757 | $597,565 | $597,565 | $188.44 | | |
| PORTWHID | Port of S Whidbey GEN | 0.1094540357 | $597,565 | $597,565 | $65.41 | | |
| SCH206BOND | School 206 BOND | 0.3161759235 | $597,565 | $597,565 | $188.94 | | |
| SCH206MO | School 206 Enrichment | 0.4547169547 | $597,565 | $597,565 | $271.72 | | |
| ST | State School | 1.3035497053 | $597,565 | $597,565 | $778.96 | | |
| ST2 | State School Part 2 | 0.8169543533 | $597,565 | $597,565 | $488.18 | | |
| SWHIDPRBD | P & R S Whidbey BOND | 0.0152817568 | $597,565 | $597,565 | $9.13 | | |
| SWHIDPRBD2 | P & R S Whidbey BOND2 | 0.0138911264 | $597,565 | $597,565 | $8.30 | | |
| SWHIDPRMT | P & R S Whidbey GEN | 0.2053334452 | $597,565 | $597,565 | $122.70 | | |
| | Total Tax Rate: | 6.6934522006 | | | | | |
| | | | | Taxes w/Current Exemptions: | $3,999.79 | | |
| | | | | Taxes w/o Exemptions: | $3,999.79 | | |
Improvement / Building
| Improvement #1: | RESIDENTIAL | State Code: | Y | 1464.0 sqft | Value: | $227,565 |
| Bathrooms: | 2 | Bedrooms: | 2 | | Ceiling: | DRYWALL PAINTED | Exterior Wall/Cover: | SHINGLE | | Floor Covering: | SOFTWOOD 100% | Floor Structure: | WOOD W/SUBFLOOR | | Foundation: | CONCRETE BLOCKS | Heating: | BASEBOARD ELECTRIC | | Interior Finish: | DRYWALL PAINT | Plumbing Fixture Cnt: | 9 | | Roof Slope: | 4" IN 12" | Roof Structure/Cover: | CJ ASPHALT |
|
| | Type | Description | Class CD | Sub Class CD | Year Built | Area |
| | BAS | BASE/MAIN FLOOR | 3 | 0 | 1939 | 964.0 |
| | AGR | ATTACHED GARAGE | 3 | 0 | 1939 | 314.0 |
| | UTY | STORAGE/UTILITY | 3 | 0 | 1939 | 500.0 |
| | UPS | UPPER STORY | 3 | 0 | 1939 | 500.0 |
| | OWP | OPEN WOOD PORCH W/STEPS | 3 | 0 | 1939 | 160.0 |
| | OWR | OPEN WOOD PORCH W/STEPS/ROOF | 3 | 0 | 1939 | 144.0 |
| | OWP | OPEN WOOD PORCH W/STEPS | 3 | 0 | 1939 | 45.0 |
Sketch
Property Image
Land
| 1 | 17 | AC (01.01-02.00) | 1.0400 | 45302.40 | 0.00 | 0.00 | 1.00 | $370,000 | $0 |
Roll Value History
| 2026 | N/A | N/A | N/A | N/A | N/A |
| 2025 | $227,565 | $370,000 | $0 | $597,565 | $597,565 |
| 2024 | $166,592 | $280,000 | $0 | $446,592 | $446,592 |
| 2023 | $169,108 | $260,000 | $0 | $429,108 | $429,108 |
| 2022 | $155,407 | $250,000 | $0 | $405,407 | $405,407 |
| 2021 | $137,109 | $175,000 | $0 | $312,109 | $312,109 |
| 2020 | $135,579 | $165,000 | $0 | $300,579 | $300,579 |
| 2019 | $97,917 | $200,000 | $0 | $297,917 | $297,917 |
| 2018 | $98,276 | $170,000 | $0 | $268,276 | $268,276 |
| 2017 | $47,875 | $130,000 | $0 | $177,875 | $177,875 |
| 2016 | $48,716 | $130,000 | $0 | $178,716 | $178,716 |
| 2015 | $49,556 | $130,000 | $0 | $179,556 | $179,556 |
| 2014 | $80,198 | $133,875 | $0 | $214,073 | $214,073 |
| 2013 | $81,967 | $133,875 | $0 | $215,842 | $215,842 |
| 2012 | $83,741 | $133,875 | $0 | $217,616 | $217,616 |
| 2011 | $85,512 | $157,500 | $0 | $243,012 | $243,012 |
| 2010 | $98,516 | $157,500 | $0 | $256,016 | $256,016 |
| 2009 | $103,337 | $180,000 | $0 | $283,337 | $283,337 |
| 2008 | $101,804 | $180,985 | $0 | $282,789 | $282,789 |
| 2007 | $104,405 | $177,770 | $0 | $282,175 | $282,175 |
Deed and Sales History
| 1 | 03/30/2017 | WD | Warranty Deed | HACKINEN LIFE ESTATE, SUZANNE I | JOHNSON BROTHERS LLC | | | $85,000.00 | 28684 | 4419924 |
| 2 | 02/15/2017 | PRD | Personal Representatives Deed | HACKINEN LIFE ESTATE, SUZANNE I | HACKINEN LIFE ESTATE, SUZANNE I | | | $0.00 | 28385 | 4418633 |
| 3 | 03/26/2015 | QCD | Quit Claim Deed | HACKINEN LE, SUZANNE I | HACKINEN LIFE ESTATE, SUZANNE I | | | $0.00 | 19048 | 4376169 |
| 4 | 01/21/2014 | QCD | Quit Claim Deed | HACKINEN LE, SUZANNE I | HACKINEN LE, SUZANNE I | | | $0.00 | 15698 | 4361092 |
| 5 | 11/01/1987 | QCD | Quit Claim Deed | HACKINEN, SUZANNE I | HACKINEN, SUZANNE I | | | $0.00 | 73792 | 87016470 |
| 6 | 01/01/1900 | OTHER | Other - Misc. Documents | Unknown | HACKINEN, SUZANNE I | | | $0.00 | 0 | 0 |
Payout Agreement
| No payout information available.. |