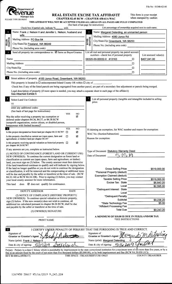
Property
Account |
| Property ID: | 71451 | Abbreviated Legal Description: | 44 - IN SW: BG NWCR SW S270 .85' S88*E525' TPB S88*E400 N273' M/L TP ON NLN SW W400 S272' M/L TPB |
| Geographic ID: | R23101-252-0730 | Agent Code: | |
| Type: | Real | | |
| Tax Area: | 512 - APPRAISER-Stan/Cam Schl Dist, improved, greater than 1 acre | Land Use Code | 11 |
| Open Space: | N | DFL | N |
| Historic Property: | N | Remodel Property: | N |
| Multi-Family Redevelopment: | N | | |
| Township: | 31 | Section: | 01 |
| Range: | R2 |
Location |
| Address: | 357 COTTONWOOD DR CAMANO ISLAND, WA 98282 | Mapsco: | |
| Neighborhood: | Cycle 5 | Map ID: | 449 |
| Neighborhood CD: | 5 |
Owner |
| Name: | PATRICK, BRIAN R | Owner ID: | 289365 |
| Mailing Address: | LISA L PONTIUS 357 COTTONWOOD DR CAMANO ISLAND, WA 98282 | % Ownership: | 100.0000000000% |
| | | Exemptions: | |
Taxes and Assessment Details
Values
| (+) Improvement Homesite Value: | + | $0 | |
| (+) Improvement Non-Homesite Value: | + | $179,473 | |
| (+) Land Homesite Value: | + | $0 | |
| (+) Land Non-Homesite Value: | + | $300,000 | |
| (+) Curr Use (HS): | + | $0 | $0 |
| (+) Curr Use (NHS): | + | $0 | $0 |
| | | -------------------------- | |
| (=) Market Value: | = | $479,473 | |
| (–) Productivity Loss: | – | $0 | |
| | | -------------------------- | |
| (=) Subtotal: | = | $479,473 | |
| (+) Senior Appraised Value: | + | $0 | |
| (+) Non-Senior Appraised Value: | + | $479,473 | |
| | | -------------------------- | |
| (=) Total Appraised Value: | = | $479,473 | |
| (–) Senior Exemption Loss: | – | $0 | |
| (–) Exemption Loss: | – | $0 | |
| | | -------------------------- | |
| (=) Taxable Value: | = | $479,473 | |
Taxing Jurisdiction
| Owner: | PATRICK, BRIAN R | | |
| % Ownership: | 100.0000000000% | | |
| Total Value: | $479,473 | | |
| Tax Area: | 512 - APPRAISER-Stan/Cam Schl Dist, improved, greater than 1 acre |
| CF | Conservation Futures | 0.0316035091 | $479,473 | $479,473 | $15.15 | | |
| EMS1 | Fire & Rescue Dist #1 Camano GEN (EMS) | 0.3677864386 | $479,473 | $479,473 | $176.34 | | |
| FIRE1 | Fire & Rescue Dist #1 Camano GEN | 1.2502910536 | $479,473 | $479,473 | $599.48 | | |
| FIRE1BOND | Fire & Rescue Dist #1 Camano BOND | 0.1570001679 | $479,473 | $479,473 | $75.28 | | |
| CE | County Current Expense | 0.3708482477 | $479,473 | $479,473 | $177.81 | | |
| CR | County Roads | 0.4584763726 | $479,473 | $479,473 | $219.83 | | |
| LCIB | Library Sno-Isle BOND (Camano Island) | 0.0396325772 | $479,473 | $479,473 | $19.00 | | |
| LIB | Library Sno-Isle GEN | 0.3153421757 | $479,473 | $479,473 | $151.20 | | |
| SCH205_401 | School 205-401 Enrichment | 1.2698420524 | $479,473 | $479,473 | $608.85 | | |
| SCH205BOND | School 205-401 BOND | 0.9396497583 | $479,473 | $479,473 | $450.54 | | |
| ST | State School | 1.3035497053 | $479,473 | $479,473 | $625.02 | | |
| ST2 | State School Part 2 | 0.8169543533 | $479,473 | $479,473 | $391.71 | | |
| | Total Tax Rate: | 7.3209764117 | | | | | |
| | | | | Taxes w/Current Exemptions: | $3,510.21 | | |
| | | | | Taxes w/o Exemptions: | $3,510.21 | | |
Improvement / Building
| Improvement #1: | MANUFACTURED HOME | State Code: | Y | 1284.1 sqft | Value: | $179,473 |
| Bathrooms: | 1 | Bedrooms: | 2 | | Ceiling: | PLASTER PAINTED | Cooling: | EVAP NO DUCT | | Exterior Wall/Cover: | VINYL | Floor Covering: | CARPET 100% | | Floor Structure: | SLAB ON GRADE | Foundation: | SLAB | | Heating: | FHA ELECTRIC | Interior Finish: | PLASTER | | Roof Slope: | FLAT | Roof Structure/Cover: | CJ ALUMINIUM HEAVY |
|
| | Type | Description | Class CD | Sub Class CD | Year Built | Area |
| | BAS | BASE/MAIN FLOOR | 4 | 0 | 1995 | 1284.1 |
| | OWR | OPEN WOOD PORCH W/STEPS/ROOF | 4 | 0 | 1995 | 100.0 |
| | OWP | OPEN WOOD PORCH W/STEPS | 4 | 0 | 1995 | 83.9 |
| | oOBD | Out Buildings | 4 | 0 | 1995 | 1728.0 |
| | UTY | STORAGE/UTILITY | 4 | 0 | 1995 | 128.0 |
| | OCP | OPEN CARPORT | 4 | 0 | 1995 | 324.0 |
| | OWP | OPEN WOOD PORCH W/STEPS | 4 | 0 | 1995 | 100.0 |
| | UTY | STORAGE/UTILITY | 4 | 0 | 1995 | 324.0 |
Sketch
Property Image
Land
| 1 | 18 | AC (02.01-03.00) | 2.5000 | 108900.00 | 0.00 | 0.00 | 1.00 | $300,000 | $0 |
Roll Value History
| 2026 | N/A | N/A | N/A | N/A | N/A |
| 2025 | $179,473 | $300,000 | $0 | $479,473 | $479,473 |
| 2024 | $182,923 | $280,000 | $0 | $462,923 | $462,923 |
| 2023 | $167,692 | $270,000 | $0 | $437,692 | $437,692 |
| 2022 | $158,641 | $260,000 | $0 | $418,641 | $418,641 |
| 2021 | $134,139 | $180,000 | $0 | $314,139 | $314,139 |
| 2020 | $133,753 | $150,000 | $0 | $283,753 | $283,753 |
| 2019 | $116,376 | $200,000 | $0 | $316,376 | $316,376 |
| 2018 | $118,182 | $150,000 | $0 | $268,182 | $268,182 |
| 2017 | $119,990 | $135,000 | $0 | $254,990 | $254,990 |
| 2016 | $120,893 | $100,000 | $0 | $220,893 | $220,893 |
| 2015 | $125,699 | $89,600 | $0 | $215,299 | $215,299 |
| 2014 | $127,005 | $89,600 | $0 | $216,605 | $216,605 |
| 2013 | $127,658 | $89,600 | $0 | $217,258 | $217,258 |
| 2012 | $128,964 | $89,600 | $0 | $218,564 | $218,564 |
| 2011 | $130,270 | $112,000 | $0 | $242,270 | $242,270 |
| 2010 | $121,739 | $112,000 | $0 | $233,739 | $233,739 |
| 2009 | $120,838 | $135,000 | $0 | $255,838 | $255,838 |
| 2008 | $124,771 | $134,000 | $0 | $258,771 | $258,771 |
| 2007 | $127,902 | $130,000 | $0 | $257,902 | $257,902 |
Deed and Sales History
| 1 | 04/22/2019 | QCD | Quit Claim Deed | PATRICK, BRIAN R | PATRICK, BRIAN R | | | $0.00 | 38095 | 4461477 |
| 2 | 08/13/2009 | WD | Warranty Deed | PRESLEY, DENNIS J & HOLLY A | PATRICK, BRIAN R | | | $170,000.00 | 91926 | 4258711 |
| 3 | 04/16/1998 | WD | Warranty Deed | PRESLEY, DENNIS J | PRESLEY, DENNIS J & HOLLY A | | | $35,000.00 | 81406 | 98007723 |
| 4 | 07/25/1995 | PACD | Purchaser's Assignment | TOPOULEV, ATANAS | PRESLEY, DENNIS J | | | $43,500.00 | 0 | 0 |
| 5 | 02/01/1995 | WD | Warranty Deed | REAL, ESTATE 2 | TOPOULEV, ATANAS | | | $25,000.00 | 50541 | 95002634 |
| 6 | 09/01/1994 | WD | Warranty Deed | PRESLEY, DENNIS J | REAL, ESTATE 2 | | | $25,000.00 | 43980 | 94020607 |
| 7 | 01/01/1900 | OTHER | Other - Misc. Documents | ROEBER, WILLIAM H | PRESLEY, DENNIS J | | | $0.00 | 81406 | 98007723 |
| 8 | 01/01/1900 | OTHER | Other - Misc. Documents | Unknown | ROEBER, WILLIAM H | | | $0.00 | 0 | 0 |
Payout Agreement
| No payout information available.. |