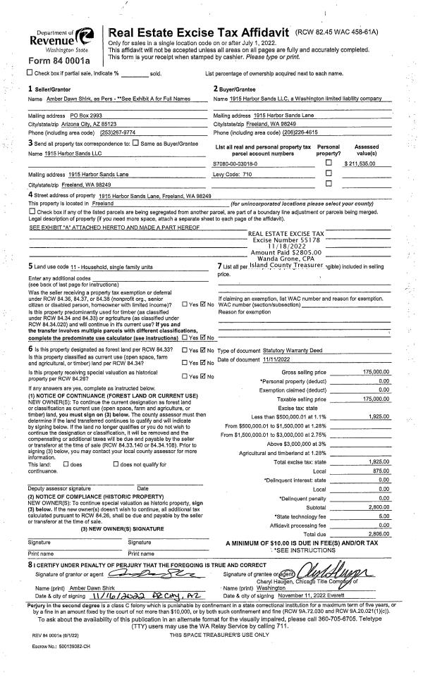
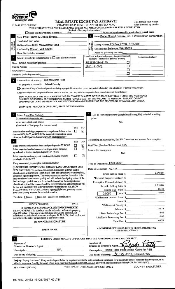
Property
Account |
| Property ID: | 714819 | Abbreviated Legal Description: | IN GL 4: L6 UNREC CASCADE VU ADD, PT TRACT A OF UNREC CASCADE VU & PT GL4: BG SW CR GL4 N0*E624.10'INTER W/ SLN N/2 GL4 S89*E618.26'TO E R/W WILKENSON RD TPB S29*E40.43' S89*E207.44' N0*E35' S89*E160.97'TO SECR L6 UNREC CASCADE VU ADD N48*W204.89' S42*W55 |
| Geographic ID: | R32913-063-2140 | Agent Code: | |
| Type: | Real | | |
| Tax Area: | 710 - APPRAISER-S Whid Schl Dist, outside Langley, improved & 1 acre or less | Land Use Code | 11 |
| Open Space: | N | DFL | N |
| Historic Property: | N | Remodel Property: | N |
| Multi-Family Redevelopment: | N | | |
| Township: | 29 | Section: | 13 |
| Range: | R3 |
Location |
| Address: | 5065 ZIMMERMAN RD LANGLEY, WA 98260 | Mapsco: | |
| Neighborhood: | Cycle 4 | Map ID: | 764 |
| Neighborhood CD: | 4 |
Owner |
| Name: | BROWN, RICKY A | Owner ID: | 300343 |
| Mailing Address: | PO BOX 659 LANGLEY, WA 98260 | % Ownership: | 100.0000000000% |
| | | Exemptions: | |
Taxes and Assessment Details
Values
| (+) Improvement Homesite Value: | + | $0 | |
| (+) Improvement Non-Homesite Value: | + | $311,502 | |
| (+) Land Homesite Value: | + | $0 | |
| (+) Land Non-Homesite Value: | + | $360,000 | |
| (+) Curr Use (HS): | + | $0 | $0 |
| (+) Curr Use (NHS): | + | $0 | $0 |
| | | -------------------------- | |
| (=) Market Value: | = | $671,502 | |
| (–) Productivity Loss: | – | $0 | |
| | | -------------------------- | |
| (=) Subtotal: | = | $671,502 | |
| (+) Senior Appraised Value: | + | $0 | |
| (+) Non-Senior Appraised Value: | + | $671,502 | |
| | | -------------------------- | |
| (=) Total Appraised Value: | = | $671,502 | |
| (–) Senior Exemption Loss: | – | $0 | |
| (–) Exemption Loss: | – | $0 | |
| | | -------------------------- | |
| (=) Taxable Value: | = | $671,502 | |
Taxing Jurisdiction
| Owner: | BROWN, RICKY A | | |
| % Ownership: | 100.0000000000% | | |
| Total Value: | $671,502 | | |
| Tax Area: | 710 - APPRAISER-S Whid Schl Dist, outside Langley, improved & 1 acre or less |
| CF | Conservation Futures | 0.0316035091 | $671,502 | $671,502 | $21.22 | | |
| FIRE3 | Fire & Rescue Dist #3 S Whidbey GEN | 1.2004855531 | $671,502 | $671,502 | $806.13 | | |
| HOBOND | Hospital BOND | 0.1910887512 | $671,502 | $671,502 | $128.32 | | |
| HOGEN | Hospital GEN | 0.3902502903 | $671,502 | $671,502 | $262.05 | | |
| CE | County Current Expense | 0.3708482477 | $671,502 | $671,502 | $249.03 | | |
| CR | County Roads | 0.4584763726 | $671,502 | $671,502 | $307.87 | | |
| ISLANDEMS | Hospital GEN (EMS) | 0.5000000000 | $671,502 | $671,502 | $335.75 | | |
| LIB | Library Sno-Isle GEN | 0.3153421757 | $671,502 | $671,502 | $211.75 | | |
| PORTWHID | Port of S Whidbey GEN | 0.1094540357 | $671,502 | $671,502 | $73.50 | | |
| SCH206BOND | School 206 BOND | 0.3161759235 | $671,502 | $671,502 | $212.31 | | |
| SCH206MO | School 206 Enrichment | 0.4547169547 | $671,502 | $671,502 | $305.34 | | |
| ST | State School | 1.3035497053 | $671,502 | $671,502 | $875.34 | | |
| ST2 | State School Part 2 | 0.8169543533 | $671,502 | $671,502 | $548.59 | | |
| SWHIDPRBD | P & R S Whidbey BOND | 0.0152817568 | $671,502 | $671,502 | $10.26 | | |
| SWHIDPRBD2 | P & R S Whidbey BOND2 | 0.0138911264 | $671,502 | $671,502 | $9.33 | | |
| SWHIDPRMT | P & R S Whidbey GEN | 0.2053334452 | $671,502 | $671,502 | $137.88 | | |
| | Total Tax Rate: | 6.6934522006 | | | | | |
| | | | | Taxes w/Current Exemptions: | $4,494.67 | | |
| | | | | Taxes w/o Exemptions: | $4,494.67 | | |
Improvement / Building
| Improvement #1: | RESIDENTIAL | State Code: | Y | 1984.0 sqft | Value: | $311,502 |
| Bathrooms: | 3 | Bedrooms: | 2 | | Ceiling: | DRYWALL PAINTED | Cooling: | HEAT PUMP/CONV/V | | Exterior Wall/Cover: | PLY/HARDBOARD T-111 | Floor Covering: | CARPET/VINYL 60-40 | | Floor Structure: | WOOD W/SUBFLOOR | Foundation: | CONCRETE | | Interior Finish: | DRYWALL PAINT | Plumbing Fixture Cnt: | 10 | | Roof Slope: | 3" IN 12" | Roof Structure/Cover: | BEAM ALUMINUM HEAVY |
|
| | Type | Description | Class CD | Sub Class CD | Year Built | Area |
| | BAS | BASE/MAIN FLOOR | 3 | 0 | 1968 | 992.0 |
| | UPS | UPPER STORY | 3 | 0 | 1968 | 992.0 |
| | OWP | OPEN WOOD PORCH W/STEPS | 3 | 0 | 1968 | 728.0 |
| | DGR | DETACHED GARAGE | 3 | 0 | 1968 | 851.0 |
| | OCP | OPEN CARPORT | 3 | 0 | 1968 | 414.0 |
| | UTY | STORAGE/UTILITY | 3 | 0 | 1968 | 144.0 |
Sketch
Property Image
Land
| 1 | 16 | AC (00.51-01.00) | 0.0000 | 0.00 | 0.00 | 0.00 | 1.00 | $360,000 | $0 |
Roll Value History
| 2026 | N/A | N/A | N/A | N/A | N/A |
| 2025 | $311,502 | $360,000 | $0 | $671,502 | $671,502 |
| 2024 | $315,876 | $340,000 | $0 | $655,876 | $655,876 |
| 2023 | $320,248 | $300,000 | $0 | $620,248 | $620,248 |
| 2022 | $293,951 | $280,000 | $0 | $573,951 | $573,951 |
| 2021 | $250,382 | $155,000 | $0 | $405,382 | $405,382 |
| 2020 | $130,530 | $135,000 | $0 | $265,530 | $265,530 |
| 2019 | $99,294 | $180,000 | $0 | $279,294 | $279,294 |
| 2018 | $99,669 | $150,000 | $0 | $249,669 | $249,669 |
| 2017 | $100,418 | $100,000 | $0 | $200,418 | $200,418 |
| 2016 | $101,918 | $100,000 | $0 | $201,918 | $201,918 |
| 2015 | $103,416 | $100,000 | $0 | $203,416 | $203,416 |
| 2014 | $91,901 | $100,000 | $0 | $191,901 | $191,901 |
| 2013 | $93,315 | $100,000 | $0 | $193,315 | $193,315 |
| 2012 | $68,800 | $139,500 | $0 | $208,300 | $208,300 |
| 2011 | $73,000 | $155,000 | $0 | $228,000 | $228,000 |
| 2010 | $76,125 | $155,000 | $0 | $231,125 | $231,125 |
| 2009 | $78,240 | $160,000 | $0 | $238,240 | $238,240 |
| 2008 | $78,686 | $113,100 | $0 | $191,786 | $191,786 |
| 2007 | $79,090 | $113,100 | $0 | $192,190 | $192,190 |
Deed and Sales History
| 1 | 07/07/2021 | WD | Warranty Deed | BRUNDAGE, DAVID K | BROWN, RICKY A | | | $675,000.00 | 49323 | 4525266 |
|   | |
| 2 | 05/25/2017 | QCD | Quit Claim Deed | BRUNDAGE, DAVID KENT | BRUNDAGE, DAVID K | | | $0.00 | 29516 | 4423417 |
| 3 | 03/08/2017 | BARGSLD | Bargain And Sale Deed | U. S. BANK NATIONAL ASSOCIATION | BRUNDAGE, DAVID KENT | | | $218,000.00 | 28515 | 4419208 |
|   | |
| 4 | 02/29/2016 | TRUSTEED | Trustee's Deed | SROF 2013-M4 REO I LLC | U. S. BANK NATIONAL ASSOCIATION | | | $0.00 | 23359 | 4395112 |
| 5 | 12/14/2015 | TRUSTEED | Trustee's Deed | MCCALLIE, DUNCAN H | SROF 2013-M4 REO I LLC | | | $0.00 | 22569 | 4391383 |
| 6 | 06/07/2005 | WD | Warranty Deed | TALBERT, LEE R | MCCALLIE, DUNCAN H | | | $54,871.00 | 53536 | 4141698 |
| 7 | 01/27/1999 | WD | Warranty Deed | HINCHCLIFFE, PAUL G | TALBERT, LEE R | | | $63,830.00 | 90538 | 99003689 |
| 8 | 02/01/1986 | WD | Warranty Deed | FISCHER, ROBERT W | HINCHCLIFFE, PAUL G | | | $80,000.00 | 60400 | 86002065 |
| 9 | 03/01/1985 | OTHER | Other - Misc. Documents | FISCHER, ROBERT W | FISCHER, ROBERT W | | | $0.00 | 61079 | 0 |
| 10 | 09/01/1984 | OTHER | Other - Misc. Documents | FISCHER, ROBERT W | FISCHER, ROBERT W | | | $0.00 | 60825 | 0 |
| 11 | 09/01/1978 | OTHER | Other - Misc. Documents | Unknown | FISCHER, ROBERT W | | | $80,000.00 | 84700 | 340250 |
Payout Agreement
| No payout information available.. |