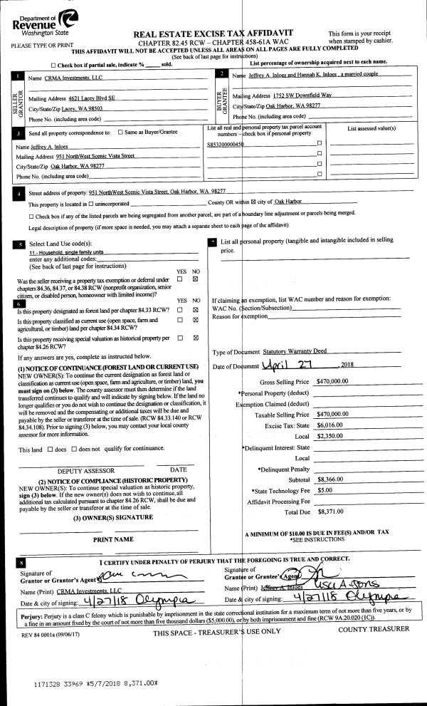
Property
Account |
| Property ID: | 714971 | Abbreviated Legal Description: | NE NE SE EX CO RD |
| Geographic ID: | R32922-230-5080 | Agent Code: | |
| Type: | Real | | |
| Tax Area: | 712 - APPRAISER-S Whid Schl Dist, outside Langley, improved, greater than 1 acre | Land Use Code | 11 |
| Open Space: | N | DFL | N |
| Historic Property: | N | Remodel Property: | N |
| Multi-Family Redevelopment: | N | | |
| Township: | 29 | Section: | 22 |
| Range: | R3 |
Location |
| Address: | 6224 CULTUS BAY RD CLINTON, WA 98236 | Mapsco: | |
| Neighborhood: | Cycle 4 | Map ID: | 800 |
| Neighborhood CD: | 4 |
Owner |
| Name: | LACHAUSSEE, JOSEPH | Owner ID: | 266267 |
| Mailing Address: | SARAH LACHAUSSEE 6224 CULTUS BAY RD CLINTON, WA 98236 | % Ownership: | 100.0000000000% |
| | | Exemptions: | |
Taxes and Assessment Details
Values
| (+) Improvement Homesite Value: | + | $0 | |
| (+) Improvement Non-Homesite Value: | + | $308,292 | |
| (+) Land Homesite Value: | + | $0 | |
| (+) Land Non-Homesite Value: | + | $370,000 | |
| (+) Curr Use (HS): | + | $0 | $0 |
| (+) Curr Use (NHS): | + | $0 | $0 |
| | | -------------------------- | |
| (=) Market Value: | = | $678,292 | |
| (–) Productivity Loss: | – | $0 | |
| | | -------------------------- | |
| (=) Subtotal: | = | $678,292 | |
| (+) Senior Appraised Value: | + | $0 | |
| (+) Non-Senior Appraised Value: | + | $678,292 | |
| | | -------------------------- | |
| (=) Total Appraised Value: | = | $678,292 | |
| (–) Senior Exemption Loss: | – | $0 | |
| (–) Exemption Loss: | – | $0 | |
| | | -------------------------- | |
| (=) Taxable Value: | = | $678,292 | |
Taxing Jurisdiction
| Owner: | LACHAUSSEE, JOSEPH | | |
| % Ownership: | 100.0000000000% | | |
| Total Value: | $678,292 | | |
| Tax Area: | 712 - APPRAISER-S Whid Schl Dist, outside Langley, improved, greater than 1 acre |
| CF | Conservation Futures | 0.0316035091 | $678,292 | $678,292 | $21.44 | | |
| FIRE3 | Fire & Rescue Dist #3 S Whidbey GEN | 1.2004855531 | $678,292 | $678,292 | $814.28 | | |
| HOBOND | Hospital BOND | 0.1910887512 | $678,292 | $678,292 | $129.61 | | |
| HOGEN | Hospital GEN | 0.3902502903 | $678,292 | $678,292 | $264.70 | | |
| CE | County Current Expense | 0.3708482477 | $678,292 | $678,292 | $251.54 | | |
| CR | County Roads | 0.4584763726 | $678,292 | $678,292 | $310.98 | | |
| ISLANDEMS | Hospital GEN (EMS) | 0.5000000000 | $678,292 | $678,292 | $339.15 | | |
| LIB | Library Sno-Isle GEN | 0.3153421757 | $678,292 | $678,292 | $213.89 | | |
| PORTWHID | Port of S Whidbey GEN | 0.1094540357 | $678,292 | $678,292 | $74.24 | | |
| SCH206BOND | School 206 BOND | 0.3161759235 | $678,292 | $678,292 | $214.46 | | |
| SCH206MO | School 206 Enrichment | 0.4547169547 | $678,292 | $678,292 | $308.43 | | |
| ST | State School | 1.3035497053 | $678,292 | $678,292 | $884.19 | | |
| ST2 | State School Part 2 | 0.8169543533 | $678,292 | $678,292 | $554.13 | | |
| SWHIDPRBD | P & R S Whidbey BOND | 0.0152817568 | $678,292 | $678,292 | $10.37 | | |
| SWHIDPRBD2 | P & R S Whidbey BOND2 | 0.0138911264 | $678,292 | $678,292 | $9.42 | | |
| SWHIDPRMT | P & R S Whidbey GEN | 0.2053334452 | $678,292 | $678,292 | $139.28 | | |
| | Total Tax Rate: | 6.6934522006 | | | | | |
| | | | | Taxes w/Current Exemptions: | $4,540.11 | | |
| | | | | Taxes w/o Exemptions: | $4,540.11 | | |
Improvement / Building
| Improvement #1: | RESIDENTIAL | State Code: | Y | 1408.0 sqft | Value: | $250,297 |
| Bathrooms: | 1 | Bedrooms: | 2 | | Ceiling: | DRYWALL PAINTED | Cooling: | HEAT PUMP/CONV/V | | Exterior Wall/Cover: | WOOD SIDING | Floor Covering: | HARDWOOD 100% | | Floor Structure: | WOOD W/SUBFLOOR | Foundation: | CONCRETE | | Interior Finish: | DRYWALL PAINT | Plumbing Fixture Cnt: | 6 | | Roof Slope: | 4" IN 12" | Roof Structure/Cover: | CJ ALUMINIUM HEAVY |
|
| | Type | Description | Class CD | Sub Class CD | Year Built | Area |
| | BAS | BASE/MAIN FLOOR | 3 | 0 | 1989 | 1408.0 |
| | UTY | STORAGE/UTILITY | 3 | 0 | 1989 | 60.0 |
| | OWP | OPEN WOOD PORCH W/STEPS | 3 | 0 | 1989 | 192.0 |
| | UTY | STORAGE/UTILITY | 3 | 0 | 1989 | 552.0 |
| Improvement #2: | RESIDENTIAL | State Code: | Y | 0.0 sqft | Value: | $57,995 |
| | Type | Description | Class CD | Sub Class CD | Year Built | Area |
| | DGR | DETACHED GARAGE | 3 | 0 | 2017 | 2587.0 |
| | OP3 | OPEN PORCH W/ROOF | 3 | 0 | 2017 | 347.0 |
| | OP3 | OPEN PORCH W/ROOF | 3 | 0 | 2017 | 70.0 |
Sketch
Property Image
Land
| 1 | 32 | AC (03.01-09.99) | 9.7000 | 422532.00 | 0.00 | 0.00 | 1.00 | $370,000 | $0 |
Roll Value History
| 2026 | N/A | N/A | N/A | N/A | N/A |
| 2025 | $308,292 | $370,000 | $0 | $678,292 | $678,292 |
| 2024 | $311,533 | $350,000 | $0 | $661,533 | $661,533 |
| 2023 | $314,772 | $330,000 | $0 | $644,772 | $644,772 |
| 2022 | $293,450 | $280,000 | $0 | $573,450 | $573,450 |
| 2021 | $265,294 | $230,000 | $0 | $495,294 | $495,294 |
| 2020 | $255,698 | $190,000 | $0 | $445,698 | $445,698 |
| 2019 | $202,599 | $250,000 | $0 | $452,599 | $452,599 |
| 2018 | $203,044 | $210,000 | $0 | $413,044 | $413,044 |
| 2017 | $161,842 | $190,000 | $0 | $351,842 | $351,842 |
| 2016 | $106,154 | $165,000 | $0 | $271,154 | $271,154 |
| 2015 | $107,569 | $165,000 | $0 | $272,569 | $272,569 |
| 2014 | $91,742 | $145,500 | $0 | $237,242 | $237,242 |
| 2013 | $92,842 | $145,500 | $0 | $238,342 | $238,342 |
| 2012 | $93,941 | $145,500 | $0 | $239,441 | $138,615 |
| 2011 | $95,041 | $75,000 | $0 | $170,041 | $57,757 |
| 2010 | $89,479 | $75,000 | $0 | $164,479 | $57,757 |
| 2009 | $213,336 | $232,800 | $120,000 | $213,336 | $57,756 |
| 2008 | $203,408 | $162,960 | $102,000 | $203,408 | $57,756 |
| 2007 | $204,617 | $162,960 | $102,000 | $204,617 | $57,756 |
Deed and Sales History
| 1 | 05/29/2014 | SPWARDEED | Special Warranty Deed | US BANK NATIONAL ASSOCIATION | LACHAUSSEE, JOSEPH | | | $230,000.00 | 15519 | 4360364 |
| 2 | 04/16/2014 | TRUSTEED | Trustee's Deed | TUCKER, LILLY W | US BANK NATIONAL ASSOCIATION | | | $250,000.00 | 14907 | 4357917 |
| 3 | 09/01/1992 | QCD | Quit Claim Deed | Unknown | TUCKER, LILLY W | | | $0.00 | 23690 | 92017778 |
Payout Agreement
| No payout information available.. |