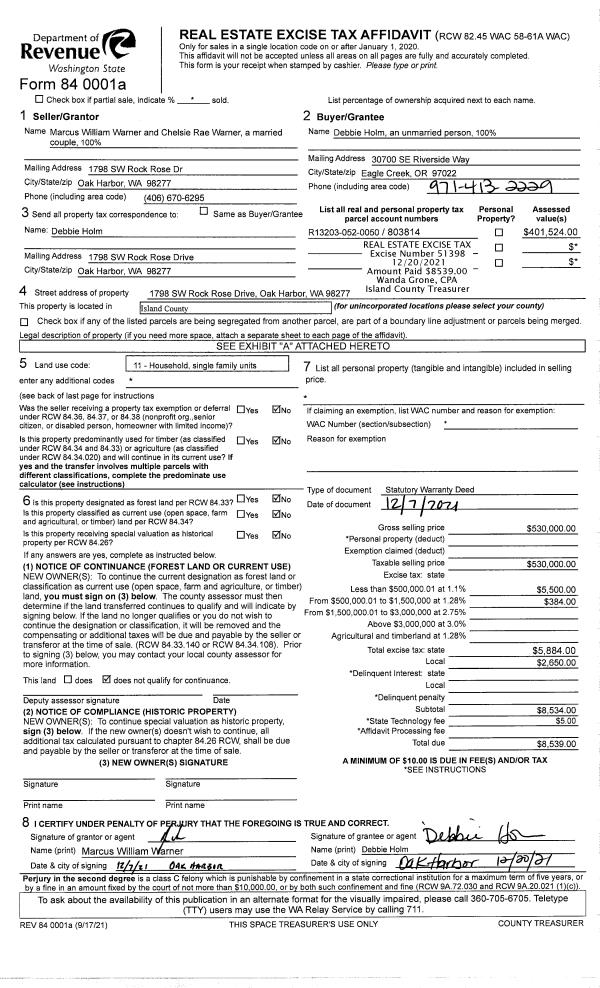
Property
Account |
| Property ID: | 715177 | Abbreviated Legal Description: | LOT 1 SP 87-18.32927.094-5000 V2 SP P145 AF#87016459 |
| Geographic ID: | R32927-117-4990 | Agent Code: | |
| Type: | Real | | |
| Tax Area: | 712 - APPRAISER-S Whid Schl Dist, outside Langley, improved, greater than 1 acre | Land Use Code | 11 |
| Open Space: | N | DFL | N |
| Historic Property: | N | Remodel Property: | N |
| Multi-Family Redevelopment: | N | | |
| Township: | 29 | Section: | 27 |
| Range: | R3 |
Location |
| Address: | | Mapsco: | |
| Neighborhood: | Cycle 4 | Map ID: | 821 |
| Neighborhood CD: | 4 |
Owner |
| Name: | BURTON, RYAN MICHAEL | Owner ID: | 301030 |
| Mailing Address: | MEAGAN K BURTON 6720 CULTUS BAY RD CLINTON, WA 98236 | % Ownership: | 100.0000000000% |
| | | Exemptions: | |
Taxes and Assessment Details
Values
| (+) Improvement Homesite Value: | + | $0 | |
| (+) Improvement Non-Homesite Value: | + | $338,408 | |
| (+) Land Homesite Value: | + | $0 | |
| (+) Land Non-Homesite Value: | + | $370,000 | |
| (+) Curr Use (HS): | + | $0 | $0 |
| (+) Curr Use (NHS): | + | $0 | $0 |
| | | -------------------------- | |
| (=) Market Value: | = | $708,408 | |
| (–) Productivity Loss: | – | $0 | |
| | | -------------------------- | |
| (=) Subtotal: | = | $708,408 | |
| (+) Senior Appraised Value: | + | $0 | |
| (+) Non-Senior Appraised Value: | + | $708,408 | |
| | | -------------------------- | |
| (=) Total Appraised Value: | = | $708,408 | |
| (–) Senior Exemption Loss: | – | $0 | |
| (–) Exemption Loss: | – | $0 | |
| | | -------------------------- | |
| (=) Taxable Value: | = | $708,408 | |
Taxing Jurisdiction
| Owner: | BURTON, RYAN MICHAEL | | |
| % Ownership: | 100.0000000000% | | |
| Total Value: | $708,408 | | |
| Tax Area: | 712 - APPRAISER-S Whid Schl Dist, outside Langley, improved, greater than 1 acre |
| CF | Conservation Futures | 0.0316035091 | $708,408 | $708,408 | $22.39 | | |
| FIRE3 | Fire & Rescue Dist #3 S Whidbey GEN | 1.2004855531 | $708,408 | $708,408 | $850.43 | | |
| HOBOND | Hospital BOND | 0.1910887512 | $708,408 | $708,408 | $135.37 | | |
| HOGEN | Hospital GEN | 0.3902502903 | $708,408 | $708,408 | $276.46 | | |
| CE | County Current Expense | 0.3708482477 | $708,408 | $708,408 | $262.71 | | |
| CR | County Roads | 0.4584763726 | $708,408 | $708,408 | $324.79 | | |
| ISLANDEMS | Hospital GEN (EMS) | 0.5000000000 | $708,408 | $708,408 | $354.20 | | |
| LIB | Library Sno-Isle GEN | 0.3153421757 | $708,408 | $708,408 | $223.39 | | |
| PORTWHID | Port of S Whidbey GEN | 0.1094540357 | $708,408 | $708,408 | $77.54 | | |
| SCH206BOND | School 206 BOND | 0.3161759235 | $708,408 | $708,408 | $223.98 | | |
| SCH206MO | School 206 Enrichment | 0.4547169547 | $708,408 | $708,408 | $322.13 | | |
| ST | State School | 1.3035497053 | $708,408 | $708,408 | $923.45 | | |
| ST2 | State School Part 2 | 0.8169543533 | $708,408 | $708,408 | $578.74 | | |
| SWHIDPRBD | P & R S Whidbey BOND | 0.0152817568 | $708,408 | $708,408 | $10.83 | | |
| SWHIDPRBD2 | P & R S Whidbey BOND2 | 0.0138911264 | $708,408 | $708,408 | $9.84 | | |
| SWHIDPRMT | P & R S Whidbey GEN | 0.2053334452 | $708,408 | $708,408 | $145.46 | | |
| | Total Tax Rate: | 6.6934522006 | | | | | |
| | | | | Taxes w/Current Exemptions: | $4,741.71 | | |
| | | | | Taxes w/o Exemptions: | $4,741.71 | | |
Improvement / Building
| Improvement #1: | RESIDENTIAL | State Code: | Y | 1904.0 sqft | Value: | $338,408 |
| Bathrooms: | 2 | Bedrooms: | 3 | | Ceiling: | DRYWALL PAINTED | Cooling: | HEAT PUMP/CONV/V | | Exterior Wall/Cover: | PLY/HARDBOARD T-111 | Floor Covering: | CARPET/VINYL 60-40 | | Floor Structure: | WOOD W/SUBFLOOR | Foundation: | CONCRETE | | Interior Finish: | DRYWALL PAINT | Plumbing Fixture Cnt: | 11 | | Roof Slope: | 4" IN 12" | Roof Structure/Cover: | CJ ASPHALT |
|
| | Type | Description | Class CD | Sub Class CD | Year Built | Area |
| | BAS | BASE/MAIN FLOOR | 3 | 0 | 2022 | 1904.0 |
| | AGR | ATTACHED GARAGE | 3 | 0 | 2022 | 484.0 |
| | OWR | OPEN WOOD PORCH W/STEPS/ROOF | 3 | 0 | 2022 | 48.0 |
| | OWR | OPEN WOOD PORCH W/STEPS/ROOF | 3 | 0 | 2022 | 64.0 |
Sketch
Property Image
Land
| 1 | 32 | AC (03.01-09.99) | 4.8300 | 0.00 | 0.00 | 0.00 | 1.00 | $370,000 | $0 |
Roll Value History
| 2026 | N/A | N/A | N/A | N/A | N/A |
| 2025 | $338,408 | $370,000 | $0 | $708,408 | $708,408 |
| 2024 | $341,961 | $350,000 | $0 | $691,961 | $691,961 |
| 2023 | $348,178 | $330,000 | $0 | $678,178 | $678,178 |
| 2022 | $314,547 | $280,000 | $0 | $594,547 | $594,547 |
| 2021 | $60,791 | $230,000 | $0 | $290,791 | $290,791 |
| 2020 | $60,712 | $190,000 | $0 | $250,712 | $250,712 |
| 2019 | $45,249 | $250,000 | $0 | $295,249 | $295,249 |
| 2018 | $45,466 | $210,000 | $0 | $255,466 | $255,466 |
| 2017 | $45,900 | $190,000 | $0 | $235,900 | $235,900 |
| 2016 | $43,978 | $165,000 | $0 | $208,978 | $208,978 |
| 2015 | $44,793 | $135,000 | $0 | $179,793 | $179,793 |
| 2014 | $30,039 | $154,560 | $0 | $184,599 | $184,599 |
| 2013 | $30,039 | $154,560 | $0 | $184,599 | $184,599 |
| 2012 | $30,039 | $154,560 | $0 | $184,599 | $184,599 |
| 2011 | $30,039 | $154,560 | $0 | $184,599 | $184,599 |
| 2010 | $32,081 | $154,560 | $0 | $186,641 | $74,656 |
| 2009 | $33,021 | $212,520 | $0 | $245,541 | $77,300 |
| 2008 | $32,714 | $207,690 | $0 | $240,404 | $77,300 |
| 2007 | $32,843 | $207,690 | $0 | $240,533 | $77,300 |
Deed and Sales History
| 1 | 08/24/2021 | QCD | Quit Claim Deed | BURTON, RYAN MICHAEL | BURTON, RYAN MICHAEL | | | $0.00 | 49924 | 4528489 |
| 2 | 12/19/2011 | QCD | Quit Claim Deed | BURTON, RYAN MICHAEL | BURTON, RYAN MICHAEL | | | $0.00 | 6438 | 4306651 |
| 3 | 02/01/2012 | QCD | Quit Claim Deed | BATY, JEAN E | BURTON, RYAN MICHAEL | | | | 6192 | 4305135 |
| 4 | 01/01/1900 | OTHER | Other - Misc. Documents | Unknown | BATY, JOHN J | | | $0.00 | 0 | 0 |
Payout Agreement
| No payout information available.. |