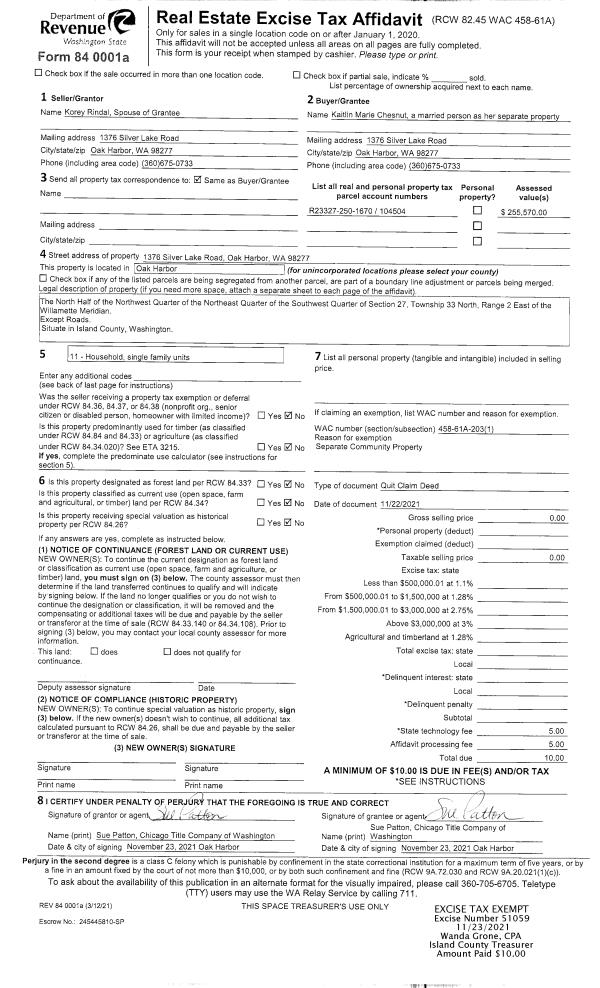
Property
Account |
| Property ID: | 715300 | Abbreviated Legal Description: | 43 - S/2 N/2 SE NE |
| Geographic ID: | R32936-345-4610 | Agent Code: | |
| Type: | Real | | |
| Tax Area: | 722 - APPRAISER-S Whid Schl Dist, Special District, improved, greater than 1 acre | Land Use Code | 11 |
| Open Space: | N | DFL | N |
| Historic Property: | N | Remodel Property: | N |
| Multi-Family Redevelopment: | N | | |
| Township: | 29 | Section: | 36 |
| Range: | R3 |
Location |
| Address: | 6944 HUMPHREY RD CLINTON, WA 98236 | Mapsco: | |
| Neighborhood: | Cycle 4 | Map ID: | 849 |
| Neighborhood CD: | 4 |
Owner |
| Name: | KILUNG FOUNDATION | Owner ID: | 274779 |
| Mailing Address: | PO BOX 622 LANGLEY, WA 98260 | % Ownership: | 100.0000000000% |
| | | Exemptions: | |
Taxes and Assessment Details
Values
| (+) Improvement Homesite Value: | + | $0 | |
| (+) Improvement Non-Homesite Value: | + | $233,804 | |
| (+) Land Homesite Value: | + | $0 | |
| (+) Land Non-Homesite Value: | + | $400,000 | |
| (+) Curr Use (HS): | + | $0 | $0 |
| (+) Curr Use (NHS): | + | $0 | $0 |
| | | -------------------------- | |
| (=) Market Value: | = | $633,804 | |
| (–) Productivity Loss: | – | $0 | |
| | | -------------------------- | |
| (=) Subtotal: | = | $633,804 | |
| (+) Senior Appraised Value: | + | $0 | |
| (+) Non-Senior Appraised Value: | + | $633,804 | |
| | | -------------------------- | |
| (=) Total Appraised Value: | = | $633,804 | |
| (–) Senior Exemption Loss: | – | $0 | |
| (–) Exemption Loss: | – | $0 | |
| | | -------------------------- | |
| (=) Taxable Value: | = | $633,804 | |
Taxing Jurisdiction
| Owner: | KILUNG FOUNDATION | | |
| % Ownership: | 100.0000000000% | | |
| Total Value: | $633,804 | | |
| Tax Area: | 722 - APPRAISER-S Whid Schl Dist, Special District, improved, greater than 1 acre |
| CF | Conservation Futures | 0.0316035091 | $633,804 | $633,804 | $20.03 | | |
| FIRE3 | Fire & Rescue Dist #3 S Whidbey GEN | 1.2004855531 | $633,804 | $633,804 | $760.87 | | |
| HOBOND | Hospital BOND | 0.1910887512 | $633,804 | $633,804 | $121.11 | | |
| HOGEN | Hospital GEN | 0.3902502903 | $633,804 | $633,804 | $247.34 | | |
| CE | County Current Expense | 0.3708482477 | $633,804 | $633,804 | $235.05 | | |
| CR | County Roads | 0.4584763726 | $633,804 | $633,804 | $290.58 | | |
| ISLANDEMS | Hospital GEN (EMS) | 0.5000000000 | $633,804 | $633,804 | $316.90 | | |
| LIB | Library Sno-Isle GEN | 0.3153421757 | $633,804 | $633,804 | $199.87 | | |
| PORTWHID | Port of S Whidbey GEN | 0.1094540357 | $633,804 | $633,804 | $69.37 | | |
| SCH206BOND | School 206 BOND | 0.3161759235 | $633,804 | $633,804 | $200.39 | | |
| SCH206MO | School 206 Enrichment | 0.4547169547 | $633,804 | $633,804 | $288.20 | | |
| ST | State School | 1.3035497053 | $633,804 | $633,804 | $826.20 | | |
| ST2 | State School Part 2 | 0.8169543533 | $633,804 | $633,804 | $517.79 | | |
| SWHIDPRBD | P & R S Whidbey BOND | 0.0152817568 | $633,804 | $633,804 | $9.69 | | |
| SWHIDPRBD2 | P & R S Whidbey BOND2 | 0.0138911264 | $633,804 | $633,804 | $8.80 | | |
| SWHIDPRMT | P & R S Whidbey GEN | 0.2053334452 | $633,804 | $633,804 | $130.14 | | |
| | Total Tax Rate: | 6.6934522006 | | | | | |
| | | | | Taxes w/Current Exemptions: | $4,242.33 | | |
| | | | | Taxes w/o Exemptions: | $4,242.33 | | |
Improvement / Building
| Improvement #1: | RESIDENTIAL | State Code: | Y | 860.0 sqft | Value: | $233,804 |
| Bathrooms: | 1.5 | Bedrooms: | 1 | | Ceiling: | DRYWALL PAINTED | Exterior Wall/Cover: | CEMENT FIBER | | Floor Covering: | SOFTWOOD 100% | Floor Structure: | SLAB ON GRADE | | Foundation: | CONCRETE | Heating: | RADIANT FLOOR | | Interior Finish: | DRYWALL PAINT | Plumbing Fixture Cnt: | 3 | | Roof Slope: | 4" IN 12" | Roof Structure/Cover: | CJ ALUMINIUM HEAVY |
|
| | Type | Description | Class CD | Sub Class CD | Year Built | Area |
| | BAS | BASE/MAIN FLOOR | 3 | 0 | 1972 | 608.0 |
| | UPS | UPPER STORY | 3 | 0 | 1972 | 252.0 |
| | OP4 | OPEN PORCH W/CEILING-ROOF | 3 | 0 | 1972 | 228.0 |
| | OWC | OPEN WOOD PORCH W/STEPS/ROOF/C | 3 | 0 | 1972 | 36.0 |
| | UTY | STORAGE/UTILITY | 3 | 0 | 1972 | 1152.0 |
| | OCP | OPEN CARPORT | 3 | 0 | 1972 | 480.0 |
Sketch
Property Image
Land
| 1 | 35 | AC (10.00-30.99) | 10.0000 | 435600.00 | 1.00 | 0.00 | 1.00 | $400,000 | $0 |
Roll Value History
| 2026 | N/A | N/A | N/A | N/A | N/A |
| 2025 | $233,804 | $400,000 | $0 | $633,804 | $633,804 |
| 2024 | $235,880 | $360,000 | $0 | $595,880 | $595,880 |
| 2023 | $237,700 | $360,000 | $0 | $597,700 | $597,700 |
| 2022 | $217,004 | $350,000 | $0 | $567,004 | $567,004 |
| 2021 | $190,231 | $250,000 | $0 | $440,231 | $440,231 |
| 2020 | $119,992 | $250,000 | $1,432 | $171,424 | $171,424 |
| 2019 | $89,856 | $300,000 | $1,384 | $151,240 | $151,240 |
| 2018 | $90,080 | $245,000 | $1,368 | $140,448 | $140,448 |
| 2017 | $90,530 | $200,000 | $1,368 | $131,898 | $131,898 |
| 2016 | $91,431 | $200,000 | $1,272 | $132,703 | $132,703 |
| 2015 | $92,332 | $200,000 | $1,272 | $133,604 | $133,604 |
| 2014 | $52,354 | $150,000 | $1,272 | $83,626 | $83,626 |
| 2013 | $53,833 | $150,000 | $1,272 | $85,105 | $85,105 |
| 2012 | $67,258 | $150,000 | $1,272 | $98,530 | $98,530 |
| 2011 | $47,374 | $150,000 | $1,328 | $130,702 | $130,702 |
| 2010 | $48,085 | $150,000 | $0 | $198,085 | $198,085 |
| 2009 | $50,235 | $220,000 | $0 | $270,235 | $270,235 |
| 2008 | $63,835 | $200,000 | $0 | $263,835 | $263,835 |
| 2007 | $64,685 | $200,000 | $0 | $264,685 | $264,685 |
Deed and Sales History
| 1 | 03/30/2021 | WD | Warranty Deed | DELL'ARIO, PAULETTE P | KILUNG FOUNDATION | | | $597,227.00 | 47627 | 4515452 |
| 2 | 12/21/2009 | WD | Warranty Deed | BORK, DAMON | DELL'ARIO, PAULETTE P | | | $210,000.00 | 93162 | 4265915 |
| 3 | 06/27/2008 | PRD | Personal Representatives Deed | PALMER, MADELIA D | PALMER, MONTE DEAN | | | $0.00 | 53787 | 4142985 |
| 4 | 08/24/2007 | WD | Warranty Deed | PALMER, MONTE DEAN | BORK, DAMON | | | $135,000.00 | 73101 | 4211785 |
| 5 | 10/01/1994 | OTHER | Other - Misc. Documents | PALMER, RICHARD R | PALMER, MADELIA D | | | $0.00 | 66075 | 93007031 |
| 6 | 05/01/1963 | EXECUTORD | Executor Deed | PETERSON, WILLIAM E | PALMER, RICHARD R | | | $3,995.00 | 14082 | 247788 |
| 7 | 01/01/1900 | OTHER | Other - Misc. Documents | Unknown | PETERSON, WILLIAM E | | | $0.00 | 0 | 0 |
Payout Agreement
| No payout information available.. |