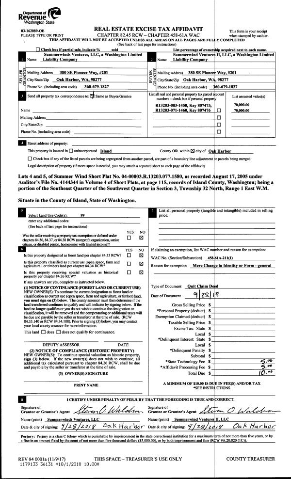
Property
Account |
| Property ID: | 715337 | Abbreviated Legal Description: | 10 - S/2 OF: E330' OF W990' S/2 S/2 NW INCL EZ |
| Geographic ID: | R33004-279-0830 | Agent Code: | |
| Type: | Real | | |
| Tax Area: | 540 - APPRAISER-Stan/Cam Schl Dist, Special Dist, improved & less than 1 acre | Land Use Code | 11 |
| Open Space: | N | DFL | N |
| Historic Property: | N | Remodel Property: | N |
| Multi-Family Redevelopment: | N | | |
| Township: | 30 | Section: | 04 |
| Range: | R3 |
Location |
| Address: | 860 HAVEN PLACE CAMANO ISLAND, WA 98282 | Mapsco: | |
| Neighborhood: | Cycle 5 | Map ID: | 853 |
| Neighborhood CD: | 5 |
Owner |
| Name: | RIDGE, DAVID P | Owner ID: | 291944 |
| Mailing Address: | JASMINE D RIDGE 860 HAVEN PL CAMANO ISLAND, WA 98282 | % Ownership: | 100.0000000000% |
| | | Exemptions: | |
Taxes and Assessment Details
Values
| (+) Improvement Homesite Value: | + | $0 | |
| (+) Improvement Non-Homesite Value: | + | $93,001 | |
| (+) Land Homesite Value: | + | $0 | |
| (+) Land Non-Homesite Value: | + | $290,000 | |
| (+) Curr Use (HS): | + | $0 | $0 |
| (+) Curr Use (NHS): | + | $0 | $0 |
| | | -------------------------- | |
| (=) Market Value: | = | $383,001 | |
| (–) Productivity Loss: | – | $0 | |
| | | -------------------------- | |
| (=) Subtotal: | = | $383,001 | |
| (+) Senior Appraised Value: | + | $0 | |
| (+) Non-Senior Appraised Value: | + | $383,001 | |
| | | -------------------------- | |
| (=) Total Appraised Value: | = | $383,001 | |
| (–) Senior Exemption Loss: | – | $0 | |
| (–) Exemption Loss: | – | $0 | |
| | | -------------------------- | |
| (=) Taxable Value: | = | $383,001 | |
Taxing Jurisdiction
| Owner: | RIDGE, DAVID P | | |
| % Ownership: | 100.0000000000% | | |
| Total Value: | $383,001 | | |
| Tax Area: | 540 - APPRAISER-Stan/Cam Schl Dist, Special Dist, improved & less than 1 acre |
| CF | Conservation Futures | 0.0316035091 | $383,001 | $383,001 | $12.10 | | |
| EMS1 | Fire & Rescue Dist #1 Camano GEN (EMS) | 0.3677864386 | $383,001 | $383,001 | $140.86 | | |
| FIRE1 | Fire & Rescue Dist #1 Camano GEN | 1.2502910536 | $383,001 | $383,001 | $478.86 | | |
| FIRE1BOND | Fire & Rescue Dist #1 Camano BOND | 0.1570001679 | $383,001 | $383,001 | $60.13 | | |
| CE | County Current Expense | 0.3708482477 | $383,001 | $383,001 | $142.04 | | |
| CR | County Roads | 0.4584763726 | $383,001 | $383,001 | $175.60 | | |
| LCIB | Library Sno-Isle BOND (Camano Island) | 0.0396325772 | $383,001 | $383,001 | $15.18 | | |
| LIB | Library Sno-Isle GEN | 0.3153421757 | $383,001 | $383,001 | $120.78 | | |
| SCH205_401 | School 205-401 Enrichment | 1.2698420524 | $383,001 | $383,001 | $486.35 | | |
| SCH205BOND | School 205-401 BOND | 0.9396497583 | $383,001 | $383,001 | $359.89 | | |
| ST | State School | 1.3035497053 | $383,001 | $383,001 | $499.26 | | |
| ST2 | State School Part 2 | 0.8169543533 | $383,001 | $383,001 | $312.89 | | |
| | Total Tax Rate: | 7.3209764117 | | | | | |
| | | | | Taxes w/Current Exemptions: | $2,803.94 | | |
| | | | | Taxes w/o Exemptions: | $2,803.94 | | |
Improvement / Building
| Improvement #1: | MANUFACTURED HOME | State Code: | Y | 1512.0 sqft | Value: | $93,001 |
| Bathrooms: | 0 | Bedrooms: | 0 | | Ceiling: | PLASTER PAINTED | Cooling: | EVAP NO DUCT | | Exterior Wall/Cover: | VINYL | Floor Covering: | CARPET 100% | | Floor Structure: | SLAB ON GRADE | Foundation: | SLAB | | Heating: | FHA ELECTRIC | Interior Finish: | PLASTER | | Plumbing Fixture Cnt: | 1 | Roof Slope: | FLAT | | Roof Structure/Cover: | CJ ALUMINIUM HEAVY |   |   |
|
| | Type | Description | Class CD | Sub Class CD | Year Built | Area |
| | BAS | BASE/MAIN FLOOR | 4 | 0 | 1992 | 1512.0 |
| | OWP | OPEN WOOD PORCH W/STEPS | 4 | 0 | 1992 | 40.0 |
Sketch
Property Image
Land
| 1 | 18 | AC (02.01-03.00) | 2.5000 | 108900.00 | 0.00 | 0.00 | 1.00 | $290,000 | $0 |
Roll Value History
| 2026 | N/A | N/A | N/A | N/A | N/A |
| 2025 | $93,001 | $290,000 | $0 | $383,001 | $383,001 |
| 2024 | $96,383 | $280,000 | $0 | $376,383 | $376,383 |
| 2023 | $88,223 | $220,000 | $0 | $308,223 | $308,223 |
| 2022 | $82,549 | $210,000 | $0 | $292,549 | $292,549 |
| 2021 | $61,013 | $180,000 | $0 | $241,013 | $241,013 |
| 2020 | $62,349 | $150,000 | $0 | $212,349 | $212,349 |
| 2019 | $50,755 | $200,000 | $0 | $250,755 | $250,755 |
| 2018 | $52,392 | $150,000 | $0 | $202,392 | $43,259 |
| 2017 | $54,029 | $135,000 | $0 | $189,029 | $43,259 |
| 2016 | $55,666 | $105,000 | $0 | $160,666 | $43,259 |
| 2015 | $56,710 | $50,000 | $0 | $106,710 | $42,684 |
| 2014 | $58,148 | $50,000 | $0 | $108,148 | $43,259 |
| 2013 | $63,816 | $50,000 | $0 | $113,816 | $113,816 |
| 2012 | $65,254 | $74,400 | $0 | $139,654 | $139,654 |
| 2011 | $66,692 | $93,000 | $0 | $159,692 | $159,692 |
| 2010 | $62,788 | $93,000 | $0 | $155,788 | $60,171 |
| 2009 | $65,114 | $120,000 | $0 | $185,114 | $60,171 |
| 2008 | $81,095 | $99,116 | $0 | $180,210 | $60,171 |
| 2007 | $68,167 | $116,068 | $0 | $184,235 | $97,778 |
Deed and Sales History
| 1 | 08/27/2019 | WD | Warranty Deed | BAKER, DONALD D | RIDGE, DAVID P | | | $310,000.00 | 40039 | 4470389 |
|   | |
| 2 | 03/01/1992 | OTHER | Other - Misc. Documents | Unknown | BAKER, DON / | | | $43,000.00 | 11111111 | 0 |
| 3 | 07/01/1986 | WD | Warranty Deed | PARSONS, WILLIS A | BAKER, DONALD D | | | $4,000.00 | 62037 | 86009539 |
| 4 | 01/01/1900 | OTHER | Other - Misc. Documents | BAKER, DON / | PARSONS, WILLIS A | | | $0.00 | 0 | 0 |
Payout Agreement
| No payout information available.. |