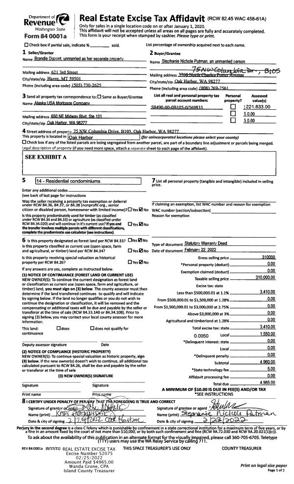
Property
Account |
| Property ID: | 715578 | Abbreviated Legal Description: | LOT A SP 83-58.33106.461-4800 V1 SP P267 AF#425753 |
| Geographic ID: | R33106-435-4730 | Agent Code: | |
| Type: | Real | | |
| Tax Area: | 592 - APPRAISER-Stan/Cam Schl Dist, Special Dist, improved, greater than 1 acre | Land Use Code | 11 |
| Open Space: | N | DFL | N |
| Historic Property: | N | Remodel Property: | N |
| Multi-Family Redevelopment: | N | | |
| Township: | 31 | Section: | 06 |
| Range: | R3 |
Location |
| Address: | 355 RUSSELL RD CAMANO ISLAND, WA 98282 | Mapsco: | |
| Neighborhood: | Cycle 5 | Map ID: | 921 |
| Neighborhood CD: | 5 |
Owner |
| Name: | GILBERT, DAWN MARIE | Owner ID: | 286311 |
| Mailing Address: | KEVIN B GILBERT 355 RUSSELL RD CAMANO ISLAND, WA 98282 | % Ownership: | 100.0000000000% |
| | | Exemptions: | |
Taxes and Assessment Details
Values
| (+) Improvement Homesite Value: | + | $0 | |
| (+) Improvement Non-Homesite Value: | + | $272,490 | |
| (+) Land Homesite Value: | + | $0 | |
| (+) Land Non-Homesite Value: | + | $310,000 | |
| (+) Curr Use (HS): | + | $0 | $0 |
| (+) Curr Use (NHS): | + | $0 | $0 |
| | | -------------------------- | |
| (=) Market Value: | = | $582,490 | |
| (–) Productivity Loss: | – | $0 | |
| | | -------------------------- | |
| (=) Subtotal: | = | $582,490 | |
| (+) Senior Appraised Value: | + | $0 | |
| (+) Non-Senior Appraised Value: | + | $582,490 | |
| | | -------------------------- | |
| (=) Total Appraised Value: | = | $582,490 | |
| (–) Senior Exemption Loss: | – | $0 | |
| (–) Exemption Loss: | – | $0 | |
| | | -------------------------- | |
| (=) Taxable Value: | = | $582,490 | |
Taxing Jurisdiction
| Owner: | GILBERT, DAWN MARIE | | |
| % Ownership: | 100.0000000000% | | |
| Total Value: | $582,490 | | |
| Tax Area: | 592 - APPRAISER-Stan/Cam Schl Dist, Special Dist, improved, greater than 1 acre |
| CF | Conservation Futures | 0.0316035091 | $582,490 | $582,490 | $18.41 | | |
| EMS1 | Fire & Rescue Dist #1 Camano GEN (EMS) | 0.3677864386 | $582,490 | $582,490 | $214.23 | | |
| FIRE1 | Fire & Rescue Dist #1 Camano GEN | 1.2502910536 | $582,490 | $582,490 | $728.28 | | |
| FIRE1BOND | Fire & Rescue Dist #1 Camano BOND | 0.1570001679 | $582,490 | $582,490 | $91.45 | | |
| CE | County Current Expense | 0.3708482477 | $582,490 | $582,490 | $216.02 | | |
| CR | County Roads | 0.4584763726 | $582,490 | $582,490 | $267.06 | | |
| LCIB | Library Sno-Isle BOND (Camano Island) | 0.0396325772 | $582,490 | $582,490 | $23.09 | | |
| LIB | Library Sno-Isle GEN | 0.3153421757 | $582,490 | $582,490 | $183.68 | | |
| SCH205_401 | School 205-401 Enrichment | 1.2698420524 | $582,490 | $582,490 | $739.67 | | |
| SCH205BOND | School 205-401 BOND | 0.9396497583 | $582,490 | $582,490 | $547.34 | | |
| ST | State School | 1.3035497053 | $582,490 | $582,490 | $759.30 | | |
| ST2 | State School Part 2 | 0.8169543533 | $582,490 | $582,490 | $475.87 | | |
| | Total Tax Rate: | 7.3209764117 | | | | | |
| | | | | Taxes w/Current Exemptions: | $4,264.40 | | |
| | | | | Taxes w/o Exemptions: | $4,264.40 | | |
Improvement / Building
| Improvement #1: | RESIDENTIAL | State Code: | Y | 1332.0 sqft | Value: | $272,490 |
| Bathrooms: | 2 | Bedrooms: | 0 | | Ceiling: | DRY WALL SPRAYED | Cooling: | HEAT PUMP/CONV/V | | Exterior Wall/Cover: | WOOD SIDING | Floor Covering: | CARPET/VINYL 80-20 | | Floor Structure: | WOOD W/SUBFLOOR | Foundation: | CONCRETE | | Interior Finish: | DRYWALL PAINT | Plumbing Fixture Cnt: | 8 | | Roof Slope: | 4" IN 12" | Roof Structure/Cover: | CJ ASPHALT |
|
| | Type | Description | Class CD | Sub Class CD | Year Built | Area |
| | BAS | BASE/MAIN FLOOR | 3 | 0 | 1978 | 1332.0 |
| | CPD | OPEN CARPORT DIRT FLOOR | 3 | 0 | 1978 | 319.0 |
| | AGR | ATTACHED GARAGE | 3 | 0 | 1978 | 286.0 |
| | OWP | OPEN WOOD PORCH W/STEPS | 3 | 0 | 1978 | 96.0 |
| | OWP | OPEN WOOD PORCH W/STEPS | 3 | 0 | 1978 | 704.0 |
| | UTY | STORAGE/UTILITY | 3 | 0 | 1978 | 144.0 |
Sketch
Property Image
Land
| 1 | 18 | AC (02.01-03.00) | 0.0000 | 0.00 | 0.00 | 0.00 | 1.00 | $310,000 | $0 |
Roll Value History
| 2026 | N/A | N/A | N/A | N/A | N/A |
| 2025 | $272,490 | $310,000 | $0 | $582,490 | $582,490 |
| 2024 | $275,687 | $300,000 | $0 | $575,687 | $575,687 |
| 2023 | $278,883 | $300,000 | $0 | $578,883 | $578,883 |
| 2022 | $255,424 | $260,000 | $0 | $515,424 | $515,424 |
| 2021 | $193,277 | $190,000 | $0 | $383,277 | $383,277 |
| 2020 | $188,240 | $150,000 | $0 | $338,240 | $338,240 |
| 2019 | $135,861 | $190,000 | $0 | $325,861 | $325,861 |
| 2018 | $92,439 | $180,000 | $0 | $272,439 | $272,439 |
| 2017 | $93,052 | $135,000 | $0 | $228,052 | $228,052 |
| 2016 | $94,281 | $135,000 | $0 | $229,281 | $229,281 |
| 2015 | $78,917 | $100,000 | $0 | $178,917 | $48,112 |
| 2014 | $80,017 | $100,000 | $0 | $180,017 | $48,112 |
| 2013 | $81,117 | $100,000 | $0 | $181,117 | $48,112 |
| 2012 | $82,217 | $89,600 | $0 | $171,817 | $52,737 |
| 2011 | $83,317 | $112,000 | $0 | $195,317 | $48,112 |
| 2010 | $73,267 | $112,000 | $0 | $185,267 | $48,112 |
| 2009 | $76,699 | $135,000 | $0 | $211,699 | $48,112 |
| 2008 | $78,000 | $134,000 | $0 | $212,000 | $48,112 |
| 2007 | $79,303 | $130,000 | $0 | $209,303 | $48,112 |
Deed and Sales History
| 1 | 07/24/2018 | WD | Warranty Deed | KINSMAN, NICKOLAS | GILBERT, DAWN MARIE | | | $389,950.00 | 35331 | 4449358 |
| 2 | 12/21/2016 | WD | Warranty Deed | DURAND, JUDY A | KINSMAN, NICKOLAS | | | $220,000.00 | 27509 | 4414120 |
| 3 | 08/28/2003 | OTHER | Other - Misc. Documents | DURAND, MAURICE A | DURAND, JUDY A | | | $0.00 | 70639 | 0 |
| 4 | 01/01/1993 | QCD | Quit Claim Deed | Unknown | DURAND, MAURICE A | | | $0.00 | 30116 | 93000523 |
Payout Agreement
| No payout information available.. |