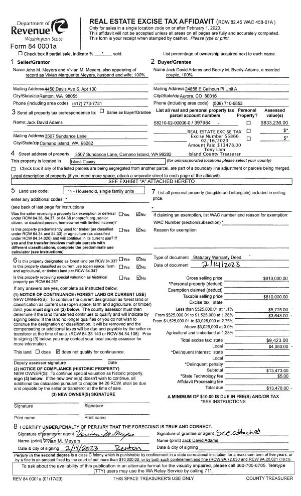
Property
Account |
| Property ID: | 715961 | Abbreviated Legal Description: | 62 - W150' OF NE NW EX N1093.94' EX S50' TGW E290' NW NW EX N1093.94'& EX S50' FR 355-1420 & 354-1200 COMBD 2/25/83 |
| Geographic ID: | R33227-353-1300 | Agent Code: | |
| Type: | Real | | |
| Tax Area: | 512 - APPRAISER-Stan/Cam Schl Dist, improved, greater than 1 acre | Land Use Code | 11 |
| Open Space: | N | DFL | N |
| Historic Property: | N | Remodel Property: | N |
| Multi-Family Redevelopment: | N | | |
| Township: | 32 | Section: | 27 |
| Range: | R3 |
Location |
| Address: | 715 ELL RD CAMANO ISLAND, WA 98282 | Mapsco: | |
| Neighborhood: | Cycle 5 | Map ID: | 978 |
| Neighborhood CD: | 5 |
Owner |
| Name: | DEBOER, JOHN P | Owner ID: | 303923 |
| Mailing Address: | KAIA ANNE DEBOER 1051 JUNIPER BEACH ROAD CAMANO ISLAND, WA 98282 | % Ownership: | 100.0000000000% |
| | | Exemptions: | |
Taxes and Assessment Details
Values
| (+) Improvement Homesite Value: | + | $0 | |
| (+) Improvement Non-Homesite Value: | + | $232,439 | |
| (+) Land Homesite Value: | + | $0 | |
| (+) Land Non-Homesite Value: | + | $360,000 | |
| (+) Curr Use (HS): | + | $0 | $0 |
| (+) Curr Use (NHS): | + | $0 | $0 |
| | | -------------------------- | |
| (=) Market Value: | = | $592,439 | |
| (–) Productivity Loss: | – | $0 | |
| | | -------------------------- | |
| (=) Subtotal: | = | $592,439 | |
| (+) Senior Appraised Value: | + | $0 | |
| (+) Non-Senior Appraised Value: | + | $592,439 | |
| | | -------------------------- | |
| (=) Total Appraised Value: | = | $592,439 | |
| (–) Senior Exemption Loss: | – | $0 | |
| (–) Exemption Loss: | – | $0 | |
| | | -------------------------- | |
| (=) Taxable Value: | = | $592,439 | |
Taxing Jurisdiction
| Owner: | DEBOER, JOHN P | | |
| % Ownership: | 100.0000000000% | | |
| Total Value: | $592,439 | | |
| Tax Area: | 512 - APPRAISER-Stan/Cam Schl Dist, improved, greater than 1 acre |
| CF | Conservation Futures | 0.0316035091 | $592,439 | $592,439 | $18.72 | | |
| EMS1 | Fire & Rescue Dist #1 Camano GEN (EMS) | 0.3677864386 | $592,439 | $592,439 | $217.89 | | |
| FIRE1 | Fire & Rescue Dist #1 Camano GEN | 1.2502910536 | $592,439 | $592,439 | $740.72 | | |
| FIRE1BOND | Fire & Rescue Dist #1 Camano BOND | 0.1570001679 | $592,439 | $592,439 | $93.01 | | |
| CE | County Current Expense | 0.3708482477 | $592,439 | $592,439 | $219.70 | | |
| CR | County Roads | 0.4584763726 | $592,439 | $592,439 | $271.62 | | |
| LCIB | Library Sno-Isle BOND (Camano Island) | 0.0396325772 | $592,439 | $592,439 | $23.48 | | |
| LIB | Library Sno-Isle GEN | 0.3153421757 | $592,439 | $592,439 | $186.82 | | |
| SCH205_401 | School 205-401 Enrichment | 1.2698420524 | $592,439 | $592,439 | $752.30 | | |
| SCH205BOND | School 205-401 BOND | 0.9396497583 | $592,439 | $592,439 | $556.69 | | |
| ST | State School | 1.3035497053 | $592,439 | $592,439 | $772.27 | | |
| ST2 | State School Part 2 | 0.8169543533 | $592,439 | $592,439 | $484.00 | | |
| | Total Tax Rate: | 7.3209764117 | | | | | |
| | | | | Taxes w/Current Exemptions: | $4,337.22 | | |
| | | | | Taxes w/o Exemptions: | $4,337.22 | | |
Improvement / Building
| Improvement #1: | RESIDENTIAL | State Code: | Y | 1612.0 sqft | Value: | $232,439 |
| Bathrooms: | 2 | Bedrooms: | 2 | | Ceiling: | DRY WALL SPRAYED | Exterior Wall/Cover: | WOOD SIDING | | Floor Covering: | CARPET/VINYL 80-20 | Floor Structure: | WOOD W/SUBFLOOR | | Foundation: | CONCRETE | Heating: | BASEBOARD ELECTRIC | | Interior Finish: | DRYWALL PAINT | Plumbing Fixture Cnt: | 9 | | Roof Slope: | 4" IN 12" | Roof Structure/Cover: | CJ WOOD SHAKES |
|
| | Type | Description | Class CD | Sub Class CD | Year Built | Area |
| | BAS | BASE/MAIN FLOOR | 3 | 0 | 1979 | 1612.0 |
| | AGR | ATTACHED GARAGE | 3 | 0 | 1979 | 616.0 |
| | UB8 | BASEMENT UNFINISHED 8" | 3 | 0 | 1979 | 1512.0 |
Sketch
Property Image
Land
| 1 | 17 | AC (01.01-02.00) | 1.8200 | 79279.20 | 0.00 | 0.00 | 1.00 | $360,000 | $0 |
Roll Value History
| 2026 | N/A | N/A | N/A | N/A | N/A |
| 2025 | $232,439 | $360,000 | $0 | $592,439 | $592,439 |
| 2024 | $241,020 | $360,000 | $0 | $601,020 | $601,020 |
| 2023 | $244,658 | $360,000 | $0 | $604,658 | $604,658 |
| 2022 | $224,830 | $270,000 | $0 | $494,830 | $494,830 |
| 2021 | $214,164 | $230,000 | $0 | $444,164 | $444,164 |
| 2020 | $209,270 | $200,000 | $0 | $409,270 | $409,270 |
| 2019 | $153,593 | $220,000 | $0 | $373,593 | $373,593 |
| 2018 | $154,134 | $210,000 | $0 | $364,134 | $364,134 |
| 2017 | $155,211 | $150,000 | $0 | $305,211 | $305,211 |
| 2016 | $157,367 | $135,000 | $0 | $292,367 | $292,367 |
| 2015 | $172,318 | $125,000 | $0 | $297,318 | $297,318 |
| 2014 | $174,814 | $125,000 | $0 | $299,814 | $299,814 |
| 2013 | $177,312 | $120,000 | $0 | $297,312 | $76,358 |
| 2012 | $179,810 | $120,000 | $0 | $299,810 | $76,358 |
| 2011 | $182,307 | $150,000 | $0 | $332,307 | $76,358 |
| 2010 | $195,956 | $150,000 | $0 | $345,956 | $76,358 |
| 2009 | $188,129 | $173,658 | $0 | $361,787 | $76,357 |
| 2008 | $190,440 | $168,881 | $0 | $359,321 | $76,357 |
| 2007 | $191,783 | $170,072 | $0 | $361,855 | $76,357 |
Deed and Sales History
| 1 | 04/19/2022 | WD | Warranty Deed | ROBERTS, TRAVIS L | DEBOER, JOHN P | | | $607,000.00 | 52883 | 4544204 |
| 2 | 04/01/2015 | SPWARDEED | Special Warranty Deed | KULBECK, DOROTHY J | ROBERTS, TRAVIS L | | | $285,000.00 | 19057 | 4376193 |
| 3 | 01/01/1997 | OTHER | Other - Misc. Documents | KULBECK, MAYNARD W | KULBECK, DOROTHY J | | | $0.00 | 67228 | 96021294 |
| 4 | 01/01/1983 | CD | DNU - Correction Deed | Unknown | KULBECK, MAYNARD W | | | $0.00 | 30135 | 404961 |
Payout Agreement
| No payout information available.. |