Property
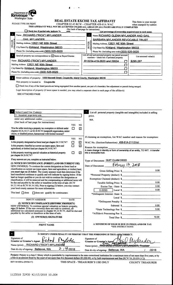
Account |
| Property ID: | 716112 | Abbreviated Legal Description: | 9 - IN GL 1: BE WLN GL1 1002.23'N FR SWCR SEC 19 N131.285' ELY TO ML TP 173.225'FR NECR GL1 SLY ALG ML 173.22' W464.96' N50' W60' TPB EX: BG SWCR GL1 N952.76'TPB N180.332' E140 S176'W140'TPB INCL ADJ TIDES |
| Geographic ID: | R42919-105-0310 | Agent Code: | |
| Type: | Real | | |
| Tax Area: | 722 - APPRAISER-S Whid Schl Dist, Special District, improved, greater than 1 acre | Land Use Code | 11 |
| Open Space: | N | DFL | N |
| Historic Property: | N | Remodel Property: | N |
| Multi-Family Redevelopment: | N | | |
| Township: | 29 | Section: | 19 |
| Range: | R4 |
Location |
| Address: | 6319 WILSON PLACE CLINTON, WA 98236 | Mapsco: | |
| Neighborhood: | Cycle 4 | Map ID: | 1000 |
| Neighborhood CD: | 4 |
Owner |
| Name: | JENKINS TTEE, EDWIN C | Owner ID: | 312217 |
| Mailing Address: | ELAINE S REESE TTEE 6319 WILSON PL CLINTON, WA 98236 | % Ownership: | 100.0000000000% |
| | | Exemptions: | |
Taxes and Assessment Details
Values
| (+) Improvement Homesite Value: | + | $0 | |
| (+) Improvement Non-Homesite Value: | + | $292,357 | |
| (+) Land Homesite Value: | + | $0 | |
| (+) Land Non-Homesite Value: | + | $751,700 | |
| (+) Curr Use (HS): | + | $0 | $0 |
| (+) Curr Use (NHS): | + | $0 | $0 |
| | | -------------------------- | |
| (=) Market Value: | = | $1,044,057 | |
| (–) Productivity Loss: | – | $0 | |
| | | -------------------------- | |
| (=) Subtotal: | = | $1,044,057 | |
| (+) Senior Appraised Value: | + | $0 | |
| (+) Non-Senior Appraised Value: | + | $1,044,057 | |
| | | -------------------------- | |
| (=) Total Appraised Value: | = | $1,044,057 | |
| (–) Senior Exemption Loss: | – | $0 | |
| (–) Exemption Loss: | – | $0 | |
| | | -------------------------- | |
| (=) Taxable Value: | = | $1,044,057 | |
Taxing Jurisdiction
| Owner: | JENKINS TTEE, EDWIN C | | |
| % Ownership: | 100.0000000000% | | |
| Total Value: | $1,044,057 | | |
| Tax Area: | 722 - APPRAISER-S Whid Schl Dist, Special District, improved, greater than 1 acre |
| CF | Conservation Futures | 0.0316035091 | $1,044,057 | $1,044,057 | $33.00 | | |
| FIRE3 | Fire & Rescue Dist #3 S Whidbey GEN | 1.2004855531 | $1,044,057 | $1,044,057 | $1,253.38 | | |
| HOBOND | Hospital BOND | 0.1910887512 | $1,044,057 | $1,044,057 | $199.51 | | |
| HOGEN | Hospital GEN | 0.3902502903 | $1,044,057 | $1,044,057 | $407.44 | | |
| CE | County Current Expense | 0.3708482477 | $1,044,057 | $1,044,057 | $387.19 | | |
| CR | County Roads | 0.4584763726 | $1,044,057 | $1,044,057 | $478.68 | | |
| ISLANDEMS | Hospital GEN (EMS) | 0.5000000000 | $1,044,057 | $1,044,057 | $522.03 | | |
| LIB | Library Sno-Isle GEN | 0.3153421757 | $1,044,057 | $1,044,057 | $329.24 | | |
| PORTWHID | Port of S Whidbey GEN | 0.1094540357 | $1,044,057 | $1,044,057 | $114.28 | | |
| SCH206BOND | School 206 BOND | 0.3161759235 | $1,044,057 | $1,044,057 | $330.11 | | |
| SCH206MO | School 206 Enrichment | 0.4547169547 | $1,044,057 | $1,044,057 | $474.75 | | |
| ST | State School | 1.3035497053 | $1,044,057 | $1,044,057 | $1,360.98 | | |
| ST2 | State School Part 2 | 0.8169543533 | $1,044,057 | $1,044,057 | $852.95 | | |
| SWHIDPRBD | P & R S Whidbey BOND | 0.0152817568 | $1,044,057 | $1,044,057 | $15.96 | | |
| SWHIDPRBD2 | P & R S Whidbey BOND2 | 0.0138911264 | $1,044,057 | $1,044,057 | $14.50 | | |
| SWHIDPRMT | P & R S Whidbey GEN | 0.2053334452 | $1,044,057 | $1,044,057 | $214.38 | | |
| | Total Tax Rate: | 6.6934522006 | | | | | |
| | | | | Taxes w/Current Exemptions: | $6,988.38 | | |
| | | | | Taxes w/o Exemptions: | $6,988.38 | | |
Improvement / Building
| Improvement #1: | RESIDENTIAL | State Code: | Y | 2048.0 sqft | Value: | $292,357 |
| Bathrooms: | 2 | Bedrooms: | 2 | | Ceiling: | DRYWALL PAINTED | Exterior Wall/Cover: | CEMENT FIBER | | Floor Covering: | CERAMIC TILE/CPT 40-60 | Floor Structure: | WOOD W/SUBFLOOR | | Foundation: | CONCRETE | Heating: | FHA GAS | | Interior Finish: | DRYWALL PAINT | Plumbing Fixture Cnt: | 9 | | Roof Slope: | FLAT | Roof Structure/Cover: | BEAM ROLL COMPOSITION |
|
| | Type | Description | Class CD | Sub Class CD | Year Built | Area |
| | BAS | BASE/MAIN FLOOR | 3 | 0 | 1955 | 1152.0 |
| | DWN | DOWNSTAIRS LIVING AREA | 3 | 0 | 1955 | 896.0 |
| | OP3 | OPEN PORCH W/ROOF | 3 | 0 | 1955 | 160.0 |
| | AGR | ATTACHED GARAGE | 3 | 0 | 1955 | 810.0 |
| | OWP | OPEN WOOD PORCH W/STEPS | 3 | 0 | 1955 | 208.0 |
| | OWR | OPEN WOOD PORCH W/STEPS/ROOF | 3 | 0 | 1955 | 64.0 |
| | OWR | OPEN WOOD PORCH W/STEPS/ROOF | 3 | 0 | 1955 | 128.0 |
Sketch
Property Image
Land
| 1 | HB | HIGH BLUFF | 1.5000 | 65340.00 | 170.00 | 0.00 | 1.00 | $750,000 | $0 |
| 2 | 55 | TIDES | 0.0000 | 0.00 | 170.00 | 0.00 | 1.00 | $1,700 | $0 |
Roll Value History
| 2026 | N/A | N/A | N/A | N/A | N/A |
| 2025 | $292,357 | $751,700 | $0 | $1,044,057 | $1,044,057 |
| 2024 | $295,954 | $751,700 | $0 | $1,047,654 | $1,047,654 |
| 2023 | $299,552 | $751,700 | $0 | $1,051,252 | $1,051,252 |
| 2022 | $274,504 | $701,700 | $0 | $976,204 | $976,204 |
| 2021 | $265,299 | $401,700 | $0 | $666,999 | $666,999 |
| 2020 | $257,376 | $351,700 | $0 | $609,076 | $609,076 |
| 2019 | $181,613 | $401,700 | $0 | $583,313 | $583,313 |
| 2018 | $182,147 | $351,700 | $0 | $533,847 | $533,847 |
| 2017 | $183,211 | $301,700 | $0 | $484,911 | $484,911 |
| 2016 | $185,342 | $301,700 | $0 | $487,042 | $487,042 |
| 2015 | $186,598 | $301,700 | $0 | $488,298 | $488,298 |
| 2014 | $166,040 | $301,700 | $0 | $467,740 | $467,740 |
| 2013 | $168,038 | $301,700 | $0 | $469,738 | $469,738 |
| 2012 | $141,218 | $311,107 | $0 | $452,325 | $452,325 |
| 2011 | $143,393 | $345,486 | $0 | $488,879 | $488,879 |
| 2010 | $157,091 | $345,486 | $0 | $502,577 | $502,577 |
| 2009 | $161,906 | $429,005 | $0 | $590,911 | $590,911 |
| 2008 | $128,792 | $429,005 | $0 | $557,797 | $557,797 |
| 2007 | $95,000 | $463,824 | $0 | $558,824 | $558,824 |
Deed and Sales History
| 1 | 04/30/2024 | QCD | Quit Claim Deed | JENKINS, EDWIN C | JENKINS TTEE, EDWIN C | | | $0.00 | 59840 | 4571928 |
| 2 | 03/20/2018 | QCD | Quit Claim Deed | JENKINS, EDWIN C | JENKINS, EDWIN C | | | $0.00 | 33444 | 4441526 |
| 3 | 07/13/2004 | WD | Warranty Deed | WHEELER, WINNIE E | JENKINS, EDWIN C | | | $340,000.00 | 43112 | 4106564 |
| 4 | 10/01/1988 | WD | Warranty Deed | FAJERSON, GLADYS | WHEELER, WINNIE E | | | $125,000.00 | 83629 | 88013577 |
| 5 | 01/01/1900 | OTHER | Other - Misc. Documents | Unknown | FAJERSON, GLADYS | | | $0.00 | 0 | 0 |
Payout Agreement
| No payout information available.. |