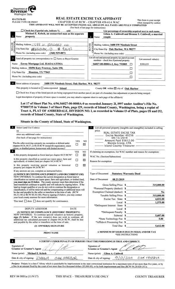
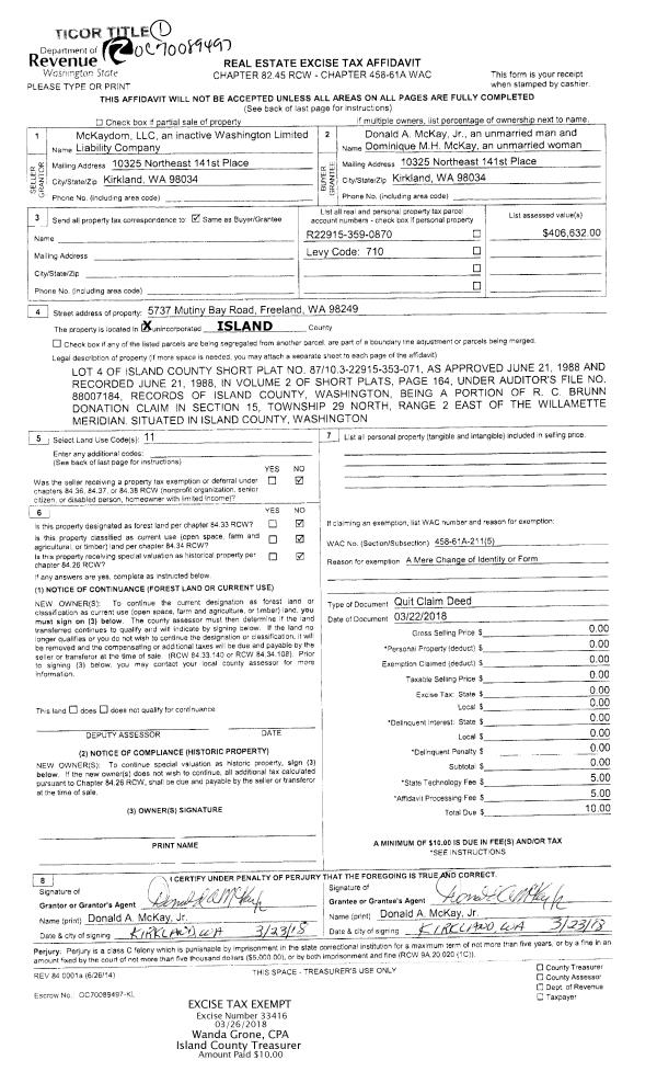
Property
Account |
| Property ID: | 71638 | Abbreviated Legal Description: | 41 - N/2 W/2 E/2 SW NW |
| Geographic ID: | R23101-362-0840 | Agent Code: | |
| Type: | Real | | |
| Tax Area: | 512 - APPRAISER-Stan/Cam Schl Dist, improved, greater than 1 acre | Land Use Code | 11 |
| Open Space: | N | DFL | N |
| Historic Property: | N | Remodel Property: | N |
| Multi-Family Redevelopment: | N | | |
| Township: | 31 | Section: | 01 |
| Range: | R2 |
Location |
| Address: | 328 COTTONWOOD DR CAMANO ISLAND, WA 98282 | Mapsco: | |
| Neighborhood: | Cycle 5 | Map ID: | 451 |
| Neighborhood CD: | 5 |
Owner |
| Name: | EGAN, DENNIS M | Owner ID: | 291989 |
| Mailing Address: | AMY M EGAN 328 COTTONWOOD DR CAMANO ISLAND, WA 98282 | % Ownership: | 100.0000000000% |
| | | Exemptions: | |
Taxes and Assessment Details
Values
| (+) Improvement Homesite Value: | + | $0 | |
| (+) Improvement Non-Homesite Value: | + | $549,455 | |
| (+) Land Homesite Value: | + | $0 | |
| (+) Land Non-Homesite Value: | + | $330,000 | |
| (+) Curr Use (HS): | + | $0 | $0 |
| (+) Curr Use (NHS): | + | $0 | $0 |
| | | -------------------------- | |
| (=) Market Value: | = | $879,455 | |
| (–) Productivity Loss: | – | $0 | |
| | | -------------------------- | |
| (=) Subtotal: | = | $879,455 | |
| (+) Senior Appraised Value: | + | $0 | |
| (+) Non-Senior Appraised Value: | + | $879,455 | |
| | | -------------------------- | |
| (=) Total Appraised Value: | = | $879,455 | |
| (–) Senior Exemption Loss: | – | $0 | |
| (–) Exemption Loss: | – | $0 | |
| | | -------------------------- | |
| (=) Taxable Value: | = | $879,455 | |
Taxing Jurisdiction
| Owner: | EGAN, DENNIS M | | |
| % Ownership: | 100.0000000000% | | |
| Total Value: | $879,455 | | |
| Tax Area: | 512 - APPRAISER-Stan/Cam Schl Dist, improved, greater than 1 acre |
| CF | Conservation Futures | 0.0316035091 | $879,455 | $879,455 | $27.79 | | |
| EMS1 | Fire & Rescue Dist #1 Camano GEN (EMS) | 0.3677864386 | $879,455 | $879,455 | $323.45 | | |
| FIRE1 | Fire & Rescue Dist #1 Camano GEN | 1.2502910536 | $879,455 | $879,455 | $1,099.57 | | |
| FIRE1BOND | Fire & Rescue Dist #1 Camano BOND | 0.1570001679 | $879,455 | $879,455 | $138.07 | | |
| CE | County Current Expense | 0.3708482477 | $879,455 | $879,455 | $326.14 | | |
| CR | County Roads | 0.4584763726 | $879,455 | $879,455 | $403.21 | | |
| LCIB | Library Sno-Isle BOND (Camano Island) | 0.0396325772 | $879,455 | $879,455 | $34.86 | | |
| LIB | Library Sno-Isle GEN | 0.3153421757 | $879,455 | $879,455 | $277.33 | | |
| SCH205_401 | School 205-401 Enrichment | 1.2698420524 | $879,455 | $879,455 | $1,116.77 | | |
| SCH205BOND | School 205-401 BOND | 0.9396497583 | $879,455 | $879,455 | $826.38 | | |
| ST | State School | 1.3035497053 | $879,455 | $879,455 | $1,146.41 | | |
| ST2 | State School Part 2 | 0.8169543533 | $879,455 | $879,455 | $718.47 | | |
| | Total Tax Rate: | 7.3209764117 | | | | | |
| | | | | Taxes w/Current Exemptions: | $6,438.45 | | |
| | | | | Taxes w/o Exemptions: | $6,438.45 | | |
Improvement / Building
| Improvement #1: | RESIDENTIAL | State Code: | Y | 2225.5 sqft | Value: | $549,455 |
| Bathrooms: | 2.5 | Bedrooms: | 4 | | Ceiling: | DRYWALL PAINTED | Exterior Wall/Cover: | CEMENT FIBER | | Floor Covering: | HARDWOOD/CARP 20-80 | Floor Structure: | WOOD W/SUBFLOOR | | Foundation: | CONCRETE | Heating: | FHA GAS | | Interior Finish: | DRYWALL PAINT | Plumbing Fixture Cnt: | 15 | | Roof Slope: | 6" IN 12" | Roof Structure/Cover: | CJ ASPHALT |
|
| | Type | Description | Class CD | Sub Class CD | Year Built | Area |
| | BAS | BASE/MAIN FLOOR | 4 | 0 | 2019 | 2225.5 |
| | AGR | ATTACHED GARAGE | 4 | 0 | 2019 | 720.0 |
| | OP4 | OPEN PORCH W/CEILING-ROOF | 4 | 0 | 2019 | 108.0 |
| | CPD | OPEN CARPORT DIRT FLOOR | 4 | 0 | 2019 | 193.5 |
| | OP4 | OPEN PORCH W/CEILING-ROOF | 4 | 0 | 2019 | 298.0 |
Sketch
Property Image
Land
| 1 | 32 | AC (03.01-09.99) | 5.0100 | 0.00 | 0.00 | 0.00 | 1.00 | $330,000 | $0 |
Roll Value History
| 2026 | N/A | N/A | N/A | N/A | N/A |
| 2025 | $549,455 | $330,000 | $0 | $879,455 | $879,455 |
| 2024 | $553,852 | $300,000 | $0 | $853,852 | $853,852 |
| 2023 | $558,246 | $290,000 | $0 | $848,246 | $848,246 |
| 2022 | $510,785 | $290,000 | $0 | $800,785 | $800,785 |
| 2021 | $444,164 | $190,000 | $0 | $634,164 | $634,164 |
| 2020 | $434,780 | $160,000 | $0 | $594,780 | $594,780 |
| 2019 | $325,245 | $230,000 | $0 | $555,245 | $555,245 |
| 2018 | $0 | $120,000 | $0 | $120,000 | $120,000 |
| 2017 | $0 | $90,000 | $0 | $90,000 | $90,000 |
| 2016 | $0 | $80,000 | $0 | $80,000 | $80,000 |
| 2015 | $0 | $100,200 | $0 | $100,200 | $100,200 |
| 2014 | $0 | $100,200 | $0 | $100,200 | $100,200 |
| 2013 | $0 | $120,240 | $0 | $120,240 | $120,240 |
| 2012 | $0 | $120,240 | $0 | $120,240 | $120,240 |
| 2011 | $0 | $120,240 | $0 | $120,240 | $120,240 |
| 2010 | $0 | $120,240 | $0 | $120,240 | $120,240 |
| 2009 | $0 | $150,300 | $0 | $150,300 | $150,300 |
| 2008 | $0 | $152,805 | $0 | $152,805 | $152,805 |
| 2007 | $0 | $130,260 | $0 | $130,260 | $130,260 |
Deed and Sales History
| 1 | 09/16/2019 | WD | Warranty Deed | CASCADE GENERAL CONTRACTING, INC | EGAN, DENNIS M | | | $630,000.00 | 40436 | 4472190 |
| 2 | 02/02/2018 | WD | Warranty Deed | MCCARTY, TRUSTEE, MARY C. | CASCADE GENERAL CONTRACTING, INC | | | $85,000.00 | 32873 | 4438752 |
| 3 | 02/01/1994 | WD | Warranty Deed | MCCARTY, MARY C | MCCARTY, MARY C | | | $0.00 | 41864 | 94011318 |
| 4 | 08/01/1990 | WD | Warranty Deed | KARLS, TOMMY J | MCCARTY, MARY C | | | $26,000.00 | 5143 | 90017072 |
| 5 | 01/01/1900 | OTHER | Other - Misc. Documents | Unknown | KARLS, TOMMY J | | | $0.00 | 0 | 0 |
Payout Agreement
| No payout information available.. |