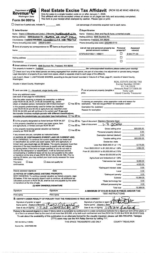
Property
Account |
| Property ID: | 71647 | Abbreviated Legal Description: | 11 - N/2 E/2 E/2 SW NW INCL EZ |
| Geographic ID: | R23101-362-1170 | Agent Code: | |
| Type: | Real | | |
| Tax Area: | 512 - APPRAISER-Stan/Cam Schl Dist, improved, greater than 1 acre | Land Use Code | 11 |
| Open Space: | N | DFL | N |
| Historic Property: | N | Remodel Property: | N |
| Multi-Family Redevelopment: | N | | |
| Township: | 31 | Section: | 01 |
| Range: | R2 |
Location |
| Address: | 326 COTTONWOOD DR CAMANO ISLAND, WA 98282 | Mapsco: | |
| Neighborhood: | Cycle 5 | Map ID: | 451 |
| Neighborhood CD: | 5 |
Owner |
| Name: | MOTOLA, LISA | Owner ID: | 311875 |
| Mailing Address: | TAYLOR HOLMES 326 COTTONWOOD DR CAMANO ISLAND, WA 98282 | % Ownership: | 100.0000000000% |
| | | Exemptions: | |
Taxes and Assessment Details
Values
| (+) Improvement Homesite Value: | + | $0 | |
| (+) Improvement Non-Homesite Value: | + | $295,491 | |
| (+) Land Homesite Value: | + | $0 | |
| (+) Land Non-Homesite Value: | + | $330,000 | |
| (+) Curr Use (HS): | + | $0 | $0 |
| (+) Curr Use (NHS): | + | $0 | $0 |
| | | -------------------------- | |
| (=) Market Value: | = | $625,491 | |
| (–) Productivity Loss: | – | $0 | |
| | | -------------------------- | |
| (=) Subtotal: | = | $625,491 | |
| (+) Senior Appraised Value: | + | $0 | |
| (+) Non-Senior Appraised Value: | + | $625,491 | |
| | | -------------------------- | |
| (=) Total Appraised Value: | = | $625,491 | |
| (–) Senior Exemption Loss: | – | $0 | |
| (–) Exemption Loss: | – | $0 | |
| | | -------------------------- | |
| (=) Taxable Value: | = | $625,491 | |
Taxing Jurisdiction
| Owner: | MOTOLA, LISA | | |
| % Ownership: | 100.0000000000% | | |
| Total Value: | $625,491 | | |
| Tax Area: | 512 - APPRAISER-Stan/Cam Schl Dist, improved, greater than 1 acre |
| CF | Conservation Futures | 0.0316035091 | $625,491 | $625,491 | $19.77 | | |
| EMS1 | Fire & Rescue Dist #1 Camano GEN (EMS) | 0.3677864386 | $625,491 | $625,491 | $230.05 | | |
| FIRE1 | Fire & Rescue Dist #1 Camano GEN | 1.2502910536 | $625,491 | $625,491 | $782.05 | | |
| FIRE1BOND | Fire & Rescue Dist #1 Camano BOND | 0.1570001679 | $625,491 | $625,491 | $98.20 | | |
| CE | County Current Expense | 0.3708482477 | $625,491 | $625,491 | $231.96 | | |
| CR | County Roads | 0.4584763726 | $625,491 | $625,491 | $286.77 | | |
| LCIB | Library Sno-Isle BOND (Camano Island) | 0.0396325772 | $625,491 | $625,491 | $24.79 | | |
| LIB | Library Sno-Isle GEN | 0.3153421757 | $625,491 | $625,491 | $197.24 | | |
| SCH205_401 | School 205-401 Enrichment | 1.2698420524 | $625,491 | $625,491 | $794.27 | | |
| SCH205BOND | School 205-401 BOND | 0.9396497583 | $625,491 | $625,491 | $587.74 | | |
| ST | State School | 1.3035497053 | $625,491 | $625,491 | $815.36 | | |
| ST2 | State School Part 2 | 0.8169543533 | $625,491 | $625,491 | $511.00 | | |
| | Total Tax Rate: | 7.3209764117 | | | | | |
| | | | | Taxes w/Current Exemptions: | $4,579.20 | | |
| | | | | Taxes w/o Exemptions: | $4,579.20 | | |
Improvement / Building
| Improvement #1: | MANUFACTURED HOME | State Code: | Y | 1404.0 sqft | Value: | $126,915 |
| Bathrooms: | 0 | Bedrooms: | 0 | | Ceiling: | PLASTER PAINTED | Cooling: | EVAP NO DUCT | | Exterior Wall/Cover: | VINYL | Floor Covering: | CARPET 100% | | Floor Structure: | SLAB ON GRADE | Foundation: | SLAB | | Heating: | FHA ELECTRIC | Interior Finish: | PLASTER | | Plumbing Fixture Cnt: | 1 | Roof Slope: | FLAT | | Roof Structure/Cover: | CJ ALUMINIUM HEAVY |   |   |
|
| | Type | Description | Class CD | Sub Class CD | Year Built | Area |
| | OWP | OPEN WOOD PORCH W/STEPS | 4 | 0 | 2004 | 24.0 |
| | BAS | BASE/MAIN FLOOR | 4 | 0 | 2004 | 1404.0 |
| Improvement #2: | RESIDENTIAL | State Code: | Y | 912.0 sqft | Value: | $168,576 |
| Bathrooms: | 1 | Bedrooms: | 2 | | Ceiling: | DRYWALL PAINTED | Exterior Wall/Cover: | PLY/HARDBOARD T-111 | | Floor Covering: | CARPET/VINYL 20-80 | Floor Structure: | SLAB ON GRADE | | Foundation: | CONCRETE | Heating: | WALL HEAT ELECTRIC | | Interior Finish: | DRYWALL PAINT | Plumbing Fixture Cnt: | 6 | | Roof Slope: | FLAT | Roof Structure/Cover: | CJ ALUMINIUM HEAVY |
|
Sketch
| No sketches available for this property. |
Property Image
Land
| 1 | 32 | AC (03.01-09.99) | 5.0000 | 0.00 | 0.00 | 0.00 | 1.00 | $330,000 | $0 |
Roll Value History
| 2026 | N/A | N/A | N/A | N/A | N/A |
| 2025 | $295,491 | $330,000 | $0 | $625,491 | $625,491 |
| 2024 | $296,932 | $300,000 | $0 | $596,932 | $596,932 |
| 2023 | $284,421 | $290,000 | $0 | $574,421 | $574,421 |
| 2022 | $261,780 | $290,000 | $0 | $551,780 | $551,780 |
| 2021 | $223,247 | $190,000 | $0 | $413,247 | $413,247 |
| 2020 | $220,383 | $160,000 | $0 | $380,383 | $380,383 |
| 2019 | $68,952 | $230,000 | $0 | $298,952 | $298,952 |
| 2018 | $70,696 | $175,000 | $0 | $245,696 | $245,696 |
| 2017 | $72,442 | $150,000 | $0 | $222,442 | $222,442 |
| 2016 | $74,187 | $125,000 | $0 | $199,187 | $199,187 |
| 2015 | $70,052 | $125,000 | $0 | $195,052 | $195,052 |
| 2014 | $70,703 | $125,000 | $0 | $195,703 | $78,281 |
| 2013 | $72,005 | $112,000 | $0 | $184,005 | $73,602 |
| 2012 | $72,657 | $112,000 | $0 | $184,657 | $73,863 |
| 2011 | $73,959 | $140,000 | $0 | $213,959 | $81,093 |
| 2010 | $64,244 | $140,000 | $0 | $204,244 | $81,093 |
| 2009 | $67,367 | $160,000 | $0 | $227,367 | $81,093 |
| 2008 | $68,249 | $216,121 | $0 | $284,370 | $81,093 |
| 2007 | $70,730 | $147,500 | $0 | $218,230 | $132,732 |
Deed and Sales History
| 1 | 03/27/2024 | WD | Warranty Deed | HOLMES, JEFFREY ALLEN | MOTOLA, LISA | | | $625,000.00 | 59565 | 4570859 |
| 2 | 02/11/2015 | WD | Warranty Deed | DAILY, ROBERT L | HOLMES, JEFFREY ALLEN | | | $250,000.00 | 18509 | 4373422 |
| 3 | 06/01/1981 | EXECUTORD | Executor Deed | HERSHAW, RALPH C | DAILY, ROBERT L | | | $18,000.00 | 11799 | 384224 |
| 4 | 08/01/1979 | TRUSTEED | Trustee's Deed | FISCUS, GARY L | HERSHAW, RALPH C | | | $15,000.00 | 94115 | 3576464 |
| 5 | 01/01/1900 | OTHER | Other - Misc. Documents | Unknown | FISCUS, GARY L | | | $0.00 | 0 | 0 |
Payout Agreement
| No payout information available.. |