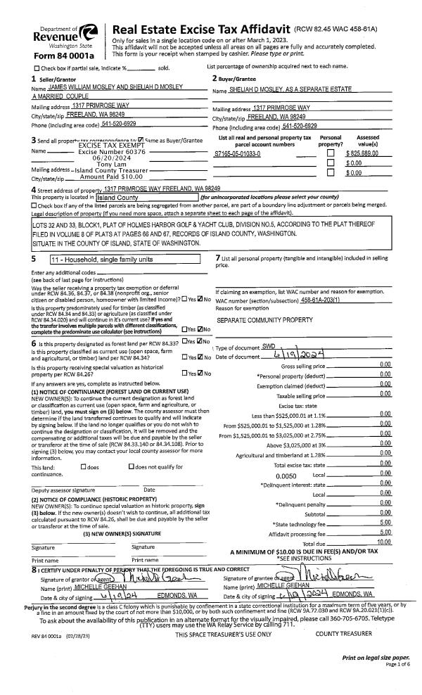
Property
Account |
| Property ID: | 716522 | Abbreviated Legal Description: | AUDREY HOMES LOT 2 BLK 2 |
| Geographic ID: | S6055-00-02002-0 | Agent Code: | |
| Type: | Real | | |
| Tax Area: | 100 - APPRAISER-OH Schl Dist, in OH | Land Use Code | 11 |
| Open Space: | N | DFL | N |
| Historic Property: | N | Remodel Property: | N |
| Multi-Family Redevelopment: | N | | |
| Township: | | Section: | |
| Range: | |
Location |
| Address: | 1546 NE 5TH AVE OAK HARBOR, WA 98277 | Mapsco: | |
| Neighborhood: | Cycle 1 | Map ID: | 257 |
| Neighborhood CD: | 1 |
Owner |
| Name: | SNYDER, QUIN STEPHANOS | Owner ID: | 286219 |
| Mailing Address: | SELENA-RAE BEVERLY SNYDER 42145 SETLEY DRIVE STERLING HEIGHTS, MI 48313 | % Ownership: | 100.0000000000% |
| | | Exemptions: | |
Taxes and Assessment Details
Values
| (+) Improvement Homesite Value: | + | $0 | |
| (+) Improvement Non-Homesite Value: | + | $223,064 | |
| (+) Land Homesite Value: | + | $0 | |
| (+) Land Non-Homesite Value: | + | $180,000 | |
| (+) Curr Use (HS): | + | $0 | $0 |
| (+) Curr Use (NHS): | + | $0 | $0 |
| | | -------------------------- | |
| (=) Market Value: | = | $403,064 | |
| (–) Productivity Loss: | – | $0 | |
| | | -------------------------- | |
| (=) Subtotal: | = | $403,064 | |
| (+) Senior Appraised Value: | + | $0 | |
| (+) Non-Senior Appraised Value: | + | $403,064 | |
| | | -------------------------- | |
| (=) Total Appraised Value: | = | $403,064 | |
| (–) Senior Exemption Loss: | – | $0 | |
| (–) Exemption Loss: | – | $0 | |
| | | -------------------------- | |
| (=) Taxable Value: | = | $403,064 | |
Taxing Jurisdiction
| Owner: | SNYDER, QUIN STEPHANOS | | |
| % Ownership: | 100.0000000000% | | |
| Total Value: | $403,064 | | |
| Tax Area: | 100 - APPRAISER-OH Schl Dist, in OH |
| CF | Conservation Futures | 0.0316035091 | $403,064 | $403,064 | $12.74 | | |
| CEM1 | Cemetery #1 | 0.0040320932 | $403,064 | $403,064 | $1.63 | | |
| COH | City of Oak Harbor | 2.3001546061 | $403,064 | $403,064 | $927.11 | | |
| OAKBOND | City of Oak Harbor BOND | 0.1926904192 | $403,064 | $403,064 | $77.67 | | |
| HOBOND | Hospital BOND | 0.1910887512 | $403,064 | $403,064 | $77.02 | | |
| HOGEN | Hospital GEN | 0.3902502903 | $403,064 | $403,064 | $157.30 | | |
| CE | County Current Expense | 0.3708482477 | $403,064 | $403,064 | $149.48 | | |
| ISLANDEMS | Hospital GEN (EMS) | 0.5000000000 | $403,064 | $403,064 | $201.53 | | |
| LIB | Library Sno-Isle GEN | 0.3153421757 | $403,064 | $403,064 | $127.10 | | |
| NWHIDPRMT | P & R N Whidbey GEN | 0.2004466701 | $403,064 | $403,064 | $80.79 | | |
| SCH201MO | School 201 Enrichment | 1.8559231640 | $403,064 | $403,064 | $748.06 | | |
| ST | State School | 1.3035497053 | $403,064 | $403,064 | $525.41 | | |
| ST2 | State School Part 2 | 0.8169543533 | $403,064 | $403,064 | $329.28 | | |
| | Total Tax Rate: | 8.4728839852 | | | | | |
| | | | | Taxes w/Current Exemptions: | $3,415.12 | | |
| | | | | Taxes w/o Exemptions: | $3,415.12 | | |
Improvement / Building
| Improvement #1: | RESIDENTIAL | State Code: | Y | 1341.0 sqft | Value: | $223,064 |
| Bathrooms: | 1.5 | Bedrooms: | 3 | | Ceiling: | DRYWALL PAINTED | Exterior Wall/Cover: | FACE BRICK VENEER | | Floor Covering: | CARPET/VINYL 60-40 | Floor Structure: | WOOD W/SUBFLOOR | | Foundation: | CONCRETE BLOCKS | Heating: | FHA GAS | | Interior Finish: | DRYWALL PAINT | Plumbing Fixture Cnt: | 8 | | Roof Slope: | FLAT | Roof Structure/Cover: | CJ BUILT-UP ROCK |
|
| | Type | Description | Class CD | Sub Class CD | Year Built | Area |
| | BAS | BASE/MAIN FLOOR | 3 | 0 | 1953 | 1341.0 |
| | OP2 | OPEN PORCH W/STEPS | 3 | 0 | 1953 | 375.0 |
| | OP4 | OPEN PORCH W/CEILING-ROOF | 3 | 0 | 1953 | 20.0 |
Sketch
Property Image
Land
| 1 | 14 | SQ (08001-12000) | 0.2300 | 10018.80 | 0.00 | 0.00 | 1.00 | $180,000 | $0 |
Roll Value History
| 2026 | N/A | N/A | N/A | N/A | N/A |
| 2025 | $223,064 | $180,000 | $0 | $403,064 | $403,064 |
| 2024 | $226,110 | $170,000 | $0 | $396,110 | $396,110 |
| 2023 | $220,019 | $170,000 | $0 | $390,019 | $390,019 |
| 2022 | $201,985 | $160,000 | $0 | $361,985 | $361,985 |
| 2021 | $178,042 | $125,000 | $0 | $303,042 | $303,042 |
| 2020 | $173,840 | $100,000 | $0 | $273,840 | $273,840 |
| 2019 | $126,361 | $140,000 | $0 | $266,361 | $266,361 |
| 2018 | $126,774 | $125,000 | $0 | $251,774 | $251,774 |
| 2017 | $82,562 | $110,000 | $0 | $192,562 | $192,562 |
| 2016 | $84,151 | $90,000 | $0 | $174,151 | $174,151 |
| 2015 | $85,738 | $70,000 | $0 | $155,738 | $155,738 |
| 2014 | $87,325 | $55,000 | $0 | $142,325 | $142,325 |
| 2013 | $88,914 | $55,000 | $0 | $143,914 | $143,914 |
| 2012 | $90,502 | $65,000 | $0 | $155,502 | $155,502 |
| 2011 | $81,012 | $65,000 | $0 | $146,012 | $146,012 |
| 2010 | $91,266 | $65,000 | $0 | $156,266 | $156,266 |
| 2009 | $95,702 | $95,000 | $0 | $190,702 | $190,702 |
| 2008 | $95,802 | $109,000 | $0 | $204,802 | $204,802 |
| 2007 | $97,467 | $109,000 | $0 | $206,467 | $206,467 |
Deed and Sales History
| 1 | 07/27/2018 | WD | Warranty Deed | LOHMANN, JAMES K | SNYDER, QUIN STEPHANOS | | | $255,000.00 | 35227 | 4448983 |
| 2 | 07/11/2005 | WD | Warranty Deed | PEPLINSKI, ANTHONY J | LOHMANN, JAMES K | | | $174,585.00 | 53315 | 4140277 |
| 3 | 03/31/2005 | WD | Warranty Deed | STEWART, PAUL H | PEPLINSKI, ANTHONY J | | | $110,000.00 | 51338 | 4129975 |
| 4 | 06/01/1993 | QCD | Quit Claim Deed | STEWART, PAUL H | STEWART, PAUL H | | | $0.00 | 32368 | 93012290 |
| 5 | 04/01/1986 | WD | Warranty Deed | VANCE, LEROY A | STEWART, PAUL H | | | $43,950.00 | 60858 | 86003988 |
| 6 | 01/01/1900 | OTHER | Other - Misc. Documents | Unknown | VANCE, LEROY A | | | $0.00 | 0 | 0 |
Payout Agreement
| No payout information available.. |