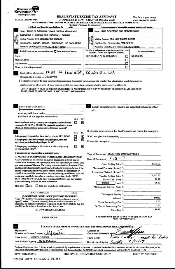
Property
Account |
| Property ID: | 716657 | Abbreviated Legal Description: | BAYWOOD LOT 28 1/36TH INT E32'L15 DEL MAR VISTA TGW TIDES |
| Geographic ID: | S6090-00-00028-0 | Agent Code: | |
| Type: | Real | | |
| Tax Area: | 710 - APPRAISER-S Whid Schl Dist, outside Langley, improved & 1 acre or less | Land Use Code | 11 |
| Open Space: | N | DFL | N |
| Historic Property: | N | Remodel Property: | N |
| Multi-Family Redevelopment: | N | | |
| Township: | | Section: | |
| Range: | |
Location |
| Address: | 1056 TIMBER LN FREELAND, WA 98249 | Mapsco: | |
| Neighborhood: | Cycle 3 | Map ID: | 306 |
| Neighborhood CD: | 3 |
Owner |
| Name: | HERVEY, EDWIN L | Owner ID: | 278605 |
| Mailing Address: | 4056 TIMBER LN FREELAND, WA 98249 | % Ownership: | 100.0000000000% |
| | | Exemptions: | |
Taxes and Assessment Details
Values
| (+) Improvement Homesite Value: | + | $0 | |
| (+) Improvement Non-Homesite Value: | + | $12,808 | |
| (+) Land Homesite Value: | + | $0 | |
| (+) Land Non-Homesite Value: | + | $160,000 | |
| (+) Curr Use (HS): | + | $0 | $0 |
| (+) Curr Use (NHS): | + | $0 | $0 |
| | | -------------------------- | |
| (=) Market Value: | = | $172,808 | |
| (–) Productivity Loss: | – | $0 | |
| | | -------------------------- | |
| (=) Subtotal: | = | $172,808 | |
| (+) Senior Appraised Value: | + | $0 | |
| (+) Non-Senior Appraised Value: | + | $172,808 | |
| | | -------------------------- | |
| (=) Total Appraised Value: | = | $172,808 | |
| (–) Senior Exemption Loss: | – | $0 | |
| (–) Exemption Loss: | – | $0 | |
| | | -------------------------- | |
| (=) Taxable Value: | = | $172,808 | |
Taxing Jurisdiction
| Owner: | HERVEY, EDWIN L | | |
| % Ownership: | 100.0000000000% | | |
| Total Value: | $172,808 | | |
| Tax Area: | 710 - APPRAISER-S Whid Schl Dist, outside Langley, improved & 1 acre or less |
| CF | Conservation Futures | 0.0316035091 | $172,808 | $172,808 | $5.46 | | |
| FIRE3 | Fire & Rescue Dist #3 S Whidbey GEN | 1.2004855531 | $172,808 | $172,808 | $207.45 | | |
| HOBOND | Hospital BOND | 0.1910887512 | $172,808 | $172,808 | $33.02 | | |
| HOGEN | Hospital GEN | 0.3902502903 | $172,808 | $172,808 | $67.44 | | |
| CE | County Current Expense | 0.3708482477 | $172,808 | $172,808 | $64.09 | | |
| CR | County Roads | 0.4584763726 | $172,808 | $172,808 | $79.23 | | |
| ISLANDEMS | Hospital GEN (EMS) | 0.5000000000 | $172,808 | $172,808 | $86.40 | | |
| LIB | Library Sno-Isle GEN | 0.3153421757 | $172,808 | $172,808 | $54.49 | | |
| PORTWHID | Port of S Whidbey GEN | 0.1094540357 | $172,808 | $172,808 | $18.91 | | |
| SCH206BOND | School 206 BOND | 0.3161759235 | $172,808 | $172,808 | $54.64 | | |
| SCH206MO | School 206 Enrichment | 0.4547169547 | $172,808 | $172,808 | $78.58 | | |
| ST | State School | 1.3035497053 | $172,808 | $172,808 | $225.26 | | |
| ST2 | State School Part 2 | 0.8169543533 | $172,808 | $172,808 | $141.18 | | |
| SWHIDPRBD | P & R S Whidbey BOND | 0.0152817568 | $172,808 | $172,808 | $2.64 | | |
| SWHIDPRBD2 | P & R S Whidbey BOND2 | 0.0138911264 | $172,808 | $172,808 | $2.40 | | |
| SWHIDPRMT | P & R S Whidbey GEN | 0.2053334452 | $172,808 | $172,808 | $35.48 | | |
| | Total Tax Rate: | 6.6934522006 | | | | | |
| | | | | Taxes w/Current Exemptions: | $1,156.67 | | |
| | | | | Taxes w/o Exemptions: | $1,156.67 | | |
Improvement / Building
| Improvement #1: | MANUFACTURED HOME | State Code: | Y | 576.0 sqft | Value: | $12,808 |
| Bathrooms: | 0 | Bedrooms: | 0 | | Ceiling: | PLASTER PAINTED | Cooling: | EVAP NO DUCT | | Exterior Wall/Cover: | VINYL | Floor Covering: | CARPET 100% | | Floor Structure: | SLAB ON GRADE | Foundation: | SLAB | | Heating: | FHA ELECTRIC | Interior Finish: | PLASTER | | Plumbing Fixture Cnt: | 1 | Roof Slope: | FLAT | | Roof Structure/Cover: | CJ ALUMINIUM HEAVY |   |   |
|
Sketch
Property Image
Land
| 1 | 14 | SQ (08001-12000) | 0.0000 | 0.00 | 0.00 | 0.00 | 1.00 | $160,000 | $0 |
Roll Value History
| 2026 | N/A | N/A | N/A | N/A | N/A |
| 2025 | $12,808 | $160,000 | $0 | $172,808 | $172,808 |
| 2024 | $12,808 | $140,000 | $0 | $152,808 | $152,808 |
| 2023 | $12,118 | $120,000 | $0 | $132,118 | $132,118 |
| 2022 | $11,682 | $110,000 | $0 | $121,682 | $121,682 |
| 2021 | $11,137 | $50,000 | $0 | $61,137 | $61,137 |
| 2020 | $11,033 | $50,000 | $0 | $61,033 | $61,033 |
| 2019 | $10,285 | $100,000 | $0 | $110,285 | $110,285 |
| 2018 | $10,285 | $90,000 | $0 | $100,285 | $100,285 |
| 2017 | $10,285 | $70,000 | $0 | $80,285 | $80,285 |
| 2016 | $11,286 | $70,000 | $0 | $81,286 | $81,286 |
| 2015 | $11,286 | $70,000 | $0 | $81,286 | $81,286 |
| 2014 | $11,286 | $59,500 | $0 | $70,786 | $70,786 |
| 2013 | $15,751 | $59,500 | $0 | $75,251 | $75,251 |
| 2012 | $16,028 | $59,500 | $0 | $75,528 | $75,528 |
| 2011 | $16,306 | $70,000 | $0 | $86,306 | $86,306 |
| 2010 | $18,758 | $70,000 | $0 | $88,758 | $88,758 |
| 2009 | $19,153 | $75,000 | $0 | $94,153 | $94,153 |
| 2008 | $19,287 | $80,000 | $0 | $99,287 | $99,287 |
| 2007 | $19,304 | $67,000 | $0 | $86,304 | $86,304 |
Deed and Sales History
| 1 | 01/26/2017 | WD | Warranty Deed | FERRY, EARLA J | HERVEY, EDWIN L | | | $72,500.00 | 28160 | 4417573 |
|   | |
| 2 | 05/01/2008 | OTHER | Other - Misc. Documents | FERRY, BENEDICT W | FERRY, EARLA J | | | $0.00 | 80721 | 0 |
| 3 | 07/02/2001 | WD | Warranty Deed | FERRY, JESSIE V | FERRY, BENEDICT W | | | $48,167.00 | 12631 | 20037134 |
| 4 | 05/01/1995 | OTHER | Other - Misc. Documents | Unknown | FERRY, JESSIE V | | | $0.00 | 51660 | 0 |
| 5 | 04/01/1995 | OTHER | Other - Misc. Documents | Unknown | FERRY, JESSIE V | | | $0.00 | 66367 | 237922 |
| 6 | 01/01/1900 | OTHER | Other - Misc. Documents | Unknown | FERRY, WILLIAM T | | | $0.00 | 0 | 0 |
Payout Agreement
| No payout information available.. |