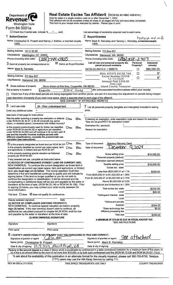
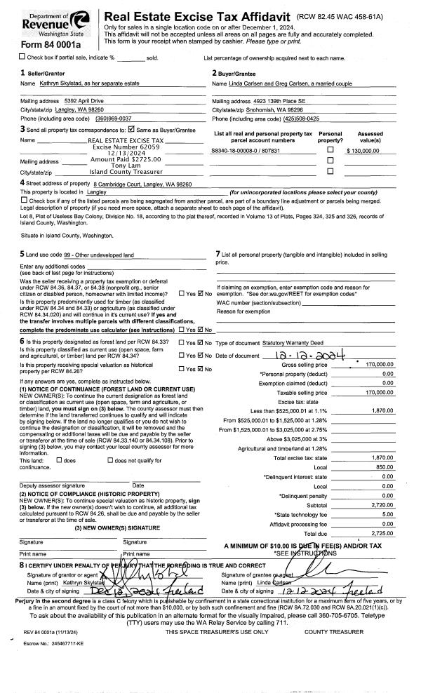
Property
Account |
| Property ID: | 716737 | Abbreviated Legal Description: | BEACHCOMBERS 5 LOT 38 |
| Geographic ID: | S6095-05-00038-0 | Agent Code: | |
| Type: | Real | | |
| Tax Area: | 310 - APPRAISER-Cpvl Schl Dist, outside Cpvl, improved & 1 acre or less | Land Use Code | 11 |
| Open Space: | N | DFL | N |
| Historic Property: | N | Remodel Property: | N |
| Multi-Family Redevelopment: | N | | |
| Township: | | Section: | |
| Range: | |
Location |
| Address: | 921 CHICKADEE DR GREENBANK, WA 98253 | Mapsco: | |
| Neighborhood: | Cycle 2 | Map ID: | 530 |
| Neighborhood CD: | 2 |
Owner |
| Name: | HILL, ASHLEY | Owner ID: | 316470 |
| Mailing Address: | CIARA HILL 921 CHICKADEE DR GREENBANK, WA 98253 | % Ownership: | 100.0000000000% |
| | | Exemptions: | |
Taxes and Assessment Details
Values
| (+) Improvement Homesite Value: | + | $0 | |
| (+) Improvement Non-Homesite Value: | + | $148,981 | |
| (+) Land Homesite Value: | + | $0 | |
| (+) Land Non-Homesite Value: | + | $200,000 | |
| (+) Curr Use (HS): | + | $0 | $0 |
| (+) Curr Use (NHS): | + | $0 | $0 |
| | | -------------------------- | |
| (=) Market Value: | = | $348,981 | |
| (–) Productivity Loss: | – | $0 | |
| | | -------------------------- | |
| (=) Subtotal: | = | $348,981 | |
| (+) Senior Appraised Value: | + | $0 | |
| (+) Non-Senior Appraised Value: | + | $348,981 | |
| | | -------------------------- | |
| (=) Total Appraised Value: | = | $348,981 | |
| (–) Senior Exemption Loss: | – | $0 | |
| (–) Exemption Loss: | – | $0 | |
| | | -------------------------- | |
| (=) Taxable Value: | = | $348,981 | |
Taxing Jurisdiction
| Owner: | HILL, ASHLEY | | |
| % Ownership: | 100.0000000000% | | |
| Total Value: | $348,981 | | |
| Tax Area: | 310 - APPRAISER-Cpvl Schl Dist, outside Cpvl, improved & 1 acre or less |
| CF | Conservation Futures | 0.0316035091 | $348,981 | $348,981 | $11.03 | | |
| CEM2 | Cemetery #2 | 0.0095056933 | $348,981 | $348,981 | $3.32 | | |
| FIRE5 | Fire & Rescue Dist #5 C Whidbey GEN | 1.2008080668 | $348,981 | $348,981 | $419.06 | | |
| FIRE5BOND | Fire & Rescue Dist #5 C Whidbey BOND | 0.1400090713 | $348,981 | $348,981 | $48.86 | | |
| HOBOND | Hospital BOND | 0.1910887512 | $348,981 | $348,981 | $66.69 | | |
| HOGEN | Hospital GEN | 0.3902502903 | $348,981 | $348,981 | $136.19 | | |
| CE | County Current Expense | 0.3708482477 | $348,981 | $348,981 | $129.42 | | |
| CR | County Roads | 0.4584763726 | $348,981 | $348,981 | $160.00 | | |
| ISLANDEMS | Hospital GEN (EMS) | 0.5000000000 | $348,981 | $348,981 | $174.49 | | |
| LIB | Library Sno-Isle GEN | 0.3153421757 | $348,981 | $348,981 | $110.05 | | |
| LIBCAP | Library Sno-Isle BOND (Cap Fac Imp Area) | 0.0543427938 | $348,981 | $348,981 | $18.96 | | |
| POCOUP | Port of Coupeville GEN | 0.1093371703 | $348,981 | $348,981 | $38.16 | | |
| POCOUPIDD | Port of Coupeville IDD | 0.3409740022 | $348,981 | $348,981 | $118.99 | | |
| COUPSDTECH | School 204 CP (TECH) | 0.7545480007 | $348,981 | $348,981 | $263.32 | | |
| SCH204MO | School 204 Enrichment | 0.6716186034 | $348,981 | $348,981 | $234.38 | | |
| ST | State School | 1.3035497053 | $348,981 | $348,981 | $454.91 | | |
| ST2 | State School Part 2 | 0.8169543533 | $348,981 | $348,981 | $285.10 | | |
| | Total Tax Rate: | 7.6592568070 | | | | | |
| | | | | Taxes w/Current Exemptions: | $2,672.93 | | |
| | | | | Taxes w/o Exemptions: | $2,672.93 | | |
Improvement / Building
| Improvement #1: | RESIDENTIAL | State Code: | Y | 760.0 sqft | Value: | $148,981 |
| Bathrooms: | 1 | Bedrooms: | 2 | | Ceiling: | DRYWALL PAINTED | Cooling: | HEAT PUMP/CONV/V | | Exterior Wall/Cover: | CEMENT FIBER | Floor Covering: | LAMINATE/LVP | | Floor Structure: | SLAB ON GRADE | Foundation: | SLAB | | Interior Finish: | TONGUE & GROOVE DRYWALL 40/60 | Plumbing Fixture Cnt: | 6 | | Roof Slope: | 4" IN 12" | Roof Structure/Cover: | CJ ASPHALT |
|
Sketch
Property Image
Land
| 1 | 14 | SQ (08001-12000) | 0.1928 | 8398.37 | 0.00 | 0.00 | 1.00 | $200,000 | $0 |
Roll Value History
| 2026 | N/A | N/A | N/A | N/A | N/A |
| 2025 | $148,981 | $200,000 | $0 | $348,981 | $348,981 |
| 2024 | $67,937 | $180,000 | $0 | $247,937 | $247,937 |
| 2023 | $69,029 | $180,000 | $0 | $249,029 | $249,029 |
| 2022 | $63,494 | $170,000 | $0 | $233,494 | $233,494 |
| 2021 | $56,072 | $130,000 | $0 | $186,072 | $186,072 |
| 2020 | $54,781 | $120,000 | $0 | $174,781 | $174,781 |
| 2019 | $38,803 | $155,000 | $0 | $193,803 | $193,803 |
| 2018 | $33,642 | $135,000 | $0 | $168,642 | $168,642 |
| 2017 | $28,432 | $100,000 | $0 | $128,432 | $128,432 |
| 2016 | $28,850 | $90,000 | $0 | $118,850 | $118,850 |
| 2015 | $29,268 | $90,000 | $0 | $119,268 | $119,268 |
| 2014 | $29,687 | $95,000 | $0 | $124,687 | $124,687 |
| 2013 | $30,105 | $85,000 | $0 | $115,105 | $115,105 |
| 2012 | $27,997 | $61,750 | $0 | $89,747 | $89,747 |
| 2011 | $28,000 | $65,000 | $0 | $93,000 | $93,000 |
| 2010 | $29,548 | $65,000 | $0 | $94,548 | $94,548 |
| 2009 | $30,888 | $75,000 | $0 | $105,888 | $105,888 |
| 2008 | $31,351 | $47,250 | $0 | $78,601 | $78,601 |
| 2007 | $32,416 | $46,648 | $0 | $79,064 | $79,064 |
Deed and Sales History
| 1 | 05/09/2025 | WD | Warranty Deed | DAVIS FAMILY RENTALS LLC | HILL, ASHLEY | | | $415,000.00 | 63453 | 4585781 |
| 2 | 03/25/2024 | WD | Warranty Deed | STARR, DOROTHY | DAVIS FAMILY RENTALS LLC | | | $180,000.00 | 59509 | 4570687 |
| 3 | 08/16/2013 | QCD | Quit Claim Deed | STANDAERT, LUCAS | STARR, DOROTHY | | | $0.00 | 59508 | 4570686 |
| 4 | 04/01/2011 | BARGSLD | Bargain And Sale Deed | FEDERAL NATIONAL MORTGAGE ASSOCIATION | STANDAERT, LUCAS | | | $0.00 | 4076 | 4293386 |
| 5 | 01/28/2010 | TRUSTEED | Trustee's Deed | MCDONALD, JONATHAN M | FEDERAL NATIONAL MORTGAGE ASSO | | | $75,718.00 | 230 | 4267952 |
| 6 | 07/07/2000 | ESTSEPPROP | Establish Separate Property | STRACK, JANNE | STRACK, JANNE | | | $0.00 | 2562 | 20012162 |
| 7 | 07/06/2000 | WD | Warranty Deed | STRACK, JANNE | MCDONALD, JONATHAN M | | | $47,500.00 | 2563 | 20012163 |
| 8 | 03/19/1999 | OTHER | Other - Misc. Documents | OSZMAN, ARTHUR J | STRACK, JANNE | | | $0.00 | 68198 | 99001987 |
| 9 | 02/01/1990 | QCD | Quit Claim Deed | OSZMAN, ARTHUR J | OSZMAN, ARTHUR J | | | $0.00 | 1056 | 90003478 |
| 10 | 08/01/1981 | EXECUTORD | Executor Deed | DUNCAN, JAMES L | OSZMAN, ARTHUR J | | | $3,250.00 | 12485 | 386658 |
| 11 | 01/01/1900 | OTHER | Other - Misc. Documents | Unknown | DUNCAN, JAMES L | | | $0.00 | 0 | 0 |
Payout Agreement
| No payout information available.. |