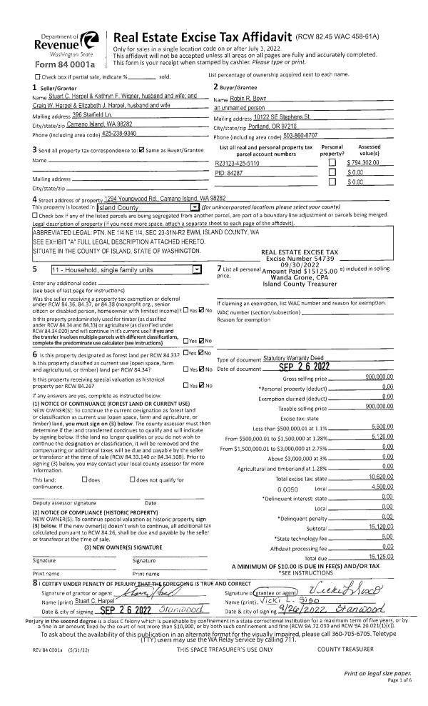
Property
Account |
| Property ID: | 716764 | Abbreviated Legal Description: | BEACHWOOD 1 LOT 3 BLK D |
| Geographic ID: | S6105-00-0D003-0 | Agent Code: | |
| Type: | Real | | |
| Tax Area: | 710 - APPRAISER-S Whid Schl Dist, outside Langley, improved & 1 acre or less | Land Use Code | 11 |
| Open Space: | N | DFL | N |
| Historic Property: | N | Remodel Property: | N |
| Multi-Family Redevelopment: | N | | |
| Township: | | Section: | |
| Range: | |
Location |
| Address: | 4317 HERRING ST LANGLEY, WA 98260 | Mapsco: | |
| Neighborhood: | Cycle 4 | Map ID: | 719 |
| Neighborhood CD: | 4 |
Owner |
| Name: | ARMATIS, KARA | Owner ID: | 301323 |
| Mailing Address: | 4317 HERRING ST LANGLEY, WA 98260 | % Ownership: | 100.0000000000% |
| | | Exemptions: | |
Taxes and Assessment Details
Values
| (+) Improvement Homesite Value: | + | $214,877 | |
| (+) Improvement Non-Homesite Value: | + | $0 | |
| (+) Land Homesite Value: | + | $230,000 | |
| (+) Land Non-Homesite Value: | + | $0 | |
| (+) Curr Use (HS): | + | $0 | $0 |
| (+) Curr Use (NHS): | + | $0 | $0 |
| | | -------------------------- | |
| (=) Market Value: | = | $444,877 | |
| (–) Productivity Loss: | – | $0 | |
| | | -------------------------- | |
| (=) Subtotal: | = | $444,877 | |
| (+) Senior Appraised Value: | + | $0 | |
| (+) Non-Senior Appraised Value: | + | $444,877 | |
| | | -------------------------- | |
| (=) Total Appraised Value: | = | $444,877 | |
| (–) Senior Exemption Loss: | – | $0 | |
| (–) Exemption Loss: | – | $0 | |
| | | -------------------------- | |
| (=) Taxable Value: | = | $444,877 | |
Taxing Jurisdiction
| Owner: | ARMATIS, KARA | | |
| % Ownership: | 100.0000000000% | | |
| Total Value: | $444,877 | | |
| Tax Area: | 710 - APPRAISER-S Whid Schl Dist, outside Langley, improved & 1 acre or less |
| CF | Conservation Futures | 0.0316035091 | $444,877 | $444,877 | $14.06 | | |
| FIRE3 | Fire & Rescue Dist #3 S Whidbey GEN | 1.2004855531 | $444,877 | $444,877 | $534.07 | | |
| HOBOND | Hospital BOND | 0.1910887512 | $444,877 | $444,877 | $85.01 | | |
| HOGEN | Hospital GEN | 0.3902502903 | $444,877 | $444,877 | $173.61 | | |
| CE | County Current Expense | 0.3708482477 | $444,877 | $444,877 | $164.98 | | |
| CR | County Roads | 0.4584763726 | $444,877 | $444,877 | $203.97 | | |
| ISLANDEMS | Hospital GEN (EMS) | 0.5000000000 | $444,877 | $444,877 | $222.44 | | |
| LIB | Library Sno-Isle GEN | 0.3153421757 | $444,877 | $444,877 | $140.29 | | |
| PORTWHID | Port of S Whidbey GEN | 0.1094540357 | $444,877 | $444,877 | $48.69 | | |
| SCH206BOND | School 206 BOND | 0.3161759235 | $444,877 | $444,877 | $140.66 | | |
| SCH206MO | School 206 Enrichment | 0.4547169547 | $444,877 | $444,877 | $202.29 | | |
| ST | State School | 1.3035497053 | $444,877 | $444,877 | $579.92 | | |
| ST2 | State School Part 2 | 0.8169543533 | $444,877 | $444,877 | $363.44 | | |
| SWHIDPRBD | P & R S Whidbey BOND | 0.0152817568 | $444,877 | $444,877 | $6.80 | | |
| SWHIDPRBD2 | P & R S Whidbey BOND2 | 0.0138911264 | $444,877 | $444,877 | $6.18 | | |
| SWHIDPRMT | P & R S Whidbey GEN | 0.2053334452 | $444,877 | $444,877 | $91.35 | | |
| | Total Tax Rate: | 6.6934522006 | | | | | |
| | | | | Taxes w/Current Exemptions: | $2,977.76 | | |
| | | | | Taxes w/o Exemptions: | $2,977.76 | | |
Improvement / Building
| Improvement #1: | RESIDENTIAL | State Code: | Y | 960.0 sqft | Value: | $214,877 |
| Bathrooms: | 1 | Bedrooms: | 3 | | Ceiling: | DRY WALL SPRAYED | Cooling: | HEAT PUMP/CONV/V | | Exterior Wall/Cover: | PLY/HARDBOARD T-111 | Floor Covering: | CARPET/VINYL 60-40 | | Floor Structure: | WOOD W/SUBFLOOR | Foundation: | CONCRETE | | Interior Finish: | DRYWALL PAINT | Plumbing Fixture Cnt: | 6 | | Roof Slope: | 4" IN 12" | Roof Structure/Cover: | CJ ASPHALT |
|
| | Type | Description | Class CD | Sub Class CD | Year Built | Area |
| | BAS | BASE/MAIN FLOOR | 3 | 0 | 1972 | 960.0 |
| | OP3 | OPEN PORCH W/ROOF | 3 | 0 | 1972 | 60.0 |
| | AGR | ATTACHED GARAGE | 3 | 0 | 1972 | 288.0 |
Sketch
Property Image
Land
| 1 | 14 | SQ (08001-12000) | 0.2319 | 10101.56 | 0.00 | 0.00 | 1.00 | $230,000 | $0 |
Roll Value History
| 2026 | N/A | N/A | N/A | N/A | N/A |
| 2025 | $214,877 | $230,000 | $0 | $444,877 | $444,877 |
| 2024 | $216,533 | $215,000 | $0 | $431,533 | $431,533 |
| 2023 | $218,309 | $230,000 | $0 | $448,309 | $448,309 |
| 2022 | $199,291 | $210,000 | $0 | $409,291 | $409,291 |
| 2021 | $151,495 | $150,000 | $0 | $301,495 | $301,495 |
| 2020 | $110,997 | $135,000 | $0 | $245,997 | $245,997 |
| 2019 | $78,761 | $170,000 | $0 | $248,761 | $248,761 |
| 2018 | $79,037 | $130,000 | $0 | $209,037 | $209,037 |
| 2017 | $79,590 | $100,000 | $0 | $179,590 | $179,590 |
| 2016 | $80,696 | $60,000 | $0 | $140,696 | $140,696 |
| 2015 | $81,801 | $50,000 | $0 | $131,801 | $16,452 |
| 2014 | $63,321 | $50,000 | $0 | $113,321 | $16,452 |
| 2013 | $64,427 | $50,000 | $0 | $114,427 | $16,452 |
| 2012 | $65,531 | $81,000 | $0 | $146,531 | $16,452 |
| 2011 | $66,637 | $90,000 | $0 | $156,637 | $16,452 |
| 2010 | $71,884 | $90,000 | $0 | $161,884 | $16,452 |
| 2009 | $75,336 | $99,865 | $0 | $175,201 | $16,451 |
| 2008 | $76,382 | $124,622 | $0 | $201,004 | $16,451 |
| 2007 | $76,805 | $125,314 | $0 | $202,119 | $16,451 |
Deed and Sales History
| 1 | 09/22/2021 | WD | Warranty Deed | JOHNSON, LESLIE | ARMATIS, KARA | | | $441,990.00 | 50186 | 4529999 |
| 2 | 09/22/2021 | WD | Warranty Deed | JOHNSON, LESLIE | ARMATIS, KARA | | | $441,990.00 | 50194 | 4529999 |
| 3 | 11/04/2020 | WD | Warranty Deed | SUNDOWN, STEPHEN | JOHNSON, LESLIE | | | $380,000.00 | 45581 | 4501641 |
| 4 | 05/28/2020 | BARGSLD | Bargain And Sale Deed | FEDERAL NATIONAL MORTGAGE ASSOCIATION | SUNDOWN, STEPHEN | | | $0.00 | 43157 | 4487656 |
| 5 | 09/04/2019 | WD | Warranty Deed | CIT BANK NA | FEDERAL NATIONAL MORTGAGE ASSOCIATION | | | $0.00 | 40364 | 4471782 |
| 6 | 09/10/2019 | SHERIFFD | Sheriff Deed | CARPENTER, NANCY J | CIT BANK NA | | | $0.00 | 40301 | 4471524 |
| 7 | 11/01/1992 | OTHER | Other - Misc. Documents | CARPENTER, JOHN R | CARPENTER, NANCY J | | | $0.00 | 65113 | 94020368 |
| 8 | 04/01/1987 | QCD | Quit Claim Deed | CARPENTER, JOHN R | CARPENTER, JOHN R | | | $0.00 | 71463 | 87007021 |
| 9 | 04/01/1987 | QCD | Quit Claim Deed | CARPENTER, JOHN R | CARPENTER, JOHN R | | | $0.00 | 71464 | 87007022 |
| 10 | 01/01/1900 | OTHER | Other - Misc. Documents | Unknown | CARPENTER, JOHN R | | | $0.00 | 0 | 0 |
Payout Agreement
| No payout information available.. |