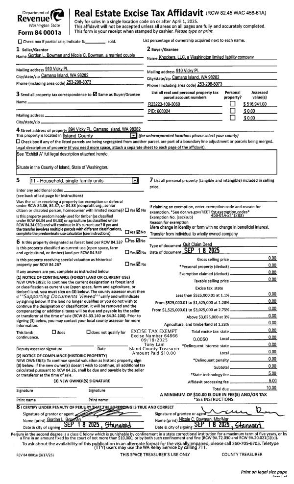
Property
Account |
| Property ID: | 716899 | Abbreviated Legal Description: | 1990 GLENRIVER 26X66 VIN# GR3574XY TPO @002912 |
| Geographic ID: | M91850000010-1 | Agent Code: | |
| Type: | Mobile Home | | |
| Tax Area: | 710 - APPRAISER-S Whid Schl Dist, outside Langley, improved & 1 acre or less | Land Use Code | 11 |
| Open Space: | N | DFL | N |
| Historic Property: | N | Remodel Property: | N |
| Multi-Family Redevelopment: | N | | |
| Township: | | Section: | |
| Range: | |
Location |
| Address: | 4992 WHEEL DR LANGLEY, WA 98260 | Mapsco: | |
| Neighborhood: | Cycle 4 | Map ID: | 735 |
| Neighborhood CD: | 4 |
Owner |
| Name: | GONZALEZ, ALICIA ANN | Owner ID: | 315842 |
| Mailing Address: | ANTOINETTE WILLIAMS 4992 WHEEL DR LANGLEY, WA 98260 | % Ownership: | 100.0000000000% |
| | | Exemptions: | |
Taxes and Assessment Details
Values
| (+) Improvement Homesite Value: | + | $0 | |
| (+) Improvement Non-Homesite Value: | + | $227,865 | |
| (+) Land Homesite Value: | + | $0 | |
| (+) Land Non-Homesite Value: | + | $0 | |
| (+) Curr Use (HS): | + | $0 | $0 |
| (+) Curr Use (NHS): | + | $0 | $0 |
| | | -------------------------- | |
| (=) Market Value: | = | $227,865 | |
| (–) Productivity Loss: | – | $0 | |
| | | -------------------------- | |
| (=) Subtotal: | = | $227,865 | |
| (+) Senior Appraised Value: | + | $0 | |
| (+) Non-Senior Appraised Value: | + | $227,865 | |
| | | -------------------------- | |
| (=) Total Appraised Value: | = | $227,865 | |
| (–) Senior Exemption Loss: | – | $0 | |
| (–) Exemption Loss: | – | $0 | |
| | | -------------------------- | |
| (=) Taxable Value: | = | $227,865 | |
Taxing Jurisdiction
| Owner: | GONZALEZ, ALICIA ANN | | |
| % Ownership: | 100.0000000000% | | |
| Total Value: | $227,865 | | |
| Tax Area: | 710 - APPRAISER-S Whid Schl Dist, outside Langley, improved & 1 acre or less |
| CF | Conservation Futures | 0.0316035091 | $227,865 | $227,865 | $7.20 | | |
| FIRE3 | Fire & Rescue Dist #3 S Whidbey GEN | 1.2004855531 | $227,865 | $227,865 | $273.55 | | |
| HOBOND | Hospital BOND | 0.1910887512 | $227,865 | $227,865 | $43.54 | | |
| HOGEN | Hospital GEN | 0.3902502903 | $227,865 | $227,865 | $88.92 | | |
| CE | County Current Expense | 0.3708482477 | $227,865 | $227,865 | $84.50 | | |
| CR | County Roads | 0.4584763726 | $227,865 | $227,865 | $104.47 | | |
| ISLANDEMS | Hospital GEN (EMS) | 0.5000000000 | $227,865 | $227,865 | $113.93 | | |
| LIB | Library Sno-Isle GEN | 0.3153421757 | $227,865 | $227,865 | $71.86 | | |
| PORTWHID | Port of S Whidbey GEN | 0.1094540357 | $227,865 | $227,865 | $24.94 | | |
| SCH206BOND | School 206 BOND | 0.3161759235 | $227,865 | $227,865 | $72.05 | | |
| SCH206MO | School 206 Enrichment | 0.4547169547 | $227,865 | $227,865 | $103.61 | | |
| ST | State School | 1.3035497053 | $227,865 | $227,865 | $297.03 | | |
| ST2 | State School Part 2 | 0.8169543533 | $227,865 | $227,865 | $186.16 | | |
| SWHIDPRBD | P & R S Whidbey BOND | 0.0152817568 | $227,865 | $227,865 | $3.48 | | |
| SWHIDPRBD2 | P & R S Whidbey BOND2 | 0.0138911264 | $227,865 | $227,865 | $3.17 | | |
| SWHIDPRMT | P & R S Whidbey GEN | 0.2053334452 | $227,865 | $227,865 | $46.79 | | |
| | Total Tax Rate: | 6.6934522006 | | | | | |
| | | | | Taxes w/Current Exemptions: | $1,525.20 | | |
| | | | | Taxes w/o Exemptions: | $1,525.20 | | |
Improvement / Building
| Improvement #1: | MANUFACTURED HOME | State Code: | Y | 2016.0 sqft | Value: | $227,865 |
| Bathrooms: | 0 | Bedrooms: | 0 | | Ceiling: | PLASTER PAINTED | Cooling: | EVAP NO DUCT | | Exterior Wall/Cover: | VINYL | Floor Covering: | CARPET 100% | | Floor Structure: | SLAB ON GRADE | Foundation: | SLAB | | Heating: | FHA ELECTRIC | Interior Finish: | PLASTER | | Plumbing Fixture Cnt: | 1 | Roof Slope: | FLAT | | Roof Structure/Cover: | CJ ALUMINIUM HEAVY |   |   |
|
| | Type | Description | Class CD | Sub Class CD | Year Built | Area |
| | BAS | BASE/MAIN FLOOR | 4 | 0 | 1990 | 2016.0 |
| | OWR | OPEN WOOD PORCH W/STEPS/ROOF | 4 | 0 | 1990 | 40.0 |
| | OCP | OPEN CARPORT | 4 | 0 | 1990 | 216.0 |
| | OWP | OPEN WOOD PORCH W/STEPS | 4 | 0 | 1990 | 224.0 |
Sketch
| No sketches available for this property. |
Property Image
Land
No land segments exist for this property.
Roll Value History
| 2026 | N/A | N/A | N/A | N/A | N/A |
| 2025 | $227,865 | $0 | $0 | $227,865 | $227,865 |
| 2024 | $166,293 | $0 | $0 | $166,293 | $166,293 |
| 2023 | $97,974 | $0 | $0 | $97,974 | $97,974 |
| 2022 | $91,667 | $0 | $0 | $91,667 | $91,667 |
| 2021 | $82,291 | $0 | $0 | $82,291 | $82,291 |
| 2020 | $71,144 | $0 | $0 | $71,144 | $71,144 |
| 2019 | $58,996 | $0 | $0 | $58,996 | $58,996 |
| 2018 | $60,962 | $0 | $0 | $60,962 | $60,962 |
| 2017 | $58,128 | $0 | $0 | $58,128 | $58,128 |
| 2016 | $59,944 | $0 | $0 | $59,944 | $59,944 |
| 2015 | $61,760 | $0 | $0 | $61,760 | $61,760 |
| 2014 | $72,726 | $0 | $0 | $72,726 | $72,726 |
| 2013 | $74,483 | $0 | $0 | $74,483 | $74,483 |
| 2012 | $76,239 | $0 | $0 | $76,239 | $76,239 |
| 2011 | $77,996 | $0 | $0 | $77,996 | $77,996 |
| 2010 | $79,710 | $0 | $0 | $79,710 | $79,710 |
| 2009 | $83,317 | $0 | $0 | $83,317 | $83,317 |
| 2008 | $85,723 | $0 | $0 | $85,723 | $85,723 |
| 2007 | $69,022 | $0 | $0 | $69,022 | $69,022 |
Deed and Sales History
| 1 | 03/20/2025 | MANHOME | Manufactured Home | WADE, AMY | GONZALEZ, ALICIA ANN | | | $268,000.00 | 62853 | |
| 2 | 10/23/2023 | MANHOME | Manufactured Home | NYERGES IRREVOCABLE FAMILY TRUST | WADE, AMY | | | $206,500.00 | 58300 | |
| 3 | 05/27/2016 | MANHOME | Manufactured Home | NYERGES, GILBERT A | NYERGES IRREVOCABLE FAMILY TRUST | | | $0.00 | 24460 | |
| 4 | 11/29/2004 | OTHER | Other - Misc. Documents | MELBY, EMMALEA | NYERGES, GILBERT A | | | $77,000.00 | 45552 | 0 |
| 5 | 01/01/1990 | OTHER | Other - Misc. Documents | Unknown | MELBY, EMMALEA | | | $53,765.00 | 11111111 | 0 |
Payout Agreement
| No payout information available.. |