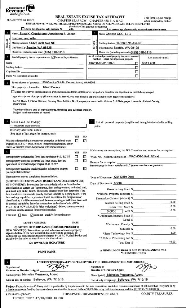
Property
Account |
| Property ID: | 716906 | Abbreviated Legal Description: | 1976 MANSFIELD 24X40 VIN# 266176 TPO @89725 FROM K-453592 |
| Geographic ID: | M918500000160 | Agent Code: | |
| Type: | Mobile Home | | |
| Tax Area: | 710 - APPRAISER-S Whid Schl Dist, outside Langley, improved & 1 acre or less | Land Use Code | 11 |
| Open Space: | N | DFL | N |
| Historic Property: | N | Remodel Property: | N |
| Multi-Family Redevelopment: | N | | |
| Township: | | Section: | |
| Range: | |
Location |
| Address: | 4976 CARLIE DR LANGLEY, WA 98260 | Mapsco: | |
| Neighborhood: | Cycle 4 | Map ID: | 735 |
| Neighborhood CD: | 4 |
Owner |
| Name: | RICHARDSON, LOUISE | Owner ID: | 285821 |
| Mailing Address: | 4976 CARLIE DR LANGLEY, WA 98260 | % Ownership: | 100.0000000000% |
| | | Exemptions: | SNR/DSBL |
Taxes and Assessment Details
Values
| (+) Improvement Homesite Value: | + | $117,704 | |
| (+) Improvement Non-Homesite Value: | + | $0 | |
| (+) Land Homesite Value: | + | $0 | |
| (+) Land Non-Homesite Value: | + | $0 | |
| (+) Curr Use (HS): | + | $0 | $0 |
| (+) Curr Use (NHS): | + | $0 | $0 |
| | | -------------------------- | |
| (=) Market Value: | = | $117,704 | |
| (–) Productivity Loss: | – | $0 | |
| | | -------------------------- | |
| (=) Subtotal: | = | $117,704 | |
| (+) Senior Appraised Value: | + | $62,962 | |
| (+) Non-Senior Appraised Value: | + | $0 | |
| | | -------------------------- | |
| (=) Total Appraised Value: | = | $62,962 | |
| (–) Senior Exemption Loss: | – | $50,000 | |
| (–) Exemption Loss: | – | $0 | |
| | | -------------------------- | |
| (=) Taxable Value: | = | $12,962 | |
Taxing Jurisdiction
| Owner: | RICHARDSON, LOUISE | | |
| % Ownership: | 100.0000000000% | | |
| Total Value: | $117,704 | | |
| Tax Area: | 710 - APPRAISER-S Whid Schl Dist, outside Langley, improved & 1 acre or less |
| CF | Conservation Futures | 0.0316035091 | $117,704 | $12,962 | $0.41 | | |
| FIRE3 | Fire & Rescue Dist #3 S Whidbey GEN | 1.2004855531 | $117,704 | $12,962 | $15.56 | | |
| HOBOND | Hospital BOND | 0.0000000000 | $117,704 | $0 | $0.00 | | |
| HOGEN | Hospital GEN | 0.3902502903 | $117,704 | $12,962 | $5.06 | | |
| CE | County Current Expense | 0.3708482477 | $117,704 | $12,962 | $4.81 | | |
| CR | County Roads | 0.4584763726 | $117,704 | $12,962 | $5.94 | | |
| ISLANDEMS | Hospital GEN (EMS) | 0.5000000000 | $117,704 | $12,962 | $6.48 | | |
| LIB | Library Sno-Isle GEN | 0.3153421757 | $117,704 | $12,962 | $4.09 | | |
| PORTWHID | Port of S Whidbey GEN | 0.1094540357 | $117,704 | $12,962 | $1.42 | | |
| SCH206BOND | School 206 BOND | 0.3161759235 | $117,704 | $12,962 | $4.10 | | |
| SCH206MO | School 206 Enrichment | 0.0000000000 | $117,704 | $0 | $0.00 | | |
| ST | State School | 1.3035497053 | $117,704 | $12,962 | $16.90 | | |
| ST2 | State School Part 2 | 0.0000000000 | $117,704 | $0 | $0.00 | | |
| SWHIDPRBD | P & R S Whidbey BOND | 0.0000000000 | $117,704 | $0 | $0.00 | | |
| SWHIDPRBD2 | P & R S Whidbey BOND2 | 0.0000000000 | $117,704 | $0 | $0.00 | | |
| SWHIDPRMT | P & R S Whidbey GEN | 0.2053334452 | $117,704 | $12,962 | $2.66 | | |
| | Total Tax Rate: | 5.2015192582 | | | | | |
| | | | | Taxes w/Current Exemptions: | $67.43 | | |
| | | | | Taxes w/o Exemptions: | $787.84 | | |
Improvement / Building
| Improvement #1: | MANUFACTURED HOME | State Code: | Y | 960.0 sqft | Value: | $117,704 |
| Bathrooms: | 0 | Bedrooms: | 0 | | Ceiling: | PLASTER PAINTED | Cooling: | EVAP NO DUCT | | Exterior Wall/Cover: | VINYL | Floor Covering: | CARPET 100% | | Floor Structure: | SLAB ON GRADE | Foundation: | SLAB | | Heating: | FHA ELECTRIC | Interior Finish: | PLASTER | | Plumbing Fixture Cnt: | 1 | Roof Slope: | FLAT | | Roof Structure/Cover: | CJ ALUMINIUM HEAVY |   |   |
|
| | Type | Description | Class CD | Sub Class CD | Year Built | Area |
| | BAS | BASE/MAIN FLOOR | 4 | 0 | 1976 | 960.0 |
| | OWR | OPEN WOOD PORCH W/STEPS/ROOF | 4 | 0 | 1976 | 96.0 |
| | OCP | OPEN CARPORT | 4 | 0 | 1976 | 288.0 |
| | UTY | STORAGE/UTILITY | 4 | 0 | 1976 | 80.0 |
Sketch
Property Image
Land
No land segments exist for this property.
Roll Value History
| 2026 | N/A | N/A | N/A | N/A | N/A |
| 2025 | $117,704 | $0 | $0 | $117,704 | $12,962 |
| 2024 | $121,165 | $0 | $0 | $121,165 | $12,962 |
| 2023 | $76,767 | $0 | $0 | $76,767 | $2,962 |
| 2022 | $70,479 | $0 | $0 | $70,479 | $2,962 |
| 2021 | $62,962 | $0 | $0 | $62,962 | $62,962 |
| 2020 | $53,791 | $0 | $0 | $53,791 | $53,791 |
| 2019 | $43,654 | $0 | $0 | $43,654 | $43,654 |
| 2018 | $39,802 | $0 | $0 | $39,802 | $39,802 |
| 2017 | $41,085 | $0 | $0 | $41,085 | $0 |
| 2016 | $42,369 | $0 | $0 | $42,369 | $0 |
| 2015 | $43,654 | $0 | $0 | $43,654 | $0 |
| 2014 | $22,246 | $0 | $0 | $22,246 | $0 |
| 2013 | $23,795 | $0 | $0 | $23,795 | $23,795 |
| 2012 | $25,166 | $0 | $0 | $25,166 | $25,166 |
| 2011 | $27,223 | $0 | $0 | $27,223 | $27,223 |
| 2010 | $29,037 | $0 | $0 | $29,037 | $29,037 |
| 2009 | $31,006 | $0 | $0 | $31,006 | $31,006 |
| 2008 | $31,558 | $0 | $0 | $31,558 | $31,558 |
| 2007 | $23,662 | $0 | $0 | $23,662 | $23,662 |
Deed and Sales History
| 1 | 06/26/2018 | MANHOME | Manufactured Home | LYONS, DOMINIC D | RICHARDSON, LOUISE | | | $70,000.00 | 34683 | |
| 2 | 04/09/2014 | OTHER | Other - Misc. Documents | ROSZELL, LAWRENCE E | LYONS, DOMINIC D | | | $29,900.00 | 15131 | |
| 3 | 01/19/2011 | OTHER | Other - Misc. Documents | JIM E KAY | ROSZELL, LAWRENCE E | | | $45,000.00 | 3401 | |
| 4 | 12/20/2010 | OTHER | Other - Misc. Documents | KAY, LOIS E | JIM E KAY | | | $31,006.00 | 3165 | |
| 5 | 08/03/2000 | OTHER | Other - Misc. Documents | BRADY, DORIS M | KAY, LOIS E | | | $30,500.00 | 2891 | 0 |
| 6 | 01/01/1900 | OTHER | Other - Misc. Documents | Unknown | BRADY, DORIS M | | | $0.00 | 0 | 0 |
Payout Agreement
| No payout information available.. |