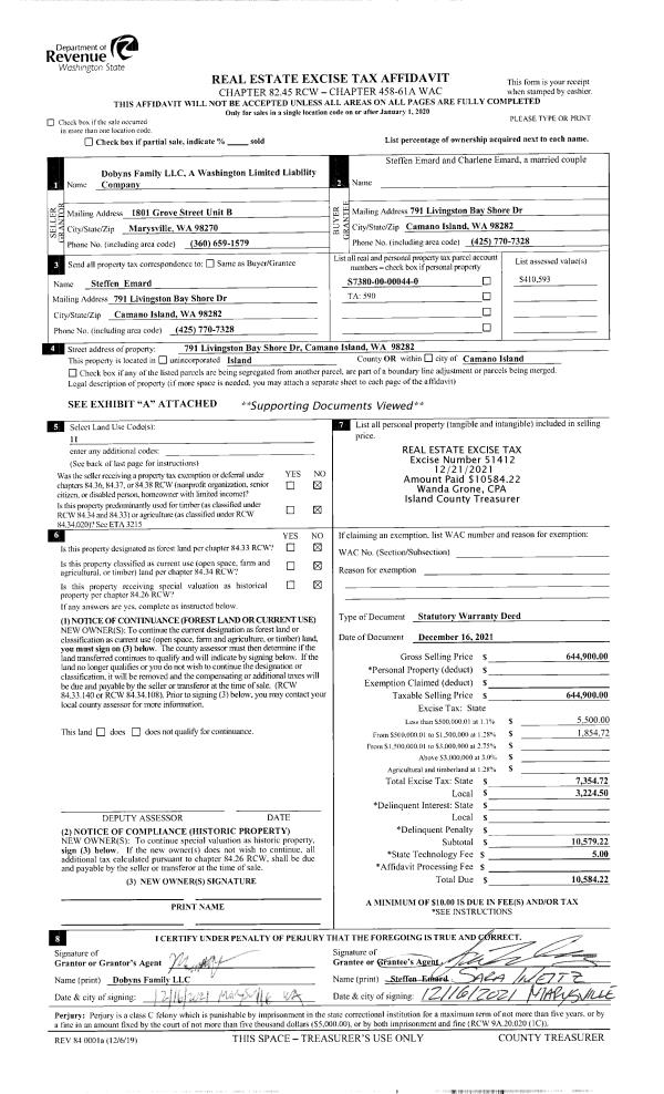
Property
Account |
| Property ID: | 717077 | Abbreviated Legal Description: | 1988 SEQUIOA 27X56 VIN# 168314675AB TPO &93945 |
| Geographic ID: | M918500000400 | Agent Code: | |
| Type: | Mobile Home | | |
| Tax Area: | 710 - APPRAISER-S Whid Schl Dist, outside Langley, improved & 1 acre or less | Land Use Code | 11 |
| Open Space: | N | DFL | N |
| Historic Property: | N | Remodel Property: | N |
| Multi-Family Redevelopment: | N | | |
| Township: | | Section: | |
| Range: | |
Location |
| Address: | 4935 CARLIE DR LANGLEY, WA 98260 | Mapsco: | |
| Neighborhood: | Cycle 4 | Map ID: | 735 |
| Neighborhood CD: | 4 |
Owner |
| Name: | EDWARDS, BRENDA A | Owner ID: | 299939 |
| Mailing Address: | 4935 CARLIE DR LANGLEY, WA 98260 | % Ownership: | 100.0000000000% |
| | | Exemptions: | |
Taxes and Assessment Details
Values
| (+) Improvement Homesite Value: | + | $0 | |
| (+) Improvement Non-Homesite Value: | + | $89,852 | |
| (+) Land Homesite Value: | + | $0 | |
| (+) Land Non-Homesite Value: | + | $0 | |
| (+) Curr Use (HS): | + | $0 | $0 |
| (+) Curr Use (NHS): | + | $0 | $0 |
| | | -------------------------- | |
| (=) Market Value: | = | $89,852 | |
| (–) Productivity Loss: | – | $0 | |
| | | -------------------------- | |
| (=) Subtotal: | = | $89,852 | |
| (+) Senior Appraised Value: | + | $0 | |
| (+) Non-Senior Appraised Value: | + | $89,852 | |
| | | -------------------------- | |
| (=) Total Appraised Value: | = | $89,852 | |
| (–) Senior Exemption Loss: | – | $0 | |
| (–) Exemption Loss: | – | $0 | |
| | | -------------------------- | |
| (=) Taxable Value: | = | $89,852 | |
Taxing Jurisdiction
| Owner: | EDWARDS, BRENDA A | | |
| % Ownership: | 100.0000000000% | | |
| Total Value: | $89,852 | | |
| Tax Area: | 710 - APPRAISER-S Whid Schl Dist, outside Langley, improved & 1 acre or less |
| CF | Conservation Futures | 0.0316035091 | $89,852 | $89,852 | $2.84 | | |
| FIRE3 | Fire & Rescue Dist #3 S Whidbey GEN | 1.2004855531 | $89,852 | $89,852 | $107.87 | | |
| HOBOND | Hospital BOND | 0.1910887512 | $89,852 | $89,852 | $17.17 | | |
| HOGEN | Hospital GEN | 0.3902502903 | $89,852 | $89,852 | $35.06 | | |
| CE | County Current Expense | 0.3708482477 | $89,852 | $89,852 | $33.32 | | |
| CR | County Roads | 0.4584763726 | $89,852 | $89,852 | $41.20 | | |
| ISLANDEMS | Hospital GEN (EMS) | 0.5000000000 | $89,852 | $89,852 | $44.93 | | |
| LIB | Library Sno-Isle GEN | 0.3153421757 | $89,852 | $89,852 | $28.33 | | |
| PORTWHID | Port of S Whidbey GEN | 0.1094540357 | $89,852 | $89,852 | $9.83 | | |
| SCH206BOND | School 206 BOND | 0.3161759235 | $89,852 | $89,852 | $28.41 | | |
| SCH206MO | School 206 Enrichment | 0.4547169547 | $89,852 | $89,852 | $40.86 | | |
| ST | State School | 1.3035497053 | $89,852 | $89,852 | $117.13 | | |
| ST2 | State School Part 2 | 0.8169543533 | $89,852 | $89,852 | $73.40 | | |
| SWHIDPRBD | P & R S Whidbey BOND | 0.0152817568 | $89,852 | $89,852 | $1.37 | | |
| SWHIDPRBD2 | P & R S Whidbey BOND2 | 0.0138911264 | $89,852 | $89,852 | $1.25 | | |
| SWHIDPRMT | P & R S Whidbey GEN | 0.2053334452 | $89,852 | $89,852 | $18.45 | | |
| | Total Tax Rate: | 6.6934522006 | | | | | |
| | | | | Taxes w/Current Exemptions: | $601.42 | | |
| | | | | Taxes w/o Exemptions: | $601.42 | | |
Improvement / Building
| Improvement #1: | MANUFACTURED HOME | State Code: | Y | 1512.0 sqft | Value: | $89,852 |
| Bathrooms: | 2 | Bedrooms: | 3 | | Ceiling: | PLASTER PAINTED | Cooling: | EVAP NO DUCT | | Exterior Wall/Cover: | VINYL | Floor Covering: | CARPET 100% | | Floor Structure: | SLAB ON GRADE | Foundation: | SLAB | | Heating: | FHA ELECTRIC | Interior Finish: | PLASTER | | Plumbing Fixture Cnt: | 1 | Roof Slope: | FLAT | | Roof Structure/Cover: | CJ ALUMINIUM HEAVY |   |   |
|
| | Type | Description | Class CD | Sub Class CD | Year Built | Area |
| | BAS | BASE/MAIN FLOOR | 3 | 0 | 1988 | 1512.0 |
| | UTY | STORAGE/UTILITY | 3 | 0 | 1988 | 96.0 |
| | OCP | OPEN CARPORT | 3 | 0 | 1988 | 420.0 |
| | OWP | OPEN WOOD PORCH W/STEPS | 3 | 0 | 1988 | 128.0 |
Sketch
Property Image
Land
No land segments exist for this property.
Roll Value History
| 2026 | N/A | N/A | N/A | N/A | N/A |
| 2025 | $89,852 | $0 | $0 | $89,852 | $89,852 |
| 2024 | $93,119 | $0 | $0 | $93,119 | $93,119 |
| 2023 | $69,431 | $0 | $0 | $69,431 | $69,431 |
| 2022 | $64,969 | $0 | $0 | $64,969 | $64,969 |
| 2021 | $58,314 | $0 | $0 | $58,314 | $58,314 |
| 2020 | $46,883 | $0 | $0 | $46,883 | $46,883 |
| 2019 | $38,327 | $0 | $0 | $38,327 | $38,327 |
| 2018 | $39,720 | $0 | $0 | $39,720 | $39,720 |
| 2017 | $41,811 | $0 | $0 | $41,811 | $41,811 |
| 2016 | $43,206 | $0 | $0 | $43,206 | $43,206 |
| 2015 | $44,599 | $0 | $0 | $44,599 | $44,599 |
| 2014 | $34,353 | $0 | $0 | $34,353 | $34,353 |
| 2013 | $35,403 | $0 | $0 | $35,403 | $35,403 |
| 2012 | $36,452 | $0 | $0 | $36,452 | $36,452 |
| 2011 | $37,502 | $0 | $0 | $37,502 | $37,502 |
| 2010 | $38,860 | $0 | $0 | $38,860 | $38,860 |
| 2009 | $40,764 | $0 | $0 | $40,764 | $40,764 |
| 2008 | $42,232 | $0 | $0 | $42,232 | $42,232 |
| 2007 | $32,127 | $0 | $0 | $32,127 | $32,127 |
Deed and Sales History
| 1 | 06/25/2021 | MANHOME | Manufactured Home | BELL, JEFFERY N | EDWARDS, BRENDA A | | | $125,000.00 | 48852 | |
| 2 | 11/03/2016 | MANHOME | Manufactured Home | BELL, ERNEST W | BELL, JEFFERY N | | | $0.00 | 26785 | |
| 3 | 05/12/2000 | OTHER | Other - Misc. Documents | Unknown | BELL, ERNEST W | | | $0.00 | 1734 | 0 |
| 4 | 04/24/2000 | OTHER | Other - Misc. Documents | BELL, ERNEST W | BELL, ERNEST W | | | $0.00 | 1441 | 0 |
| 5 | 09/01/1999 | OTHER | Other - Misc. Documents | BELL, ERNEST W | BELL, DOROTHY F | | | $0.00 | 93608 | 0 |
| 6 | 07/31/1998 | OTHER | Other - Misc. Documents | BELL, DOROTHY F | EMENS, PATRICIA M | | | $0.00 | 82971 | 0 |
Payout Agreement
| No payout information available.. |