Property
Account |
| Property ID: | 717228 | Abbreviated Legal Description: | BRETLANDS NLY 100' OF SLY 300' TR 7 BRETLANDS SECOND PLAT |
| Geographic ID: | S6165-00-07014-0 | Agent Code: | |
| Type: | Real | | |
| Tax Area: | 540 - APPRAISER-Stan/Cam Schl Dist, Special Dist, improved & less than 1 acre | Land Use Code | 11 |
| Open Space: | N | DFL | N |
| Historic Property: | N | Remodel Property: | N |
| Multi-Family Redevelopment: | N | | |
| Township: | | Section: | |
| Range: | |
Location |
| Address: | 2487 BRETLAND RD CAMANO ISLAND, WA 98282 | Mapsco: | |
| Neighborhood: | Cycle 5 | Map ID: | 854 |
| Neighborhood CD: | 5 |
Owner |
| Name: | FRANK, LINDSEY M | Owner ID: | 291378 |
| Mailing Address: | MARTIN B FRANK 2487 BRETLAND RD CAMANO ISLAND, WA 98282 | % Ownership: | 100.0000000000% |
| | | Exemptions: | |
Taxes and Assessment Details
Values
| (+) Improvement Homesite Value: | + | $0 | |
| (+) Improvement Non-Homesite Value: | + | $432,223 | |
| (+) Land Homesite Value: | + | $0 | |
| (+) Land Non-Homesite Value: | + | $576,000 | |
| (+) Curr Use (HS): | + | $0 | $0 |
| (+) Curr Use (NHS): | + | $0 | $0 |
| | | -------------------------- | |
| (=) Market Value: | = | $1,008,223 | |
| (–) Productivity Loss: | – | $0 | |
| | | -------------------------- | |
| (=) Subtotal: | = | $1,008,223 | |
| (+) Senior Appraised Value: | + | $0 | |
| (+) Non-Senior Appraised Value: | + | $1,008,223 | |
| | | -------------------------- | |
| (=) Total Appraised Value: | = | $1,008,223 | |
| (–) Senior Exemption Loss: | – | $0 | |
| (–) Exemption Loss: | – | $0 | |
| | | -------------------------- | |
| (=) Taxable Value: | = | $1,008,223 | |
Taxing Jurisdiction
| Owner: | FRANK, LINDSEY M | | |
| % Ownership: | 100.0000000000% | | |
| Total Value: | $1,008,223 | | |
| Tax Area: | 540 - APPRAISER-Stan/Cam Schl Dist, Special Dist, improved & less than 1 acre |
| CF | Conservation Futures | 0.0316035091 | $1,008,223 | $1,008,223 | $31.86 | | |
| EMS1 | Fire & Rescue Dist #1 Camano GEN (EMS) | 0.3677864386 | $1,008,223 | $1,008,223 | $370.81 | | |
| FIRE1 | Fire & Rescue Dist #1 Camano GEN | 1.2502910536 | $1,008,223 | $1,008,223 | $1,260.57 | | |
| FIRE1BOND | Fire & Rescue Dist #1 Camano BOND | 0.1570001679 | $1,008,223 | $1,008,223 | $158.29 | | |
| CE | County Current Expense | 0.3708482477 | $1,008,223 | $1,008,223 | $373.90 | | |
| CR | County Roads | 0.4584763726 | $1,008,223 | $1,008,223 | $462.25 | | |
| LCIB | Library Sno-Isle BOND (Camano Island) | 0.0396325772 | $1,008,223 | $1,008,223 | $39.96 | | |
| LIB | Library Sno-Isle GEN | 0.3153421757 | $1,008,223 | $1,008,223 | $317.94 | | |
| SCH205_401 | School 205-401 Enrichment | 1.2698420524 | $1,008,223 | $1,008,223 | $1,280.28 | | |
| SCH205BOND | School 205-401 BOND | 0.9396497583 | $1,008,223 | $1,008,223 | $947.38 | | |
| ST | State School | 1.3035497053 | $1,008,223 | $1,008,223 | $1,314.27 | | |
| ST2 | State School Part 2 | 0.8169543533 | $1,008,223 | $1,008,223 | $823.67 | | |
| | Total Tax Rate: | 7.3209764117 | | | | | |
| | | | | Taxes w/Current Exemptions: | $7,381.18 | | |
| | | | | Taxes w/o Exemptions: | $7,381.18 | | |
Improvement / Building
| Improvement #1: | RESIDENTIAL | State Code: | Y | 2424.0 sqft | Value: | $432,223 |
| Bathrooms: | 2 | Bedrooms: | 4 | | Ceiling: | BEAM PAINTED | Exterior Wall/Cover: | WOOD SIDING | | Floor Covering: | CARPET/VINYL 60-40 | Floor Structure: | WOOD W/SUBFLOOR | | Foundation: | CONCRETE | Heating: | WALL HEAT ELECTRIC | | Interior Finish: | DRYWALL PAINT | Plumbing Fixture Cnt: | 9 | | Roof Slope: | 3" IN 12" | Roof Structure/Cover: | BEAM ASPHALT |
|
| | Type | Description | Class CD | Sub Class CD | Year Built | Area |
| | BAS | BASE/MAIN FLOOR | 4 | 0 | 1968 | 1574.0 |
| | OWR | OPEN WOOD PORCH W/STEPS/ROOF | 4 | 0 | 1968 | 96.0 |
| | AGR | ATTACHED GARAGE | 4 | 0 | 1968 | 720.0 |
| | UTY | STORAGE/UTILITY | 4 | 0 | 1968 | 360.0 |
| | OWP | OPEN WOOD PORCH W/STEPS | 4 | 0 | 1968 | 161.0 |
| | UPH | HALF STORY | 4 | 0 | 1968 | 850.0 |
| | BAW | BALCONY WOOD RAIL | 4 | 0 | 1968 | 32.0 |
Sketch
Property Image
Land
| 1 | HB | HIGH BLUFF | 1.4348 | 62499.89 | 100.00 | 0.00 | 1.00 | $575,000 | $0 |
| 2 | 55 | TIDES | 0.0000 | 0.00 | 100.00 | 0.00 | 1.00 | $1,000 | $0 |
Roll Value History
| 2026 | N/A | N/A | N/A | N/A | N/A |
| 2025 | $432,223 | $576,000 | $0 | $1,008,223 | $1,008,223 |
| 2024 | $430,023 | $576,000 | $0 | $1,006,023 | $1,006,023 |
| 2023 | $424,620 | $551,000 | $0 | $975,620 | $975,620 |
| 2022 | $398,613 | $476,000 | $0 | $874,613 | $874,613 |
| 2021 | $321,292 | $426,000 | $0 | $747,292 | $747,292 |
| 2020 | $313,704 | $316,000 | $0 | $629,704 | $629,704 |
| 2019 | $157,526 | $326,000 | $0 | $483,526 | $483,526 |
| 2018 | $158,079 | $301,000 | $0 | $459,079 | $459,079 |
| 2017 | $158,457 | $251,000 | $0 | $409,457 | $409,457 |
| 2016 | $160,658 | $251,000 | $0 | $411,658 | $411,658 |
| 2015 | $138,534 | $251,000 | $0 | $389,534 | $389,534 |
| 2014 | $140,892 | $251,000 | $0 | $391,892 | $391,892 |
| 2013 | $143,249 | $201,000 | $0 | $344,249 | $344,249 |
| 2012 | $145,607 | $277,013 | $0 | $422,620 | $81,763 |
| 2011 | $147,967 | $346,016 | $0 | $493,983 | $81,763 |
| 2010 | $160,104 | $346,016 | $0 | $506,120 | $81,763 |
| 2009 | $167,246 | $371,985 | $0 | $539,231 | $81,763 |
| 2008 | $167,276 | $210,730 | $0 | $378,006 | $81,763 |
| 2007 | $169,646 | $210,030 | $0 | $379,676 | $81,763 |
Deed and Sales History
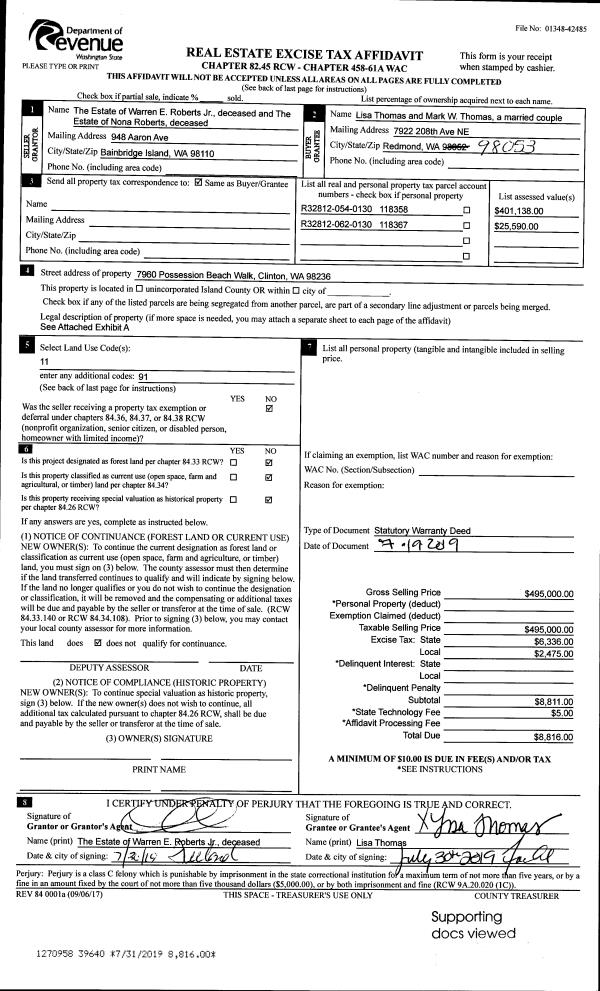
| 1 | 08/07/2019 | WD | Warranty Deed | COMSTOCK, KRISTY A | FRANK, LINDSEY M | | | $600,000.00 | 39898 | 4469509 |
| 2 | 02/11/2015 | SPWARDEED | Special Warranty Deed | CITIBANK N A | COMSTOCK, KRISTY A | | | $230,000.00 | 18521 | 4373468 |
| 3 | 01/22/2013 | TRUSTEED | Trustee's Deed | GEIBEL, MARIANNE | CITIBANK N A | | | $248,787.00 | 10239 | 4332195 |
| 4 | 05/29/2002 | QCD | Quit Claim Deed | Unknown | GEIBEL, MARIANNE | | | $0.00 | 22055 | 4021599 |
| 5 | 12/16/1998 | ESTSEPPROP | Establish Separate Property | GEIBEL, MARIANNE | GEIBEL, MARIANNE | | | $0.00 | 85177 | 98028340 |
Payout Agreement
| No payout information available.. |