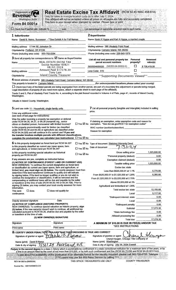
Property
Account |
| Property ID: | 717246 | Abbreviated Legal Description: | BRIGHTWATER CONDO APT 1 - 24% INT |
| Geographic ID: | S6182-00-00001-0 | Agent Code: | |
| Type: | Real | | |
| Tax Area: | 100 - APPRAISER-OH Schl Dist, in OH | Land Use Code | 14 |
| Open Space: | N | DFL | N |
| Historic Property: | N | Remodel Property: | N |
| Multi-Family Redevelopment: | N | | |
| Township: | | Section: | |
| Range: | |
Location |
| Address: | 1701 SE 9TH AVE APT 1 OAK HARBOR, WA 98277 | Mapsco: | |
| Neighborhood: | 13*OH-brightwater | Map ID: | 89 |
| Neighborhood CD: | 13*OHbrgtw |
Owner |
| Name: | STANFIELD, DAVID J | Owner ID: | 316138 |
| Mailing Address: | CHARLINE STANFIELD 1701 SOUTHEAST 9TH AVE, UNIT 101 OAK HARBOR, WA 98277 | % Ownership: | 100.0000000000% |
| | | Exemptions: | |
Taxes and Assessment Details
Values
| (+) Improvement Homesite Value: | + | $0 | |
| (+) Improvement Non-Homesite Value: | + | $209,723 | |
| (+) Land Homesite Value: | + | $0 | |
| (+) Land Non-Homesite Value: | + | $150,000 | |
| (+) Curr Use (HS): | + | $0 | $0 |
| (+) Curr Use (NHS): | + | $0 | $0 |
| | | -------------------------- | |
| (=) Market Value: | = | $359,723 | |
| (–) Productivity Loss: | – | $0 | |
| | | -------------------------- | |
| (=) Subtotal: | = | $359,723 | |
| (+) Senior Appraised Value: | + | $0 | |
| (+) Non-Senior Appraised Value: | + | $359,723 | |
| | | -------------------------- | |
| (=) Total Appraised Value: | = | $359,723 | |
| (–) Senior Exemption Loss: | – | $0 | |
| (–) Exemption Loss: | – | $0 | |
| | | -------------------------- | |
| (=) Taxable Value: | = | $359,723 | |
Taxing Jurisdiction
| Owner: | STANFIELD, DAVID J | | |
| % Ownership: | 100.0000000000% | | |
| Total Value: | $359,723 | | |
| Tax Area: | 100 - APPRAISER-OH Schl Dist, in OH |
| CF | Conservation Futures | 0.0316035091 | $359,723 | $359,723 | $11.37 | | |
| CEM1 | Cemetery #1 | 0.0040320932 | $359,723 | $359,723 | $1.45 | | |
| COH | City of Oak Harbor | 2.3001546061 | $359,723 | $359,723 | $827.42 | | |
| OAKBOND | City of Oak Harbor BOND | 0.1926904192 | $359,723 | $359,723 | $69.32 | | |
| HOBOND | Hospital BOND | 0.1910887512 | $359,723 | $359,723 | $68.74 | | |
| HOGEN | Hospital GEN | 0.3902502903 | $359,723 | $359,723 | $140.38 | | |
| CE | County Current Expense | 0.3708482477 | $359,723 | $359,723 | $133.40 | | |
| ISLANDEMS | Hospital GEN (EMS) | 0.5000000000 | $359,723 | $359,723 | $179.86 | | |
| LIB | Library Sno-Isle GEN | 0.3153421757 | $359,723 | $359,723 | $113.44 | | |
| NWHIDPRMT | P & R N Whidbey GEN | 0.2004466701 | $359,723 | $359,723 | $72.11 | | |
| SCH201MO | School 201 Enrichment | 1.8559231640 | $359,723 | $359,723 | $667.62 | | |
| ST | State School | 1.3035497053 | $359,723 | $359,723 | $468.92 | | |
| ST2 | State School Part 2 | 0.8169543533 | $359,723 | $359,723 | $293.88 | | |
| | Total Tax Rate: | 8.4728839852 | | | | | |
| | | | | Taxes w/Current Exemptions: | $3,047.91 | | |
| | | | | Taxes w/o Exemptions: | $3,047.91 | | |
Improvement / Building
| Improvement #1: | RESIDENTIAL | State Code: | A1 | 1234.0 sqft | Value: | $209,723 |
| Bathrooms: | 1.75 | Bedrooms: | 2 | | Ceiling: | DRYWALL PAINTED | Exterior Wall/Cover: | WOOD SIDING | | Floor Covering: | CARPET/VINYL 80-20 | Floor Structure: | WOOD W/SUBFLOOR | | Foundation: | CONCRETE | Heating: | BASEBOARD ELECTRIC | | Interior Finish: | DRYWALL PAINT | Plumbing Fixture Cnt: | 9 | | Roof Slope: | FLAT | Roof Structure/Cover: | CJ BUILT-UP ROCK |
|
| | Type | Description | Class CD | Sub Class CD | Year Built | Area |
| | BAS | BASE/MAIN FLOOR | 3 | 0 | 1984 | 1234.0 |
| | OWP | OPEN WOOD PORCH W/STEPS | 3 | 0 | 1984 | 112.0 |
| | OCP | OPEN CARPORT | 3 | 0 | 1984 | 0.0 |
| | UTY | STORAGE/UTILITY | 3 | 0 | 1984 | 0.0 |
| | OP4 | OPEN PORCH W/CEILING-ROOF | 3 | 0 | 1984 | 0.0 |
| | OP1 | OPEN PORCH SLAB | 3 | 0 | 1984 | 0.0 |
Sketch
Property Image
Land
| 1 | 61 | MULTIPLE RESIDENCES | 0.0413 | 1800.10 | 0.00 | 0.00 | 1.00 | $150,000 | $0 |
Roll Value History
| 2026 | N/A | N/A | N/A | N/A | N/A |
| 2025 | $209,723 | $150,000 | $0 | $359,723 | $359,723 |
| 2024 | $216,666 | $150,000 | $0 | $366,666 | $366,666 |
| 2023 | $208,554 | $150,000 | $0 | $358,554 | $358,554 |
| 2022 | $191,778 | $150,000 | $0 | $341,778 | $341,778 |
| 2021 | $169,557 | $100,000 | $0 | $269,557 | $269,557 |
| 2020 | $165,225 | $95,000 | $0 | $260,225 | $260,225 |
| 2019 | $119,098 | $140,000 | $0 | $259,098 | $259,098 |
| 2018 | $119,457 | $65,000 | $0 | $184,457 | $184,457 |
| 2017 | $112,380 | $46,262 | $0 | $158,642 | $158,642 |
| 2016 | $113,996 | $46,262 | $0 | $160,258 | $160,258 |
| 2015 | $115,612 | $46,262 | $0 | $161,874 | $161,874 |
| 2014 | $117,228 | $46,262 | $0 | $163,490 | $163,490 |
| 2013 | $118,844 | $46,262 | $0 | $165,106 | $165,106 |
| 2012 | $110,979 | $46,262 | $0 | $157,241 | $157,241 |
| 2011 | $110,979 | $46,262 | $0 | $157,241 | $157,241 |
| 2010 | $117,890 | $46,262 | $0 | $164,152 | $164,152 |
| 2009 | $122,890 | $70,200 | $0 | $193,090 | $193,090 |
| 2008 | $124,437 | $70,200 | $0 | $194,637 | $194,637 |
| 2007 | $125,983 | $70,200 | $0 | $196,183 | $196,183 |
Deed and Sales History
| 1 | 04/16/2025 | WD | Warranty Deed | JONES, BRIAN T | STANFIELD, DAVID J | | | $339,900.00 | 63162 | 4584606 |
| 2 | 01/27/2006 | WD | Warranty Deed | WILEY, JIMMIE L | JONES, BRIAN T | | | $228,000.00 | 60364 | 4160858 |
| 3 | 09/01/1984 | WD | Warranty Deed | Unknown | WILEY, JIMMIE L | | | $0.00 | 42896 | 84003939 |
Payout Agreement
| No payout information available.. |