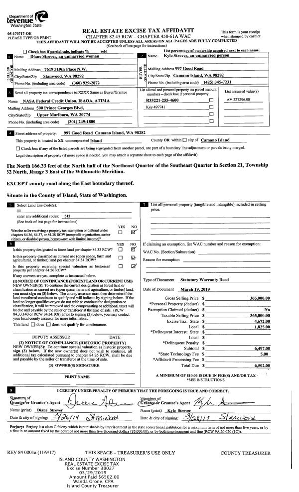
Property
Account |
| Property ID: | 717335 | Abbreviated Legal Description: | ROLL HILL S66' LOT 11 BLK 2 |
| Geographic ID: | S8050-00-02011-2 | Agent Code: | |
| Type: | Real | | |
| Tax Area: | 330 - APPRAISER-Cpvl Schl Dist, Special Dist, improved & less than 1 acre | Land Use Code | 11 |
| Open Space: | N | DFL | N |
| Historic Property: | N | Remodel Property: | N |
| Multi-Family Redevelopment: | N | | |
| Township: | | Section: | |
| Range: | |
Location |
| Address: | 1002 RIEPMA AVE OAK HARBOR, WA 98277 | Mapsco: | |
| Neighborhood: | Cycle 2 | Map ID: | 148 |
| Neighborhood CD: | 2 |
Owner |
| Name: | LEITZ, ANDREW | Owner ID: | 310465 |
| Mailing Address: | MICHELLE LEITZ PO BOX 544 LANGLEY, WA 98260 | % Ownership: | 100.0000000000% |
| | | Exemptions: | |
Taxes and Assessment Details
Values
| (+) Improvement Homesite Value: | + | $0 | |
| (+) Improvement Non-Homesite Value: | + | $99,739 | |
| (+) Land Homesite Value: | + | $0 | |
| (+) Land Non-Homesite Value: | + | $220,000 | |
| (+) Curr Use (HS): | + | $0 | $0 |
| (+) Curr Use (NHS): | + | $0 | $0 |
| | | -------------------------- | |
| (=) Market Value: | = | $319,739 | |
| (–) Productivity Loss: | – | $0 | |
| | | -------------------------- | |
| (=) Subtotal: | = | $319,739 | |
| (+) Senior Appraised Value: | + | $0 | |
| (+) Non-Senior Appraised Value: | + | $319,739 | |
| | | -------------------------- | |
| (=) Total Appraised Value: | = | $319,739 | |
| (–) Senior Exemption Loss: | – | $0 | |
| (–) Exemption Loss: | – | $0 | |
| | | -------------------------- | |
| (=) Taxable Value: | = | $319,739 | |
Taxing Jurisdiction
| Owner: | LEITZ, ANDREW | | |
| % Ownership: | 100.0000000000% | | |
| Total Value: | $319,739 | | |
| Tax Area: | 330 - APPRAISER-Cpvl Schl Dist, Special Dist, improved & less than 1 acre |
| CF | Conservation Futures | 0.0316035091 | $319,739 | $319,739 | $10.10 | | |
| CEM2 | Cemetery #2 | 0.0095056933 | $319,739 | $319,739 | $3.04 | | |
| FIRE2 | Fire & Rescue Dist #2 N Whidbey GEN | 0.5475949600 | $319,739 | $319,739 | $175.09 | | |
| HOBOND | Hospital BOND | 0.1910887512 | $319,739 | $319,739 | $61.10 | | |
| HOGEN | Hospital GEN | 0.3902502903 | $319,739 | $319,739 | $124.78 | | |
| CE | County Current Expense | 0.3708482477 | $319,739 | $319,739 | $118.57 | | |
| CR | County Roads | 0.4584763726 | $319,739 | $319,739 | $146.59 | | |
| ISLANDEMS | Hospital GEN (EMS) | 0.5000000000 | $319,739 | $319,739 | $159.87 | | |
| LIB | Library Sno-Isle GEN | 0.3153421757 | $319,739 | $319,739 | $100.83 | | |
| LIBCAP | Library Sno-Isle BOND (Cap Fac Imp Area) | 0.0543427938 | $319,739 | $319,739 | $17.38 | | |
| POCOUP | Port of Coupeville GEN | 0.1093371703 | $319,739 | $319,739 | $34.96 | | |
| POCOUPIDD | Port of Coupeville IDD | 0.3409740022 | $319,739 | $319,739 | $109.02 | | |
| COUPSDTECH | School 204 CP (TECH) | 0.7545480007 | $319,739 | $319,739 | $241.26 | | |
| SCH204MO | School 204 Enrichment | 0.6716186034 | $319,739 | $319,739 | $214.74 | | |
| ST | State School | 1.3035497053 | $319,739 | $319,739 | $416.80 | | |
| ST2 | State School Part 2 | 0.8169543533 | $319,739 | $319,739 | $261.21 | | |
| | Total Tax Rate: | 6.8660346289 | | | | | |
| | | | | Taxes w/Current Exemptions: | $2,195.34 | | |
| | | | | Taxes w/o Exemptions: | $2,195.34 | | |
Improvement / Building
| Improvement #1: | MANUFACTURED HOME | State Code: | Y | 1080.0 sqft | Value: | $99,739 |
| Bathrooms: | 0 | Bedrooms: | 0 | | Ceiling: | PLASTER PAINTED | Cooling: | EVAP NO DUCT | | Exterior Wall/Cover: | VINYL | Floor Covering: | CARPET 100% | | Floor Structure: | SLAB ON GRADE | Foundation: | SLAB | | Heating: | FHA ELECTRIC | Interior Finish: | PLASTER | | Plumbing Fixture Cnt: | 1 | Roof Slope: | FLAT | | Roof Structure/Cover: | CJ ALUMINIUM HEAVY |   |   |
|
| | Type | Description | Class CD | Sub Class CD | Year Built | Area |
| | BAS | BASE/MAIN FLOOR | 4 | 0 | 1985 | 1080.0 |
| | CPD | OPEN CARPORT DIRT FLOOR | 4 | 0 | 1985 | 243.0 |
Sketch
Property Image
Land
| 1 | 15 | SQ (12001-21780) | 0.4500 | 19602.00 | 0.00 | 0.00 | 1.00 | $220,000 | $0 |
Roll Value History
| 2026 | N/A | N/A | N/A | N/A | N/A |
| 2025 | $99,739 | $220,000 | $0 | $319,739 | $319,739 |
| 2024 | $101,124 | $210,000 | $0 | $311,124 | $311,124 |
| 2023 | $32,161 | $220,000 | $0 | $252,161 | $252,161 |
| 2022 | $30,886 | $220,000 | $0 | $250,886 | $250,886 |
| 2021 | $29,163 | $180,000 | $0 | $209,163 | $209,163 |
| 2020 | $29,799 | $140,000 | $0 | $169,799 | $169,799 |
| 2019 | $24,649 | $170,000 | $0 | $194,649 | $194,649 |
| 2018 | $20,593 | $135,000 | $0 | $155,593 | $155,593 |
| 2017 | $21,565 | $120,000 | $0 | $141,565 | $141,565 |
| 2016 | $22,537 | $100,000 | $0 | $122,537 | $122,537 |
| 2015 | $23,509 | $70,000 | $0 | $93,509 | $93,509 |
| 2014 | $24,966 | $60,000 | $0 | $84,966 | $84,966 |
| 2013 | $25,938 | $55,000 | $0 | $80,938 | $80,938 |
| 2012 | $31,500 | $57,800 | $0 | $89,300 | $89,300 |
| 2011 | $32,472 | $68,000 | $0 | $100,472 | $100,472 |
| 2010 | $29,691 | $68,000 | $0 | $97,691 | $97,691 |
| 2009 | $31,785 | $74,165 | $0 | $105,950 | $105,950 |
| 2008 | $61,489 | $74,400 | $0 | $135,889 | $135,889 |
| 2007 | $62,879 | $74,400 | $0 | $137,279 | $137,279 |
Deed and Sales History
| 1 | 10/26/2023 | WD | Warranty Deed | MARTINEZ, NATHANIEL | LEITZ, ANDREW | | | $360,000.00 | 58341 | 4566081 |
| 2 | 02/27/2019 | WD | Warranty Deed | MORTON, JENNIFER L | MARTINEZ, NATHANIEL | | | $228,000.00 | 37743 | 4459895 |
| 3 | 12/05/2005 | WD | Warranty Deed | TRAVIS LANDES FAMILY TRUST, | MORTON, JENNIFER L | | | $95,000.00 | 60941 | 4163844 |
| 4 | 12/27/2004 | QCD | Quit Claim Deed | VONHADEN TRUSTEE, BRAD | TRAVIS LANDES FAMILY TRUST, | | | $0.00 | 55929 | 4155238 |
| 5 | 12/21/2004 | 5 | DNU - Marriage License/Name Change | LANDES, TRAVIS W | VONHADEN TRUSTEE, BRAD | | | $0.00 | 50195 | 4123325 |
| 6 | 06/16/2000 | OTHER | Other - Misc. Documents | HUBER, ALICE M | LANDES, TRAVIS W | | | $0.00 | 2435 | 0 |
| 7 | 06/08/2000 | ESTSEPPROP | Establish Separate Property | Unknown | LANDES, TRAVIS W | | | $0.00 | 2231 | 20010609 |
| 8 | 06/08/2000 | QCD | Quit Claim Deed | LANDES, TRAVIS W | LANDES, TRAVIS W | | | $80,000.00 | 2230 | 20010608 |
| 9 | 06/01/1985 | OTHER | Other - Misc. Documents | Unknown | HUBER, ALICE M | | | $22,775.00 | 11111111 | 0 |
| 10 | 01/01/1900 | OTHER | Other - Misc. Documents | LANDES, TRAVIS W | HUBER, ALICE M | | | $0.00 | 0 | 0 |
Payout Agreement
| No payout information available.. |