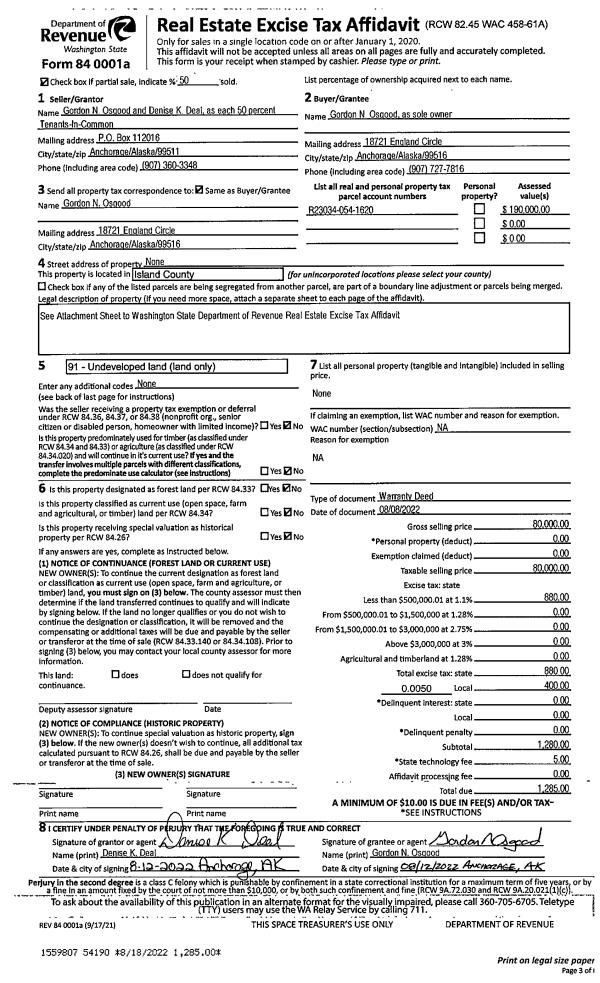
Property
Account |
| Property ID: | 717610 | Abbreviated Legal Description: | BUENA VISTA 2 LOT 19 BLK 5 |
| Geographic ID: | S6195-02-05019-0 | Agent Code: | |
| Type: | Real | | |
| Tax Area: | 590 - APPRAISER-Stan/Cam Schl Dist, Special Dist, improved & less than 1 acre | Land Use Code | 11 |
| Open Space: | N | DFL | N |
| Historic Property: | N | Remodel Property: | N |
| Multi-Family Redevelopment: | N | | |
| Township: | | Section: | |
| Range: | |
Location |
| Address: | 1095 ARROWHEAD RD CAMANO ISLAND, WA 98282 | Mapsco: | |
| Neighborhood: | North Camano | Map ID: | 962 |
| Neighborhood CD: | 06-C |
Owner |
| Name: | BURTON, CHRISTOPHER GRANT | Owner ID: | 302796 |
| Mailing Address: | 1095 ARROWHEAD RD CAMANO ISLAND, WA 98282 | % Ownership: | 100.0000000000% |
| | | Exemptions: | |
Taxes and Assessment Details
Values
| (+) Improvement Homesite Value: | + | $0 | |
| (+) Improvement Non-Homesite Value: | + | $364,879 | |
| (+) Land Homesite Value: | + | $0 | |
| (+) Land Non-Homesite Value: | + | $275,000 | |
| (+) Curr Use (HS): | + | $0 | $0 |
| (+) Curr Use (NHS): | + | $0 | $0 |
| | | -------------------------- | |
| (=) Market Value: | = | $639,879 | |
| (–) Productivity Loss: | – | $0 | |
| | | -------------------------- | |
| (=) Subtotal: | = | $639,879 | |
| (+) Senior Appraised Value: | + | $0 | |
| (+) Non-Senior Appraised Value: | + | $639,879 | |
| | | -------------------------- | |
| (=) Total Appraised Value: | = | $639,879 | |
| (–) Senior Exemption Loss: | – | $0 | |
| (–) Exemption Loss: | – | $0 | |
| | | -------------------------- | |
| (=) Taxable Value: | = | $639,879 | |
Taxing Jurisdiction
| Owner: | BURTON, CHRISTOPHER GRANT | | |
| % Ownership: | 100.0000000000% | | |
| Total Value: | $639,879 | | |
| Tax Area: | 590 - APPRAISER-Stan/Cam Schl Dist, Special Dist, improved & less than 1 acre |
| CF | Conservation Futures | 0.0316035091 | $639,879 | $639,879 | $20.22 | | |
| EMS1 | Fire & Rescue Dist #1 Camano GEN (EMS) | 0.3677864386 | $639,879 | $639,879 | $235.34 | | |
| FIRE1 | Fire & Rescue Dist #1 Camano GEN | 1.2502910536 | $639,879 | $639,879 | $800.03 | | |
| FIRE1BOND | Fire & Rescue Dist #1 Camano BOND | 0.1570001679 | $639,879 | $639,879 | $100.46 | | |
| CE | County Current Expense | 0.3708482477 | $639,879 | $639,879 | $237.30 | | |
| CR | County Roads | 0.4584763726 | $639,879 | $639,879 | $293.37 | | |
| LCIB | Library Sno-Isle BOND (Camano Island) | 0.0396325772 | $639,879 | $639,879 | $25.36 | | |
| LIB | Library Sno-Isle GEN | 0.3153421757 | $639,879 | $639,879 | $201.78 | | |
| SCH205_401 | School 205-401 Enrichment | 1.2698420524 | $639,879 | $639,879 | $812.55 | | |
| SCH205BOND | School 205-401 BOND | 0.9396497583 | $639,879 | $639,879 | $601.26 | | |
| ST | State School | 1.3035497053 | $639,879 | $639,879 | $834.11 | | |
| ST2 | State School Part 2 | 0.8169543533 | $639,879 | $639,879 | $522.75 | | |
| | Total Tax Rate: | 7.3209764117 | | | | | |
| | | | | Taxes w/Current Exemptions: | $4,684.53 | | |
| | | | | Taxes w/o Exemptions: | $4,684.53 | | |
Improvement / Building
| Improvement #1: | RESIDENTIAL | State Code: | Y | 2416.0 sqft | Value: | $364,879 |
| Bathrooms: | 2 | Bedrooms: | 2 | | Ceiling: | DRYWALL PAINTED | Exterior Wall/Cover: | WOOD SIDING | | Floor Covering: | CARPET/VINYL 80-20 | Floor Structure: | WOOD W/SUBFLOOR | | Foundation: | CONCRETE | Heating: | FHA GAS | | Interior Finish: | DRYWALL PAINT | Plumbing Fixture Cnt: | 10 | | Roof Slope: | 5" IN 12" | Roof Structure/Cover: | CJ ASPHALT |
|
| | Type | Description | Class CD | Sub Class CD | Year Built | Area |
| | BAS | BASE/MAIN FLOOR | 3 | 0 | 1969 | 2128.0 |
| | DWN | DOWNSTAIRS LIVING AREA | 3 | 0 | 1969 | 288.0 |
| | BIG | BUILT IN GARAGE | 3 | 0 | 1969 | 576.0 |
| | OWP | OPEN WOOD PORCH W/STEPS | 3 | 0 | 1969 | 208.0 |
| | OWP | OPEN WOOD PORCH W/STEPS | 3 | 0 | 1969 | 80.0 |
| | OWR | OPEN WOOD PORCH W/STEPS/ROOF | 3 | 0 | 1969 | 180.0 |
| | UB8 | BASEMENT UNFINISHED 8" | 3 | 0 | 1969 | 288.0 |
Sketch
Property Image
Land
| 1 | 14 | SQ (08001-12000) | 0.0000 | 0.00 | 0.00 | 0.00 | 1.00 | $275,000 | $0 |
Roll Value History
| 2026 | N/A | N/A | N/A | N/A | N/A |
| 2025 | $364,879 | $275,000 | $0 | $639,879 | $639,879 |
| 2024 | $369,485 | $260,000 | $0 | $629,485 | $629,485 |
| 2023 | $374,089 | $290,000 | $0 | $664,089 | $664,089 |
| 2022 | $342,911 | $280,000 | $0 | $622,911 | $622,911 |
| 2021 | $287,293 | $160,000 | $0 | $447,293 | $447,293 |
| 2020 | $280,747 | $130,000 | $0 | $410,747 | $410,747 |
| 2019 | $218,594 | $170,000 | $0 | $388,594 | $388,594 |
| 2018 | $219,267 | $150,000 | $0 | $369,267 | $369,267 |
| 2017 | $220,613 | $120,000 | $0 | $340,613 | $340,613 |
| 2016 | $215,211 | $115,000 | $0 | $330,211 | $330,211 |
| 2015 | $217,865 | $85,000 | $0 | $302,865 | $302,865 |
| 2014 | $220,523 | $65,000 | $0 | $285,523 | $285,523 |
| 2013 | $223,180 | $65,000 | $0 | $288,180 | $288,180 |
| 2012 | $225,838 | $68,000 | $0 | $293,838 | $293,838 |
| 2011 | $228,494 | $85,000 | $0 | $313,494 | $313,494 |
| 2010 | $213,110 | $77,190 | $0 | $290,300 | $290,300 |
| 2009 | $222,269 | $130,000 | $0 | $352,269 | $352,269 |
| 2008 | $224,939 | $125,000 | $0 | $349,939 | $349,939 |
| 2007 | $227,611 | $125,000 | $0 | $352,611 | $352,611 |
Deed and Sales History
| 1 | 01/25/2022 | WD | Warranty Deed | BARNETT SR, SLADE E | BURTON, CHRISTOPHER GRANT | | | $575,000.00 | 51793 | 4538695 |
Payout Agreement
| No payout information available.. |